direct naar inhoud van Toelichting
Plan: Asten Loverbosch fase 3 2022
Status: ontwerp
Plantype: bestemmingsplan
IMRO-idn: NL.IMRO.0743.BP02022002-OW01

Toelichting

Hoofdstuk 1 Inleiding

1.1 Aanleiding

Voorliggend bestemmingsplan heeft betrekking op het te ontwikkeling woongebied vervolgfase Loverbosch III. De gemeente Asten heeft het planvoornemen haar dorpskern aan de oostzijde uit te breiden met de uitbreidingswijk Loverbosch fase 3. Voor ontwikkeling van Loverbosch is in het verleden een Masterplan uitgewerkt waarmee de uitgangspunten voor de ontwikkeling van Loverbosch in meerdere fases zijn vastgelegd. Inmiddels is fase 1 gerealiseerd en bevindt fase 2 zich in de realisatie fase.

De gemeente Asten streeft ernaar om van Loverbosch fase 3 iets bijzonders te maken en heeft als thema voor de stedenbouwkundige uitwerking gekozen voor “de natuurinclusieve woonwijk” waarbij nadrukkelijk om een invulling van het plan gevraagd wordt waarbij natuur en biodiversiteit een belangrijke rol spelen.

Een stedenbouwkundig plan is opgesteld voor de nieuwe woonwijk. In het stedenbouwkundig plan is de ruimtelijke structuur van de nieuwe woonwijk bepaald. Het volledige gebied beslaat 12 hectare en biedt ruimte aan zo'n 250 woningen. Omdat het een groot plangebied betreft met een omvangrijk bouwprogramma kiest de gemeente er voor om dit niet in één keer tegelijk te ontwikkelen. Ook dient op basis van het gemeentelijke Strategisch huisvestingsplan een schoollocatie in Loverbosch te worden gerealiseerd. Voor de schoollocatie is het noordelijke deel van Loverbosch fase 3 in beeld.

Met dit bestemmingsplan is dan ook allereest een planologische procedure opgestart voor het mogelijk maken van 205 woningen op basis van het stedenbouwkundig plan. Daarbij worden 155 woningen rechtsteeks mogelijk gemaakt. De overige 50 woningen zijn opgenomen via een wijzingsbevoegdheid. Het bestemmingsplan is hierop flexibel ingericht.

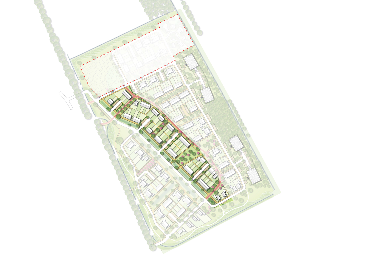
afbeelding "i_NL.IMRO.0743.BP02022002-OW01_0001.jpg"  
Stedenbouwkundig plan Loverbosch fase III  

Om een gefaseerde realisatie mogelijk te maken legt het bestemmingsplan de ruimtelijke structuur op basis van het stedenbouwkundig plan vast. De hoofdinfrastructuur, de natuurinclusieve en waterbergingsmaatregelen en woonvelden in het bestemmingsplan worden vastgelegd op basis van het stedenbouwkundig plan. Het woningbouwprogramma kan dan binnen de woonvelden worden gerealiseerd. Via een wijzigingsbevoegdheid wordt tevens voorzien in de vervolgfasen.

1.2 Ligging plangebied

Het plangebied ligt aan de oostzijde van Asten, grofweg tussen de Koestraat en de N279 en is momenteel in gebruik als Akkerbouw gronden. Aan de noordzijde van het plangebied bevindt zich het volkstuinen complex van de eerste volkstuinenvereniging Asten. Aan de zuidzijde wordt het plangebied begrensd door agrarische percelen. Direct ten westen van het plangebied is de eerste fase van Loverbosch gerealiseerd en wordt op dit moment fase twee gebouwd. Het plangebied is aan de zuid- en westzijde begrensd door de Beekerloop. Aan de oostzijde, tegen de N279 en centraal op de kavel, bevindt zich een kleine bosschage met houtopstanden van eik, dennen, berken e.d. Aan de westzijde wordt het plangebied begrensd door de Koestraat met een robuuste laanstructuur.

afbeelding "i_NL.IMRO.0743.BP02022002-OW01_0002.png"  
Ligging plangebied  

1.3 Geldend bestemmingsplan

Voor de gronden in het plangebied geldt de Beheersverordening Asten Stegen, Koestraat 2013, vastgesteld op 8 oktober 2013 (identificatie:NL.IMRO.0743.BV02013003-VS01) en Asten Parapluplan Wonen 2019 - vastgesteld 2020-02-04).

afbeelding "i_NL.IMRO.0743.BP02022002-OW01_0003.png"  
Vigerend beheersverordening  

De gronden in het plangebied hebben de bestemming ‘Agrarisch’. Binnen deze bestemming is de realisatie van woningen, wegen en bijbehorende voorzieningen niet toegestaan. Om de voorgenomen ontwikkeling mogelijk te maken, zal het bestemmingsplan voor de gronden in het plangebied herzien moeten worden ex artikel 3.1 van de Wro.

1.4 Leeswijzer

Dit bestemmingsplan bestaat uit een verbeelding, regels en deze toelichting. De regels en de verbeelding vormen de juridisch bindende elementen van het bestemmingsplan. De toelichting is als volgt opgebouwd:

  • in hoofdstuk 2 wordt de bestaande situatie in het plangebied beschreven;
  • in hoofdstuk 3 wordt het voorgenomen plan beschreven;
  • in hoofdstuk 4 volgt een beschrijving van het ruimtelijke beleidskader dat van toepassing is op het bestemmingsplan;
  • in hoofdstuk 5 komen de relevante milieu- en omgevingsaspecten aan bod;
  • in hoofdstuk 6 volgt de beschrijving van het juridische deel van het plan;
  • in hoofdstuk 7 komt de economische uitvoerbaarheid aan bod;
  • in hoofdstuk 8 tenslotte worden de resultaten uit overleg en inspraak besproken en behandeld.

Hoofdstuk 2 Bestaande situatie

2.1 Ruimtelijke structuur

2.1.1 Ontstaansgeschiedenis

Asten is ontstaan op de flank van een dekzandrug aan de rand van het beekdal van de beek de Aa. Dergelijke plekken hadden eigenschappen welke erg gunstig waren voor bewoning en landbouw waardoor hier verschillende nederzettingen zijn ontstaan. Vanuit de nederzetting is het zandgebied ontgonnen; eerst direct rond de kern en later in een steeds wijder gebied, totdat in de 20e eeuw ook de omliggende heide en het veen ontgonnen werden. Loverbosch is gelegen aan de oostelijke zijde van de kern, op de overgang van de oudere naar de jongere zandontginningen.

afbeelding "i_NL.IMRO.0743.BP02022002-OW01_0004.png"

 
Topografische kaart 1911 met plangebied globaal omkaderd (bron: topotijdreis.nl)  

Op bovenstaande topografische kaart van 1911 is te zien dat het gebied voornamelijk bestond uit een afwisseling van graslanden met een fijnmazige kavelbeplanting en bouwland. De verkaveling was zeer onregelmatig en lag als een soort mozaïek door het landschap. Op de historische kaarten is de Beekerloop ook duidelijk waarneembaar, ook toen al in gekanaliseerde vorm. Deze watergang had als belangrijke functie het bevloeien van de graslanden en het afvoeren van overtollig water. De oorspronkelijke loop van de beek is nog steeds zichtbaar in het landschap.

Het agrarische lint de Koestraat is ook goed zichtbaar op deze kaarten weliswaar in een meer grilliger verloop, toen in latere tijdsperiodes het agrarisch gebruik steeds functioneler werd ingericht is de Koestraat getransformeerd naar een rechte agrarische ader welke tot op heden aanwezig is.

2.1.2 Bebouwing

De planlocatie voor de derde fase Loverbosch is momenteel onbebouwd. In de omgeving is sprake van bebouwing bestaande uit boerderijen en de woongebieden Loverbosch fases 1 & 2. De voorgestane ontwikkeling sluit aan bij de woonfunctie van de aan de Westzijde grenzende eerste en tweede fase van Loverbosch. Momenteel wordt het gebied nog niet ontsloten door wegen anders dan de aangrenzende Koestraat. In de vervolgfase van Loverbosch wordt een nieuwe hoofdontsluiting gezocht aansluitend op de bestaande infrastructuur, zodat de woonkwaliteit in fases 1 en 2 en het nieuw te realiseren woongebied fase III is gewaarborgd.

afbeelding "i_NL.IMRO.0743.BP02022002-OW01_0005.jpg"  
Luchtfoto met plangebied globaal omkaderd (bron: viewer slagboomenpeeters.com)  
2.1.3 Groen

Loverbosch ligt ten oosten van de bestaande bebouwde kom in het voormalige beekdal van de Beekerloop. De locatie bestaat uit gronden die in gebruik zijn als grasland en bouwland (akker). Op korte afstand van de planlocatie voor fase III zijn in het gebied verschillende fiets- wandel- en ruiterroutes aanwezig. Ook liggen er onverharde paden langs water, bomen en weilanden. De oorspronkelijke grillige en kleinschalige verkaveling is grotendeels verdwenen met de ruilverkavelingsperiode. Wat nog herinnert aan het oude landschap, is de typerende aaneenschakeling van veldjes en kleine populierenbossen die een reeks coulissen en doorzichten vormt en zo de overgang tussen het dorp en het buitengebied vormgeeft. Het landschap is zodoende altijd dichtbij. Midden door het masterplan Loverbosch, van de Stegen (noord) naar de Voordeldonk (zuid) ligt de Koestraat: een smalle landweg met aan weerszijden greppels en aan één zijde een robuuste rij eikenbomen. De bestaande populierenbosjes en paardenweitjes, vormen de rand van het dorp. Hier is de nieuwbouw van de eerste fase van Loverbosch aan toegevoegd en wordt fase 2 nu gerealiseerd. Aan de oostzijde van Loverbosch fase 1 en fase 2 wordt, ten oosten van de Koestraat nu Loverbosch fase III voorzien.

Binnen het plangebied zijn op dit moment een aantal belangrijk landschappelijke elementen aanwezig, die het vertrekpunt vormen voor het uitwerken van een natuurinclusieve woonwijk. De bestaande landschapselementen zijn in navolgende figuur weergegeven .

afbeelding "i_NL.IMRO.0743.BP02022002-OW01_0006.jpg"  
Bestaande situatie met belangrijkste landschappelijke elementen  
2.1.4 Waterstructuur

Het gebied Loverbosch ligt binnen het beheergebied van Waterschap Aa en Maas. In het gebied liggen diverse watergangen waaronder A en B watergangen. De Beekerloop (een A-watergang) begrensd het gebied van oost naar west. Het beekdal van de Beekerloop is over het algemeen vrij breed en ondiep. De grondwaterstanden in het gebied zijn relatief hoog. Daardoor heeft het stelsel van watergangen in het gebied een belangrijke functie voor de afvoer van water in nattere perioden. Het waterschap heeft delen van de Beekerloop opnieuw in gericht waarbij tegelijkertijd natuurvriendelijke oevers zijn gerealiseerd. De herinrichting van de Beekerloop binnen het plangebied is meegenomen in het stedenbouwkundig ontwerp voor Loverbosch fase III.

2.2 Functionele structuur

De locatie bestaat uit gronden die in gebruik zijn als grasland en bouwland (akker). Binnen de plancontour voor fase III zal de agrarische functie geheel komen te vervallen ten behoeven van woningbouw met een natuurlijke inrichting. De bosschage, centraal aan de oostzijde gelegen, zal worden behouden evenals de monumentale eikenboom aan de westzijde van het plangebied. De gronden gelegen aan de zuidzijde van fase III tot aan de Voordeeldonk zullen als agrarische gronden in gebruik blijven. Aan de noordzijde bevindt zich het volkstuinen complex van de 'Eerste Volkstuinenvereniging Asten'. In het plangebied wordt uitsluitend woningbouw voorzien en de bijbehorende infrastructurele, groene- en ecologische structuren. Als gekeken wordt naar de functionele structuur op kernniveau is waarneembaar dat het plangebied wordt begrensd door woonfuncties aan de westzijde, het tuinencomplex en de daaraan grenzende bedrijfsmatige functies binnen bedrijventerrein Florapark aan de noordzijde en de regionale ontsluiting N279 aan de oostzijde. Meerdere (basis)voorzieningen zijn gelegen op zo'n 1,5 km afstand van de planlocatie, voornamelijk in westelijke richting in- en rond het centrum van Asten. In zuidwestelijke richting vanuit het plangebied zijn enkele basisscholen op gunstige afstand ten opzichte van het plangebied gelegen.. Het realiseren van een veilige en aantrekkelijke fiets-/wandelverbinding kan schoolgaande kinderen de mogelijkheid bieden op een veilige manier met de fiets of te voet naar school te gaan. Tevens wordt middels het zoeken van aansluitingen op fiets- en wandelroutes de verbinding naar het centrum aantrekkelijker gemaakt voor de fiets en te voet.

Hoofdstuk 3 Planbeschrijving

3.1 Natuurinclusief wonen in Loverbosch fase III

Aan de oostzijde van de kern Asten ontwikkelt de gemeente woongebied Loverbosch. De gemeente staat voor een aanzienlijke woningbouwopgave. Loverbosch Fase 1 is al enige jaren in de gebruik. Loverbosch fase 2 is volop in ontwikkeling, waarbij delen van deze wijk inmiddels in gebruik zijn genomen. Met dit bestemmingsplan wordt de vervolgfase Loverbosch fase III planologisch geregeld.

Voor Loverbosch fase III is een stedenbouwkundig plan opgesteld, waarbij voor het totale gebied van circa 12 hectare een natuurinclusieve woonwijk is ontworpen. In het stedenbouwkundig plan is ruimte gereserveerd voor zo'n 250 woningen. De gemeente heeft gekozen om dit gefaseerd te realiseren.

Op bais van het Strategisch Huisvestingsplan Primair onderwijs (SHP) is een nieuwe schoollocatie beoogd in de wijk Loverbosch. Deze schoollocatie wordt voorzien in het noordelijke deel van Loverbosch fase 3. In dit noordelijk deel zijn in het stedenbouwkundig plan 3 woonvelden voorzien. Voor de schoollocatie wordt een separaat stedenbouwkundig ontwerp opgesteld. Ditzelfde geldt voor het planologisch aanpassen van het bestemmingsplan voor dit deel van het gebied Loverbosch fase 3.

Dit bestemmingsplan voorziet nu in het planologisch kader voor de eerste 155 woningen. Deze woning worden rechtstreek mogelijk gemaakt. Daarnaast worden 50 woningen via een wijzigingsbevoegdheid mogelijk gemaakt.

Voor de ontwikkeling van Loverbosch fase III is nadrukkelijk gekozen voor een natuurinclusieve woonwijk. Deze keuze is ingegeven doordat de marktomstandigheden zijn veranderd, waarbij de eisen en wensen ten aanzien van de directe woonomgeving en het effect van wonen op de kleine en grotere afstand vragen om een andere benadering. Naast de huisvestigingsopgave en het natuurinclusief wonen speelt de ontsluiting en de afwikkeling van het verkeer onder andere richting de N279 en A67 en voor het langzaam verkeer richting het dorp een rol.

Natuurinclusief wonen betekent niet alleen wonen in de natuur, maar juist ook wonen met de natuur. Om te komen tot een optimale integratie van de natuur in de wijk dienen naast de bewonersdoelgroepen ook de natuurdoelsoorten een optimale plek in het plangebied te krijgen. Het gaat dan om mens, dier en plant.

Bij het opstellen van het stedenbouwkundig plan is dan ook nadrukkelijk 'natuur ontwikkelen met wonen' als invalshoek gekozen. De ontwikkeling van natuur vormt de leidraad voor de stedenbouwkundige opzet. Allereerst is een landschappelijke en ecologische structuur neergezet alvorens een stedenbouwkundige structuur uit te werken. De stedenbouwkundige structuur voegt zich naar de groene en ecologische structuur. Het stedenbouwkundig plan biedt daarmee een samenhangend perspectief voor natuurinclusief wonen en bewegen in één gebied. De hoofdinfrastructuur, de natuurinclusieve en waterbergingsmaatregelen en woonvelden worden in het bestemmingsplan vastgelegd; daarmee wordt het samenhangend perspectief planologische geborgd.

Het stedenbouwkundig plan Loverbosch fase III is separaat toegevoegd als Bijlage 1.

Bouwprogramma
Loverbosch III wordt een groene, toekomstbestendige en levendige wijk. Het plangebied heeft een oppervlakte van 101.210 m². Het bouwprogramma bestaat uit diverse woonvormen, te weten rijwoningen, twee-onder-een-kappers, vrijstaande woningen en appartementen. Er is sprake van een combinatie van sociale huur, sociale koop, vrije kavels en reguliere koop. Navolgende tabellen bevatten een overzicht van het bouwprogamma verdeeld naar reguliere en innovatieve woonvormen, sociaal en vrije sector woningen, type woningen en de fasering in het plan.

afbeelding "i_NL.IMRO.0743.BP02022002-OW01_0007.png"

3.2 Natuurinclusief ontwerpen

3.2.1 Ecologische uitgangspunten

Een inventarisatie en bepalen van de natuurdoelgroepen heeft de start gevormd van het proces als tegenhanger van het woningbouwprogramma en de versnellingsagenda woningbouw. Welke doelgroepen -planten en dieren- vormen de huidige en toekomstige mede 'bewoners' in het plangebied en welke eisen stellen deze doelgroepen aan hun leefgebied.

Als eerste is door STARO bv een natuurwaardenonderzoek uitgevoerd naar de aanwezige groen- en ecologische structuren in het plangebied en daarbuiten. Dit onderzoek maakt als bijlage integraal onderdeel uit van het stedenbouwkundig plan. In dit onderzoek zijn de natuurlijke potenties van het plangebied in beeld gebracht.

In de huidige situatie is alleen geschikt leefgebied voor flora en fauna aanwezig in het bosje binnen het plangebied en de oevers van de sloten. De overig intensief gebruikte akkers en grasland zijn niet geschikt als leefgebied voor flora en fauna, anders dan foeragerende (weide/akker)vogels en roeken. Uit dit onderzoek komt naar voren dat in het plangebied de natuurwaarden laag zijn dan wel grotendeels afwezig zijn. Een aantal algemene soorten zijn aanwezig. Ook voor deze algemene soorten geldt echter dat deze onder druk staan. De oostelijke rand van het plangebied wordt door de Das gebruikt als migratieroute. Als gevolg van het ontbreken van natuurwaarden en omdat tegenwoordig ook de vroeger heel algemene soorten onder druk staan is bij de ontwikkeling van de natuurinclusieve woonwijk gekozen voor de ontwikkeling van een basiskwaliteit natuur en voor het versterken van de migratieroute van de Das aan de oostelijke rand van het plangebied. De basiskwaliteit natuur, een term geïntroduceerd door de Vogelbescherming, staat voor een minimum niveau waar onze omgeving aan zou moeten voldoen om deze leefbaar te houden voor natuur en mens.

Voor de opzet van de natuurinclusieve woonwijk is een soortenmatrix opgesteld. In de soortenmatrix is opgenomen voor welke soorten potentieel leefgebied in het plangebied kan worden gecreëerd en welke maatregelen daarvoor nodig zijn. Daarbij is gekeken naar horizontale en verticale groenstructuren en het creëren van habitats in, om en aan gebouwen. De matrix helpt inzichtelijk te maken welke maatregelen mogelijk zijn om in het stedenbouwkundig plan te integreren en zo kunnen bijdragen aan een hogere biodiversiteit.

Uitgaande van de leefgebieden voor de basissoorten is een indeling op te stellen voor de gewenste voorzieningen t.a.v. habitatsfuncties, elk met een specifieke functie en inrichtingseisen namelijk:

- Voortplanting en verblijfplaats;

- Veiligheid;

- Foerageren.

Deze habitatsfuncties kunnen worden ondersteunt met diverse maatregelen en waarbij specifieke plantsoorten en inrichting een bepalende rol spelen. Naast de inrichtingseisen zijn er ook beheer maatregelen noodzakelijk om de instandhouding van de leefgebieden te waarborgen.

afbeelding "i_NL.IMRO.0743.BP02022002-OW01_0008.png"  
Soortenmatrix voor natuurinclusief ontwerpen  
3.2.2 Verkeerskundige uitgangspunten

De ontwikkelingen in de wereld gaan snel en sommige hebben invloed op de manier waarop wij ons verplaatsen. Apps op smartphones geven direct de snelste route naar de bestemming, videobellen maakt reizen soms helemaal overbodig en elektrische fietsen maken langere ritten ook met de fiets aantrekkelijk. In Loverbosch III anticiperen we op deze ontwikkelingen. De nieuwe wijk wordt groen en natuurinclusief ontworpen. Vanuit mobiliteit wordt hierbij aangesloten en blijft er meer ruimte over voor groen, wonen en ontmoetingen. SWECO heeft geadviseerd over de verkeerskundige uitgangspunten voor een natuurinclusieve woonwijk en onderzoek verricht naar parkeren en het ontsluiten van de woonwijk. Dit onderzoek maakt als bijlage integraal onderdeel uit van het stedenbouwkundig plan.

In Loverbosch III staat natuurinclusief ontwerp centraal. Om hier ruimte voor te creëren en een prettige, groene en levendige wijk te ontwikkelen, wordt voorrang gegeven aan duurzame en ruimte-efficiënte vervoersmiddelen, zoals lopen en de fiets. De vanzelfsprekendheid waarmee de auto dominant in het straatbeeld aanwezig is, dringen we in Loverbosch III terug. Loverbosch III wordt een groene wijk waarbij kinderen veilig op en bij de straat kunnen spelen.

In Loverbosch III staan fietsers en voetgangers centraal. Zij kunnen zich vrij, gemakkelijk en comfortabel door het gebied verplaatsen. De fiets is ook het aangewezen vervoersmiddel voor verplaatsingen richting het centrum van Asten, onderwijsinstellingen en werk. Fietsen kunnen vlakbij de woningen worden gestald. De gemeente Asten onderzoekt een nieuwe fietsroute tussen Loverbosch en het centrum via het 'evenemententerrein'.

Verkeer

De uitgangspunten voor de ontsluiting van gemotoriseerd verkeer is gebaseerd op:

  • Loverbosch III kan niet direct via de N279 worden ontsloten;
  • De Koestraat is een belangrijke fietsroute;
  • Gemotoriseerd verkeer rijdt zo snel mogelijk naar de stroomwegen (A67 of N279);
  • Ontsluiting is gericht op het noorden, omdat daar het meeste verkeer heen rijdt en dit de concurrentiepositie van de fiets voor verplaatsingen richt het centrum vergroot;
  • Calamiteitendiensten hebben twee uitvalswegen.

Parkeren

De auto is te gast in de wijk en wordt op strategische plekken geparkeerd. Zo blijft er meer ruimte over voor groen, woningbouw en mensen. De maximale afstand tussen woning en parkeerplaats is, conform het beleid, 100 meter. Door het geclusterd aanbieden van parkeerplaatsen wordt de wisselwerking tussen bewoners en bezoekers bevorderd. Geclusterde parkeervoorzieningen borgen dat voldoende parkeergelegenheid aanwezig is, maar dat minder op en langs de straten wordt geparkeerd. Ook zijn er minder zoekbewegingen nodig omdat de parkeerplaatsen bij elkaar zitten. De parkeerplaatsen worden zodoende op korte afstand van de woningen aangeboden. Dit zorgt voor een kleine drempel om de auto te pakken, terwijl de fiets wel bij huis beschikbaar is. Men maakt dan bewuster gebruik van de auto. Verschillende projecten laten zien dat dit een behoorlijk effect heeft op het autogebruik. De acceptabele loopafstand is volgens het Kennisinstituut voor Mobiliteitsbeleid 150 meter naar de woning en het CROW geeft aan dat bewoners circa 100 meter acceptabel vinden en bezoekers tot 250 meter. Dit komt overeen met ongeveer 1 minuut lopen. Bij de geclusterde parkeerplaatsen worden natuurinclusieve maatregelen doorgevoerd. Daarnaast maken geclusterde parkeerplaatsen het mogelijk om eventuele deelauto's en laadpalen effectief aan te bieden. Ook kunnen andere voorzieningen worden aangeboden op het parkeerterrein. Bijvoorbeeld een pakketkluis waar online bestellingen in afgeleverd kunnen worden. Hierdoor hoeven er minder (bestel)busjes door de wijk te rijden.

Parkeernorm

De parkeernormennota van de gemeente Asten komt uit 2016 en is gebaseerd op de CROW richtlijnen uit 2012. In de Nota staat: “Wanneer het CROW de parkeerkencijfers actualiseert wordt de Nota Parkeernormen hierop aangepast” (Nota Parkeernormen 2016, pagina 8). In 2018 heeft het CROW nieuwe richtlijnen gepubliceerd, deze zijn niet verwerkt in de parkeernormen nota van de gemeente.
Inmiddels zijn de trends en ontwikkelingen in de mobiliteitswereld doorgegaan. Zo is het bezit en gebruik van e-bikes toegenomen en concurreert ook op langere afstanden (tot circa 15 kilometer) met de auto, gebruikt men de auto bewuster, zijn er landelijke doelstellingen gekomen op het gebied van emissievrij vervoer en wordt in Loverbosch III zoveel mogelijk op geclusterde parkeerplaatsen geparkeerd waardoor de afstand tot de parkeerplaats en woning toeneemt en er zodoende een (kleine) drempel is om de auto te gebruiken. Vanwege de bepaling in het beleid en omdat Loverbosch III een groene wijk wordt waarbij niet teveel, maar ook niet te weinig parkeerplaatsen gerealiseerd worden, is het van belang dat er een zo realistisch mogelijke inschatting wordt gedaan voor het benodigd aantal parkeerplaatsen. Hiervoor heeft Sweco onderzoek uitgevoerd, dat de gemeente heeft overgenomen. De parkeervraag is gebaseerd op de meest actuele verwijzing van de CROW publicatie Ruimte, mobiliteit en stedenbouw en verkeer \ Toekomstbestendig parkeren – kencijfers parkeren en verkeersgeneratie. Geraadpleegd in mei 2021. De gemiddelde parkeernorm is, conform het beleid, bepalend. De zelfbouwwoningen en enkele twee-onder-een-kap woningen krijgen parkeren op eigen terrein. De positionering van de parkeerplaatsen op eigen terrein heeft impact op de manier waarop deze meegenomen mogen worden in de parkeerbalans. In navolgende tabel is dit weergegeven.

afbeelding "i_NL.IMRO.0743.BP02022002-OW01_0009.jpg"  
Omrekenwaardes parkeervoorzieningen  

Elektrische laadvoorzieningen

In CROW-publicatie 381 staan kencijfers voor laadpunten (prognose 2020) benoemd. Hierin wordt het aandeel laadpunten in de openbare ruimte afgeleid van het woonprofiel (duur, middel, goedkoop) en of de gemeente actief beleid heeft om elektrische vervoer te stimuleren. Loverbosch III valt in de categorie middel, vanwege de grote verscheidenheid aan type woningen en de gemeente Asten (nog) niet actief elektrisch vervoer stimuleert. Volgens het CROW zou dan 0,5% van het aantal parkeerplaatsen voorzien worden van een elektrisch laadpunt. Van de 291 parkeerplaatsen zouden er dan 2 laadpunten moeten komen. Let op dat één laadpaal meestal twee laadpunten heeft. Deze CROW publicatie komt echter uit 2018 en geeft een prognose voor 2020. Waarschijnlijk stijgt de vraag naar elektrische laadpunten de komende jaren sterk. In 2030 moeten alle nieuw verkochte auto's elektrisch zijn en volgens de Nationale Agenda Laadinfrastructuur is dan ongeveer één laadpaal per tien inwoners nodig. De gemeente Asten heeft (nog) geen actief beleid om elektrisch vervoer te stimuleren. De auto heeft een groot bereik en inwoners van Asten gebruiken de auto veel zo blijkt uit het verkeersonderzoek. Om de CO2-uitstoot toch terug te dringen is het wenselijk om in te zetten op elektrisch vervoer. Daarom is het aan te bevelen om de infrastructuur aan te leggen om te voorzien in circa één laadpunt per 10 inwoners. In het huidige Loverbosch is de huishoudgrootte gemiddeld 3,1. Waarschijnlijk is dit vergelijkbaar met Loverbosch III. Er komen zodoende, op basis van het huidige programma, circa 900 inwoners. Dat komt dan neer op 90 laadpunten.

3.2.3 Stedenbouwkundige uitgangspunten

Het ruimtelijk concept voor Loverbosch fase 3 is gebaseerd op een groene en ecologische structuur waar de stedenbouwkundige structuur zich naar voegt. Het stedenbouwkundig plan biedt daarmee een samenhangend perspectief voor natuurinclusief wonen en bewegen in één gebied. De ecologische en verkeerskundige uitgangspunten zijn vertaald naar een drie kernbiotopen, waarin de natuurdoelsoorten zich het best kunnen ontwikkelen en handhaven. De biotopen volgen daarbij de contouren van het bestaande landschap.

Voor de biotopen is, in combinatie met ecologische en landschappelijke structuren, een driedeling in het plangebied opgezet:

  • 1. Het Bosrijke biotoop, gelegen langs de provinciale weg op de hogere gronden en aansluitend aan de al aanwezige boselementen (oostelijke rand);
  • 2. Het kruidenrijke biotoop: gelegen op het lagere deel van het plangebied en vormt daarmee een overgang naar het 3e vegetatie type (binnengebied);
  • 3. Het waterrijke biotoop: dit gebied is gelegen in het lagere deel van het plangebied waarbij de oude beekloop aanleiding is voor de inrichting van het gebied (westelijke, noordelijke en zuidelijke rand).

afbeelding "i_NL.IMRO.0743.BP02022002-OW01_0010.jpg"  
Drie verschillende biotopen  

Op basis van de indeling in biotopen en de uitgangspunten voor natuur, parkeren en ontsluiting volgt een landschappelijk/ecologische inrichting:

  • Bestaande landschappelijke elementen handhaven en versterken;
  • Landschappelijke elementen uitbreiden;
  • Uitbreiden waterstructuur;
  • Inrichten volgens de drie biotopen;
  • Biotopen met elkaar verbinden;
  • Woonvelden binnen een robuust landschappelijk raamwerk.

afbeelding "i_NL.IMRO.0743.BP02022002-OW01_0011.png"
afbeelding "i_NL.IMRO.0743.BP02022002-OW01_0012.png"  
Landschappelijk/ecologische inrichting  

3.3 Stedenbouwkundig plan

3.3.1 Stedenbouwkundige opzet

In het stedenbouwkundig plan is uitgegaan van een opzet waarbij er zo veel als mogelijk gezocht wordt naar een relatie tussen het ruim opgezette landschappelijk raamwerk en de bebouwing. Vanwege het ruime landschappelijk raamwerk zijn de woonvelden intensiever verkaveld waarbij een differentiatie gezocht is in verschillende bebouwingstypologieën.

afbeelding "i_NL.IMRO.0743.BP02022002-OW01_0013.jpg"  
Stedenbouwkundige opzet  

Het stedenbouwkundig plan voorziet in een natuurinclusieve woonwijk voor zo'n 250 woningen. Op basis van het Strategisch huisvestingsplan Asten dient ook binnen Loverbosch te worden voorzien in een schoollocatie. De woonvelden in het noordelijk deel van Loverbosch fase 3 zoals opgenomen in het stedenbouwkundig plan zijn hiervoor in beeld.

afbeelding "i_NL.IMRO.0743.BP02022002-OW01_0014.png"  
Zoekgebied schoollocatie SHP  

Ook voor de schoollocatie zullen de natuurinclusieve uitgangspunten van het stedenbouwkundig plan gelden. Voor dit noordelijk deel zal te zijner tijd een aparte stedenbouwkundige uitwerking worden opgesteld en een apart planologisch traject worden doorlopen.

3.3.2 Landschappelijk casco

Het landschappelijke casco vormt de basis voor de openbare ruimte en de overgang tussen de woonvelden en toekomstige schoollocatie en de landschappelijke inrichting. Binnen het casco komen voorzieningen voor de mens en dier te liggen. Daarnaast vormt het casco het primaire leefgebied voor de aanwezige (en mogelijk toekomstige) flora en fauna. Binnen het plangebied worden de aanwezige structuren gebruikt voor het opzetten van de stedenbouwkundige inrichting. De ecologische verbindingen tussen de biotopen worden gevormd door een aantal migratieaders die in diverse richtingen door het plangebied lopen. Daarbij vormt een bosrijke rand langs de provinciale weg een ecologische verbinding van noord naar zuid, waarbij de bestaande boselementen aan de noordzijde en binnen het plangebied met elkaar worden verbonden. De robuuste migratieaders vormen naast de bosrand en waterranden het voornaamste, en gewenste foerageergebied binnen het plangebied. De aders kennen een oost west oriëntatie waarbij ze vanaf het bosrijke biotoop via het kruidenrijke biotoop naar het waterrijke biotoop lopen. Hierbij neemt de intensiteit van de beplantingselementen af van oost naar west en krijgt deze in toenemende mate een open karakter. Naast de robuuste migratieaders wordt het groen ook de woonvelden ingetrokken. Middels deze “groene vingers” ontstaat er ook binnen de woonvelden een rijk landschappelijk woonmilieu. De groene vingers zullen meer ingedeeld worden als gebruiksgroen met onder andere speelelementen.

afbeelding "i_NL.IMRO.0743.BP02022002-OW01_0015.jpg"  
Opzet voor de landschappelijke inrichting van het plangebied  

Bij het ontwerpen van de woonwijk Loverbosch fase III staat het “natuurinclusief” bouwen voorop. Dit betekent dat de natuur de basis vormt voor de inrichting van de wijk en dat het gebruik van de ruimte zich voegt naar de ontwerpregels van de natuur. Voor de 3 biotopen zijn ontwerpregels opgesteld op basis van de basisprincipes voor een natuurlijke inrichting, namelijk de 3 V's te weten: verblijfplaatsen, voedsel en veiligheid.

Bosrijk

Het bosrijke deel vormt het robuuste opgaande landschappelijke deel van het plangebied. Binnen dit deel wordt een grote soortenrijkdom voorzien van waaruit deze naar de overige biotopen kunnen migreren. Het bestaande bosschage is aangegrepen en aangevuld.

afbeelding "i_NL.IMRO.0743.BP02022002-OW01_0016.png"  
Opzet intichting deelgebied Bosrijk  

Kruidenrijk

Het kruidenrijke biotoop vormt het verbindende biotoop tussen het bosrijke en het waterrijke deel van het plangebied. Binnen dit biotoop zijn tevens de grootste delen van de migratieaders te vinden. Binnen het kruidenrijke landschap zullen voornamelijk bloem/kruidenrijke grassen, struiken en meer losstaande bomen te vinden zijn.

afbeelding "i_NL.IMRO.0743.BP02022002-OW01_0017.png"  
Opzet intichting deelgebied Kruidenrijk  

Waterrijk

Het waterrijke biotoop vormt het westelijke deel van het plangebied. Binnen het gebied wordt een wadilandschap(tijdelijk water) afgewisseld met de Beekerloop (permanent water) wat een rijk en divers biotoop vormt. Het plangebied wordt gecomplimenteerd middels solitairen, kruidengrassen, bes-dragende struiken, oeverbeplanting en natuurvriendelijke oevers.

afbeelding "i_NL.IMRO.0743.BP02022002-OW01_0018.png"  
Opzet intichting deelgebied waterrijk  

3.3.3 Watersysteem

Binnen Loverbosch fase III vervult water zowel een natuurlijke als waterbergende rol. De wijk wordt waterneutraal ontwikkeld. Het watersysteem is onder te verdelen in drie categorieën:

  • Watergangen;
  • Wadi's;
  • Natuurvriendelijke oevers;

De watergangen vormen de belending van het plangebied. Het verloop van de watergangen zal grotendeels intact en onveranderd blijven. Aan de westelijke zijde, langs de Koestraat, vindt een aanpassing aan de Beekerloop plaats. Deze wordt naar de ontweren van het waterschap iets verlegd waarmee deze in een ruimere bocht onder de Koestraat door zal lopen. Tevens zullen er enkele duikerconstructiesworden aangebracht om oversteken te realiseren.

In tegenstelling tot het doorstroomprofiel worden de oevers van de waterlopen juist extra breed, en flauw aangelegd, zodat een geleidelijke natuurlijke overgang ontstaat tussen land en beek.

Centraal in het plangebied is op de overgang tussen het kruidenrijke- en waterrijke biotoop het wadi-landschap gelegen. Hier vormt een stelsel van wadi's een referentie naar het oude tracé van de Beekerloop en biedt het tevens een water bufferende capaciteit. Het wadi-landschap wordt rijk en divers ingevuld met verschillende elementen die verwijzen naar zo wel het kruidenrijke biotoop als het waterrijke biotoop. De wadi's worden ingericht met diverse beplantingselementen waarmee ze natuurvriendelijk worden ingericht. Naast de waterhuishouding dient het wadi-landschap tevens als bufferend element tussen de hoofdader en de aangrenzende woonvelden waarmee de hoofdader meer solitair in het plangebied komt te liggen.

afbeelding "i_NL.IMRO.0743.BP02022002-OW01_0019.jpg"


afbeelding "i_NL.IMRO.0743.BP02022002-OW01_0020.jpg"
 
Waterstructuur  

3.3.4 Woonvelden

De uitgeefbaarheid van het totale gebied bedraagt circa 40%. Binnen de woonvelden is sprake van een intensievere verkaveling waarbij een differentiatie is gezocht in verschillende bebouwingstypologieën. Navolgende figuur bevat een schematisch overzicht van het uitgeefbaar gebied voor een mogelijke invulling. De basisprincipes van het stedenbouwkundig plan zijn doorvertaald in de verbeelding en regels, waarbij voor de concrete invulling van het plangebied een nadere uitwerking behoeft richting uitvoering.

afbeelding "i_NL.IMRO.0743.BP02022002-OW01_0021.png"  
Woonvelden per thema  

De wens is om een speels straatbeeld waarin geen lange doorlopende rijen ontstaan te creeëren. Tezamen zullen verspringingen in de rooilijnen plaats vinden waarmee strakke lijnen binnen het landschappelijk raamwerk worden voorkomen.

De concrete invulling met woongebouwen en aantallen woningen wordt in de bouwfase uiteindelijk bepaald. Het bestemmingsplan is hierop flexibel ingericht. Het woningbouwprogramma dient in ieder geval binnen de woonvelden te worden gerealiseerd. Daarbij wordt het plan gefaseerd gerealiseerd.

Fase 1 bestaat uit het realiseren van de verschillende woonvelden binnen het plangebied. Het plan biedt ruimte aan 155 woningen die rechtstreeks worden geregeld in de bouwregels van het plan.

Fase 2 voorziet in het realiseren van een aantal appartementencomplexen met in totaal maximaal 50 woningen. Door een maximale bouwhoogte van vier lagen te hanteren (drie woonlagen en één half verdiepte parkeerlaag) blijven de volumes van de appartementengebouwen beperkt. De maatvoering van de gebouwen is dusdanig dat deze gebouwen flexibel in te delen zijn en er een breed scala aan appartementen mogelijk is. De situering maakt het mogelijk deze te koppelen aan een geluidswerende functie t.b.v. geluid van de N279. De realisatie van de appartementen zal mogelijk worden gemaakt met een wijzigingsbevoegdheid.

De realisatie van het noordelijk deel van Loverbosch fase 3 volgt een apart traject. Naast woningbouw dient vanuit het SHP Asten een schoollocatie binnen Loverbosch te worden gerealiseerd. Het noordelijk deel van Loverbosch Fase 3 is hiervoor in beeld. Voor dit deel zal te zijner tijd een aanvullend stedenbouwkundige uitwerking worden opgesteld. Hierbij is het van belang dat het natuurinclusieve karakter van de wijk in acht genomen wordt en dat aansluiting hierop wordt gerealiseerd. Vervolgens zal ook een aparte planologische procedure worden doorlopen om de mogelijke schoollocatie en het resterende woningbouwprogramma te realiseren.

3.3.5 Verkeerstructuur

Sweco heeft een 'Mobiliteitsonderzoek Loverbosch III - Duurzame bereikbaarheid in een natuurinclusieve wijk' opgesteld met een beschrijving van de mobiliteitsmaatregelen die bij de ontwikkeling van Loverbosch III horen. Het rapport is separaat toegevoegd als Bijlage 2 Mobiliteitsonderzoek

De verkeerstructuur kent een hoofdontsluiting, veldontsluiting en langzaam verkeergebieden in de vorm van woonerven. De hoofdontsluiting is de centrale ader en loopt van noord naar zuid door het plangebied. Deze krijgt aansluiting op de Koestraat. De hoofdader vormt de gebiedsontsluiting van Loverbosch fase III en mogelijke toekomstige fasen en kent derhalve een groot aantal verkeersbewegingen. Om het natuurinclusief woonmilieu te realiseren is gekozen de ader vrij te positioneren ten midden van het wadi-landschap. Tevens voorkomt de ligging met aan weerszijden een wadi ongewenst langsparkeren. Om te voorkomen dat de ader een barrière wordt binnen het plangebied voor zowel de bewoners als de dieren zullen

er verschillende voorzieningen moeten worden getroffen zoals:

  • Faunapassages
  • Voldoende oversteekplaatsen
  • Goede landschappelijke inpassing

Vanaf de hoofdontsluiting lopen de veldontsluitingen. Deze veldontsluitingen vormen de primaire ontsluitingen van de woonvelden. Ze hebben een smaller straatprofiel waarmee de impact op de openbare ruimte beperkt blijft. Naast het smallere straatprofiel zal een andere materialisatie ertoe bijdragen de differentiatie in ontsluitingen weer te geven. Aangesloten op de veldontsluitingen zijn de trottoirs gesitueerd. Deze krijgen een natuurlijke uitstraling middels een goede afstemming in materialisatie met het betreffende biotoop waar deze in ligt. Op meerdere plekken en aansluitend aan c.q. gelegen in de groene aders in de nieuwe wijk is gekozen voor een extra breed trottoir dat ook toegankelijk is voor de auto om bijvoorbeeld boodschappen uit te laden alsmede voor hulp, bezorg- en verhuisdiensten; het gaat om zogenaamde shared spaces. Deze gelden als woonerven waarbij de auto nadrukkelijk te gast is. In het straatprofiel zullen maatregelen getroffen worden welke moeten voorkomen dat men langs deze brede trottoirs kan parkeren.

Fietsstructuur

Binnen de woonvelden worden de gebieden als woonerf aangeduid waarmee de voetganger en fietser hier centraal staan en bewoners kunnen flaneren door het dwaalmilieu dat hier te vinden is, de auto is te gast. Gekoppeld aan de woonerven en het dwaalmilieu is centraal door het plangebied van noord naar zuid een fietsroute gesitueerd die is aangesloten op de fietsroute naar het centrum. De fietsroute buigt af richting de Koestraat waar deze verder naar het noorden zal lopen. Aan de zuidzijde sluit de fietsroute weer aan op de hoofdontsluiting en vervolgens op de Koestraat aan de zuidzijde.

afbeelding "i_NL.IMRO.0743.BP02022002-OW01_0022.png"  
Fietsinfrastructuur rondom het plangebied  

Verkeersontsluiting

De nieuwe ontsluiting van Loverbosch III sluit via de Linnen aan op de Dille. De Dille wordt deel ontlast door een extra ontsluiting richting het zuiden te realiseren.

Deze ontsluiting loopt via het zuidelijke deel van de Koestraat naar de Voordeldonk. Het noordelijke deel van de Koestraat wordt afgesloten voor doorgaand gemotoriseerd verkeer ter hoogte van de hoofdontsluiting, met uitzondering van landbouwverkeer. Hierdoor neemt de hoeveelheid gemotoriseerd verkeer op dit gedeelte van de Koestraat af en wordt de route voor fietsers veiliger. Ook de Stegen wordt bij deze variant rustiger. De Stegen is onderdeel van een recreatief fietsroutenetwerk.

De hoofdontsluiting van Loverbosch III sluit iets ten noorden van de Linnen aan op de Dille. Hiermee wordt de Linnen en het aangrenzende park ontzien van een groei van gemotoriseerd verkeer. De Linnen wordt een fiets- en voetgangersverbinding richting Loverbosch III.

afbeelding "i_NL.IMRO.0743.BP02022002-OW01_0023.png"  
Verkeersontsluiting  

3.3.6 Parkeren

Het parkeren wordt voornamelijk gerealiseerd met parkeerkoffers en op eigen terrein binnen de woonvelden. Hiermee wordt parkeren in het straatbeeld beperkt. De koffers worden groen aangekleed en uitgevoerd in een waterdoorlatende elementverharding waarmee het landschappelijke karakter van de wijk ook in de koffers beleefd wordt en blijft het natuurlijke karakter van de wijk de boventoon houden. Middels een centrale ligging van de koffers blijven deze toegankelijkheid voor elke bewoner. Het langsparkeren wordt tot een minimum beperkt en krijgt een dusdanige inrichting dat deze geen afbreuk doet aan het natuurlijke karakter van de wijk. Tevens wordt het straatprofiel dusdanig ingericht dat “wildparkeren” ontmoedigd wordt.

afbeelding "i_NL.IMRO.0743.BP02022002-OW01_0024.png"  
Parkeerbalans  

De meeste parkeerplaatsen worden gerealiseerd in de openbare ruimte. Dat houdt in dat parkeerplaatsen door verschillende voorzieningen gebruikt kunnen worden. De parkeervraag verschilt namelijk per functie per moment van de dag en week. De parkeerplaatsen op eigen terrein worden niet meegenomen bij dubbelgebruik.

De fiets is het vervoersmiddel dat bij de woning aanwezig is en door een snelle en comfortabele fietsverbinding richting het centrum en een deel van de Koestraat als fietspad te gebruiken, krijgt de fiets een impuls in Asten. Hierdoor wordt de fiets ook vaker gebruikt. Hierdoor is het mogelijk om meer ruimte voor groen te creëren. Om deze reden wordt in eerste instantie 75% van de parkeerplaatsen aangelegd die de richtlijnen van het CROW voorschrijft. Voor 25% van de parkeerplaatsen wordt ruimte gereserveerd maar nog niet ingericht als parkeerplaats. Mocht er in de toekomst blijken dat er te weinig parkeerplaatsen zijn, dan kunnen er parkeerplaatsen bijkomen. Mocht het blijken dat dit inderdaad niet nodig is, dan blijft er meer groen over in de wijk voor iedereen om van te genieten.

Parkeerbalans

De parkeerplaatsen worden geclusterd aangeboden op maximaal 100 meter vanaf de woning. Op een aantal locaties worden ook parkeerplaatsen aangeboden langs de straat. Bij de appartementen worden de parkeerplaatsen onder het gebouw gerealiseerd. Omdat de parkeerplaatsen zoveel mogelijk geclusterd worden aangeboden, wordt de parkeerbalans gemaakt voor verschillende delen van het plangebied. Het plangebied wordt ten opzichte van de parkeerclusters verdeeld in woonclusters. Zie onderstaand figuur voor de verdeling van de woonclusters.

afbeelding "i_NL.IMRO.0743.BP02022002-OW01_0025.jpg"  
Schematische verdeling in woonclusters van het plangebied  

Per wooncluster is de parkeerbehoefte en het parkeeraanbod (binnen 100 m) in beeld gebracht. Zie onderstaande tabel voor de uitkomsten van de parkeerbalans, waaruit volgt dat wordt voorzien in voldoende parkeergelegenheden binnen het plangebied.

afbeelding "i_NL.IMRO.0743.BP02022002-OW01_0026.jpg"  
Parkeren per wooncluster  

3.3.7 Civieltechnische uitwerking voor openbare ruimte

Het stedenbouwkundig plan is door de gemeente Asten civieltechnisch nader uitgewerkt in een voorlopig ontwerp Civieltechnische uitwerking. Hierbij is rekening gehouden met ondergrondse infrastructuur, bereikbaarheid van de brandweer, de wateropgave en de parkeeropgave. De basisprincipes van het stedenbouwkundig plan zijn door vertaald, waarbij in het voorlopig ontwerp civieltechnische uitwerking ondergeschikte grensaanpassingen van de functionele onderdelen van het plan zijn doorgevoerd. Dit VO civieltechnische uitwerking vormt de basis voor het juridische deel van het bestemmingsplan, namelijk de verbeelding en de regels.

afbeelding "i_NL.IMRO.0743.BP02022002-OW01_0027.jpg"  
VO civieltechnische uitwerking met woonvelden en parkeren openbare ruimte  

3.4 Beeldkwaliteitsplan

Voor de ontwikkeling van Loverbosch fase III is een beeldkwaliteitsplan opgesteld. Dit beeldkwaliteitsplan maakt als bijlage onderdeel uit van dit bestemmingsplan. Het beeldkwaliteitsplan geeft richting aan de stedenbouwkundige, architectonische en landschappelijke uitwerking van Loverbosch fase III. Het dient ter inspiratie voor architecten, zelfbouwers en de inrichters van de openbare ruimte. Tevens dient het als leidraad voor de gemeente voor de beoordeling van omgevingsvergunningen en de welstandsbeoordeling.

Vanuit het streven naar een natuurinclusieve woonwijk dient te worden voorzien in een basiskwaliteit openbare èn gebouwde omgeving voor het ontwikkelen en stimuleren van natuur en biodiversiteit. Om dit te borgen is in het beeldkwaliteitsplan voor Loverbosch fase III specifiek ingegaan op natuurinclusief bouwen met specifieke eisen en maatregelen, naast reguliere beeldkwalitatieve uitgangspunten.

In het beeldkwaliteitsplan zijn de ambities en uitgangspunten van het stedenbouwkundig plan doorvertaald in beeldkwaliteitseisen. Hiermee biedt dit document handvatten voor de vervolgstappen van het ontwikkelingsproces van de derde fase van Loverbosch, zoals de uitwerking van concrete bouwplannen en inrichtingsplannen buitenruimte. In het beeldkwaliteitsplan zijn handvatten opgenomen voor:

  • Beeldentaal voor de bebouwing voor:
    • 1. Hoofdmassa
    • 2. Situering op kavel
    • 3. Kapvormen
    • 4. Zichtbaarheid
    • 5. Hoekoplossingen
    • 6. Materiaal- en kleurgebruik
    • 7. Gevelopeningen
    • 8. bijgebouwen
  • Parkeren; het parkeren in parkeerkoffers wordt uitgevoerd in grasbeton tegels. Het parkeren wordt waar mogelijk aangevuld met beplanting en bomen voor een meer landschappelijke aankleding en schaduwwerking in de warme zomerperiode.
  • Natuurinclusie maatregelen ten aanzien van:
    • 1. Groene daken
    • 2. Gevelgroen
    • 3. Nestgelegenheden in en aan bebouwing
    • 4. Overgang van prive naar openbare ruimte
    • 5. Natuurlijke erfscheidingen tussen privé en openbare ruimte

afbeelding "i_NL.IMRO.0743.BP02022002-OW01_0028.png"  

afbeelding "i_NL.IMRO.0743.BP02022002-OW01_0029.png"  

afbeelding "i_NL.IMRO.0743.BP02022002-OW01_0030.png"  
Impressies beeldkwalitatieve maatregelen  

3.5 Natuurinclusieve inrichtingsmaatregelen

Voor de woonwijk Loverbosch fase III staat het “natuurinclusief” bouwen voorop. Dit betekent dat de natuur de basis vormt voor de inrichting van de wijk en dat het gebruik van de ruimte zich voegt naar de ontwerpregels van de natuur.

3.5.1 Bosrijk

Binnen bosrijk wordt gestreefd naar voldoende bomen (besdragend) struiken en struwelen aanplant tezamen met een mix van grassen en kruiden voor nestmateriaal. Voor de vlindersoorten is een mantelzoom vegetatie van belang. Voor de diverse zoogdieren is het van belang voldoende rustige plekken te creëren. Het niet toegankelijk maken van het bestaande bosschage voor mensen kan hieraan bijdragen. Het toepassen van een hogere plantdichtheid en gemengde brede hagen liefst met wintergroen draagt hieraan bij. Daarnaast aanplanten van inheemse grassen, kruidige planten en inheemse bomen. Struiken en struwelen kunnen in lijnen worden aangeplant waar mogelijk. Incidenteel kunnen er op strategische plekken takkenrillen worden geplaatst en op de overgang naar bos kan er gekozen worden voor korter natuurlijk grasland. Verder is tijdens het ecologisch onderzoek geconstateerd dat deze zijde van het plangebied momenteel gebruikt wordt als migratieroute voor de das welke van noordelijke richting naar zuidelijke richting beweegt langs de N279. Middels bovengenoemde maatregelen wordt ook de migratieroute van de das verrijkt.

Gebouw- en perceelsgebonden maatregelen

Ook de inrichting van de uit te geven kavels en het ontwerp van de te bouwen woningen dienen te voldoen aan de ontwerpregels van de natuur:

  • Toepassen van klimaat regulerende maatregelen als dakoverstekken en veranda's voor schaduwwerking.
  • Stimuleren van het aanbrengen van dak- en gevelgroen.
  • Stimuleren van het zo min mogelijk toepassen van verharding in de voortuinen.
  • Erfafscheidingen van natuurlijke materialen waarbij voorzieningen worden opgenomen voor huisvesting zoogdieren vogels en insecten. Bijvoorbeeld aanbrengen wilgentenen, houtschors korven e.d.
  • Gebruik van natuurlijke bouwmaterialen, baksteen en hout.
  • Panden binnen de bosrand dienen een groen dak te krijgen.
  • Het gebruik van gemetselde erfafscheidingen en schuttingen is onwenselijk en derhalve niet toegestaan.
  • Om het leefgebied van grondgebonden zoogdieren te vergroten kunnen er erfafscheidingen worden toegepast welke een opening aan de grond hebben.
3.5.2 Kruidenrijk

Binnen kruidenrijk wordt gestreefd naar aanplanten van inheemse grassen, kruiden, bloemenvelden, struiken en solitaire bomen. Bloeiende kruiden, struiken en bomen zijn van groot belang voor de insecten, vlinder en bijenstand binnen het plangebied. Voor vleermuizen en de Gierzwaluw worden (kunstmatige)nestgelegenheden worden geplaatst.

Gebouw- en perceelsgebonden maatregelen

Ook de inrichting van de uit te geven kavels en het ontwerp van de te bouwen woningen dienen te voldoen aan de ontwerpregels van de natuur:

  • Toepassen van klimaat regulerende maatregelen als dakoverstekken en veranda's voor schaduwwerking.
  • Stimuleren van het aanbrengen van dak- en gevelgroen.
  • Stimuleren van het zo min mogelijk toepassen van verharding in de voortuinen.
  • Erfafscheidingen van natuurlijke materialen waarbij voorzieningen worden opgenomen voor huisvesting zoogdieren vogels en insecten. Bijvoorbeeld aanbrengen wilgentenen, houtschors korven e.d.
  • Gebruik van natuurlijke bouwmaterialen, baksteen en hout.
  • Het gebruik van gemetselde erfafscheidingen en schuttingen is onwenselijk en derhalve niet toegestaan.

Om het foerageergebied van grondgebonden zoogdieren te vergroten kunnen er erfafscheidingen worden toegepast welke een opening aan de grond hebben.

3.5.3 Waterrijk

Het is van belang een gezonde mix te hebben van beschutte stukken water en open stukjes water. De natuurvriendelijke oevers worden uitgevoerd volgens het principe van natuurvriendelijk oeverontwerp. Dit betekent dat er een geleidelijke overgang is tussen oever en water. Deze is vervolgens verdeeld over een aantal zoneringen elk met eigen sortiment en functie. In de 'Handreiking natuurvriendelijke oevers' is dit principe verder uitgediept en toegelicht. Kale kort gemaaide wadi's zijn voor de biodiversiteit minder wenselijk. Natuurvriendelijke wadi's genieten de voorkeur. Het opgaand groen bestaat uit inheemse struiken en bomen welke aansluiting vinden op de bestaande Laanstructuren langs de Koestraat.

Gebouw- en perceelsgebonden maatregelen

Ook de inrichting van de uit te geven kavels en het ontwerp van de te bouwen woningen dienen te voldoen aan de ontwerpregels van de natuur:

  • Toepassen van klimaat regulerende maatregelen als dakoverstekken en veranda's voor schaduwwerking.
  • Stimuleren van het aanbrengen van dak- en gevelgroen.
  • Stimuleren van het zo min mogelijk toepassen van verharding in de voortuinen.
  • Erfafscheidingen van natuurlijke materialen waarbij voorzieningen worden opgenomen voor huisvesting zoogdieren vogels en insecten. Bijvoorbeeld aanbrengen wilgentenen, houtschors korven e.d
  • Gebruik van natuurlijke bouwmaterialen, baksteen en hout.
  • Het gebruik van gemetselde erfafscheidingen en schuttingen is onwenselijk en derhalve niet
  • toegestaan.
3.5.4 Algemene natuurinclusieve maatregelen

Naast de maatregelen die volgen uit de biotoopindeling van het Loverbosch fase III zijn ook een aantal maatregelen opgenomen in het stedenbouwkundig plan die voor het gehele plangebied gelden om tot een natuur inclusieve woonwijk te komen.

  • Groene gevels en daken in en op gebouwen
  • Nestgelegenheden voor vogels en vleermuizen in gebouwen
  • Realiseren van Insectenhotels en takkenrillen

De geformuleerde ontwerpregels voor de verschillende biotopen zijn nader uitgewerkt in een puntensysteem Bijlage 4 Puntentelling natuurinclusief bouwen. Dit puntensysteem maakt onderdeel uit van de bouwregels, waarmee de gebouw- en perceelgebonden natuurinclusieve maatregelen planologisch zijn geborgd in de bouw- en gebruiksregels. Daarnaast geldt dat het stedenbouwkundig plan als bijlage onderdeel uitmaakt van de planregels en wordt in de regels geborgd dat de doelstelling en benoemde natuurinclusieve maatregelen voor de openbare ruimte zijn geborgd in het plan.

Hoofdstuk 4 Beleid & regelgeving

4.1 Nationaal beleid

4.1.1 Nationale Omgevingsvisie (NOVI)

Op 11 september 2020 is de Nationale Omgevingsvisie (NOVI) vastgesteld. Deze visie vervangt de Structuurvisie Infrastructuur en Ruimte en biedt een duurzaam perspectief voor de Nederlandse leefomgeving. Hiermee kan ingespeeld worden op de grote uitdagingen die voor ons liggen. De NOVI biedt een kader, geeft richting en maakt keuzes waar dat kan. Tegelijkertijd is er ruimte voor regionaal maatwerk en gebiedsgerichte uitwerking. Omdat de verantwoordelijkheid voor het omgevingsbeleid voor een groot deel bij provincies, gemeenten en waterschappen ligt, kunnen inhoudelijke keuzes in veel gevallen het beste regionaal worden gemaakt. Met de NOVI zet de Rijksoverheid een proces in gang waarmee keuzes voor onze leefomgeving sneller en beter gemaakt kunnen worden. Aan de hand van een toekomstperspectief op 2050 brengt de NOVI de langetermijnvisie in beeld. Op nationale belangen wil het Rijk sturen en richting geven. Die komen samen in vier prioriteiten:

  • 1. Ruimte voor klimaatadaptatie en energietransitie;
  • 2. Duurzaam economisch groeipotentieel;
  • 3. Sterke en gezonde steden en regio's;
  • 4. Toekomstbestendige ontwikkeling van het landelijk gebied.

De druk op de fysieke leefomgeving in Nederland is zo groot, dat belangen soms botsen. Het streven vanuit de NOVI is combinaties te maken en win-win situaties te creëren. Soms zijn er scherpe keuzes nodig en moeten belangen worden afgewogen. Hiertoe gebruikt de NOVI drie afwegingsprincipes:

  • 1. Combinaties van functies gaan voor enkelvoudige functies: In het verleden is scheiding van functies vaak te rigide gehanteerd. Met de NOVI wordt gezocht naar maximale combinatiemogelijkheden tussen functies, gericht op een efficiënt en zorgvuldig gebruik van de ruimte;
  • 2. Kenmerken en identiteit van een gebied staan centraal: wat de optimale balans is tussen bescherming en ontwikkeling, tussen concurrentiekracht en leefbaarheid, verschilt van gebied tot gebied. Sommige opgaven en belangen wegen in het ene gebied zwaarder dan in het andere;
  • 3. Afwentelen wordt voorkomen: het is van belang dat de leefomgeving zoveel mogelijk voorziet in mogelijkheden en behoeften van de huidige generatie van inwoners zonder dat dit ten koste gaat van die van toekomstige generaties.

De NOVI laat zich niet specifiek uit over relatief kleinschalige ontwikkelingen, waaronder deze ontwikkeling gerekend wordt. Het betreft een ontwikkeling waarbij geen nationale belangen in het geding zijn en er is geen sprake van enige belemmering met betrekking tot de prioriteiten zoals verwoord in de NOVI.

Beoordeling/ betekenis voor het plangebied

Met het plan wordt aangesloten bij de ambitie van het rijk om ontwikkelingen in samenhang te bekijken, en een en veilige en gezonde fysieke leefomgeving en een goede omgevingskwaliteit te bereiken en in stand te houden. Voorliggend plan voorziet in een natuurinclusieve woonwijk ter bevordering van groen en natuur in de woonomgeving. Dit heeft een positief effect op de gezondheid en bevordert daarmee de leefbaarheid. Zowel de natuurlijke als wateropgave is gekoppeld aan de aanwezige natuurlijke elementen en de bodemopbouw met aanwezige hoogtes en nattere laagtes in het plangebied. Met de ontwikkeling wordt zodoende bijgedragen aan een aantrekkelijke, veilige en gezonde woon- en leefomgeving in Asten.

Met de ontwikkeling wordt een nieuw woonmilieu toegevoegd dat complementair is aan de overige woonwijken in Asten. Op deze manier wordt gewerkt aan een toekomstbestendige invulling van het gebied. Geconcludeerd wordt dat de NOVI geen belemmering vormt voor de in dit plan besloten ontwikkeling.

4.1.2 Besluit algemene regels ruimtelijke ordening

De wetgever heeft in de Wro, ter waarborging van nationale en provinciale belangen, de besluitmogelijkheden van lagere overheden begrensd. Indien nationale of provinciale belangen dat met het oog op een goede ruimtelijke ordening noodzakelijk maken, kunnen bij of krachtens Algemene Maatregel van Bestuur (AMvB) respectievelijk provinciale verordening regels worden gesteld omtrent de inhoud van bestemmingsplannen.

In het Besluit algemene regels ruimtelijke ordening (Barro), ook wel bekend als de Algemene Maatregel van Bestuur (AMvB) Ruimte, zijn 13 nationale belangen opgenomen die juridische borging vereisen. Het Barro is gericht op doorwerking van de nationale belangen in gemeentelijke bestemmingsplannen en is deels opgebouwd uit hoofdstukken afkomstig van de 'oude' ontwerp AMvB Ruimte die in 2009 al aan inspraak is onderworpen, en deels uit nieuwe onderwerpen.

Het Barro is op 30 december 2011 deels in werking getreden en met enkele onderwerpen aangevuld per 1 oktober 2012. Het betreft de volgende nationale belangen uit de SVIR: 1) Rijksvaarwegen, 2) Project Mainportontwikkeling Rotterdam, 3) Kustfundament, 4) Grote Rivieren, 5) Waddenzee en waddengebied, 6) Defensie, 7) Hoofdwegen en landelijke spoorwegen, 8) Elektriciteitsvoorziening, 10) Ecologische hoofdstructuur, 11) Primaire waterkeringen buiten het kustfundament, 12) IJsselmeergebied (uitbreidingsruimte) en 13) Erfgoederen van uitzonderlijke universele waarde.

De opname van het nationale belang 9) 'Buisleidingen van nationaal belang voor het vervoer van gevaarlijke stoffen' in het Barro is uitgesteld in afwachting van de behandeling van de Structuurvisie Buisleidingen.

Beoordeling/ betekenis voor het plangebied

In het plangebied zijn geen nationale belangen in het geding. Het plangebied is niet gelegen in of nabij een gebied waarin het Rijk een ander nationaal belang heeft aangewezen. Derhalve heeft het Barro geen consequenties voor voorliggend plan.

4.1.3 Ladder duurzame verstedelijking

In de Structuurvisie Infrastructuur en Ruimte is de 'Ladder voor duurzame verstedelijking' geïntroduceerd. Deze Ladder is ingericht voor een zorgvuldige afweging en transparante besluitvorming bij nieuwe stedelijke ontwikkelingen, zodat de ruimte in stedelijke gebieden optimaal wordt benut. De Ladder is per 1 oktober 2012 verankerd in het Besluit ruimtelijke ordening (artikel 3.1.6, tweede lid Bro). Kern van de Ladder is dat de stedelijke ontwikkeling op een locatie pas doorgang kan vinden als op regionaal niveau is aangetoond dat er daadwerkelijk een actuele behoefte aan is en dat de beschikbare ruimte in het stedelijk gebied optimaal wordt benut. Van belang daarbij is of elders in de regio een soortgelijke ontwikkeling is gepland die reeds in de behoefte kan voorzien.

In juli 2017 is het Bro gewijzigd, waarbij de afzonderlijke treden zijn losgelaten. Artikel 3.1.6, tweede lid Bro luidt nu als volgt: “De toelichting bij een bestemmingsplan dat een nieuwe stedelijke ontwikkeling mogelijk maakt, bevat een beschrijving van de behoefte aan die ontwikkeling, en, indien het bestemmingsplan die ontwikkeling mogelijk maakt buiten het bestaand stedelijk gebied, een motivering waarom niet binnen het bestaand stedelijk gebied in die behoefte kan worden voorzien.”

Indien sprake is van een zogenoemde 'stedelijke ontwikkeling' dient een afweging plaats te vinden aan de hand van de treden van voornoemde ladder. Op grond van artikel 3.1.6, lid 2 van het Besluit ruimtelijke ordening (Bro) dient een onderbouwing te worden opgenomen in de toelichting op een bestemmingsplan, waaruit blijkt:

  • 1. dat het plan - voor zover dat een nieuwe stedelijke ontwikkeling mogelijk maakt - voorziet in een behoefte aan die ontwikkeling;
  • 2. indien die ontwikkeling mogelijk wordt gemaakt buiten het bestaand stedelijk gebied, niet in die behoefte kan worden voorzien binnen bestaand stedelijk gebied;


Alvorens te toetsen aan voornoemde tredes van de ladder, dient te worden vastgesteld of sprake is van een stedelijke ontwikkeling. Dit begrip is in artikel 1.1.1 Bro gedefinieerd als 'ruimtelijke ontwikkeling van een bedrijventerrein of zeehaventerrein, of van kantoren, detailhandel, woningbouwlocaties of andere stedelijke voorzieningen (artikel 1.1.1 lid 1 sub i van het Bro). Het plan voorziet in het realiseren van een woningbouwlocatie, waardoor sprake is van een stedelijke ontwikkeling als bedoeld in het Bro.

Beoordeling/ betekenis voor het plangebied

Door Stec Groep is een toets aan de 'Ladder voor duurzame verstedelijking' verricht. Het rapport 'Laddertoets Loverbosch fase III' is als Bijlage 3 de conclusie gekomen dat het woningbouwplan Loverbosch fase III voorziet in een behoefte. Alternatieven binnen bestaand stedelijk gebied kunnen – ook na onherroepelijke vaststelling van Loverbosch Fase III – nog worden ontwikkeld. De behoefte is hiervoor groot genoeg. Woningbouw op de beoogde locatie leidt daarmee niet tot onaanvaardbare ruimtelijke effecten.

4.2 Provinciaal beleid

4.2.1 Structuurvisie Ruimtelijke Ordening 2014

Op 19 maart 2014 is de structuurvisie Ruimtelijke Ordening 2014 (SVRO) in werking getreden. Deze structuurvisie is een actualisatie van de visie die in 2010 werd vastgesteld. Belangrijke beleidswijzigingen hebben betrekking op de realisatie van natuur en de transitie naar zorgvuldige veehouderij in Brabant. De provincie heeft in de structuurvisie een aantal belangrijke beleidswijzigingen doorgevoerd. Hieronder vallen beleidswijzigingen die betrekking hebben op de realisatie van natuur en de transitie naar een zorgvuldige veehouderij in de provincie Brabant. In de Structuurvisie ruimtelijke ordening geeft de provincie aan hoe zij omgaat met de ruimtelijke opgave voor de periode tot 2025, met een doorkijk naar 2040. Het doel is een goede woon-, werk- en leefomgeving voor de inwoners en bedrijven in Brabant.

Noord-Brabant heeft de ambitie om een goede mix van wonen, werken en voorzieningen te creëren. De leefbaarheid in woonmilieus moet van voldoende kwaliteit zijn. Dynamische stadscentra, vitale plattelandskernen, eigen identiteit en regionale afstemming zijn enkele uitgangspunten. Daarnaast dienen er voldoende veilige en goed bereikbare werkplekken te zijn voor de bevolking. Steden moet aantrekkelijk blijven voor diverse bevolkingsgroepen en dienen garant te staan voor het aanbieden van (bovenlokale) voorzieningen.

In de Structuurvisie Ruimtelijke Ordening 2014 heeft de provincie een aantal structuren opgenomen, te weten de groenblauwe structuur, het landelijk gebied, de stedelijke structuur en de infrastructuur. Binnen deze structuren is een aantal perspectieven onderscheiden.


Beoordeling/ betekenis voor het plangebied

Het plangebied is aangeduid als 'Zoekgebied verstedelijking' en 'Accentgebied agrarische ontwikkeling'. De keuze voor de zoekgebieden verstedelijking is tot stand gekomen na een integrale afweging vanuit de gebiedskwaliteiten (hanteren lagenbenadering) samen met gemeenten en waterschappen.

De aanduiding 'zoekgebied verstedelijking' geeft aan dat het transformeren van buitengebied naar stedelijk gebied (wonen, werken, voorzieningen, stedelijk groen) afweegbaar is als dat nodig is om in de stedelijke ruimtebehoefte te voorzien.

Het planvoornemen, een uitwerking van het Masterplan Loverbosch, voorziet binnen het zoekgebied voor verstedelijking in de vraag naar uitbreidingsmogelijkheden voor de kern Asten om te voldoen aan de kwantitatieve en kwalitatieve woningbouwbehoefte. Dit wordt in navolgende paragrafen nader onderbouwd.

4.2.2 Brabantse Omgevingsvisie

Net als het Rijk beschikt de provincie Noord-Brabant vooruitlopend op de inwerkingtreding van de Omgevingswet over een omgevingsvisie: de Brabantse Omgevingsvisie. Deze visie is in december 2018 vastgesteld door provinciale staten van Noord-Brabant. De Brabantse Omgevingsvisie bevat de ambities van de provincie Noord-Brabant voor de ontwikkeling van de fysieke leefomgeving in de periode tot 2050. Daarbij stelt zij tussendoelen voor 2030, maar legt nu nog niet vast hoe zij die doelen wil bereiken. De provincie wil daarmee ruimte bieden voor inbreng vanuit partijen en disciplines. Om hiermee aan de slag te gaan is volgens de provincie een verdere uitwerking van de ambities nodig in de vorm van programma's.

De Brabantse Omgevingsvisie zet in op behouden en verdere ontwikkeling van een veilige, gezonde en duurzame fysieke leefomgeving. Daarbij richt de provincie zich op vier hoofdopgaven:

  • De energietransitie.
  • Ontwikkeling van een Noord-Brabant dat om kan gaan met klimaatverandering.
  • Noord-Brabant als slimme netwerkstad.
  • Behouden en verder ontwikkelen van een concurrerende en duurzame economie.


Net als het Rijk streeft de provincie met de Brabantse Omgevingsvisie naar een manier van het benaderen van initiatieven in de fysieke leefomgeving die uitgaat van vertrouwen en het gezamenlijk met publieke en private partijen zoeken naar mogelijkheden om een initiatief te realiseren. Daarbij moeten initiatieven een bijdrage leveren aan de kwaliteit van de fysieke leefomgeving.

Om te komen tot de slimme netwerkstad richt de provincie zich op duurzame verstedelijking. Zij wil daarin richting geven door middel van het bevorderen van regionale afspraken, het sturen op zorgvuldig ruimtegebruik en het periodiek opstellen van prognoses. Verder wil zij een actieve rol spelen om beweging te stimuleren (o.a. door samen te werken bij gebiedsopgaven en bij het opstellen van uitvoeringsprogramma's) en gewenste ontwikkelingen mogelijk te maken.

Beoordeling/ betekenis voor het plangebied

De planontwikkeling voorziet in een uitbreiding van de woonfunctie tussen de Koestraat en provinciale weg N279, waarbij aan de oostzijde in een duurzame afronding van het woongebied van de kern Asten wordt voorzien door middel van een noord-zuid georiënteerde natuurlijke inrichting parallel aan de N279. Door de voorziene invulling van dit perceel wordt dientengevolge aangesloten bij de reeds bestaande stedelijke structuur en infrastructuur, e.e.a. zoals in het oorspronkelijke stedenbouwkundig plan voor de totale ontwikkeling van Loverbosch opgenomen. In en rondom de kern van Asten zijn er weinig tot geen alternatieven voor een dergelijk project. Binnenstedelijk zijn er geen locaties om in de woningbouwbehoefte te voorzien.

De ontwikkeling is gericht op een kwalitatief natuurinclusieve woonwijk om de leefbaarheid te bevorderen. Positieve gezondheidseffecten treden op via natuur, water, lucht en externe veiligheid (ongelukken en rampen). Door natuurinclusiviteit vanaf het begin mee te laten wegen in de ontwikkeling wordt de leefomgevingskwaliteit en daarmee de gezondheid bevorderd.

De nieuwe woningen zullen tenslotte voldoen aan de BENG-eisen, waardoor de woonbehoefte duurzaam wordt ingevuld. Daarbij zal ook aandacht worden besteed aan de best beschikbare technieken in het kader van energieverbruik. Het planvoornemen is gezien het bovenstaande in lijn met de omgevingsvisie.

4.2.3 Interim omgevingsverordening Noord-Brabant

Op 24 mei 2019 is voor een periode van vier weken het ontwerp van de Interim omgevingsverordening Noord-Brabant ter inzage gelegd. De omgevingsverordening bevat regelgeving die ook anticipeert op de komst van de Omgevingswet en kan gezien worden als een uitwerking van de ambities uit de Brabantse Omgevingsvisie in regels (net als dat de Verordening ruimte Noord-Brabant een uitwerking is van de SVRO). De omgevingsverordening integreert regels uit zes provinciale verordeningen (waaronder de Verordening ruimte Noord-Brabant). De Interim omgevingsverordening trad op 6 november 2019 in werking. Vervolgens zijn enkele wijzigingen doorgevoerd. Op 8 december 2020 is de geconsolideerde versie gepubliceerd.

De laatste omgevingsverordening heeft een beleidsneutraal karakter. Dat houdt in dat de omgevingsverordening geen nieuwe beleidswijzigingen doorvoert tenzij dit nieuwe beleid reeds opgenomen is in vastgestelde beleidsdocumenten. De omgevingsverordening is een interimdocument en daarmee een tussenstap naar een definitieve provinciale omgevingsverordening. Gelet op het beleidsneutrale karakter van de omgevingsverordening is het plangebied in de omgevingsverordening net zo aangeduid als in de Verordening ruimte Noord-Brabant. Hierna wordt ingegaan op de ligging van het plangebied binnen de kaarten uit de omgevingsverordening.

Voor elke ruimtelijke ontwikkeling geldt dat toepassing moet worden gegeven aan de basisprincipes voor een evenwichtige toedeling van functies. Voor het overige dient getoetst te worden aan de regels die van toepassing zijn op het werkingsgebied waar een plangebied in is gelegen.

Beoordeling/ betekenis voor het plangebied

In dit geval is het plangebied gelegen binnen de aanduidingen ‘Verstedelijking afweegbaar’, ‘Gemengd landelijk gebied’, ‘Beperkingen veehouderij’ en ‘Stalderingsgebied’,

Op basis van het beleid van de provincie, verankerd in de Interim omgevingsverordening Noord-Brabant, is uitbreiding buiten het stedelijk gebied niet overal toegestaan. Potentiële uitbreidingslocaties buiten het stedelijk gebied zijn aangewezen met de aanduiding 'verstedelijking afweegbaar'. Binnen zo'n aanduiding kan, onder voorwaarden, een stedelijke ontwikkeling plaatsvinden.

afbeelding "i_NL.IMRO.0743.BP02022002-OW01_0031.jpg"  
Uitsnede Interim Omgevingsverordening (bron: ruimtelijkeplannen.nl)  

Afwijkende regels Verstedelijking afweegbaar (artikel 3.43)

De planlocatie maakt dus onderdeel uit van de zone 'Landelijk gebied-Gemengd landelijk gebied’, maar kent door haar ligging ook een duiding als 'Verstedelijking afweegbaar'. Het provinciale beleid is al jaren gericht op het bundelen van de verstedelijking. Enerzijds om de steden voldoende draagvlak te geven voor hun functie als economische en culturele motor, anderzijds om het dichtslibben van het landelijk gebied tegen te gaan. De provinciale verordening (art. 3.43 IOV) maakt het onder voorwaarden mogelijk om hier te voorzien in een stedelijke ontwikkeling, mits het plan er toe strekt dat sprake is van een aansluiting bij bestaand stedelijk gebied en bij de inrichting rekening wordt gehouden met de aanwezige ruimtelijke kwaliteiten en structuren in het gebied zelf en naaste omgeving. De voorwaarden benoemd bij artikel 3.43 IOV, samen met de basisprincipes voor een evenwichtige toedeling van functies zoals benoemd in artikel 3.5 tot en met 3.9 IOV, vormen het provinciaal ruimtelijk kader waarbinnen de ontwikkeling dient te passen.

Deze voorwaarden luiden als volgt:

  • binnen Stedelijk Gebied is feitelijk of vanuit kwalitatieve overwegingen onvoldoende ruimte beschikbaar;
  • transformatie van cultuurhistorisch waardevol of geschikt leegstaand vastgoed behoort niet tot de mogelijkheden;
  • de ontwikkeling past binnen de regionale afspraken;
  • de stedenbouwkundige- en landschappelijke inrichting houdt rekening met de omgevingskwaliteit en structuren in het gebied en de naaste omgeving, waaronder een duurzame afronding van het Stedelijk Gebied.

Toets van het voornemen aan de interim verordening

- Zorgvuldig ruimtegebruik

Binnenstedelijk in de kern Asten zijn onvoldoende inbreidingslocaties voorhanden voor het totale woningbouwprogramma om te voorzien in voldoende kwalitatieve huisvestiging. Het is derhalve noodzakelijk naar alternatieven te kijken. Uit de woninbouwmonitor Asten 2022-2031 volgt tevens dat binnen Asten voor de komende periode binnenstedelijk onvoldoende beschikbaar zijn, en dat het plangebied daar als uitleglocatie in is opgenomen. Het plangebied maakt onderdeel uit van een grotere planmatige woonontwikkeling zoals voorzien aan de oostzijde van Asten. Deze ontwikkeling is gefaseerd opgepakt om in het kader van zorgvuldig ruimtegebruik en woningbouwprogramma in tijd flexibel in te kunnen spelen op de daadwerkelijke woonwensen. Het planvoornemen voorziet in een fase III van het Masterplan Loverbosch aan de oostzijde van de kern van Asten. Het gebied is aangeduid als 'verstedelijking afweegbaar'. Door de voorziene invulling van het plangebied wordt aangesloten bij de reeds bestaande stedelijke structuur en infrastructuur van de oorspronkelijke kern van Asten en fase 1 en 2 van de nieuwe woonwijk Loverbosch. Het planvoornemen vormt een afronding van de kern van Asten. Daarmee wordt voldaan aan het principe zorgvuldig ruimtegebruik.

- Meerwaardecreatie

Met het planvoornemen wordt voorzien in de aangetoonde vraag naar uitbreidingsmogelijkheden voor woningbouw. Er wordt met het planvoornemen voorzien in een afronding van de kern van Asten. Het plan voorziet in een natuurinclusieve woonwijk ter bevordering van groen en natuur in de woonomgeving. Dit heeft een positief effect op de gezondheid en bevordert daarmee de leefbaarheid. Zowel de natuurlijke als wateropgave is gekoppeld aan de aanwezige natuurlijke elementen en de bodemopbouw met aanwezige hoogtes en nattere laagtes in het plangebied. Doordat tevens de nieuwe bebouwing dient te voldoen aan de BENG-eisen wordt zo deze vraag duurzaam ingevuld. Een dergelijke woonwijk is binnen de gemeente Asten een aanvulling op het bestaande woningbouwprogramma.

- Eisen nieuwvestiging stedelijke ontwikkeling past binnen regionale afspraken

In de bevolkings- en woningbehoefteprognose is per gemeente ook een indicatie (met bandbreedte) gegeven van de planningsruimte voor woningbouw in de komende jaren. Overeenkomstig de Verordening ruimte van de provincie Noord-Brabant is deze 'programma-indicatie' richtinggevend voor de (sub)regionale woningbouwplanning en -programmering en de hierover te maken regionale afspraken. Het planvoornemen en het woningbouwprogramma voor dit plangebied maakt onderdeel uit van de regionale woningbouwafspraken. Dit wordt nog nader toegelicht in paragraaf 4.3.

- Omgevingskwaliteit en structuren in het gebied en de naaste omgeving, afronding stedelijk gebied

Het planvoornemen voldoet ten slotte aan de eis dat de stedenbouwkundige inrichting rekening houdt met het omgevingskwaliteit en structuren in het gebied en naaste omgeving, met name duurzame afronding van het stedelijk gebied. Er is gekozen voor een natuur inclusieve wijk, waarbij de leefgebieden van biotopen in combinatie met ecologische en landschappelijke structuren als vertrekpunt is genomen voor de stedenbouwkundige invulling van het gebied. Dit leidt tot een kwalitatief hoogwaardig plan, waarbij omgevingskwaliteiten behouden en versterkt worden.

- Kwaliteitsverbetering landschap

In de Interim Omgevingsverordening zijn de principes van zorgplicht voor ruimtelijke kwaliteit en kwaliteitsverbetering van het landschap verwoord. De uitgangspunten zijn verder uitgewerkt in de 'Handreiking Kwaliteitsverbetering van het landschap, de rood-met-groen koppeling' van de provincie Noord-Brabant. In deze handreiking is een voorstel uitgewerkt voor het bepalen van de mate van kwaliteitsverbetering in de vorm van een financiële bijdrage. Per ontwikkeling dient te worden bepaald wat de forfaitaire bijdrage is met als doel dat deze bedragen een instrument vormen om op eenduidige en effectieve manier de financiële inspanning te kunnen bepalen. De forfaitaire bijdrage dient te worden aangewend voor kwaliteitsmaatregelen. Het thema kwaliteitsverbetering van het landschap is nader uitgewerkt in paragraaf 4.4.5.

Conclusie

Uit het bovenstaande kan worden afgeleid dat het planvoornemen passend is binnen de voorwaarden die gesteld worden in artikel 3.4 t/m 3.9 van de Interim Omgevingsverordening en daarmee past binnen de Interim Omgevingsverordening Noord-Brabant.

4.2.4 Ontwerp omgevingsverordening Noord-Brabant

Gedeputeerde Staten van Noord-Brabant hebben op 23 maart 2021 het ontwerp van de Omgevingsverordening Noord-Brabant vastgesteld. Dit ontwerp heeft in het voorjaar van 2021 ter inzage gelegen. Naar verwachting wordt de omgevingsverordening maart 2022 door Provinciale Staten vastgesteld. Bij inwerkingtreding van de Omgevingswet, zal de omgevingsverordening ook in werking treden. In de omgevingsverordening worden de uitgangspunten van de interim verordening gehanteerd. Op een aantal punten zijn met het oog op de inwerkingtreding van de Omgevingswet aanpassingen gedaan en zijn enkele nieuwe inzichten of gewijzigde beleidskaders verwerkt.

Beoordeling/ betekenis voor het plangebied

Binnen deze ontwerp verordening is het plangebied gelegen binnen 'landelijk gebied'. Binnen de ontwerp omgevingsverordening is geen zonering voor stedelijke afweegbaar gebied opgenomen, maar kan een duurzame stedelijke ontwikkeling plaats vinden mits:

  • Binnen Stedelijk gebied feitelijk of vanuit kwalitatieve overwegingen onvoldoende ruimte beschikbaar is;

De wonigbouwopgave voortvloeiende uit de woningbouwmonitor voorziet in een aanzienlijke opgave voor de gemeente Asten en in het bijzonder de kern Asten. De mogelijkheden binnen de kern van Asten zijn hiervoor niet toereikend. De ontwikkeling van Loverbosch, waarvan onderhavige planlocatie fase III betreft, biedt de mogelijkheid om de kern van Asten stedenbouwkundig af te ronden door aan te sluiten op de bestaande ruimtelijke en functionele structuren. Daarmee is de locatie passend.

  • Transformatie van cultuurhistorisch waardevol of ander geschikt leegstaand vastgoed niet tot de mogelijkheden behoort;

De woningbouwopgave is te groot om te kunnen voorzien in transformatie. Dit past binnen de ontwikkelingsrichting van het gebied, bedoeld in Artikel 4.13; Het planvoornemen is voorzien van een stedenbouwkundige inpassing waarbij is aangesloten op de bestaande ruimtelijke, functionele en stedenbouwkundige karakteristieken van het plangebied, waarbinnen de bestaande groenstructuren zijn gehandhaafd en versterkt en waarmee er een kwaliteitsverbetering van het landschap is geborgd.

  • De ontwikkeling past binnen de regionale afspraken, bedoeld in Afdeling 6.2 Regionaal samenwerken;

De ontwikkeling past binnen de regionale afspraken. De stedenbouwkundige- en landschappelijke inrichting houdt rekening met een duurzame afronding van het Stedelijk gebied.

De planontwikkeling is op een gedegen wijze stedenbouwkundig ingepast. De stedenbouwkundige- en landschappelijke inrichting is afgestemd op de omgevingskwaliteit en structuren in het gebied en de naaste omgeving, waaronder de met deze verordening te beschermen en te ontwikkelen waarden. Op basis hiervan kan worden geconcludeerd dat het planvoornemen passend is binnen de voorwaarden die gesteld worden in de Ontwerp Omgevingsverordening.

Bij ontwikkelingen (toedeling van nieuwe functies) in het landelijk gebied dient invulling te worden gegeven aan een gebiedsgerichte benadering, waarbij rekening wordt gehouden met effecten op andere aspecten en daarnaast toepassing gegeven aan de kwaliteitsverbetering van het landschap. Bovenstaande is alleen mogelijk bij een evenwichtige toedeling van functies met goede omgevingskwaliteit. Dit is het geval indien sprake is van zorgvuldig ruimtegebruik, rekening is gehouden met de waarden in een gebied met toepassing van de lagenbenadering en de ontwikkeling daarnaast zorgt voor meerwaardecreatie. Dit is reeds onderbouwd in het licht van de Interim omgevingsverordening. Op basis van voorgaande onderbouwing kan opgemaakt worden dat de gewenste woningbouwlocatie over voldoende potenties voor woningbouw beschikt en belemmeringen van de bestaande kwaliteiten niet te verwachten zijn. De locatie is daarmee een logische uitbreidingsrichting voor Asten, passend binnen het (toekomstig) beleid van de provincie.

4.2.5 De bevolkings- en woningbehoefteprognose Noord- Brabant

Om aan de toekomstige woningbehoefte te kunnen voldoen en huidige tekorten in te lopen moeten er in Brabant nog veel huizen worden gebouwd. Tot 2050 moeten nog 220.000 huizen aan de bestaande woningvoorraad worden toegevoegd. De nadruk ligt daarbij op de eerstkomende 10 jaar, waarin er zo’n 12.000 woningen per jaar moeten bijkomen. Vergeleken met de vorige prognose (uit 2017) ligt de groei van de Brabantse bevolking duidelijk hoger. De Brabantse bevolking groeit tot 2050 nog met bijna 280.000 mensen, tot ruim 2,84 miljoen inwoners. Tegen het midden van de jaren ’30 krijgen de landelijke gebieden te maken met een geringe bevolkingskrimp. In het stedelijk gebied blijft de bevolking doorgroeien, al neemt de groei ook hier af. Rond 2040 bereikt de vergrijzing van de Brabantse bevolking haar hoogtepunt. Dan is bijna 27% 65 jaar of ouder, tegen 20% in 2020. De hoogste leeftijdsgroepen, 75 jaar en ouder, groeien het sterkst en landelijke gebieden vergrijzen meer dan stedelijke gebieden.

De komende tijd wordt verwacht dat er vanuit andere delen van Nederland meer mensen naar Brabant komen dan dat er vertrekken: gemiddeld (per saldo) zo’n 2.750 personen per jaar. Dit is in lijn met de laatste jaren. Het buitenlandse migratiesaldo – het verschil tussen het aantal immigranten en emigranten – is de laatste jaren sterk toegenomen, tot ongeveer 15.000 in 2019. Ook de komende jaren worden – na een terugval door de ‘corona-effecten’– positieve buitenlandse migratiesaldi verwacht, waarbij het gemiddeld jaarlijkse saldo terugloopt van zo’n 10.000 personen tussen 2020 en 2030 tot ruim 7.000 in de jaren daarna. In de bevolkings- en woningbehoefteprognose is per gemeente ook een indicatie (met bandbreedte) gegeven van de planningsruimte voor woningbouw in de komende jaren. Overeenkomstig de Interim Omgevingsverordening van de provincie Noord-Brabant is deze ‘programma-indicatie’ richtinggevend voor de (sub)regionale woningbouwplanning en -programmering en de hierover te maken regionale afspraken.

Beoordeling/ betekenis voor het plangebied

Gemeentelijke bestemmingsplannen, die voorzien in de nieuwbouw van woningen of anderszins leiden tot een (netto) toename van de woningvoorraad, dienen te passen binnen dit regionale afsprakenkader. Gelet op de bevolkingsontwikkeling wordt voor de gemeente Asten in de bevolkings- en woningbehoefteprognoses uitgegaan van een groei van de woningvoorraad met 545 woningen in de periode 2022-2031. In de bevolkings- en woningbehoefteprognoses van 2017 werd nog een groei van de woningvoorraad met 430 woningen voorzien in diezelfde periode. De nieuwe prognoses geven dus meer ruimte om extra bouwplannen te gaan realiseren in de gemeente Asten.

De bouw van de woningen in onderhavig planvoornemen is onderdeel van de voorziene toename van de woningvoorraad in de gemeente Asten. De woningbouwmonitor 2022-2031 is recent (maart 2021) in de gemeenteraad bijgesteld. De gemeente voorziet een groei met 506 woningen in de periode 2022-2031. Dit is inclusief de planontwikkeling. Met de ontwikkeling van de woningbouwlocatie wordt met name voorzien in de behoefte aan grondgebonden woningen in een groene setting en is er eveneens ruimte voor levensloopbestendige woningen.

4.2.6 De Brabantse agenda wonen

Het kaderstellend provinciaal beleid op het gebied van de woningbouw is verder vastgelegd in de 'Brabantse Agenda Wonen'. In deze agenda heeft de provincie ‘actielijnen’ en ‘richtinggevende principes’ vastgelegd. De actielijnen gaan uit van:

  • accent op duurzame verstedelijking;
  • meer nadruk op de bestaande woningvoorraad;
  • inzetten op een vraaggericht, flexibel planaanbod met ruimte voor nieuwe woonvormen;
  • versterken van de regionale samenwerking en vernieuwen van regionale woningbouwafspraken.

Beoordeling/ betekenis voor het plangebied

Het planvoornemen is gebaseerd op een actuele kwalitatieve behoefte en dus vraaggericht. De stedenbouwkundige opzet van het plan, met name de ruime en groene opzet van het openbaar gebied, de vormgeving kavels en de beperkte afstand tot de voorzieningen in Asten spreekt de bewoners van de andere deelgebieden aan. De vraag hiernaar is dus aangetoond. Het plan draagt bovendien bij aan de differentiatie van de woningvoorraad in de gemeente Asten. Met name de realisatie van levensloopbestendige woningen draagt hier aan bij. De door de provincie gevraagde flexibiliteit volgt uit de planregels, waarbinnen diverse woonvormen realiseerbaar zijn.

4.3 Regionaal beleid

4.3.1 Regionale Agenda Wonen

In de “Regionale Agenda Wonen RRO Zuidoost-Brabant/Metropoolregio Eindhoven 2016” zijn de uitgangspunten voor de kwantitatieve en kwalitatieve woningbouwopgave in regionaal verband vastgelegd. Kwantitatief is per gemeente aangegeven welke woningbouwopgave er voor de komende tienjaarsperiode is afgesproken. Voor de gemeente Asten is afgesproken dat 915 woningen netto zijn toe te voegen aan de woningvoorraad in de periode 2016 t/m 2025.

Kwalitatief zijn meerdere opgaven benoemd:

  • ladder duurzame verstedelijking en binnenstedelijk bouwen, onder andere door herbestemming van
  • leegstaand vastgoed in het bestaand stedelijk gebied;
  • huisvesting doelgroepen, met name arbeidsmigranten en vergunninghouders;
  • kwaliteit van het programma afstemmen op de bestaande voorraad.

Beoordeling/ betekenis voor het plangebied

De planontwikkeling is onderdeel van het netto toe te voegen aantal woningen in de gemeente Asten. Daarbij is in aanmerking genomen dat er onvoldoende binnenstedelijke locaties beschikbaar zijn om te voldoende aan de woningbouwopgave. Het programma bevat een mix van vrijstaande en geschakelde woningen. Een deel daarvan zal als levensloopbestendige woning worden uitgevoerd.

4.4 Gemeentelijk beleid

4.4.1 Omgevingsvisie

Recent heeft de gemeente Asten Omgevingsvisie Asten vastgesteld. In deze omgevingsvisie worden de ambities voor de fysieke leefomgeving vastgelegd, waarbij nadrukkelijk de verbinding wordt gelegd met het sociaal domein en het gemeentelijk gezondheidsbeleid. Daarbij wordt onder meer voortgebouwd op bestaand beleid dat door de gemeenteraad van Asten is vastgesteld.

De omgevingsvisie onderscheidt binnen de gemeente Asten verschillende deelgebieden. Het plangebied maakt onderdeel uit van het deelgebied 'Dynamische Dorpen', dat bestaat uit de dorpen Asten, Heusden en Ommel. Mede dankzij het groen in en rond de kernen zijn dit fijne dorpen om in te wonen. Gelegen binnen de Metropoolregio Eindhoven hebben ze een dorpse sfeer in uitstraling en gevoel.

In het deelgebied Asten, Heusden en Ommel staan de komende jaren een aantal opgaven centraal: de transformatie van het buitengebied met aandacht voor verbetering van de luchtkwaliteit, het vitaal houden van de kernen, de ontwikkeling van het centrum van Asten en het klimaatbestendig en energieneutraal worden in 2030. Daarnaast wordt er gewerkt aan de 'vitale democratie'. Dat is de manier waarop de samenleving en overheid samenwerken. De omgevingsvisie zal na inwerkingtreding van de Omgevingswet uiteindelijk als basis dienen voor het opstellen van een omgevingsplan.

In de omgevingsvisie wordt het belang van vitale kernen binnen de gemeente onderschreven. In de kernen is het prettig en groen wonen. Onderdeel van de hierboven beschreven opgaven is het realiseren van voldoende, betaalbare en passende woningen en woonomgevingen voor alle doelgroepen. Bij uitbreiding van de dorpen voor wonen of bedrijvigheid wordt rekening gehouden met de aanwezige landschappelijke, ecologische en cultuurhistorische kwaliteiten en sluiten we zoveel mogelijk aan op bestaande structuren.

Beoordeling/ betekenis voor het plangebied

De ontwikkeling van Loverbosch fase III als natuurinclusieve woonwijk voorziet in een ruim opgezette woonwijk met veel groen en openbare ruimte en voldoende woningen. Het plan draagt bij aan de realisatie van de gemeentelijke doelstelling van de Omgevingsvisie.

4.4.2 Toekomstvisie Asten 2030

In de toekomst visie 2030 stelt de gemeente te streven naar Levendige dorpscentra met ruimte voor ontmoeting in een gemoedelijke sfeer. Dit is belangrijk voor de vitaliteit en aantrekkelijkheid van de kernen. Het centrum is de plek voor ontmoeten, eten en drinken en ook werken. Het behoud van deze vitaliteit is niet vanzelfsprekend. Het wegtrekken van jongeren, het kleiner worden van huishoudens, de vergrijzing en technologische ontwikkelingen vragen om een alerte reactie van gemeenschappen en gemeente. Passende en betaalbare woonvormen, adequate voorzieningen, saamhorigheid en een evenwichtige bevolkingssamenstelling zorgen voor vitaliteit.

Om een aantrekkelijke woongemeente te zijn, voert de gemeente een actief woonbeleid. Het beleid is flexibel en gericht op de lokale woonbehoeften. De gemeente richt zich daarbij ook op het versterken vab de aantrekkingskracht voor mensen die graag rustig landelijk willen wonen, dichtbij stedelijke voorzieningen en werk.

Beoordeling/ betekenis voor het plangebied

De ontwikkeling van natuurinclusieve woonwijk Loverbosch fase III zorgt voor een aantrekkelijke groene woonomgeving, aanvullend op het bestaande woningbouwprogramma en bestaande woonwijken. De ontwikkeling van een groene natuurinclusieve woonwijk draagt de doelstelling van een vitale kern en past daarmee binnen het streven van de Toekomstagenda Asten 2030.

4.4.3 Woonvisie gemeente Asten 2015 t/m 2024

In 2016 is de Woonvisie gemeente Asten 2015 t/m 2024 vastgesteld. Hierin zijn de uitgangspunten van het volkshuisvestingsbeleid voor de komende 10 jaren geformuleerd. Het betreft een gedeeltelijke actualisatie van de woonvisie 2010 t/m 2019.

De belangrijkste aspecten voor het woonbeleid luiden als volgt:

  • 1. Regiogemeenten werken samen op het terrein van volkshuisvesting.

Samenwerking betreft bijv. uitvoeren kwalitatief woningmarktonderzoek, kennisdeling. Asten richt zich op het realiseren van een woningvoorraad die past bij de woonbehoeften van de Astense bevolking, zowel kwantitatief (voldoende woningen) als kwalitatief (juiste woningen). Dit uitgangspunt geldt niet alleen voor de gemeente Asten als geheel maar ook voor de drie afzonderlijke kernen.

  • 2. De kwantitatieve taakstelling voor de gemeente bedraagt 650 woningen tot en met 2029 (= toevoeging aan bestaande woningvoorraad).
  • 3. Voor het nieuwbouwprogramma gelden de volgende kaders naar doelgroep, prijs en type woning: aandeel starters / gezinnen / senioren = 20% / 30% / 50%.

De woonvisie is nader uitgewerkt in het woningbouwprogramma.

4.4.4 Woningbouwmonitor gemeente Asten 2022 t/m 2031

Het gemeentelijk woningbouwprogramma is vastgelegd in de 'Woningbouwmonitor gemeente Asten 2022 t/m 2031'. In de woningbouwmonitor is het totaal aantal te realiseren woningen in de kern Asten over de periode 2022 t/m 2031 vastgelegd.

Beoordeling/ betekenis voor het plangebied

Het planvoornemen is opgenomen in het woningbouwprogramma.

afbeelding "i_NL.IMRO.0743.BP02022002-OW01_0032.png"  
Woningbouwmonitor  

Met het planvoornemen wordt voorzien in de behoefte aan woningcategorieën binnen de kern Asten.

4.4.5 Versnellingsagenda woningbouw Asten

Met de Versnellingsagenda woningbouw Asten beoogt de gemeente de toenemende druk op de woningmarkt tegen te gaan door het bouwtempo hoog te houden. De gemeente doet dit door nadrukkelijk de regie te pakken en versneld een tweetal woningbouwplannen in ontwikkeling te nemen. Binnen deze plannen zal extra aanbod gecreëerd worden voor de meest urgente doelgroepen, met een gezonde mix van huur en koop, in verschillende prijssegmenten en met aandacht voor betaalbaarheid en financierbaarheid.

Ook binnen de bestaande (potentiële) planvoorraad en bij nieuwe woningbouwplannen zal extra gestuurd worden op het bouwen van woningen voor de meest urgente doelgroepen. Daarnaast dient minimaal 25% van de nieuw te bouwen woningen te bestaan uit sociale huurwoningen. De uitgangspunten en acties uit de versnellingsagenda woningbouw zijn verwerkt in de woningbouwmonitor 2022-2031. De woningbouwmonitor wordt gebruikt om te sturen op het planaanbod, de te bouwen woning typologieën en de realisatie van nieuwe woningen.

Beoordeling/ betekenis voor het plangebied

In de kern Asten is er weinig harde plancapaciteit beschikbaar. Ook voor de kern Asten is het dus wenselijk om op korte termijn een nieuw woningbouwplan in ontwikkeling te nemen. Voorgenomen ontwikkeling sluit hierbij aan.

4.4.6 Structuurvisie Kwaliteitsverbetering van het landschap

De gemeenteraad van Asten heeft op 28 april 2015 de structuurvisie “kwaliteitsverbetering van het landschap” vastgesteld. De structuurvisie heeft betrekking op de bijdrage die ruimtelijke ontwikkelingen in het buitengebied moeten leveren aan de kwaliteitsverbetering van het landschap. Op basis van de toetsingscriteria heeft de woningbouwuitbreiding die in dit bestemmingsplan wordt mogelijk gemaakt een grote impact op de omgeving. Op basis van het beleid zal dit als volgt moeten worden gecompenseerd:

  • goede landschappelijke inpassing (min.10 % inpassing van totale bestemmingsvlak), en
  • + €2,- per m² over de uitbreiding van het bestemmingsvlak/bouwvlak (excl. de m² voor inpassing).

Beoordeling/ betekenis voor het plangebied

ad. a. landschappelijke inpassing (min.10 % inpassing van totale bestemmingsvlak)

De noodzakelijke landschappelijke inpassing dient minimaal 10% van het totale oppervlak van het bestemmingsvlak/plangebied te bedragen. Omdat de totale oppervlakte van het plangebied circa 120.343 m² bedraagt, dient het oppervlak van de inpassing minimaal 12.034 m² te bedragen. Uit de verbeelding volgt dit oppervlak circa 47.155 m² bedraagt en dus ruimschoots aan deze norm voldoet.

ad. b. kwaliteitsverbetering van het landschap (€2,- per m² over de uitbreiding van het bestemmingsvlak (excl. de m² voor inpassing)

Loverbosch fase 3 heeft een omvang van circa 12 ha. Het plangebied waarop dit bestemmingsplan ziet heeft een omvang van circa 10 ha. De noodzakelijke kwaliteitsverbetering heeft betrekking op een gebied met een oppervlak van 101.210 m². Dit betekent dat ten behoeve van de kwaliteitsverbetering van het landschap een bedrag van 101.210 * € 2,- = € 202.420,- dient te worden geïnvesteerd in ruimtelijke kwaliteitsmaatregelen. In overeenstemming met de afspraken uit de Landschapsinvesteringsregeling (LIR) van de gemeente Asten wordt dit bedrag in het gemeentelijke Fonds kwaliteitsverbetering van het landschap gestort.

Hoofdstuk 5 Milieu- & omgevingsaspecten

5.1 Algemeen

Voor de planrealisatie van Loverbosch fase 3 zijn diverse onderzoeken uitgevoerd en milieukundige aspecten beoordeeld. De onderzoeken en beoordeling hebben plaatsgevonden op basis van het stedenbouwkundige plan voor zo'n 250 woningen binnen een gebied van circa 12 hectare. Het noordelijke gedeelte van het plangebied is beoogd voor de positionering van een schoolgebouw conform het SHP. Ten tijde van het opstellen van het stedenbouwkundig plan was dit gedeelte beoogd voor innovatieve woningbouw en traditionele woningbouw. Dit gebied wordt met betrekking tot onderliggend bestemmingsplan daarom buiten beschouwing gelaten. Onderstaand is dit gebied met een rode stippellijn aangegeven.

afbeelding "i_NL.IMRO.0743.BP02022002-OW01_0033.png"  
Figuur Gebied binnen de rode stippellijn valt buiten bestemmingsplan Loverbosch Fase 3  

De voor het bestemmingsplan uitgevoerde (milieu)technische onderzoeken, hebben zich op de oorspronkelijk stedenbouwkundige opzet en een plangebied circa van 12 ha gericht met ruimte voor 250 woningen. Het huidige plangebied van circa 10 ha met ruimte voor 205 woningen valt integraal binnen het eerdere onderzoeksgebied. Ook het aantal woningen is kleiner dan eerder voorzien. De uitkomsten van de onderzoeken en beoordeling van milieuaspecten kunnen dan ook als representatief worden beschouwd voor het kleinere plangebied en kleiner aantal woningen. Daarom zijn de uitgevoerde onderzoeken alsook de hierin opgenomen woningaantallen (woningbouwprogramma) en figuren niet meer op deze wijzigingen aangepast.

Voor het gebied van de schoollocatie binnen de rode begrenzing geldt dat te zijner tijd een separate planologische procedure wordt doorlopen. Hiervoor geldt dan ook dat bijbehorende (milieu)technische aspecten opnieuw moeten worden beoordeeld en mogelijk nader worden onderzocht.

In de volgende paragrafen zijn de effecten van de onderzoeksresultaten per thema afgewogen voor het plangebied van Loverbosch fase 3.

5.2 Milieu

5.2.1 Bodem

Op basis van artikel 3.1.6 Besluit ruimtelijke ordening zijn gemeenten verplicht om in de toelichting bij een bestemmingsplan een paragraaf over de bodemkwaliteit op te nemen. In deze paragraaf dient gemotiveerd te worden of de aanwezige bodemkwaliteit past bij het toekomstige gebruik van de bodem. Uitgangspunt van een goede ruimtelijke ordening is dat de bodemkwaliteit geschikt is voor de beoogde bestemming en de daarin toegestane gebruiksvormen. Zo mag een eventuele aanwezige bodemverontreiniging geen onaanvaardbaar risico opleveren voor de gebruikers van de bodem en mag de bodemkwaliteit niet verslechteren door grondverzet. Bij overige ruimtelijke besluiten is ook een inzicht in de bodemkwaliteit nodig op basis van artikel 3.2 Algemene wet bestuursrecht.

Beoordeling/ betekenis voor het plangebied

Ten behoeve van deze planontwikkeling is een verkennend bodemonderzoek uitgevoerd door Archimil BV. Het rapport met de naam 'Verkennend Bodemonderzoek - Koestraat te Asten (rapport C217029.008/PHE)' is als Bijlage 5 toegevoegd.

Het onderzoek is uitgevoerd op basis van de resultaten van het vooronderzoek van de onderzoekslocatie en de directe omgeving. Op basis van de in het vooronderzoek verzamelde gegevens is de locatie als niet-verdacht beschouwd. Veld- en laboratoriumwerkzaamheden zijn derhalve uitgevoerd conform de strategie grootschalig onverdacht uit de NEN 5740.
Uit het onderzoek volgt dat de grond uit de bovenlaag (0-0,5 m-mv) plaatselijk zeer licht verontreinigd is met cadmium. De grond uit de onderlaag (0,1-2 m-mv) is niet verontreinigd met één van de componenten waarop is onderzocht. Het grondwater is licht verontreinigd met cadmium, koper, nikkel, zink en/of barium. De aangetroffen verhogingen kunnen worden beschouwd als diffuus verhoogde gehaltes. Op basis van de onderzoeksresultaten gelden geen restricties ten aanzien van de gewenste ontwikkeling.

Indien grond vrijkomt die op een andere locatie zal worden hergebruikt dan dient bepaald te worden wat de kwaliteit is in het kader van het besluit bodemkwaliteit. Er behoeven op basis van de onderzoeksresultaten, geen restricties gesteld te worden aan aan- of verkoop van en aan toekomstige bouwactiviteiten op de onderzochte locatie. Het aspect bodem vormt geen belemmering voor de gewenste planontwikkeling.

5.2.2 Geluid

Ten aanzien van geluid zijn de regels uit de Wet geluidhinder (Wgh) van toepassing. De Wgh voorziet rond (gezoneerde) industrieterreinen, langs wegen en langs spoorwegen in zones en bevat tevens geluidsnormen en richtlijnen met betrekking tot de toelaatbare geluidsniveaus van de voorgenoemde geluidsbronnen. Indien een bestemmingsplan een geluidsgevoelig object mogelijk maakt binnen een geluidszone van een bestaande geluidsbron, of indien het plan een nieuwe geluidsbron mogelijk maakt, dient volgens de Wgh een akoestisch onderzoek plaats te vinden bij het voorbereiden van de vaststelling van het bestemmingsplan. Het akoestisch onderzoek moet uitwijzen of de wettelijke voorkeursgrenswaarde bij geluidgevoelige objecten wordt overschreden en zo ja, welke maatregelen nodig zijn om aan de voorkeursgrenswaarde te voldoen.

Beoordeling/ betekenis voor het plangebied

Er is een akoestisch onderzoek opgesteld in verband met de gezoneerde wegen Koestraat, N279 en A67. Het onderzoek 'Akoestisch onderzoek berekening gevelbelasting' is toegevoegd als Bijlage 6.

Het bouwplan met maximaal 205 nieuwe woningen kent geen nieuwe eigen/nieuwe ontsluitingswegen. De hoofdontsluiting vindt plaats aan de noordzijde van het plan middels een aansluiting op de Dille, een weg behorende bij fase II van voornoemd bouwplan. De andere ontsluiting is via de Koestraat in zuidelijke richting.

Resultaten wegverkeer
De geluidbelasting als gevolg van wegverkeer op de A67 en de N279 overschrijdt de voorkeursgrenswaarde van 48 dB bij diverse woningen binnen het plangebied. Het betreft hier meer specifiek enkele woningen binnen de wijgzigingsbevoegdheid. De maximale ontheffingswaarde van 63 dB voor de N279 voor nieuwbouw in stedelijk gebied en 53 dB voor de A67 voor nieuwbouw in buitenstedelijk gebied wordt echter nergens binnen het plan overschreden. Derhalve is het mogelijk om ter plaatse te bouwen en straks een beschikking hogere waarde aan te vragen bij de gemeente indien er overwegende bezwaren zijn de geluidbelasting door overdrachts- en bronmaatregelen terug te brengen tot de voorkeursgrenswaarde. Bij de te verlenen hogere waarde dient uitgegaan te worden van de berekeningen bij fase IIIa, daar de later te realiseren woongebouwen pas dan kunnen/zullen zorgen voor enige afscherming naar de rest van het bouwplan.

Maatregelen
In het kader van het hogere grenswaarde zijn de akoestische maatregelen beoordeeld op doeltreffendheid. Bij overdrachtsmaatregelen wordt bekeken of de geluidoverdracht tussen geluidbron en ontvanger belemmerd kan worden. Het aanleggen van een geluidwal is in een eerdere studie als een mogelijkheid aangegeven, daar er met het grondwerk voor funderingen zand zou overblijven dat in het plan zou kunnen worden hergebruikt in de vorm van een geluidwal. Nu blijkt echter de ondergrond dermate nat is, dat het plan moet worden opgehoogd met het vrijkomende zand. Tevens blijkt een geluidwal ter plaatse van de woongebouwen uit fase IIIb qua grondbeslag niet mogelijk.

Om een basisnatuur te realiseren, dat als streven is gesteld voor de natuurinclusieve woonwijk, is het noodzakelijk dat dieren van de ene zijde van de N279 naar de andere kant moeten kunnen. Een doorlopende geluidwal (of -scherm) belemmert dit en is daarmee niet wenselijk. Een wal (of scherm) met onderbrekingen is akoestisch echter weer niet effectief. Doorgangen in geluidschermen kunnen alleen door ze voldoende te laten overlappen.

Geluidschermen moeten om voldoende effect te hebben minimaal 5 meter hoog zijn, wat stedenbouwkundig en landschappelijk niet wenselijk en (civiel)technisch nauwelijks mogelijk is. De kosten van dergelijke schermen langs de oostzijde van het gehele plan bedragen 1,5 tot 3 miljoen euro afhankelijk van de uitvoering. Deze kosten kan het plan (en dan met name de woningen met geluidbelastingen boven de voorkeursgrenswaarde) niet dragen. Om een acceptabel geluidsniveau te realiseren in met name de woongebouwen (allen geregeld in een wijzigingsbevoegdheid), kunnen lokaal bouwkundige maatregelen worden getroffen zoals respectievelijk een vliesgevel/wintertuin en een tuinmuur om een geluidluwe buitenruimte te creëren. Voor de 155 woningen die nu rechtstreeks worden gerealiseerd vormt een geluidscherm gezien de hoge kosten geen doeltreffende maatregel.

Ook het vergroten van de afstand tussen geluidbron en ontvanger vormt geen doeltreffende maatregel, omdat een verdubbeling van de afstand slechts 3 dB reductie oplevert. Tevens kan hiermee het plangebied niet op efficiënte wijze worden gebruikt voor woningbouw.

Bij bronmaatregelen wordt bekeken of het geluidniveau van de veroorzaker van het geluid gereduceerd kan worden. Mogelijke maatregelen zijn:

  • stillere voertuigen: alleen door de ontwikkeling van nieuwe technieken en dus niet realistisch;
  • verlaging van de maximum snelheid: hierop heeft de initiatiefnemer van het bouwplan geen invloed;
  • aanbrengen van geluidreducerend wegdek: op de A67 en N279 is al sprake van geluidreducerend wegdek. Het ligt daarmee niet in de verwachting dat toepassing van een ander wegdek doelmatig zal zijn.

Cumulatie

- Wet geluidhinder
Ter bepaling van de gecumuleerde waarde dient de totale geluidbelasting (exclusief aftrek artikel 110g Wet geluidhinder) te worden berekend van alle zoneplichtige (spoor)wegen, industrie en luchtvaart met een geluidbelasting boven de voorkeursgrenswaarde. In het onderhavige geval betreft dit in elk geval de wegen A67 en N279.

- Goede ruimtelijke ordening
De milieukwaliteit in de omgeving kan worden bepaald aan de hand van de 'methode Miedema'. De hiertoe te toetsen gecumuleerde waarde ligt bij vrijwel alle gebouwen onder 60 dB. Dat betekent dat de milieukwaliteit matig, redelijk of goed is. Er zijn woningen (in plan IIIb) met een hoogste geluidbelasting van 62 dB(A) met een milieukwaliteit tamelijk slecht. Door lokale maatregelen als een tuinmuur en een vliesgevel of wintertuin, kan echter ook daar alsnog een geluidluwe gevel c.q. buitenruimte worden gecreëerd. Toepassing van de juiste maatregelen/voorzieningen in de gevels van te realiseren woningen zal te allen tijde resulteren in een aanvaardbaar woon- en leefklimaat. Derhalve is voor realisatie van de woningen met een cumulatieve geluidbelasting boven 53 dB een aanvullend akoestisch onderzoek geluidwering gevel nodig.


Conclusie
Het aanleggen van een geluidwal of geluidscherm (overdrachtsmaatregelen) is in onderhavige situatie niet doelmatig, noch wenselijk. Het toepassen van stiller wegdek (bronmaatregel) om de geluidbelasting terug te brengen tot de voorkeursgrenswaarde ontmoet overwegende bezwaren van financiële aard. Daar waar na het treffen van maatregelen toch niet kan worden voldaan aan de geluidswaarde kan - voldoende onderbouwd - worden verzocht hogere waarde te verlenen conform artikel 110a, lid 5 van de Wet geluidhinder. Dit geldt zowel voor de woningen welke rechtstreeks als voor de woningen die middels de wijzigingsbevoegdheid mogelijk gemaakt worden. Het plan is vanuit de Wet geluidhinder en een goede ruimtelijke ordening uitvoerbaar.

5.2.3 Lucht
5.2.3.1 Fijnstof

Op 15 november 2007 is de wijziging van de 'Wet milieubeheer' in werking getreden. Deze wet vervangt het 'Besluit luchtkwaliteit 2005' en is één van de maatregelen die de overheid heeft getroffen om:

  • negatieve effecten op de volksgezondheid als gevolg van te hoge niveaus van luchtverontreiniging aan te pakken;
  • mogelijkheden voor ruimtelijke ontwikkeling te creëren ondanks de overschrijdingen van de Europese grenswaarden voor luchtkwaliteit.

De paragraaf luchtkwaliteit in de 'Wet milieubeheer' voorziet onder meer in een gebiedsgerichte aanpak van de luchtkwaliteit via het Nationaal Samenwerkingsprogramma Luchtkwaliteit (NSL). De programma-aanpak zorgt voor een flexibele koppeling tussen ruimtelijke activiteiten en milieugevolgen. Van bepaalde projecten met getalsmatige grenzen is vastgesteld dat deze 'niet in betekenende mate' (NIBM) bijdragen aan de luchtverontreiniging. Deze mogen zonder toetsing aan de grenswaarden voor luchtkwaliteit uitgevoerd worden.

Luchtkwaliteitseisen vormen onder de nieuwe 'Wet luchtkwaliteit' geen belemmering voor ruimtelijke ontwikkeling als:

  • er geen sprake is van een feitelijke of dreigende overschrijding van een grenswaarde;
  • een project, al dan niet per saldo, niet tot een verslechtering van de luchtkwaliteit leidt, wat wil zeggen dat een project 'niet in betekenende mate' bijdraagt aan de luchtverontreiniging (meer dan 3% ten opzichte van de grenswaarde);
  • een project is opgenomen in een regionaal programma van maatregelen of in het NSL, dat op 1 augustus 2009 in werking is getreden, nadat de EU op 7 april 2009 derogatie heeft verleend.

NIBM-grens woningbouwlocatie, 3% criterium:

  • < 1.500 woningen (netto) bij minimaal 1 ontsluitingsweg, met een gelijkmatige verkeersverdeling;
  • < 3.000 woningen bij minimaal 2 ontsluitingswegen met een gelijkmatige verkeersverdeling.

Beoordeling/ betekenis voor het plangebied

Het planvoornemen betreft het planologisch-juridisch mogelijk maken van woningbouw. Het planvoornemen behoort vanwege de relatief beperkte omvang automatisch tot de categorie van gevallen die niet in betekenende mate bijdragen aan luchtverontreiniging. Een toets aan de 3%-grens (bijdrage aan de jaargemiddelde norm voor fijnstof en stikstofdioxide) kan derhalve achterwege blijven. De blootstelling aan luchtverontreiniging dient echter wel in kaart te worden gebracht en te worden getoetst aan de hierbij gestelde eisen.

De wettelijke norm (EU-grenswaarde) voor fijnstof in de Wet milieubeheer ligt hoger dan de gezondheidskundige WHO-advieswaarde, zie tabel 3. De Europese grenswaarden voor de luchtkwaliteit zijn bedoeld om de gezondheid van de bevolking te beschermen. De WHO-richtlijnen zijn bedoeld voor beleidsvorming en om beleidsopties voor luchtkwaliteitsbeheer te ondersteunen. De EU-grenswaarden is een compromis tussen wat vanuit gezondheidsperspectief wenselijk is, wat technisch mogelijk is en wat economisch en politiek haalbaar is. Voor de relatie tussen de concentraties luchtverontreiniging en gezondheidseffecten, is er geen drempelwaarde bekend waaronder geen effecten optreden. Dus geldt: 'hoe schoner, hoe gezonder'.

afbeelding "i_NL.IMRO.0743.BP02022002-OW01_0034.jpg"  
Toetsingskaders en normstellingen fijnstof PM10  

- NSL-Monitoringstool

afbeelding "i_NL.IMRO.0743.BP02022002-OW01_0035.jpg"  
Uitsnede kaart monitoringstool met rekenpunt  

Middels de NSL-Monitoringstool zijn de jaargemiddelde concentraties NO2, PM10 en PM2,5 ter plaatse van het plangebied voor de jaren 2020 en 2030 bepaald. Het meest nabij gelegen rekenpunt zijn de rekenpunten aangrenzend aan het plangebied aan de westzijde van de N279. De concentraties en een grafische weergave van de meetpunten zijn in de navolgende tabellen opgenomen, van noord naar zijd

Rekenpunt
16019688  
2019   2020   2030   Maatgevende richtwaarde  
NO2   x   15.027   11.816   40  
PM10   x   16.512   14.167   32,5  
PM2.5   x   9.411   7.548   25  

Tabel: jaargemiddelde concentraties NO2, PM10, PM2.5 in µg/m3 rekenpunt N279

Rekenpunt 16021755   2019   2020   2030   Maatgevende richtwaarde  
NO2   x   15.086   11.848   40  
PM10   x   16.517   14.171   32,5  
PM2.5   x   9.413   7.55   25  

Tabel: jaargemiddelde concentraties NO2, PM10, PM2.5 in µg/m3 rekenpunt N279

Rekenpunt 15859790   2019   2020   2030   Maatgevende richtwaarde  
NO2   20.441   14.992   11.781   40  
PM10   19.835   16.509   14.162   32,5  
PM2.5   12.333   9.41   7.547   25  

Tabel: jaargemiddelde concentraties NO2, PM10, PM2.5 in µg/m3 rekenpunt N279

Rekenpunt 16018002   2019   2020   2030   Maatgevende richtwaarde  
NO2   x   14.827   11.654   40  
PM10   x   16.497   14.146   32,5  
PM2.5   x   9.406   7.542   25  

Tabel: jaargemiddelde concentraties NO2, PM10, PM2.5 in µg/m3 rekenpunt N279

Uit de controle blijkt dat de jaargemiddelde grenswaarden voor NO2, PM10 en PM2,5 voor de jaren 2020 en 2030 niet worden overschreden.

- Achtergrondconcentratie PM10

afbeelding "i_NL.IMRO.0743.BP02022002-OW01_0036.jpg"  
Achtergrondconcentratie PM10 (bron: GCN, RIVM 2020)  

De huidige achtergrondconcentratie fijnstof (PM10) ligt binnen het plangebied rond de 18 µg/m3 zonder zeezoutcorrectie (bron: Grootschalige Concentratiekaart Nederland, jaar 2020). De huidige achtergrondconcentratie ligt ver onder de wettelijke EU-grenswaarden en benadert zelfs de WHO-advieswaarde.

Ter plaatse van het plangebied is gezien de lage achtergrondconcentratie fijnstof, de zeer beperkte bronbijdrage fijnstof door veehouderijen en de grote afstand tot veehouderijen geen sprake van een verhoogd gezondheidsrisico ten gevolge van fijnstof (PM10) door veehouderijen en vormt dan ook geen belemmering voor de beoogde planontwikkeling en omgekeerd ook niet voor de veehouderijen in de omgeving.

5.2.3.2 Geur en gezondheid veehouderijen

De Wet geurhinder en veehouderij bevat normen en afstanden die tussen veebedrijven en geurgevoelige functies en objecten moeten worden aangehouden, maar biedt de gemeenten ook beleidsvrijheid om maatwerk te leveren dat is afgestemd op de ruimtelijke en milieuhygiënische feiten en omstandigheden in een concreet gebied en de gewenste (toekomstige) ruimtelijke inrichting.

Vanaf 2016 verschenen in opdracht van de Nederlandse rijksoverheid enkele rapporten over veehouderij en gezondheid. Daaruit komen verbanden tussen veehouderijen en de gezondheid van omwonenden naar voren. Uit onderzoek is gebleken dat endotoxine in de (fijn)stof emissie uit intensieve veehouderijen een relevante component gebleken voor luchtwegklachten en dier-op-mens overdraagbare infectieziekten (zoönose). Gezondheidseffecten worden veroorzaakt door de combinatie van emissies van fijnstof, aan stofdeeltjes gebonden endotoxine en ammoniak-secundair fijnstof uit de veehouderijen. Endotoxine wordt gezien als een goede indicator voor blootstelling van omwonenden aan stoffen uit stallen die een negatieve invloed hebben op de luchtwegen.

Beoordeling/ betekenis voor het plangebied

Pouderoyen Tonnaer heeft een onderzoek verricht naar geurhinder en de gezondheidseffecten als gevolg van veehouderijen. Het rapport 'Beoordeling gezondheidseffecten door veehouderij t.b.v. Bestemmingsplan Loverbosch fase III gemeente Asten' is toegevoegd in Bijlage 7.

Geur

In de gemeentelijke geurgebiedsvisie is een achtergrondbelasting tot 6 OUE/m3 als optimaal aangemerkt voor woonkernen en tot 14 OUE/m3 voor het buitengebied. De gezondheidskundige GGD-advieswaarde bedraagt 5 OUE/m3 voor woonkernen en 10 OUE/m3 voor het buitengebied.

De berekende indicatieve achtergrondbelasting varieert binnen het plangebied van 1,5 OUE/m3 tot 3,3 OUE/m3. Geconcludeerd kan worden dat sprake is van een optimaal en daarmee aanvaardbaar woon- en leefklimaat. Van een omgekeerde werking is ten aanzien van geur geen sprake. Veehouderijen in de omgeving worden niet in hun belangen geschaad.

Endotoxinen

Het plangebied ligt op ruime afstand van de vergunde individuele en (indicatieve) cumulatieve endotoxine-risicocontouren van omliggende veehouderijen. Ter plaatse van het plangebied is geen sprake van gezondheidsrisico's ten gevolge van endotoxinen. Het bestemmingsplan heeft geen omgekeerde werking en er is sprake van een aanvaardbaar woon- en leefklimaat. Het aspect endotoxinen vormt geen belemmering voor de beoogde woningbouwontwikkeling en omgekeerd ook niet voor de veehouderijen in de omgeving.

Geitenhouderij

Het gezondheidskundig advies is om uit voorzorg geen nieuwe woningen te bouwen binnen 2 km rond geitenhouderijen (risicoafstand varieert in de onderzoeken tussen de 1,5 en 2 km), om gezondheidsrisico's voor toekomstige bewoners te voorkomen. Het bestemmingsplan maakt woningbouw mogelijk op minimaal 1,6 km van een geitenhouderij (Polderweg 53). Het aantal blootgestelden neemt gezien de afstand >1,5 km door het woningbouwplan weliswaar toe, maar uit het VGO III onderzoek blijkt echter dat de verhoging van het risico op longontsteking sterk terugvalt na 500 meter. Dit betekent dat buiten een straal van 500 meter van een geitenhouderij aanzienlijk minder extra risico bestaat dan daarbinnen. De deelonderzoeken van VGO III naar geitenhouderijen zijn vanwege de Covid-pandemie dusdanig vertraagd (geen resultaten voor eind 2024) dat het uit voorzorg op slot houden van de mogelijkheden voor woningbouw op deze planlocatie de woningbouwbehoefte onevenredig in de weg staat.

Het is aan het gemeentebestuur om bij de besluitvorming over het bestemmingsplan een belangenafweging te maken. Het college heeft op basis van een afweging van de betrokken belangen besloten om deze ontwikkeling op toe te staan, ondanks dat deze (deels) op minder dan 2 kilometer van een geitenhouderij is gesitueerd. Hierbij zijn de volgende punten betrokken:

  • Gelet op de afstand van minimaal 1,6 km tussen het plangebied en geitenhouderijen is de verhoging van het risico op longontsteking door de toename van het aantal mensen dat blootgesteld wordt ten gevolge van het woningbouwplan zeer klein. Zeker in verhouding met de omvang van de reeds bestaande woonkern Asten.
  • Het bestemmingsplan biedt geen planologisch kader voor de realisatie van scholen, kinderopvang of zorginstellingen (geen kwetsbare groepen).
  • Er zijn geen andere verhoogde gezondheidsrisico's voor het plangebied door veehouderijen.
  • Het provinciale geitenmoratorium bevat een verbod op uitbreiding en oprichting van geitenhouderijen, waardoor een toename van het blootstellingsrisico in het plangebied door bedrijfsontwikkeling van geitenhouderijen in ieder geval niet mogelijk is.

Daarnaast geldt:

  • Er is sprake van een woningbouwopgave. Het kunnen blijven wonen in de eigen omgeving wordt ook als een belangrijk onderdeel van positieve gezondheid gezien.
  • Een verbod op woningbouw binnen 1,5 tot 2 km van een geitenbedrijf kan als niet-proportioneel aangemerkt worden. Als uit nieuwe onderzoeken zou blijken dat de gezondheidsrisico's groter zijn dan nu bekend is, zal een sanering van het geitenbedrijf eerder een proportionele maatregel zijn dan de sanering van (bestaande) woningen in de omgeving van het geitenbedrijf.

Uit dit onderzoek naar gezondheidseffecten door veehouderijen volgt dat ter plaatse van het plangebied sprake is van een aanvaardbaar woon- en leefklimaat en veehouderijen in de omgeving worden niet in hun belangen geschaadt (geen sprake van een omgekeerde werking).

5.2.4 Externe veiligheid

In de landelijke regelgeving zijn kwaliteitseisen en normen op het gebied van externe veiligheid geformuleerd. Doel is om bepaalde risico's, waaraan burgers in hun leefomgeving worden blootgesteld, tot een aanvaardbaar minimum te beperken. Deze bedoelde risico's hangen vooral samen met:

  • activiteiten met gevaarlijke stoffen in inrichtingen;
  • transport van gevaarlijke stoffen door buisleidingen;
  • transport van gevaarlijke stoffen over de weg, spoor en water.


Het uitgangspunt van wet- en regelgeving en beleid ten aanzien van externe veiligheid is scheiding van kwetsbare functies en risicobronnen, waarmee men het volgende wil bereiken:

  • bescherming van personen die zich bevinden in de nabijheid van een risicobron tegen de kans op overlijden ten gevolge van een ongeval met gevaarlijke stoffen of ten gevolge van een ongeval met een vliegtuig op of nabij een luchthaven;
  • bescherming van de samenleving tegen het ontwrichtende effect van een dergelijk ongeval met een groot aantal slachtoffers.


Voor de eerste doelstelling is het begrip plaatsgebonden risico (PR) van belang. De norm voor het plaatsgebonden risico is 10-6, die als een contour om een risicovolle inrichting en aan weerszijden langs een transportroute of buisleiding ligt. Binnen die contour zijn ingevolge het Besluit externe veiligheid inrichtingen milieubeheer (BEVI) geen nieuwe kwetsbare objecten toegestaan. Voor beperkt kwetsbare objecten als bedoeld in het BEVI geldt die norm als richtwaarde. Een soortgelijke normstelling en systematiek geldt voor transport van gevaarlijke stoffen over wegen, spoorwegen en binnenwateren en via buisleidingen.

Bij de realisatie van de tweede doelstelling staat het begrip groepsrisico (GR) centraal. Het groepsrisico beschrijft de kans dat een groep van 10 of meer personen gelijktijdig komt te overlijden ten gevolge van een ongeval met gevaarlijke stoffen. Het groepsrisico geeft een indicatie van de maatschappelijke ontwrichting in geval van een ramp. Het groepsrisico wordt uitgedrukt in een grafiek, waarin de kans op overlijden van een bepaalde groep (bijvoorbeeld 10, 100 of 1000 personen) wordt afgezet tegen de kans daarop. Voor het groepsrisico geldt geen norm maar wel een oriënterende waarde, die als ijkpunt geldt bij het zoeken naar maatschappelijk aanvaardbare grenzen.

Op grond van artikel 13 BEVI dient het bevoegd gezag bij nieuwe ruimtelijke plannen die nieuwe (kwetsbare) objecten mogelijk maken een verantwoording van het groepsrisico uit te voeren. Een soortgelijke regeling geldt voor transport van gevaarlijke stoffen over wegen, spoorwegen en binnenwateren en via buisleidingen op basis van respectievelijk het Besluit externe veiligheid transportroutes (BEVT) en het Besluit externe veiligheid buisleidingen (BEVB).


Beoordeling/ betekenis voor het plangebied

De voorgenomen ontwikkeling voorziet niet in activiteiten waarin sprake is van veiligheidsrisico's voor de omgeving. De locatie is formeel aan te merken als een kwetsbaar object, conform het Besluit externe veiligheid inrichtingen, art. 1 lid 1 onder b onderdeel a en art. 1 lid 1 onder f.

Derhalve is een quickscan externe veiligheid uitgevoerd. Het rapport 'quickscan externe veiligheid Koestraat - Asten' is seperaat toegevoegd als Bijlage 8 zijn de voor het plan relevante risicobronnen kort samengevat.

Transport over het water en het spoor

De planlocatie bevindt zich niet binnen het invloedsgebied van een waterweg of spoorlijn waarover transport van gevaarlijke stoffen plaatsvindt. De risico’s als gevolg van het transport van gevaarlijke stoffen over het water en het spoor vormen derhalve geen belemmering voor het plan. Een verantwoording is niet aan de orde.


Transport over de weg

Voor het plangebied is enkel de rijksweg A67 relevant. Deze weg is opgenomen in Basisnet. Gelet op de
ruimtelijke scheiding is plaatsgebonden risico en het PAG van deze weg geen aandachtspunt voor de
planvorming. Aangezien het plan op meer dan 200 meter van deze rijksweg is gelegen, hoeft de invloed van het plan op de hoogte van het groepsrisico niet te worden berekend. Het plangebied ligt binnen het invloedsgebied van deze weg. Hierdoor dienen de risico’s als gevolg van het transport van gevaarlijke stoffen over deze weg (toxisch scenario) meegenomen te worden in een beperkte verantwoording van het groepsrisico.

De door Kragten opgestelde notitie 'Verantwoording hoogte groepsrisico plan Koesteeg - Asten' geeft invulling aan de verantwoordingsplicht van het groepsrisico. Het rapport is seperaat toegevoegd als Bijlage 9.

In deze notitie zijn elementen aangedragen die de gemeenteraad kan gebruiken bij de oordeelsvorming inzake de verantwoording van het groepsrisico. De gemeente Asten dient in het kader van de ruimtelijke procedure advies in te winnen bij de Veiligheidsregio en een standpunt in te nemen aangaande de verantwoording van het groepsrisico.


Buisleidingen

Het plangebied ligt niet binnen het invloedsgebied van een buisleiding waardoor transport van gevaarlijke stoffen plaatsvindt. De risico’s als gevolg van het transport van gevaarlijke stoffen door buisleidingen vormen derhalve geen belemmering voor het plan. Een verantwoording is niet aan de orde.


Inrichtingen

In de omgeving van het plangebied zijn geen risicovolle inrichtingen aanwezig waarvan het invloedsgebied tot over het plangebied reikt. De risico’s als gevolg van inrichtingen vormen geen belemmering voor de planontwikkeling. Een verantwoordingsplicht is derhalve niet aan de orde.

5.2.5 Milieuzonering

Zowel in het kader van een goede ruimtelijke ordening als vanuit milieuwet- en regelgeving wordt gestreefd naar het voorkomen van voorzienbare hinder en gevaar door milieubelastende activiteiten, met als doel het handhaven en waar mogelijk bevorderen van een goede kwaliteit van het leefmilieu. Dit gebeurt onder andere door het fysiek scheiden van milieubelastende activiteiten (zoals bedrijven) en milieugevoelige functies (zoals woningen) door het aanbrengen van een voldoende ruimtelijke scheiding daartussen. Deze ruimtelijke scheiding bestaat doorgaans uit het aanhouden van een bepaalde afstand, hetgeen ook wel wordt aangeduid als milieuzonering. Die onderlinge afstand moet groter zijn naarmate de milieubelastende functie het milieu sterker belast.

Milieuzonering heeft twee doelen:

  • 1. Het voorkomen of zoveel mogelijk beperken van hinder en gevaar bij woningen en andere gevoelige functies;
  • 2. het bieden van voldoende zekerheid aan bedrijven dat zij hun activiteiten duurzaam onder aanvaardbare voorwaarden kunnen uitoefenen.


Voor het bepalen van de aan te houden afstanden wordt in de praktijk gebruik gemaakt van VNG-uitgave "Bedrijven en milieuzonering, editie 2009" (verder: VNG-uitgave). De VNG-uitgave geeft op systematische wijze informatie over de ruimtelijk relevante milieuaspecten van een scala aan bedrijfsactiviteiten. Deze uitgave bevat een lijst waarin voor veelvoorkomende milieubelastende activiteiten indicatieve richtafstanden zijn gegeven ten opzichte van milieugevoelige functies, uitgaande van een gemiddeld modern bedrijf. De handreiking is oorspronkelijk bedoeld als hulpmiddel bij de ruimtelijke planvorming. Uit de rechtspraak van de Afdeling vloeit voort dat de handreiking als hulpmiddel is erkend. Afwijken van de richtafstanden is mogelijk, mits wordt onderbouwd dat sprake is van een goed woon- en leefklimaat.

Beoordeling/ betekenis voor het plangebied

Milieuzonering draagt er zorg voor dat nieuwe bedrijven of inrichtingen een passende locatie in de nabijheid van woningen krijgen en dat nieuwe woningen op een verantwoorde afstand van bedrijven en/of inrichtingen gesitueerd worden.

Binnen het plangebied bevinden zich geen bedrijven, die mogelijk van invloed kunnen zijn op het toekomstige woonmilieu. Ook in de directe omgevings cq aan de randen van het plangebied zijn geen agrarische en niet-agrarische bedrijven gevestigd die een relevante hinderzone hebben, als bedoeld in de VNG-publicatie Bedrijven en Milieuzonering (editie 2009). Het planvoornemen bevindt zich niet binnen de richtafstanden van de omliggende (agrarische) bedrijven. Bij de woningen is sprake van een aanvaardbaar woon- en leefmilieu. Andersom vormt de woningbouw ook geen beperking voor het functioneren van de omliggende bedrijven.

Op enige afstand zijn in de omgeving van het plangebied wel een aantal agrarische bedrijven gelegen. In paragraaf 5.2.3 is nader ingegaan om de relevante hinderzone van omliggende agrarische bedrijven.

5.3 Waterhuishouding

5.3.1 Algemeen

Het Nationaal Waterplan 2016-2021 heeft de status van een structuurvisie. Met dit Nationaal Waterplan zet het Rijk een volgende ambitieuze stap in het robuust en toekomstgericht inrichten van ons watersysteem, gericht op een goede bescherming tegen overstromingen, het voorkomen van wateroverlast en droogte en het bereiken van een goede waterkwaliteit en een gezond ecosysteem als basis voor welzijn en welvaart. Het Rijk streeft naar een integrale benadering, door natuur, scheepvaart, landbouw, energie, wonen, recreatie, cultureel erfgoed en economie (inclusief verdienvermogen) zo veel mogelijk in samenhang met de wateropgaven te ontwikkelen. De ambitie is dat overheden, bedrijven en burgers zich in 2021 meer bewust zijn van de kansen en bedreigingen van het water in hun omgeving. Iedereen neemt zijn eigen verantwoordelijkheid om samen te komen tot een waterrobuuste ruimtelijke inrichting, het beperken van overlast en rampen en het verstandig handelen in extreme situaties.

Het Nationaal Water Programma 2022-2027 is de opvolger van het Nationaal Waterplan 2016-2021. In Nederland liggen grote opgaven voor het waterdomein: Nederland moet zich aanpassen aan de gevolgen van klimaatverandering, we moeten blijven werken aan een goede bescherming tegen overstromingen en aan een klimaatrobuuste zoetwatervoorziening tegen toenemende droogte. Ook de zorg voor goede waterkwaliteit en duurzame drinkwatervoorziening verdient aandacht. Om aan te geven hoe we omgaan met de uitdagingen van ons water, ontwikkelt de Rijksoverheid het Nationaal Water Programma (NWP) 2022-2027. Het programma geeft een overzicht van de ontwikkelingen binnen het waterdomein en legt nieuw ontwikkeld beleid vast. De Rijksoverheid werkt aan schoon, veilig en voldoende water dat klimaatadaptief en toekomstbestendig is. Ook is er aandacht voor de raakvlakken van water met andere sectoren. Het NWP beschrijft de nationale beleids- en beheerdoelen op het gebied van klimaatadaptatie, waterveiligheid, zoetwater & waterverdeling, waterkwaliteit & natuur, scheepvaart, en de functies van de rijkswateren.

De Waterwet regelt de leggerplicht voor alle waterstaatswerken. Om goed te functioneren moeten waterstaatswerken voldoen aan de norm uit de legger. De eerste Legger rijkswaterstaatswerken is vastgesteld in 2012. In oktober 2014 is de Legger geactualiseerd. De Legger bestaat uit een formeel besluit en digitale geografische datasystemen. Beheerders, vergunningverleners en toezichthouders zijn de vaste gebruikers van deze Legger, maar de Legger is voor iedereen toegankelijk. In Asten geldt de legger voor de Zuid-Willemsvaart.

Op regionaal niveau is de provincie verantwoordelijk voor het beleidsveld water. Vigerend is het Regionaal Water en Bodem Programma 2022-2027. Het PMWP is een kaderstellende nota die op hoofdlijnen weergeeft wat de beleidsdoelen en voorgestelde aanpak zijn. De doelen van het PMWP zijn:

  • Voldoende water voor mens, plant en dier
  • Schone en gezonde leefomgeving (bodem, water en lucht)
  • Bescherming van Brabant tegen overstromingen en externe risico’s
  • Verduurzaming van onze grondstoffen-, energie- en voedselvoorziening.

In het Waterbeheerplan 2022-2027 staan de doelen van waterschap Aa en Maas beschreven en hoe zij die doelstellingen gaan halen. De doelen en maatregelen waar het waterschap voor staat en gaat, zijn onderverdeeld in vier programma’s:

  • Veilig en bewoonbaar beheergebied: bij dit programma gaat het er om het beheergebied zo goed mogelijk te beschermen tegen overstromingen van de Maas en het regionale watersysteem. Goede dijken om overstromingen vanuit de Maas te voorkomen. Voldoende ruimte voor water om overlast uit het regionale systeem te beperken en een goede calamiteitenorganisatie om als er toch problemen dreigen te ontstaan, zo adequaat mogelijk te kunnen handelen;
  • Voldoende water en robuust watersysteem: dit programma gaat over het zorgen voor een adequate en duurzame watervoorziening in het beheergebied van het waterschap voor de diverse gebruiksfuncties in hun onderlinge samenhang. Dit doet het waterschap door het optimale peil en debiet na te streven in beken, kanalen, sloten én in de ondergrond (voorraadbeheer). Droogteperioden hebben daardoor nu en in de toekomst een zo kort en klein mogelijke impact;
  • Gezond en natuurlijk water: dit programma gaat in op alle activiteiten van het waterschap die bijdragen aan het bereiken van de doelstellingen op het gebied van gezond en natuurlijk water. Ingegaan wordt op hoe toegewerkt wordt naar een watersysteem met een goede waterkwaliteit, dat ecologisch goed functioneert en waar de inwoners en bezoekers van het beheergebied van kunnen genieten;
  • Schoon water: dit programma gaat over de doelen en activiteiten met betrekking tot de afvalwaterketen met daarbinnen een centrale plek voor het zuiveren van afvalwater. Het programma vertoont een grote samenhang met het programma gezond en natuurlijk water. Immers, transporteren en zuiveren van afvalwater is een belangrijke activiteit om tot een gezond en natuurlijk watersysteem te komen

De Keur Waterschap Aa en Maas 2015 is een aanvulling op regels uit de Waterwet en is van toepassing op de rivieren, beken, sloten, grondwater en waterkeringen die in beheer zijn bij het waterschap, maar ook op alle sloten en watergangen die eigendom zijn van anderen (o.a. gemeenten, agrariërs en tuinders). De voorschriften in de Waterwet en de Keur geven aan wat wel en niet mag en welke plichten er zijn. Denk aan activiteiten zoals het lozen in oppervlaktewater, het onttrekken van grondwater, het dempen van een sloot of het plaatsen van een duiker of brug.

Net zoals het Rijk heeft ook het waterschap een legger vastgesteld. De legger geeft het waterschap én derden een overzicht van:

  • Alle aanwezige waterlopen (sloten) en waterkeringen (dijken) inclusief kunstwerken (bijv. stuwen, bruggen, etc.)
  • Wie verantwoordelijk is voor het beheer en onderhoud van sloten en kunstwerken. Dat betekent dat het gaat om de beheertaken en onderhoudsplichten van het waterschap en om de onderhoudsplichten van derden waarop het waterschap toezicht uitoefent
  • Waar de beschermingszone ligt, die noodzakelijk is voor het waterschap om haar beheerstaken te kunnen uitvoeren. Op deze beschermingszone zijn verbodsbepalingen, volgens de keur, van toepassing. Ook is de legger een naslagwerk ten aanzien van waterstaatswerken.

De legger wordt jaarlijks geüpdatet, omdat het watersysteem en de kunstwerken aan verandering onderhevig zijn. Bijvoorbeeld door het afgeven van vergunningen of veranderingen die voortkomen uit projecten.

De watertoets bij ruimtelijke ontwikkelingen, waaronder ver- en nieuwbouwplannen vallen, bewaakt de waterkwaliteit en waterkwantiteit. Het doel van een watertoets is de waterbelangen evenwichtig laten meewegen in het planvormingsproces.

Hierbij wordt een veilig, gezond en duurzaam watersysteem nagestreefd. Het waterschap hanteert een aantal uitgangspunten bij de watertoets. De desbetreffende uitgangspunten zijn hieronder weergegeven:

  • Voorkomen van vervuiling
  • Wateroverlastvrij bestemmen
  • Hydrologisch neutraal ontwikkelen (HNO)
  • Vuil water en hemelwater scheiden
  • Doorlopen van afwegingsstappen hergebruik > infiltratie > buffering > afvoer
  • Waterschapsbelangen
  • Meervoudig ruimtegebruik
  • Water als kans

Het beleid van de gemeente Asten sluit aan op het landelijke-, provinciale- en waterschapsbeleid en is weergegeven in het Gemeentelijk Rioleringsplan (GRP) 2021-2025. Via dit GRP geeft de gemeente invulling aan de zorgplichten voor afvalwater, hemelwater en grondwater.

  • Afvalwater: voor de afvalwaterzorgplicht streeft de gemeente naar een duurzame en doelmatige inzameling en transport van afvalwater. Bij vervanging en herontwikkeling wil de gemeente overgaan tot ontvlechting van hemelwater en afvalwater.
  • Hemelwater voor de hemelwaterzorgplicht streeft de gemeente Asten naar een duurzame toekomst en het anticiperen op klimaatverandering. Particulieren zijn in principe zelf verantwoordelijk voor de inzameling en verwerking van hemelwater vanaf hun eigen perceel. Bij nieuwbouw en bij herbouw dient een waterbergingsvoorziening gerealiseerd te worden met een inhoud van 60mm/m2 verhard oppervlak. Bij grootschalige ontwikkelingen gaat de voorkeur uit naar de realisatie van collectieve voorzieningen. Dit maakt het makkelijker om robuuste voorzieningen aan te leggen en verhoogd de handhaafbaarheid.
  • Grondwater: de gemeente Asten geeft gehoor aan de grondwaterzorgplicht door binnen de grenzen van doelmatigheid en financiële en technische haalbaarheid maatregelen te treffen om structurele grondwateroverlast te voorkomen of te beperken.
5.3.2 Beoordeling

Ter beoordeling van het thema water is een waterplan opgesteld. Het 'Waterplan Loverbosch fase III, Technische onderzoeken t.b.v. het bestemmingsplan Loverbosch fase III' is separaat toegevoegd als Bijlage 10. Er dient te worden gewaarborgd dat de waterhuishoudkundige doelstellingen expliciet en op evenwichtige wijze in beschouwing worden genomen bij de ontwikkeling. Het waterplan is opgesteld op basis van het oorspronkelijke stedenbouwkundig plan en civieltechnisch ontwerp voor de 250 wooneenheden en een oppervlak van 12 ha. De oorspronkelijke maatregelen voor de wateropgave, dus inclusief het noordelijke deel van Loverbosch dat géén onderdeel uitmaakt van dit bestemmingsplan, zoals de geplande wadi's maken alsnog ongewijzigd onderdeel uit het onderhavige plangebied. Daarmee wordt voorzien in grotere hemelwatervoorzieningen in het plangebied dan waar dit bestemmingsplan op toeziet. Reden hiervoor is dat het noordelijk deel van Loverbosch fase 3 alsnog snel zal worden gerealiseerd middels een aparte procedure en dan alsnog gebruik zal moeten worden gemaakt van de hemelwatervoorzieningen in het gebied ten behoeve van deze ontwikkeling.

Hemelwater

Op basis van het principe van hydrologisch neutraal ontwikkelen dient te worden voorkomen dat door bebouwing en verharding een versnelde waterafvoer plaatsvindt. De gemeente streeft naar het vasthouden van gebiedseigen water door benutting van de natuurlijke bergingscapaciteit van bodem en oppervlaktewater. Transport van schoon hemelwater via de riolering moet worden vermeden. De gemeente geeft de voorkeur aan verwerking van hemelwater in een collectieve voorziening in de openbare ruimte.

Benodigde watercompensatie

Al het regenwater dat op nieuwe verhardingen valt, dient te worden opgevangen en geïnfiltreerd of vertraagd te worden afgevoerd. Door het realiseren van woningen, appartementencomplexen, toegangswegen en overige verhardingen neemt het oppervlak verhard toe. Op basis van het stedenbouwkundig ontwerp is de oppervlakte van de verhardingen bepaald. Dit wordt nader toegelicht in onderstaande tabel(len).

Het plan dient te voldoen aan de regels uit de Keur en het GRP. Het gemeentelijk waterbeleid hanteert dezelfde berekeningsmethode als het waterschap, maar hanteert geen gevoeligheidsfactor. De benodigde watercompensatie vanuit het gemeentelijk waterbeleid komt voor gebieden met gevoeligheidsfactor 1 overeen met de benodigde watercompensatie vanuit de Keur van het waterschap.

De gevoeligheidsfactor voor het berekenen van de waterbergingsopgave uit de Keur is 1. Conform de rekenregel uit de Keur dient de toename aan verharding gecompenseerd te worden door 600 m3 waterberging per hectare verharding. Dit komt overeen met 60 mm neerslag. De benodigde berging voor de compensatie is berekend in de navolgende tabellen.

In dit kader wordt er nogmaals gewezen dat het waterplan is opgesteld o.b.v. het oorspronkelijke stedenbouwkundig plan en civieltechnisch ontwerp voor de 250 wooneenheden en een oppervlak van 12 ha. In het nieuwe plan is het plangebied kleiner en zijn een aantal woonkavels, rijbanen, trottoirs en parkeervakken geschrapt. Onderstaande tabel geeft een overzicht van de gewijzigde oppervlaktes per functie:


afbeelding "i_NL.IMRO.0743.BP02022002-OW01_0037.jpg"  
Functies en verhard oppervlak i.r.t. benodigde hemelwaterberging  

De totale wateropgave binnen het oorspronkelijke (grotere) plangebied van het bestemmingsplan 'Loverbosch – fase III' is te berekenen via onderstaande formule:

Benodigde compensatie (in m3) = Toename verhard oppervlak (in m2) * Gevoeligheidsfactor * 0,06 (in m)

Benodigde compensatie (in m3) = 73.191 m2 * 0,06 (in m) = 4.392 m³

Daarnaast zijn in de huidige situatie binnen het plangebied een aantal kavelsloten aanwezig. Deze sloten komen te vervallen. De berging van de te vervallen sloten dient te worden gecompenseerd. In totaal is ongeveer 405 meter aan kavelsloot aanwezig. In totaal kan in deze sloten 268 m³ worden geborgen. In totaal moet worden voorzien in het bergen van 4.660 m³ aan hemelwater.

In het nieuwe plan bedraagt de benodigde compensatie (in m3) = 60.418 m2 * 0,06 (in m) = 3.625 m³. Inclusief de compensatie voor de kavelsloten bedraagt de totale opgave 3.893 m³. Ten opzichte van het oude plan is sprake van een afname van 767 m³.

In het oorspronkelijke stedenbouwkundig plan is ruimte opgenomen voor hemelwaterberging in de vorm van wadi's, waardoor het hemelwater binnen het eigen plangebied kan worden geborgen. De wadi's hebben ruim voldoende capaciteit (4.392 m³) om het hemelwater tijdelijk te bergen. In de nieuwe plannen wijzigt de ligging en de capaciteit van de wadi's niet.

Binnen het stedenbouwkundig ontwerp is reeds ruimte gereserveerd voor de aanleg van wadi’s om het hemelwater te kunnen bergen. In totaal zijn een aantal stroken, geclusterd aan de infrastructuur ter plekke, gereserveerd voor groen in combinatie met een wadi. Uitgaande van de bestaande maaiveldhoogtes en de gemiddelde hoogste grondwaterstand (GHG; ongeveer 23,8 m +NAP), hebben deze wadi’s een diepte van 60 cm. In deze wadi’s kan ruim 2420 m³ worden geborgen. De schatting van de capaciteit van deze wadi’s betreft een minimale capaciteit op basis van de bestaande maaiveldhoogte. Omdat ten behoeve van de bouwrijp maken van het terrein de maaiveldhoogtes worden opgehoogd tot 24,6 m +NAP, wordt de capaciteit van de wadi’s verder verhoogd.

afbeelding "i_NL.IMRO.0743.BP02022002-OW01_0038.jpg"  
Ligging wadi’s (schematisch)  

Om de waterberging optimaal te benutten en daarnaast te zorgen dat de berging weer tijdig beschikbaar is voor de volgende bui dient de berging voorzien te worden van een afvoerconstructie. De afvoer dient begrensd te worden op 2 l/s/ha om versnelde afvoer tegen te gaan. Op de waterberging is een oppervlak van 7,32 ha (gebouwen en verhardingen) aangesloten. De afvoer moet dan een capaciteit hebben van 2,0 l/s/ha * 7,32 ha = 14,7 l/s. Een volle waterberging loopt dan – rekening houdend met een aanvullende aanvoer door 2 mm aan neerslag per dag – leeg in 94,2 uur. Hiermee voldoet het plan aan de vereiste uit de beleidsregel Keur, waarin is gesteld dat binnen 5 dagen de watervoorziening leeg moet zijn.

Om te bepalen of de bergingsvoorziening onder vrij verval kan leeglopen in het oppervlaktewater, moet de hoogte van de afvoer van de berging worden vergeleken met het maximale oppervlaktewaterpeil. De voorziening kan afvoeren op de naastgelegen watergang. De watergangen nabij het plangebied staan in directe verbinding met de Beekerloop, die wordt gestuwd ter plekke van de kruising Koestraat-Linnen (stuw 279G). In het kader van het project 'Herinrichting Beekerloop' wordt deze stuw vervangen. De nieuw te realiseren stuw heeft een hoogste klepstand van 23,4 m +NAP met een conserveringsmarge tot 23,5 m +NAP. Het huidig maaiveld ligt ter plekke van de bergingsvoorziening op circa 23,8 m +NAP. De leegloop van de bergingsvoorziening wordt gerealiseerd op 23,8 m +NAP. De leegloop blijft dan ook functioneren bij de hoogste klepstand van de stuw in de Beekerloop van 23,4 m +NAP. Tevens wordt in het plan een noodoverstort opgenomen voor situaties dat het harder regent dan de bui van 60 mm.

Bij de definitieve uitwerking in de vorm van een omgevingsvergunning voor bouwen en het aanvragen van een watervergunning, kan meer gedetailleerd worden ingegaan op de constructie en de hemelwaterleidingen van de gebouwen naar de bergingsvoorziening.

In het stedenbouwkundig plan is ruimte opgenomen voor hemelwaterberging in de vorm van wadi's, waardoor het hemelwater binnen het eigen plangebied kan worden geborgen. De wadi's hebben ruim voldoende capaciteit om het hemelwater tijdelijk te bergen. Het overige deel van het plangebied wordt opgehoogd tot 24,6 m +NAP (0,8 meter boven de GHG), waardoor sprake is van voldoende bergingscapaciteit en ontwatering van het plangebied. Derhalve wordt de capaciteit van de hemelwatervoorzieningen verder verhoogd. Uit het voorgaande kan worden geconcludeerd dat het planvoornemen niet leidt tot waterproblemen en dat het kan worden voldaan aan de bergingsopgave.

5.4 Flora & fauna

5.4.1 Gebiedsbescherming

Bij het opstellen van een ruimtelijke onderbouwing moet rekening gehouden worden met de gevolgen van de ontwikkeling voor de natuur. Het natuurbeschermingsrecht is te vinden in verdragen, Europese en nationale regelgeving en in nationaal en provinciaal beleid. Vanuit de Europese regelgeving wordt met name nadruk gelegd op de bescherming van plant- en diersoorten (Vogelrichtlijn) en leefgebieden (Habitatrichtlijn). Ten behoeve hiervan zijn dan ook diverse beschermingsgebieden aangewezen. De belangrijkste beschermingszones zijn Natura 2000-gebieden. In het vervolg van deze paragraaf wordt specifiek ingegaan op respectievelijk gebiedsbescherming en soortenbescherming.

- Natura 2000-gebieden

De bescherming van Natura 2000-gebieden is geregeld in de Wet natuurbescherming, die de implementatie vormt van de Europese Vogelrichtlijn en Habitatrichtlijn. De Natura 2000-gebieden vormen samen een Europees netwerk van natuurgebieden: Natura 2000. Als ontwikkelingen (mogelijk) leiden tot aantasting van natuurwaarden binnen een Natura 2000-gebied, moet een vergunning worden aangevraagd. Gedeputeerde staten van de provincie zijn het bevoegd gezag voor verlening van deze vergunning. Indien eerst een omgevingsvergunning wordt aangevraagd voor een activiteit waarvoor tevens een vergunning op grond van de Wet natuurbescherming is vereist, dan haakt de natuurtoets aan bij de omgevingsvergunning. Verder moet rekening worden gehouden met het beleid ten aanzien van het Natuurnetwerk Nederland (NNN). De regels met betrekking tot het NNN zijn opgenomen in de provinciale verordening. Ten aanzien van ontwikkelingen binnen het NNN geldt het 'nee, tenzij-principe'.

Beoordeling/ betekenis voor het plangebied

- Natuurnetwerk Nederland/Natuurnetwerk Brabant

Het plangebied is geen onderdeel van het NNB (EHS, EVZ of de ‘groenblauwe mantel’). In de directe omgeving zijn wel gebieden aanwezig die onderdeel zijn van de NNB. Gelet op aard van de ontwikkeling, de afstand tot het plangebied en tussenliggende elementen, zal er geen sprake zijn van een aantasting van de wezenlijke waarden en kenmerken van de NNB middels externe werking. Vanuit de natuurbeleidskaders zijn er geen belemmeringen voor de voorgenomen ontwikkeling, er is geen noodzaak voor een nadere procedure.

- Stikstofdepositie

Het (voormalige) Programma Aanpak Stikstof (PAS) vormt niet meer het toetsingskader na de uitspraak van de Raad van State op 29 mei 2019, waarin zij heeft geoordeeld dat het PAS niet meer als basis mag worden gebruikt voor toestemming voor activiteiten in het kader van de Wet natuurbescherming, zoals een vergunning of een melding. Ook de “standaard grenswaarde” die in het PAS was opgenomen, kan nu niet meer worden gebruikt Zo waren veel woningbouwprojecten tot voor kort voor het aspect stikstof vergunningsvrij en was ook een melding vaak niet nodig, omdat de extra stikstofemissies beperkt waren en de depositie onder de grenswaarde lag. Nu de landelijke grenswaarde onder de PAS niet meer kan worden gebruikt, is een stikstofbeoordeling en mogelijk ook een vergunning Wet natuurbescherming voor heel veel activiteiten nodig is. Voor elke toename, hoe klein ook, is vooralsnog een eigen onderbouwing nodig. Als een bestemmingsplan een mogelijke toename van de stikstofemissie toestaat, moet in het plan gemotiveerd worden hoe de depositie eruit ziet en hoe zich dat verhoudt tot de kritische depositiewaarde en de nog beschikbare ruimte voor stikstoftoename.

Beoordeling/ betekenis voor het plangebied

Ter beoordeling van de effecten op nabijgelegen Natura 2000-gebieden als gevolg van stikstof is een 'Notitie beoordeling stikstof' opgesteld. Dit onderzoek is separaat toegevoegd als Bijlage 11. Het plangebied is gelegen op ca. 5,7 kilometer van het Natura 2000-gebied ‘Groote Peel’, op ca. 5.8 km van het Natura 2000 gebied ‘Deurnsche Peel & Mariapeel’ en op 7,3 km van het Natura 2000 gebied ‘Strabrechtse Heide en Beuven’.

afbeelding "i_NL.IMRO.0743.BP02022002-OW01_0039.png"  
Plangebied en nabij gelegen Natura 2000 gebieden, plangebied bij 1  

Uit de stikstofbeoordeling is gebleken dat significant negatieve effecten ten aanzien van de instandhoudingsdoelstellingen van Natura 2000 gebieden op voorhand zijn uit te sluiten. Er is derhalve voor de ontwikkeling geen Wnb vergunning nodig.

5.4.2 Soortenbescherming

Behalve de mogelijke effecten op natuurgebieden moet ook duidelijk zijn of het betreffende plan effecten heeft, en zo ja welke, op beschermde soorten. De bescherming van dier- en plantensoorten is eveneens in de Wet natuurbescherming geregeld. In deze wet zijn drie beschermingsregimes opgenomen: voor vogels in de zin van de Vogelrichtlijn, voor dier- en plantensoorten uit de Habitatrichtlijn en voor overige soorten. Kort gezegd is het verboden om beschermde diersoorten opzettelijk te doden, te vangen of te verstoren. Hun voortplantings- en rustplaatsen mogen niet (opzettelijk) worden beschadigd of vernield. Verder is het verboden beschermde plantensoorten te vernielen. Voor handelingen die mogelijk schadelijk kunnen zijn voor beschermde soorten, moet een ontheffing worden aangevraagd. Onder voorwaarden is ontheffing van de verbodsbepalingen mogelijk. Het bevoegd gezag voor het verlenen van een ontheffing zijn gedeputeerde staten van de provincie.

Beoordeling / betekenis voor het plangebied

Alvorens met het stedenbouwkundig plan te starten is allereerst door Staro BV voor de planlocatie een QuickScan flora en fauna uitgevoerd (Staro BV 21-0151 , datum) welke is opgenomen als Bijlage 12 uitgangspunten gehanteerd voor de uitwerking van de natuurinclusieve woonwijk.

Ten aanzien van de soortenbescherming komt uit het onderzoek naar voren dat:

In het plangebied komen mogelijk verschillende soorten voor die zijn beschermd onder paragrafen 3.1, 3.2 en 3.3 van de Wet natuurbescherming. Het is niet uit te sluiten dat in het plangebied beschermde zoogdieren voorkomen. Voor alle aanwezige soorten in het plangebied geldt de algemene zorgplicht, zie §1.3 van dit rapport. Navolgende tabel geeft een overzicht van de mogelijk aanwezige en aangetroffen beschermde soorten in de omgeving van het plangebied.

afbeelding "i_NL.IMRO.0743.BP02022002-OW01_0040.jpg"
afbeelding "i_NL.IMRO.0743.BP02022002-OW01_0041.jpg"  
Overzicht mogelijk aanwezige en aangetroffen beschermde soorten in de omgeving van het plangebied  

Das:
Naar aanleiding van de quick scan is een nader onderzoek naar de Das uitgevoerd door Staro BV (d.d. 6 augustus 2021). Dit onderzoek is seperaat toegevoegd als Bijlage 13 gebruikt maakt van het plangebied als migratieroute en als foerageergebied. In het plangebied zijn geen verblijfplaatsen aanwezig. Het bouwen en in gebruik nemen van de woonwijk heeft geen significant negatief effect op de migratieroute en het foerageergebied mits de oostrand goed wordt ingericht (bomen en struiken die dekking bieden, doornstruiken die mensen en honden weren). Ook wordt zeer aangeraden een dassentunnel met raster aan te leggen onder de N279 om de bereikbaarheid te verbeteren en verkeersslachtoffers te voorkomen. Door enkele fruitbomen te planten in de bosschagestrook langs de oostrand wordt de migratieroute ook geschikt als foerageergebied voor dassen. Het compenseren van het foerageergebied dat verdwijnt biedt geen meerwaarde voor de dassenpopulatie en de kwaliteit van het leefgebied. Het aanleggen van meer grasland in de omgeving is derhalve niet nodig. Voor het realiseren van de woonwijk hoeft voor dassen geen ontheffing verkregen te worden.

Vleermuizen:
In verband met de kap van 7 bomen langs de koestraat is een holteonderzoek uitgevoerd om de aanwezigheid van verblijfplaatse van vleermuizen uit te sluiten. Het aanvullend holteonderzoek naar de aanwezigheid van vleermuizen in de zeven te kappen bomen langs de Koestraat is op 8 februari 2023 uitgevoerd (rapportage d.d. 14 februari 2023, zie Bijlage 14 Aanvullend holte-onderzoek). Uit het veldonderzoek blijkt dat in de betreffende zeven bomen géén voor vleermuizen geschikte holtes aanwezig zijn. Ook zijn in de bomen géén jaarrond beschermde nesten aangetroffen. Nader onderzoek is dan ook niet nodig.

Door de kap van de bomen ontstaat echter op één locatie een onderbreking van de bomenrij groter dan 20 meter van kroon tot kroon tot de opeenvolgende bomen. Dit betreft namelijk de kap van de drie bomen aan de zuidzijde van het plangebied, waarbij een onderbreking van 25 meter ontstaat. Door de afmeting van deze toekomstige onderbreking is niet uit te sluiten dat een vliegroute van vleermuizen wordt vernietigd. Om te voorkomen dat een dermate grote doorbreking ontstaat en daarmee de Wet natuurbescherming wordt overtreden, gaat de gemeente Asten de nieuwe ontsluiting aanpassen zodat bomen kunnen worden gespaard en/of worden nieuwe bomen geplant waarmee de onderbreking niet groter wordt dan 20 meter.

Doordat geen verblijfplaatsen van vleermuizen worden vernietigd en de vliegroute in tact wordt gehouden, ontstaat geen overtreding van de Wet natuurbescherming. Zodoende zijn er geen belemmeringen vanuit de Wet natuurbescherming voor het kappen van de bomen.

-Maatregelen en vervolgstappen

Geconcludeerd kan worden dat geen sprake is van overtreding van de Wet natuurbescherming mits de volgende maatregelen en vervolgstappen genomen dienen te worden.

  • 1. Bomen dienen te worden gesnoeid of gekapt buiten het broedseizoen van vogels (en wanneer geen broedgevallen aanwezig zijn).
  • 2. De vliegroute van de vleermuizen dient intact te worden gehouden. Er mag geen onderbreking van meer dan 20 meter in de bomenrij ontstaan. De nieuwe ontsluiting dient aangepast te worden zodat bomen kunnen worden gespaard en/of nieuwe bomen dienen aangeplant te worden zodat de onderbreking niet groter wordt dan 20 meter.
  • 3. Watergangen en greppels worden gedempt buiten de periode half maart tot half september of als ze droogstaan.
  • 4. Om verstoring van vleermuizen en andere nachtactieve dieren te voorkomen, wordt aanbevolen de (bouw)verlichting in de nacht uit te zetten en bomenlanen en bosjes niet te verlichten. Indien het tijdens de aanlegfase noodzakelijk is nachtelijk te verlichten, wordt aangeraden de ledlampen naar beneden te richten, bosranden niet te verlichten en om hiervoor amberkleurige verlichting te gebruiken.

- Zorgplicht en aanbevelingen

Om aan de zorgplicht van de Wet natuurbescherming te voldoen dienen de volgende maatregelen te worden genomen.

  • 1. Stammen met holtes moeten na kap met de opening van de holte zijwaarts gericht blijven liggen, zodat eventueel tóch aanwezige dieren hun verblijf kunnen verlaten.
  • 2. Om het verwonden van dieren te voorkomen kan bij het afgraven van de grond één kant op worden gewerkt, zodat aanwezige dieren kunnen vluchten.
  • 3. De reuzenberenklauw in het bosje ten noordoosten van het plangebied dient te worden verwijderd in het kader van Plan van Aanpak - Invasieve Exoten Noord-Brabant.

Beoordeling / betekenis voor het plangebied

Gelet op de gevonden en te verwachten ecologische waarden en de beoogde planontwikkeling dient het bepaalde in de Wet natuurbescherming in acht te worden genomen. Verstoring van soorten kan voorkomen worden door gestelde maatregelen in acht te nemen. Verder dient te allen tijde rekening gehouden te worden met de zorgplicht. Tevens kunnen op voorhand negatieve effecten op Natura 2000-gebieden vanwege stikstofdepositie worden uitgesloten. Ter bescherming van de aangetroffen dassenwissel wordt deze noord-zuid georienteerde verbinding langs de N279 versterkt met natuurlijke maatregelen welke zijn opgenomen en beschreven in het stedenbouwkundig- en landschapsplan. Hiermee wordt een negatief effect op de Das voorkomen.

5.5 Cultureel erfgoed

5.5.1 Cultuurhistorie

Per 1 januari 2012 is de Modernisering Monumentenzorg in werking getreden. Als gevolg van de MoMo is het Bro (artikel 3.6.1, lid 2) gewijzigd. In een bestemmingsplan dient een beschrijving te worden opgenomen hoe met de in het gebied aanwezige cultuurhistorische waarden en in de grond aanwezige of te verwachten monumenten, rekening is gehouden. Bij de opstelling en uitvoering van ruimtelijke plannen moet met de cultuurhistorische (landschaps)waarden van bovenlokaal belang rekening worden gehouden. De provincie heeft hiertoe in haar Verordening zogeheten cultuurhistorische vlakken aangeduid. Deze vlakken verdienen specifieke aandacht vanwege de onvervangbaarheid van de aanwezige waarden. Gemeenten dienen de cultuurhistorische waarden en kenmerken van deze gebieden te behouden, herstellen en/of duurzaam te ontwikkelen. Ruimtelijke ontwikkelingen kunnen hier enkel worden toegestaan, indien zij de wezenlijke kenmerken en waarden van het gebied niet aantasten.

Beoordeling / betekenis voor het plangebied

De planlocatie maakt onderdeel uit van de 'Peelrand'. De Peelrand bestaat uit een ring van middeleeuwse dorpen op enige afstand van het voormalige veengebied van De Peel. Deze oude dorpen worden gekenmerkt door akkercomplexen, schaarse groenlanden en voormalige heidevelden. In de regio ligt het oud zandlandschap bij Stiphout dat een cultuurhistorische landschap van provinciaal belang vormt. Het plangebied maakt hier geen onderdeel van uit.

Tevens is de projectlocatie gelegen op het 'Dekzandeiland Asten-Deurne', dit landschap met cultuurhistorisch belang bestaat uit dekzandeilanden die van elkaar worden gescheiden door beekdalen. Aan de projectlocatie is hier verder geen specifieke cultuurhistorische waarde toegekend.

Binnen de planlocatie zijn verder geen monumenten aanwezig en geen wettelijk beschermde cultuurhistorische waarden. De beoogde ontwikkeling heeft geen gevolgen voor de cultuurhistorische waarden in de omgeving van de projectlocatie en is in het kader van cultuurhistorie dan uitvoerbaar.

5.5.2 Archeologie

De Monumentenwet 1988 is per 1 juli 2016 vervallen. Een deel van de wet is op deze datum overgegaan naar de Erfgoedwet. De Erfgoedwet bundelt en wijzigt een aantal wetten op het terrein van cultureel erfgoed. De kern van deze wet is dat wanneer de bodem wordt verstoord, de archeologische resten intact moeten blijven. Wanneer dit niet mogelijk is, worden archeologische resten opgegraven en elders bewaard. Daarnaast dient ieder ruimtelijk plan een analyse van de overige cultuurhistorische waarden van het plangebied te bevatten. Voor zover in een plangebied sprake is van erfgoed, dient op grond van het voorgaande dan ook aangegeven te worden op welke wijze met deze cultuurhistorische waarden en in de grond aanwezige of te verwachten archeologie rekening wordt gehouden.

Beoordeling / betekenis voor het plangebied

Voor het totale plangebied, opgedeeld in 4 fasen, is in 2006 door Grontmij (tegenwoordig Sweco) een archeologisch bureauonderzoek uitgevoerd dat in 2007 door Oranjewoud (tegenwoordig Antea) werd opgevolgd met een verkennend booronderzoek over 38 hectare van het gebied. Dit archeologisch onderzoek is seperaat toegevoegd als Bijlage 15, Bijlage 16 en Bijlage 17.

Naar aanleiding van dit onderzoek is door archeologisch onderzoeksbureau BAAC in 2008 een archeologisch proefsleuvenonderzoek uitgevoerd op de locaties waar op basis van het eerdere onderzoek van Grontmij en Oranjewoud een archeologische verwachting bleef bestaan.2 De omvang van die zones bedroeg samen 9,6 ha. In het bureauonderzoek, het verkennend booronderzoek én het proefsleuvenoderzoek is het grondgebied van fase 3 meegenomen.

Op basis van het eerder opgestelde (selectie) advies van BAAC in 2008, zijn de aangetroffen vondsten en sporen (samen: de vindplaats) niet 'behoudenswaardig' bevonden. Dat wil zeggen dat de aangetroffen resten wetenschappelijk en/of cultuurhistorisch niet de moeite waard zijn gebleken om (in de toekomst) nog verder te onderzoeken.

Dit wil zeggen dat het in 2007 en 2008 met boringen en proefsleuven onderzochte gebied archeologisch kan worden vrijgegeven. Voor fase 1 en 2 is dit advies opgevolgd en zijn de plannen zonder nader onderzoek (m.u.v. een klein terreintje waar een Romeinse muntschat is gevonden) gerealiseerd.

Voor fase 3 van het plan Loverbosch zijn thans geen verdere archeologische belemmeringen. Ook in dit plandeel kan de dubbelbestemming Waarde Archeologie komen te vervallen. Eventuele toevalsvondsten die tijdens het bouwrijp maken worden gevonden, dienen direct gemeld te worden bij de gemeente Asten.

Op 30-12-2021 heeft de gemeente Asten een selectiebesluit genomen. Het besluit 'Selectieadvies en -besluit archeologie Asten – Loverbosch fase 3' is seperaat toegevoegd als Bijlage 18.

5.6 Leidingen

In het plangebied zijn geen leidingen met een planologisch relevante beschermingszone gelegen, noch overlapt een beschermingszone van een planologisch relevante leiding met het plangebied.

5.7 Niet gesprongen conventionele explosieven (NCE)

Op een onbekend aantal plaatsen in Nederland liggen nog bommen, granaten en andere munitieartikelen uit de Tweede Wereldoorlog. Volgens mondiale, militaire inschatting is van al het explosieve materieel dat gedurende de Tweede Wereldoorlog (1939-1945) is ingezet, verschoten of afgeworpen, tussen de zeven en vijftien procent om verschillende redenen niet tot ontploffing gekomen. Wanneer deze explosieven bij werkzaamheden worden aangetroffen, kunnen deze gevaar opleveren voor de publieke veiligheid.

Om spontane vondsten en eventuele daaruit voortvloeiende ongewilde gebeurtenissen te voorkomen, kan preventief een opsporingsproces in gang gezet worden. Deze opsporingswerkzaamheden mogen op grond van het Arbeidsomstandighedenbesluit (Arbobesluit) enkel uitgevoerd worden door de Explosieven Opruimingsdienst Defensie (EOD) en bedrijven die in het bezit zijn van een certificaat voor het opsporen van conventionele explosieven (CE). Een eerste stap in het opsporingsproces wordt doorgaans gevormd door een (historisch) vooronderzoek waarin beoordeeld wordt of een onderzoekgebied verdacht is op de mogelijke aanwezigheid van conventionele explosieven.

Beoordeling / betekenis voor het plangebied

In 2014 is een vooronderzoek uitgevoerd naar niet-gesprongen conventionele explosieven in de omgeving Koestraat en Stegen te Asten. Het onderzoek is separaat toegevoegd aan de toelichting als Bijlage 19.

Het onderzoeksgebied ‘Omgeving Koestraat en Stegen te Asten’ bestaat uit een gebied binnen de Gemeente Asten met een oppervlakte van circa 90 hectare. Het gebied heeft een agrarische invulling en wordt omsloten door de N279 in het noorden en oosten, de Floralaan en Koestraat in het westen en de Voordeldonk in het zuiden. Het onderzoeksgebied is in navolgende weergegeven.

afbeelding "i_NL.IMRO.0743.BP02022002-OW01_0042.png"  
Onderzoeksgebied  

In het onderzoek is geconcludeerd dat het onderzoeksgebied gedeeltelijk verdacht is op het aantreffen van afgeworpen conventionele explosieven. Het verdachte gebied is in de ‘CE Bodembelastingkaart’ aangegeven. ECG adviseert het proces van explosievenopsporing voort te zetten bij grondroerende werkzaamheden binnen de in de ‘CE Bodembelastingkaarten’ als verdacht aangemerkte gebieden.

Het plangebied is niet gelegen in dit verdacht gebied. Nader onderzoek is niet nodig.

5.8 Mer(beoordelings)plicht

5.8.1 Algemeen

In de Wet milieubeheer (Wm) en het bijbehorende Besluit m.e.r. zijn activiteiten genoemd waarvoor een milieueffectrapportage (MER) dient te worden opgesteld. Hierbij wordt onderscheid gemaakt in activiteiten waarvoor een m.e.r.-procedure moet worden doorlopen (m.e.r.-plicht) en activiteiten waarvoor het bevoegd gezag dient te beoordelen of een m.e.r.-procedure al dan niet nodig is (m.e.r.-beoordelingsplicht).

De beoogde ontwikkeling komt in de lijst C van de bijlage van het Besluit m.e.r. niet als activiteit voor. Met betrekking tot de ontwikkeling is in onderdeel D (11.2) van de bijlage van het Besluit milieueffectrapport (Besluit m.e.r.) het volgende opgenomen: "de aanleg, wijziging of uitbreiding van een stedelijk ontwikkelingsproject met inbegrip van de bouw van winkelcentra of parkeerterreinen." De voorgenomen ontwikkeling ligt ver onder de drempelwaarde die is opgenomen in kolom 2, namelijk een oppervlakte van 100 hectare of meer, een aaneengesloten gebied en 2.000 woningen of meer of een bedrijfsvloeroppervlakte van 200.000 m² of meer. Er is voor de activiteit derhalve geen sprake van een m.e.r.-beoordelingsplicht. Er dient wel een vormvrije m.e.r.- beoordeling te worden uitgevoerd.

afbeelding "i_NL.IMRO.0743.BP02022002-OW01_0043.png"

De wettelijke regeling voor de m.e.r.-beoordeling gaat uit van het principe 'nee, tenzij': een m.e.r.-procedure is alleen nodig als er sprake is van 'belangrijke nadelige gevolgen voor het milieu'. Op grond van de Wm houdt het bevoegd gezag bij haar besluit rekening met de omstandigheden zoals aangegeven in bijlage III van de EEG-richtlijn milieueffectbeoordeling, te weten:

  • Kenmerken van het project;
  • Locatie van het project;
  • Kenmerken van de potentiële effecten (in samenhang met de eerste twee criteria).
5.8.2 Beoordeling

Ten behoeve van het planvoornemen is een vormvrije m.e.r.-beoordeling uitgevoerd. Daartoe is een aanmeldnotitie m.e.r. opgesteld. Deze is separaat toegevoegd aan de toelichting als Bijlage 20.

De effecten van de planontwikkeling zijn nader onderbouwd in hoofdstuk 4 van de toelichting op het plan en bekrachtigd in diverse onderzoeken die onderdeel uitmaken van die toelichting op het bestemmingsplan. Uit de onderzoeken blijkt dat de locatie milieukundig geschikt is om te worden ontwikkeld tot een woongebied. Een goed een woon- en leefklimaat kan binnen de nieuwe woningen worden gerealiseerd. Daarnaast wijzen de onderzoeken uit dat als gevolg van de ontwikkeling sprake is van een acceptabele belasting op de omgeving. De ontwikkeling is derhalve ruimtelijk aanvaardbaar. Tevens is de ontwikkeling in een separaat uitgevoerde vormvrije m.e.r. beoordelingsnotitie beoordeeld. Geconcludeerd wordt dat de effecten van de planontwikkelingen geen aanleiding geven tot het opstarten van een m.e.r.-procedure. Hierover heeft de gemeente Asten een besluit genomen [datum].

Op basis van de onderbouwingen in de voorgaande paragrafen mag geconcludeerd worden dat vanuit milieuaspecten geen belemmeringen bestaan tegen het planvoornemen.

Hoofdstuk 6 Juridisch plan

6.1 Algemeen

Het onderhavige bestemmingsplan heeft tot doel een juridischplanologische regeling te scheppen voor de bebouwing en het gebruik van gronden en gebouwen binnen het gebied Loverbosch fase 3. In voorgaande hoofdstukken zijn de uitgangspunten voor de komende jaren voor de ruimtelijke en functionele gewenste situatie in het plangebied aangegeven. Deze uitgangspunten zijn getoetst aan de milieu- en omgevingsaspecten.

Bij het opstellen van het bestemmingsplan is aansluiting gezocht bij de systematiek van het bestemmingsplan ‘Bestemmingsplan Woongebieden Asten’ (vastgesteld d.d. 15 december 2009) en 'Bestemmingsplan Asten Loverbosch fase 2 2017' aangevuld met de laatste inzichten vanuit de Wet ruimtelijke ordening, het Besluit ruimtelijke ordening, Wabo en het Besluit omgevingsrecht met bijbehorende bijlagen. Gestreefd is hierbij naar uniformering en standaardisering van bestemmingen en regels.


In dit hoofdstuk wordt de inhoud van de bestemmingen (de gebruiks- en bebouwingsmogelijkheden) toegelicht en wordt aangegeven hoe de uitgangspunten hun juridische vertaling in het eigenlijke plan (regels en verbeelding) hebben gekregen. De bestemmingen zijn juridisch vastgelegd in de tekst van de regels en in beeld op een verbeelding.


Verbeelding en regels zijn één geheel en niet afzonderlijk leesbaar.

6.2 Systematiek

Het bestemmingsplan is naar aanleiding van de inwerkingtreding van de Wet ruimtelijke ordening opgezet volgens de verplichte landelijke Standaard Vergelijkbare Bestemmingsplannen (SVBP 2012). Deze standaard - welke slechts een systematische standaardisering betreft en geen inhoudelijke standaard is - is verplicht in het nieuwe Besluit op de ruimtelijke ordening (Bro). Zo voorziet het SVBP in een standaardopbouw van een bestemmingsplan door onder andere:

  • standaardbenamingen van een bestemming en de daarin voorkomende bepalingen (bouwregels, aanlegvergunningen, e.d.);
  • de alfabetische volgorde van de begripsbepalingen en bestemmingen;
  • een vaste volgorde van een indeling van een bestemming;
  • een aantal standaardbegripsbepalingen;
  • een standaardwijze van meten;
  • vaste kleuren en kleurcodes van een bestemming op de verbeelding;
  • standaardbenamingen van aanduidingen op de digitale verbeelding van het bestemmingsplan en in de regels.

In het kader van de wet- en regelgeving is het plan technisch als een digitaal raadpleegbare versie uitgevoerd en voldoet het aan de eisen van DURP (Digitale Uitwisseling in Ruimtelijke Processen). Het plan kan in het informatiesysteem van de gemeente en diverse andere overheden worden ingevoerd en worden ontsloten via internet. Er zal een analoge (papieren) versie van het bestemmingsplan naast het digitale plan blijven bestaan.

6.3 Bestemmingen & regelingen

6.3.1 Bestemmingen

Hieronder wordt op hoofdlijnen een uitleg gegeven bij die bestemmingen voorzover dit noodzakelijk is. Niet alle bestemmingen zijn hier beschreven, wanneer de bestemming niet beschreven is, zijn er geen bijzonderheden te melden.

Artikel 3. Groen

Groen maakt onderdeel uit van de openbare ruimte en is als onderdeel hiervan op de verbeelding voorzien van een afzonderlijke bestemming ‘Groen’ als sprake is van structureel groen ofwel beeldbepalende beplanting binnen de bebouwde omgeving. Het betreft met name structureel groen aan de randen van de wijk Loverbosch fase 2. Binnen de bestemming groen zijn speelvoorzieningen (zoals een schommel, glijbaan en klimrek), waterberging en parkeervoorzieningen overal toegestaan.

Artikel 5 Verkeer

Deze bestemming spreekt voor zich. Het betreft de bestemming voor bewegend en stilstaand verkeer en de daarbij behorende voorzieningen. Tevens wordt binnen de bestemming voorzien in de mogelijkheid van nutsvoorzieningen, water en groen.

Artikel 6 Water

Het betreft de bestemming voor water, waterpartijen en waterhuishoudkundige doeleinden, waaronder het ontvangen, vasthouden, (tijdelijk) bergen en afvoeren van water, eventueel gecombineerd met infiltratie van water in de bodem. Op grond van de bestemming zijn tevens toegestaan groen en groenelementen. Een en ander met bijborende voorzieningen, zoals bruggen, steigers, kademuren en oeverbeschoeiingen.

Artikel 7 Wonen

Voor het plandeel van Loverbosch fase 2, waarvoor het programma in verregaande mate is bepaald, is een bestemming ‘Wonen’ opgenomen. De systematiek sluit aan bij de gehanteerde systematiek van bestemmen in het bestemmingsplan ‘Woongebieden Asten’. Een en ander met dien verstande dat de regels in juridisch opzicht zijn geoptimaliseerd en afgestemd op de laatste inzichten vanuit het Besluit omgevingsrecht (Bor). Zo is bijvoorbeeld het gebruik van bebouwing ten behoeve van mantelzorg inmiddels vergunningvrij. Daarnaast wordt bijvoorbeeld aangesloten bij de in het Bor gehanteerde begripsbelangen, zoals ‘bijbehorende bouwwerken’.

Functioneel is binnen de bestemming ‘Wonen’, het gebruik voor woondoeleinden toegestaan. Een aan huis gebonden beroep of bedrijf is uitsluitend toegestaan na het verlenen van een omgevingsvergunning voor het afwijken van de regels.

In het kader van deze bestemming zijn hoofdgebouwen en bijbehorende bouwwerken en bouwwerken, geen gebouwen zijnde, mogelijk binnen de aanduiding ‘bouwvlak’. De woningen kunnen worden gerealiseerd in het type vrijstaand, geschakeld en aaneengesloten. Het maximaal toegestane aantal woningen is op de verbeelding geduid met de aanduiding ‘maximum aantal wooneenheden’. Ter plaatse van de aanduiding ‘bijgebouwen’ zijn toegestaan bijbehorende bouwwerken en bouwwerken, geen gebouwen zijnde.

Artikel 9 - Wijzigingsbevoegdheid

De bestemmingsregels bevat een wijzigingsbevoegdheid voor de plannen in fase 2. Er is een wijzigingsbevoegdheid opgenomen voor appartementen.

6.3.2 Overige bepalingen

Afwijkingen (algemeen)

De in het plan opgenomen afwijking- en wijzigingsmogelijkheden bieden de mogelijkheid om veranderingen relatief snel, na een korte procedure te beoordelen en door te voeren. Aan het gebruik van deze binnenplanse flexibiliteitsbepalingen is wel een aantal voorwaarden verbonden. Deze voorwaarden zijn opgenomen in de planregels. Het doel van het opnemen van deze voorwaarden is om een goede belangenafweging te kunnen maken en te voorkomen dat er een stedenbouwkundige, planologische en aan de andere kant onaanvaardbare situatie zal ontstaan.

Hoofdstuk 7 Economische uitvoerbaarheid

7.1 Algemeen

In artikel 6.12, lid 1 Wro is opgenomen dat het verplicht is om een exploitatieplan vast te stellen op gronden waarop een bouwplan is voorgenomen. Artikel 6.2.1. onder a Bro geeft aan dat (o.a.) een bouwplan voor de bouw van één of meer woningen als bouwplan wordt aangewezen. Artikel 6.12, lid 2 Wro bepaalt dat in afwijking van het eerste lid de gemeenteraad, naar aanleiding van de omgevingsvergunning waarbij met toepassing van artikel 2.12, lid 1, onder a, 3°, Wabo, van het bestemmingsplan wordt afgeweken, kan besluiten geen exploitatieplan vast te stellen, indien het verhaal van kosten van de grondexploitatie over de in de vergunning begrepen gronden anderszins verzekerd is. Deze verzekering vindt plaats door middel van het sluiten van een realisatieovereenkomst.

Tevens is er een risicoanalyse uitgevoerd ten behoeve van de mogelijke tegemoetkoming in schade. De resultaten van de risicoanalyse zijn verwerkt in een overeenkomst tegemoetkoming in schade, die tussen de initiatiefnemer en de gemeente is gesloten. Op basis van bovenstaande kan geconcludeerd kan worden dat het plan economisch uitvoerbaar is.

Hoofdstuk 8 Overleg & inspraak

8.1 Overleg

In artikel 3.1.1 van het Besluit ruimtelijke ordening (Bro) is opgenomen dat de gemeente bij de voorbereiding van een ruimtelijk plan overleg moet plegen met de besturen van betrokken gemeenten en waterschappen en met die diensten van provincie en rijk die betrokken zijn bij de zorg voor ruimtelijke ordening of belast zijn met de behartiging van belangen die in het plan in het geding zijn.

In het kader van het vooroverleg is het plan besproken met volgende partijen:

  • Provincie Noord Brabant;
  • Waterschap Aa en Maas;
  • Veiligheidsregio Brabant Zuid Oost
  • Stichting Voorlichting en Advies Commissie Wonen

Bovenstaande partijen hebben een vooroverleg reactie gestuurd. De reacties zijn samengevat en beantwoord in de notitie 'beantwoording vooroverlegreacties'. Deze notitie is als Bijlage 22 opgenomen. De vooroverlegreacties hebben op onderdelen geleid tot planaanpassingen. De vooroverlegreacties vanuit het Waterschap en de Veiligheidsregio zijn aanleiding geweest voor een nadere uitwerking van het stedenbouwkundig plan in een VO civieltechnische uitwerking.

8.2 Inspraak

Het voorontwerp-bestemmingsplan is op grond van de gemeentelijke inspraakverordening gedurende 6 weken voor een ieder ter inzage gelegd gedurende de periode van 1 april tot en met 12 mei 2022. Tijdens de ter inzage leggingsperiode is op 14 april 2022 een inloopavond in het gemeentehuis van Asten georganiseerd. Tijdens deze inloopavond is eenieder in de gelegenheid gesteld kennis te nemen van het plan en vragen te stellen. Gedurende de inspraakperiode is één inspraakreactie ontvangen. Deze inspraakreactie is samengevat en beantwoord in de notitie 'beantwoording vooroverlegreacties'. Deze notitie is als Bijlage 22 opgenomen.

Het ontwerp-bestemmingsplan wordt op grond van afdeling 3.4 van de Algemene wet bestuursrecht in het kader van de zienswijzen gedurende 6 weken voor een ieder ter visie gelegd.

Te zijner tijd zullen eventueel ingediende zienswijzen bij de besluitvorming worden betrokken.