direct naar inhoud van Ruimtelijke onderbouwing
Plan: Kloosterstraat 32 Ommel
Status: ontwerp
Plantype: omgevingsvergunning
IMRO-idn: NL.IMRO.0743.PB02023002-OW01

Ruimtelijke onderbouwing

Hoofdstuk 1 Inleiding

1.1 Aanleiding en doel

Het voornemen bestaat om op het voorste deel van het perceel Kloosterstraat 32 te Ommel (gemeente Asten), kadastraal bekend als gemeente Asten, sectie N, nummer 861 de bestaande vrijstaande woning te slopen en een twee-onder-een-kapwoning te realiseren. Het voorste deel van het perceel wordt middels het planvoornemen opgesplitst in twee (vrijwel) gelijke delen.

De herstructurering c.q. ontwikkeling van het besluitgebied past qua uitvoering niet binnen het geldende bestemmingsplan (aantal woningen en bouwen buiten het bouwvlak). De gemeente heeft zich in principe bereid verklaard medewerking te verlenen aan het initiatief onder de voorwaarden dat uit de milieu-aspecten en eventuele onderzoeken geen overwegende bezwaren naar voren komen en de commissie ruimtelijke kwaliteit en monumenten kan instemmen met het plan.

Middels het verlenen van een omgevingsvergunning Handelen in strijd met regels ruimtelijke ordening, kan van het vigerende bestemmingsplan worden afgeweken indien de activiteit niet in strijd is met een goede ruimtelijke ordening (artikel 2.12, eerste lid, onder 3o van de Wabo, uitgebreide procedure). Door middel van deze ruimtelijke onderbouwing wordt onderbouwd waarom er in het kader van deze ontwikkeling sprake is van een goede ruimtelijke ordening.

1.2 Ligging besluitgebied

Het besluitgebied is gelegen in het noordoostelijk deel van de kern Ommel (gemeente Asten) en bevindt zich aan een parallelweg van de gebiedsontsluitingsweg Kloosterstraat. Het besluitgebied is gelegen aan de rand van de bebouwde kom en vormt de overgang van bebouwd gebied naar een gebied met uitgerekte agrarische bestemmingen. Het besluitgebied ligt ten zuiden van de N279.

Het besluitgebied zelf omvat de linker zijde van het perceel Kloosterstraat 32 (kadastraal bekend als gemeente Asten, sectie N, nummer 861). Op dit adres is momenteel een vrijstaande woning met opstallen gesitueerd dat middels het planvoornemen, na sloop, vervangen wordt door een twee-onder-een-kapwoning. Aangrenzend aan het besluitgebied is, aan de zuidzijde, een B&B gevestigd binnen een overwegend met woningen bebouwd gebied. Ten noorden en oosten van het besluitgebied bevinden zich agrarische gronden in een overwegend onbebouwd en open gebied.

afbeelding "i_NL.IMRO.0743.PB02023002-OW01_0001.png"

Kadastraal perceel besluitgebied (blauwe contour)

afbeelding "i_NL.IMRO.0743.PB02023002-OW01_0002.png"

Ligging besluitgebied in breder verband

1.3 Geldend bestemmingsplan

Op het besluitgebied is het bestemmingsplan 'Ommel komgebied' van toepassing. Dit bestemmingsplan is vastgesteld door de raad op 22 november 2011 en is inmiddels onherroepelijk.

afbeelding "i_NL.IMRO.0743.PB02023002-OW01_0003.png"

Uitsnede vigerend bestemmingsplan 'Ommel komgebied'

Naast bovengenoemd bestemmingsplan gelden ter plaatse van het besluitgebied ook nog de volgende bestemmingsplannen:

  • Asten verzamelplan 2018-2 (vastgesteld 11-12-2018)
  • Asten Verzamelplan 2019-1 (vastgesteld 26-06-2019)
  • Asten Parapluplan Wonen 2019 (vastgesteld 04-02-2020)
  • Asten Verzamelplan 2019-2 (vastgesteld 13-02-2020)
  • Asten Verzamelplan 2019-1 (herstelbesluit) (vastgesteld 06-07-2021)

Op grond van de geldende bestemmingsplannen geldt ter plaatse van het besluitgebied de enkelbestemming 'Wonen' in combinatie met de dubbelbestemming 'Waarde - Archeologie'. Daarnaast gelden in het besluitgebied de volgende aanduidingen:

  • functieaanduiding specifieke vorm van waarde - archeologie categorie 3/4;
  • gebiedsaanduiding geluidzone - weg.

Voorzover relevant zal worden beschreven welke gevolgen deze aanduidingen met bijbehorende regels hebben voor het planvoornemen.

Het planvoornemen is op basis van het vigerende bestemmingsplan niet toegestaan. De tweekapper is namelijk voorzien buiten de begrenzing van het bestaande bouwvlak conform het huidige bestemmingsplan. Tevens geldt op basis van de bouwregels van het geldende bestemmingsplan, artikel 11.2.2 lid c, dat het aantal woningen per bouwperceel niet mag toenemen. Middels het verlenen van een omgevingsvergunning Handelen in strijd met regels ruimtelijke ordening, kan van de vigerende bestemmingsplannen worden afgeweken indien de activiteit niet in strijd is met een goede ruimtelijke ordening (artikel 2.12, eerste lid, onder a, onder 3o van de Wabo, uitgebreide procedure). Door middel van deze ruimtelijke onderbouwing wordt onderbouwd waarom er in het kader van deze ontwikkeling c.q. herstructurering sprake is van een goede ruimtelijke ordening.

1.4 Leeswijzer

In dit eerste hoofdstuk zijn de aanleiding en het doel van deze ruimtelijke onderbouwing, de situering van het besluitgebied en de geldende bestemmingsplannen omschreven. Hoofdstuk 2 bevat een ruimtelijke beschrijving van de bestaande situatie op het besluitgebied, het planvoornemen en de toekomstige situatie. In Hoofdstuk 3 staat het planologische beleidskader, waarin aandacht uitgaat naar het ruimtelijke ordeningsbeleid op rijksniveau, provinciaal niveau, regionaal niveau en gemeentelijk niveau. In Hoofdstuk 4 worden de omgevingsaspecten beschreven met o.a. aandacht voor geluid, luchtkwaliteit, bodem, externe veiligheid en milieuzonering. In Hoofdstuk 5 wordt ten slotte ingegaan op zowel de economische als de maatschappelijke haalbaarheid van het planvoornemen. Tot slot wordt in Hoofdstuk 6 de procedure beschreven.

Hoofdstuk 2 Planvoornemen

2.1 Huidige situatie

2.1.1 Beschrijving omgeving besluitgebied

Het besluitgebied is gelegen aan de noordoostelijke rand van de kern Ommel, op de grens tussen overwegend bebouwd gebied en in het buitengebied gelegen agrarische gronden. De omgeving van het besluitgebied wordt gekenmerkt door vrijstaande en geschakelde woningen in 1 en 2 bouwlagen met kap parallel aan de weg. Aan de overzijde van de Kloosterstraat is grasgrond gelegen met een agrarische bestemming. Aan de zuidzijde, grenzend aan het besluitgebied, is in het voormalig kerkje van Ommel een Bed & Breakfast gevestigd.

Momenteel bevindt zich op het perceel Kloosterstraat 32 een vrijstaande woning en bijbehorende opstallen. Het perceel is ontsloten via een inrit c.q. oprit grenzend op de parallelweg van de gebiedsontsluitingsweg Kloosterstraat. Het straatprofiel van de Kloosterstraat ter hoogte van het besluitgebied bestaat uit een 30 km/h gezoneerde weg met aan de ene zijde een groenstrook en een trottoir en anderzijds uit een groenstrook, parallelweg en een trottoir (zijde besluitgebied). Richting het buitengebied gaan de troitoirs aan beide zijden over in vrijliggende fietspaden.

afbeelding "i_NL.IMRO.0743.PB02023002-OW01_0004.png"

Aangrenzend buitengebied met rechts het besluitgebied richting bebouwde kom

afbeelding "i_NL.IMRO.0743.PB02023002-OW01_0005.png"

Woonbebouwing richting kern

afbeelding "i_NL.IMRO.0743.PB02023002-OW01_0006.png"

Aanzicht Kloosterstraat (straatprofiel) richting landelijk gebied

afbeelding "i_NL.IMRO.0743.PB02023002-OW01_0007.png"

Aanzicht Kloosterstraat (straatprofiel) richting kern Ommel

2.1.2 Beschrijving besluitgebied

Het besluitgebied maakt momenteel onderdeel uit van het perceel Kloosterstraat 32. De grond fungeert in de huidige situatie als woonperceel met op het voorste deel een vrijstaande woning in 2 bouwlagen met kap en bijbehorende garage. De woning is omringd door een voor- en achtertuin. Het achterste deel van het perceel is in gebruik als achtertuin met daarop de nodige bomen en houtsingels, die een grove scheiding vormt tussen het besluitgebied en de omliggende agrarische gronden. Aan de oostzijde is een oprit c.q. inrit van de doodlopende parallelweg van de Kloosterstraat gelegen.

afbeelding "i_NL.IMRO.0743.PB02023002-OW01_0008.png"

Aanzicht besluitgebied vanaf Kloosterstraat

afbeelding "i_NL.IMRO.0743.PB02023002-OW01_0009.png"

Obliekfoto perceel Kloosterstraat 32 (rood omkaderd)

2.2 Planvoornemen

2.2.1 Inrichting perceel

Het planvoornemen bestaat uit de herstructurering c.q. ontwikkeling van het besluitgebied door de bestaande vrijstaande woning te slopen en hiervoor in de plaats een twee-onder-een-kapwoning te realiseren. De rooilijn van de woonbebouwing zal middels het planvoornemen ten opzichte van de huidige siuatie dichterbij de parallelweg gesitueerd worden, in lijn met de overige woningen c.q. bebouwing aan de Kloosterstraat. Echter er blijft voldoende voortuin (5 meter) over om het zicht op de voormalige kerk van Ommel, komende vanuit het noorden, te waarborgen (zie straatbeeld planvoornemen in paragraaf 2.2.2).

Het perceel wordt opgesplitst in twee (vrijwel) gelijke delen, op het (westelijke) deel grenzend aan de parallelweg van de Kloosterstraat vindt het planvoornemen plaats. Het andere deel van onderhavig perceel zal geen rol spelen in de ontwikkeling middels het planvoornemen.

 

afbeelding "i_NL.IMRO.0743.PB02023002-OW01_0010.png" Kavelverdeling en maatvoering middels planvoornemen (voorste deel perceel, zijde Kloosterstraat)

2.2.2 Bouwplan

Bij het ontwerp van het bouwplan is uitgegaan van de bouwregels en maatvoering voor woningen uit het geldend bestemmingsplan (maximale maten: goothoogte 6,5 meter, bouwhoogte 11,5 meter en voorgevelbreedte minimaal 5,40 meter). Het betreft een twee-onder-een-kapwoning in twee bouwlagen met kap. De nok wordt parallel aan de weg gesitueerd. De woningen worden georienteerd op de Kloosterstraat en hebben een oppervlakte van ongeveer 85 m2. Iedere woning wordt aan de zijkant voorzien van een garage, welke tegen de zijdelingseperceelsgrens wordt gesitueerd.

afbeelding "i_NL.IMRO.0743.PB02023002-OW01_0011.png"

Situering planvoornemen

afbeelding "i_NL.IMRO.0743.PB02023002-OW01_0012.png"

Straatbeeld planvoornemen

afbeelding "i_NL.IMRO.0743.PB02023002-OW01_0013.png"

afbeelding "i_NL.IMRO.0743.PB02023002-OW01_0014.png"

afbeelding "i_NL.IMRO.0743.PB02023002-OW01_0015.png"

Impressies planvoornemen

afbeelding "i_NL.IMRO.0743.PB02023002-OW01_0016.png"

afbeelding "i_NL.IMRO.0743.PB02023002-OW01_0017.png"

Voor- en achtergevel

afbeelding "i_NL.IMRO.0743.PB02023002-OW01_0018.png"

Indeling begane grond

afbeelding "i_NL.IMRO.0743.PB02023002-OW01_0019.png"

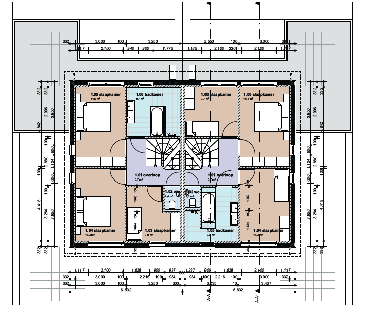
Indeling verdieping

Hoofdstuk 3 Beleidskader

3.1 Rijksbeleid

3.1.1 Nationale omgevingsvisie

De nationale omgevingsvisie (NOVI) is op 11 september 2020 vastgesteld. Deze visie is door het rijk opgesteld in het kader van de nieuwe omgevingswet, die per 1 januari 2023 in werking treedt. In de NOVI is een langetermijnvisie neergelegd over het beschermen en benutten van de fysieke leefomgeving. Het Rijk wil daarbij sturen en richting geven op enkele nationale belangen. Hiervoor worden de volgende vier prioriteiten onderscheiden:

  • 1. Ruimte voor klimaatadaptatie.
  • 2. Duurzaam economisch groeipotentieel.
  • 3. Sterke en gezonde steden en regio's.
  • 4. Toekomstigbestendige ontwikkeling van het landelijk gebied.

Om invulling te kunnen geven aan deze vier prioriteiten hanteert het rijk de volgende drie afwegingsprincipes:

  • 1. Combinaties van functies gaat voor enkelvoudige functies.
  • 2. Kenmerken en identiteit van een gebied staan centraal.
  • 3. Afwentelen wordt voorkomen.

Met de NOVI wordt gebouwd aan sterke, aantrekkelijke en gezonde fysieke leefomgeving, waarbij onder meer nadruk ligt op het verbeteren van de kwaliteit van overgangsgebieden tussen stad en land door gebruik te maken van de kansen die in deze gebieden liggen voor verbetering van landschappelijke kwaliteiten en functiemenging.

Gevolgen planvoornemen

Het planvoornemen voorziet in de toevoeging van één twee-onder-een-kapwoning binnen de bebouwingsconcentratie aan de Kloosterstraat in Ommel. Met deze ontwikkeling is sprake van vervangende woningbouw (twee-onder-een-kapwoning in plaats van vrijstaande woning) en wordt vooruitgestorteerd op de uitbreiding van de kern Ommel richting de N279 (woningbouwontwikkeling 'Ommel-Oost'). Hoewel daar nog geen concrete plannen voor liggen, kan er wel vooruit worden gelopen op deze ontwikkeling. Met de verwachte ontwikkelingen voor Ommel in het achterhoofd is het planvoornemen stedenbouwkundig gezien passend. De locatie valt in de toekomst niet meer binnen het grensgebied met het buitengebied en hierom is verdichting van het perceel ruimtelijk gezien acceptabel. Ten slotte voorziet het planvoornemen in een bijdrage aan de woningbouwopgave waarvoor Nederland staat gezien het grote tekort aan woningen.

Op basis van het bovenstaande wordt geconcludeerd dat met het planvoornemen een bijdrage wordt geleverd aan de landelijke ambities voor het landelijk gebied en een aantrekkelijke leefomgeving.

3.1.2 Besluit algemene regels ruimtelijke ordening

Het Barro voorziet in de juridische borging van het nationale ruimtelijke beleid. Het bevat regels die de beleidsruimte van andere overheden ten aanzien van de inhoud van ruimtelijke plannen inperken, daar waar nationale belangen dat noodzakelijk maken. Navolgende onderwerpen met nationaal belang zijn opgenomen in het Barro en de eerste aanvulling (Stb. 2012, nr. 388):

  • 1. project Mainportontwikkeling Rotterdam;
  • 2. kustfundament en de daarbuiten gelegen primaire waterkeringen;
  • 3. grote rivieren en rijksvaarwegen en de veiligheid daarom heen;
  • 4. toekomstige rivierverruiming van de Maastakken;
  • 5. Waddenzee en Waddengebied, en IJsselmeergebied;
  • 6. verstedelijking in het IJsselmeer;
  • 7. defensie;
  • 8. erfgoederen van uitzonderlijke universele waarde;
  • 9. hoofdwegen en landelijke spoorwegen;
  • 10. Elektriciteitsvoorziening;
  • 11. ecologische hoofdstructuur.

Naast het Barro is ook de Regeling algemene regels ruimtelijke ordening (Rarro) in werking getreden. In het Barro is bepaald dat bij ministeriële regeling verschillende militaire terreinen, gebieden, objecten en zones worden aangewezen, waar gemeenten bij de vaststelling van bestemmingsplannen rekening mee moeten houden. In de Rarro wordt daar uitvoering aan gegeven.

Gevolgen planvoornemen

Het besluitgebied valt binnen een gebied dat door de Rarro is aangeduid als een beperkingengebied rondom een radarstation, als bedoeld in artikel 2.6.9 Barro. Voor die gronden mogen geen bestemmingen worden opgenomen die het oprichten van dusdanig hoge bouwwerken mogelijk maken, dat deze onaanvaardbare gevolgen hebben voor de werking van de radar. De maximaal toegestane bouwhoogte van bouwwerken ten opzichte van NAP is opgenomen in bijlage 8 van de Rarro. Ter plaatse van het besluitgebied bedraagt de maximale bouwhoogte binnen het radarverstoringsgebied 90 meter ten opzichte van NAP.

afbeelding "i_NL.IMRO.0743.PB02023002-OW01_0020.png"

Ligging besluitgebied binnen radarverstoringsgebied maximale hoogte 90 meter t.o.v. NAP (Rarro, kaart 6: radarstations)

Volgens het Actueel Hoogtebestand Nederland (AHN) is de gemiddelde hoogte van het besluitgebied ten aanzien van NAP ongeveer 25 meter ('centrum' Ommel). Dit houdt in dat, rekening houdend met de werking van de radar, in theorie een bouwhoogte van ongeveer 65 meter zou kunnen worden toegestaan.

De toegestane maximum goot- en bouwhoogte bedraagt binnen de geldende woonbestemming respectievelijk 6,5 meter en 11,5 meter. Omdat het bouwplan voor de woningen voldoet aan deze maximale goot- en bouwhoogte wordt ruimschoots onder het maximaal toelaatbare gebleven (< 65 meter), vormen de regels ten aanzien van het radarverstoringsgebied geen belemmering voor het planvoornemen.

Voor het overige is onderhavig besluitgebied niet gelegen in een gebied waarin het Rijk een nationaal belang heeft aangewezen.

De Barro en het Rarro hebben dan ook geen consequenties voor onderhavige ontwikkeling en vormt derhalve geen belemmering voor het planvoornemen.

3.1.3 Ladder duurzame verstedelijking

Het Besluit ruimtelijke ordening (Bro) is per 1 oktober 2012 op onderdelen gewijzigd. In artikel 3.1.6 van het Bro is de 'motivering duurzame verstedelijking' (voormalige ladder) opgenomen. Dit stelt eisen aan de onderbouwing in bestemmingsplannen die nieuwe stedelijke ontwikkelingen mogelijk maken.

De motivering duurzame verstedelijking richt zich op substantiële veranderingen en bouwplannen, die qua aard en omvang zodanig zijn, dat voor mogelijke leegstand elders gevreesd zou kunnen worden. Het doel is om overbodige bouwplannen (kantoren, woningen) te voorkomen en hergebruik te stimuleren.

Per 1 juli 2017 zijn een aantal wijzigingen op de eerdere ladder van kracht geworden. Op basis van deze gewijzigde tekst geldt in het geval dat het bestemmingsplan een nieuwe stedelijke ontwikkeling mogelijk maakt, dat de toelichting een beschrijving dient te bevatten van de behoefte aan de voorgenomen stedelijke ontwikkeling.

Indien de nieuwe stedelijke ontwikkeling mogelijk wordt gemaakt buiten het bestaand stedelijk gebied, dient de toelichting, aanvullend op de beschrijving van de behoefte tevens een motivering te bevatten waarom niet binnen het bestaand stedelijk gebied in de behoefte kan worden voorzien. Daarbij kunnen de beschikbaarheid en geschiktheid van de ontwikkelingsmogelijkheden in bestaand stedelijk gebied een rol spelen.

Gevolgen planvoornemen

Onderhavige ontwikkeling betreft het planologisch-juridisch mogelijk maken van de herstructurering c.q. ontwikkeling van Kloosterstraat 32 waarmee netto 1 woning wordt toegevoegd aan het bestaand stedelijk gebied van de kern Ommel. Conform jurisprudentie van de Afdeling Bestuursrechtspraak van de Raad van State kan worden gesteld dat met de oprichting van minder dan 12 woningen geen sprake is van een stedelijke ontwikkeling, waarmee geen sprake is van een stedelijke ontwikkeling. Derhalve kan een nadere toets aan de motivering duurzame verstedelijking achterwege blijven.

3.2 Provinciaal beleid

3.2.1 Omgevingsvisie 'de kwaliteit van Brabant'

Op 14 december 2018 hebben de Provinciale Staten de Omgevingsvisie 'De kwaliteit van Brabant' vastgesteld. Deze omgevingsvisie vervangt na het inwerking treden van de Omgevingswet de provinciale structuurvisie. Met de omgevingsvisie formuleert de provincie haar ambitie over hoe zij de Brabantse leefomgeving er in 2050 uit wil laten zien. Daarbij stelt zij tussendoelen voor 2030, maar legt nu nog niet vast hoe zij die doelen wil bereiken. De provincie wil daarmee ruimte bieden voor inbreng vanuit partijen en disciplines. Om hiermee aan de slag te gaan is volgens de provincie een verdere uitwerking van de ambities nodig in de vorm van programma's.

Met de visie geeft de provincie aan wat zij belangrijk vindt voor de verbetering en duurzame ontwikkeling van Brabant. Daarbij ligt de focus op vier hoofdopgaven voor de middellange en lange termijn:

  • werken aan energietransitie;
  • een klimaatproof Brabant;
  • de slimme netwerkstad, en
  • een concurrerende duurzame economie.

Deze vier hoofdopgaven staan ten dienste van de basis opgave: werken aan veiligheid, gezondheid en omgevingskwaliteit.

Om te komen tot de slimme netwerkstad richt de provincie zich op duurzame verstedelijking. Zij wil daarin richting geven door middel van het bevorderen van regionale afspraken, het sturen op zorgvuldig ruimtegebruik en het periodiek opstellen van prognoses. Verder wil zij een actieve rol spelen om beweging te stimuleren (o.a. door samen te werken bij gebiedsopgaven en bij het opstellen van uitvoeringsprogramma's) en gewenste ontwikkelingen mogelijk te maken.

Gevolgen planvoornemen

Het planvoornemen betreft de herstructurering c.q. ontwikkeling van de netto toevoeging van 1 woning binnen de bebouwde kom aan de Kloostertraat in Ommel. Omdat er sprake is van de netto toevoeging van één woning wordt deze ontwikkeling niet aangemerkt als een stedelijke ontwikkeling. Door de voorziene invulling van het perceel wordt aangesloten bij de reeds bestaande stedelijke structuur en infrastructuur, waarmee sprake is van duurzame verstedelijking.

De nieuwe woningen zullen tenslotte voldoen aan de BENG-eisen, waardoor de woonbehoefte duurzaam wordt ingevuld. Daarbij zal ook aandacht worden besteed aan de best beschikbare technieken in het kader van energieverbruik. Het planvoornemen is gezien het bovenstaande in lijn met de omgevingsvisie.

3.2.2 Interim Omgevingsverordening Noord-Brabant

De Omgevingsvisie, zoals beschreven in voorgaande paragraaf, vormt het beleidskader voor het provinciaal ruimtelijk beleid. Het juridische kader voor dit beleid is vastgelegd in de Interim omgevingsverordening Noord-Brabant (IOV). De verordening vormt derhalve een belangrijk uitvoeringsinstrument voor de provincie om haar doelen te realiseren.

Provinciale Staten van de provincie Noord-Brabant hebben op 15 april 2022 de geconsolideerde versie van de Interim Omgevingsverordening Noord-Brabant vastgesteld. In deze Interim Omgevingsverordening zijn de bestaande verordeningen samengevoegd en vervangt de Provinciale milieuverordening, Verordening Natuurbescherming, Verordening Ontgrondingen, Verordening Ruimte, Verordening Water en Verordening Wegen. De Interim Omgevingsverordening is beleidsneutraal van karakter. Dat betekent dat er geen nieuwe beleidswijzigingen zijn doorgevoerd, behalve als deze voortvloeien uit vastgesteld beleid, zoals de omgevingsvisie. In principe zijn de huidige regels gehandhaafd met het huidige beschermingsniveau.

De Interim Omgevingsverordening is de juridische vertaling van de Structuurvisie Ruimtelijke Ordening en de Omgevingsvisie en bevat derhalve onderwerpen die in de visies naar voren komen. De verordening bevat algemene regels waaraan gemeenten zich dienen te houden bij het opstellen van bestemmingsplannen en het verlenen van omgevingsvergunningen waarbij afgeweken wordt van bestemmingsplannen. Ook wordt geregeld op welke wijze het Regionaal Ruimtelijk Overleg, waarin afspraken worden gemaakt over verstedelijking (wonen, werken en voorzieningen), wordt georganiseerd. Naast deze bindende regels voor gemeenten kent de verordening ook een aantal direct bindende regels voor burgers. Deze regels hebben betrekking op de ontwikkeling van intensieve veehouderijen in de zogenaamde extensiverings-, verwevings- en landbouwontwikkelingsgebieden. Door middel van deze regels wordt voorkomen dat ongewenste ontwikkelingen plaatsvinden op het moment dat een bestemmingsplan van de gemeente nog niet is aangepast aan de Interim Omgevingsverordening.

Gevolgen voor planontwikkeling

Het besluitgebied is, voorzover relevant, gelegen in het stedelijk gebied (zie onderstaande afbeelding).

afbeelding "i_NL.IMRO.0743.PB02023002-OW01_0021.png"

Uitsnede verbeelding IOV, kaart 3 Instructieregels gemeenten: stedelijke ontwikkeling

Duurzame verstedelijking

Hoofdregel van het beleid is dat stedelijke ontwikkeling binnen het bestaand stedelijk gebied plaatsvindt. Alleen als daarvoor geen mogelijkheden bestaan, kan een stedelijke ontwikkeling buiten het bestaande stedelijke gebied in beginsel plaatsvinden binnen daarvoor in de verordening aangeduide zoekgebieden. Binnen deze gebieden liggen mogelijkheden voor verdere verstedelijking.

Onderhavige ontwikkeling betreft het planologisch-juridisch mogelijk maken van de herstructurering c.q. ontwikkeling van Kloosterstraat 32 waarmee netto 1 woning wordt toegevoegd aan de bestaande bebouwingsconcentratie in en rondom het besluitgebied. Het besluitgebied maakt woningbouw mogelijk binnen bestaand stedelijk gebied.

Ontwikkeling voldoet aan aantoonbare vraag en regionale afspraken

Met het planvoornemen wordt voorzien in de aangetoonde vraag naar uitbreidingsmogelijkheden voor woningbouw (paragraaf 3.3.2 en 3.4.3 t/m 3.4.5). In de bevolkings- en woningbehoefteprognose is per gemeente een indicatie (met bandbreedte) gegeven van de planningsruimte voor woningbouw in de komende jaren. Overeenkomstig de IOV is deze 'programma-indicatie' richtinggevend voor de (sub)regionale woningbouwplanning en -programmering en de hierover te maken regionale afspraken.

Het planvoornemen en het woningbouwprogramma voor dit besluitgebied maakt onderdeel uit van de regionale woningbouwafspraken. Dit wordt nog nader toegelicht in paragraaf 3.3.2.

Conclusie

Het planvoornemen voldoet aan de regels van de IOV. Het planvoornemen is dientengevolge niet in strijd met de provinciale regels.

3.2.3 Ontwerp Omgevingsverordening Noord-Brabant

Op 1 januari 2023 treedt de Omgevingswet in werking. Deze wet vervangt 26 wetten en verschillende regelsystemen op nationaal niveau. Vanwege de Omgevingswet moet ook de provincie haar regelsysteem aanpassen. Straks heeft de provincie nog maar één verordening waarin alle regels zijn opgenomen over de fysieke leefomgeving. In voorbereiding op de inwerkingtreding van de Omgevingswet hebben Gedeputeerde Staten van Noord-Brabant op 23 maart 2021 het ontwerp van de Omgevingsverordening Noord-Brabant vastgesteld.

Het ontwerp van de Omgevingsverordening is vastgesteld om te voldoen aan de Omgevingswet. De huidige regels in de Interim omgevingsverordening zijn gehanteerd als uitgangspunt. De belangrijkste wijzigingen zijn:

  • Er is aansluiting gezocht bij de opbouw van de rijksregels. Diverse nadere regelingen zijn in de Omgevingsverordening verwerkt.
  • Vanwege het vervallen van de Wet bodembescherming zijn nieuwe regels opgenomen om verontreiniging van het grondwater te voorkomen. Het voorstel is om daarvoor ook voorbeschermingsregels vast te stellen;
  • De aanwijzing van voor verzuring gevoelige kwetsbare gebieden (Wav-kaarten) is vervallen;
  • De rechtstreeks werkende regels voor de ontwikkeling van veehouderij en mestbewerking vervallen. Het voorstel is om die te vervangen door voorbeschermingsregels;
  • Er is een attentiezone geluid opgenomen langs provinciale wegen waarbinnen aandacht wordt gevraagd voor het oprichten van geluidgevoelige bebouwing.

Daarnaast zijn er als gevolg van nieuwe inzichten of beleid ook enkele inhoudelijke wijzigingen aangebracht ten opzichte van de IOV:

  • Er zijn regels opgenomen voor een maximale boordiepte voor bodemenergiesystemen;
  • Er zijn regels opgenomen voor grondverzet, inclusief de toepassing voor PFAS-houdende grond in grondwaterbeschermingszones;
  • De regels voor het kappen van houtopstanden zijn aangepast aan de Brabantse Bossenstrategie;
  • Omgevingskwaliteit heeft een centrale plek gekregen bij de instructieregels voor het omgevingsplan aan gemeenten. Hierbij is een bouw-sloop regeling vormgegeven en is een ruime maatwerkregeling opgenomen ter versterking van omgevingskwaliteit.
  • De mogelijkheden voor collectieve woonvormen in het buitengebied zijn verruimd;
  • Er zijn wijzigingen doorgevoerd in de gebieden op de kaart die aangeven waar welke regels gelden. Naast actualisaties zijn er ook gebieden vervallen of samengevoegd.

Gevolgen planvoornemen

Onderhavige ontwikkeling betreft het planologisch-juridisch mogelijk maken van de herstructurering c.q. ontwikkeling van Kloosterstraat 32 waarmee netto 1 woning wordt toegevoegd aan het bestaand stedelijk gebied. Het betreft vervangende nieuwe bouw waarbij de vrijstaande woning wordt vervangen door een twee-onder-een-kapwoning. Het ruimtebeslag neemt hiervoor niet toe. De woningen worden gerealiseerd op het bestaande woonperceel.

Op basis hiervan kan worden geconcludeerd dat het planvoornemen passend is binnen de voorwaarden die gesteld worden in de Ontwerp Omgevingsverordening.

3.2.4 Bevolkings- en woningbehoefteprognose Noord-Brabant

Om aan de toekomstige woningbehoefte te kunnen voldoen en huidige tekorten in te lopen moeten er in Brabant nog veel huizen worden gebouwd. Tot 2050 moeten nog 220.000 huizen aan de bestaande woningvoorraad worden toegevoegd. De nadruk ligt daarbij op de eerstkomende 10 jaar, waarin er zo’n 12.000 woningen per jaar moeten bijkomen.

Vergeleken met de vorige prognose (uit 2017) ligt de groei van de Brabantse bevolking duidelijk hoger. De Brabantse bevolking groeit tot 2050 nog met bijna 280.000 mensen, tot ruim 2,84 miljoen inwoners. Tegen het midden van de jaren ’30 krijgen de landelijke gebieden te maken met een geringe bevolkingskrimp. In het stedelijk gebied blijft de bevolking doorgroeien, al neemt de groei ook hier af. Rond 2040 bereikt de vergrijzing van de Brabantse bevolking haar hoogtepunt. Dan is bijna 27% 65 jaar of ouder, tegen 20% in 2020. De hoogste leeftijdsgroepen, 75 jaar en ouder, groeien het sterkst en landelijke gebieden vergrijzen meer dan stedelijke gebieden.

De komende tijd wordt verwacht dat er vanuit andere delen van Nederland meer mensen naar Brabant komen dan dat er vertrekken: gemiddeld (per saldo) zo’n 2.750 personen per jaar. Dit is in lijn met de laatste jaren.

Het buitenlandse migratiesaldo – het verschil tussen het aantal immigranten en emigranten – is de laatste jaren sterk toegenomen, tot ongeveer 15.000 in 2019. Ook de komende jaren worden – na een terugval door de ‘corona-effecten’– positieve buitenlandse migratiesaldi verwacht, waarbij het gemiddeld jaarlijkse saldo terugloopt van zo’n 10.000 personen tussen 2020 en 2030 tot ruim 7.000 in de jaren daarna.

In de bevolkings- en woningbehoefteprognose is per gemeente ook een indicatie (met bandbreedte) gegeven van de planningsruimte voor woningbouw in de komende jaren. Overeenkomstig de Interim Omgevingsverordening van de provincie Noord-Brabant is deze ‘programma-indicatie’ richtinggevend voor de (sub)regionale woningbouwplanning en -programmering en de hierover te maken regionale afspraken.

Gemeentelijke bestemmings- c.q. ruimtelijke plannen die voorzien in de nieuwbouw van woningen of anderszins leiden tot een (netto) toename van de woningvoorraad, dienen te passen binnen dit regionale afsprakenkader. Gelet op de bevolkingsontwikkeling wordt voor de gemeente Asten in de bevolkings- en woningbehoefteprognoses uitgegaan van een groei van de woningvoorraad met 545 woningen in de periode 2022-2031. In de bevolkings- en woningbehoefteprognoses van 2017 werd nog een groei van de woningvoorraad met 430 woningen voorzien in diezelfde periode. De nieuwe prognoses geven dus meer ruimte om extra bouwplannen te gaan realiseren in de gemeente Asten.

Gevolgen planvoornemen

De netto toevoeging van één woning middels onderhavig planvoornemen past binnen de voorziene toename van de woningvoorraad in de gemeente Asten. De woningbouwmonitor 2022-2031 is recent (maart 2021) in de gemeenteraad bijgesteld. De gemeente voorziet een groei met 506 woningen in de periode 2022-2031. Met de planontwikkeling wordt met name voorzien in de behoefte aan grondgebonden woningen in een groene setting.

3.2.5 Brabantse agenda wonen

Het kaderstellend provinciaal beleid op het gebied van de woningbouw is verder vastgelegd in de 'Brabantse Agenda Wonen'. In deze agenda heeft de provincie ‘actielijnen’ en ‘richtinggevende principes’ vastgelegd. De actielijnen gaan uit van:

  • accent op duurzame verstedelijking;
  • meer nadruk op de bestaande woningvoorraad;
  • inzetten op een vraaggericht, flexibel planaanbod met ruimte voor nieuwe woonvormen;
  • versterken van de regionale samenwerking en vernieuwen van regionale woningbouwafspraken.

Gevolgen planvoornemen

Het planvoornemen is gebaseerd op een actuele kwalitatieve behoefte en dus vraaggericht. De beperkte afstand tot de voorzieningen in de kern Ommel en de directe nabijheid van landelijk gebied spreekt de bewoners van de andere deelgebieden aan. De vraag hiernaar is dus aangetoond. Het plan draagt bovendien bij aan de differentiatie van de woningvoorraad in de gemeente Asten en met name in Ommel.

3.3 Regionaal beleid

3.3.1 Ruimtelijk afwegingskader De Peel

Door de Peelgemeenten en waterschap Aa en Maas is in 2021 het ruimtelijk afwegingskader De Peel opgesteld. Het ruimtelijk afwegingskader is een instrument voor het (onderling) afwegen, combineren en inpassen van ruimtelijke ontwikkelingen. Basis voor het afwegingskader zijn de vier (deel) landschappen van de Peelregio en de afweging op basis van de waarden van het landschap. Het besluitgebied van voorliggende ruimtelijke ontwikkeling is gelegen in het landschapstype 'oude zandontginningen landschap'.

De dragers van dit landschap zijn essen, kampen, oude erven en weidegronden langs beken. De kleinschalige grillige verkaveling (behalve op de essen) wordt deels omzoomd door houtwallen. Zowel beken als wegen kronkelen door dit lanschap. (Agrarisch) Bouwland is hogerop gelegen terwijl de weilanden juist bij de beken liggen. Daarnaast is er een afwisseling van coulissen (houtwal, bosjes en lanen) en open ruimten (o.a. essen) aanwezig. Ten slotte wordt het landschap gekenmerkt door een microrelief van essen en kampen.

Ontwikkelingen in dit gebied vragen om een zorgvuldige inpassing. Om vorm te geven aan deze inpassing dienen deze bij de stads- en dorpsranden plaats te vinden, of binnen bestaande bebouwingsconcentraties. Daarbij dient rekening gehouden te worden met de (versterking van de) fysieke kenmerken bij de inpassing van de opgave.

Gevolgen planvoornemen

Bij onderhavige ontwikkeling wordt met bovenstaande uitgangspunten rekening gehouden door aan te sluiten bij de bestaande structuren (bestaand stedelijk gebied) binnen een middels het beleid gewenste locatie (dorpsrand). De voorgenomen ontwikkeling betreft slechts de toevoeging van netto één woning (twee-onder-een-kapwoning) binnen bestaand stedelijk gebied ter vervanging van een bestaande vrijstaande woning. Het bestaande woonperceel blijft behouden, waardoor de ruimtelijke stuctuur ter plaatse behouden en ongewijzigd blijft.

3.3.2 Regionale Agenda Wonen

In de 'Regionale Agenda Wonen RRO Zuidoost-Brabant/Metropoolregio Eindhoven 2016' zijn de uitgangspunten voor de kwantitatieve en kwalitatieve woningbouwopgave in regionaal verband vastgelegd. Kwantitatief is per gemeente aangegeven welke woningbouwopgave er voor de komende tienjaarsperiode is afgesproken. Voor de gemeente Asten is afgesproken dat 915 woningen netto zijn toe te voegen aan de woningvoorraad in de periode 2016 t/m 2025.

Kwalitatief zijn meerdere opgaven benoemd:

  • ladder duurzame verstedelijking en binnenstedelijk bouwen, onder andere door herbestemming van leegstaand vastgoed in het bestaand stedelijk gebied;
  • huisvesting doelgroepen, met name arbeidsmigranten en vergunninghouders;
  • kwaliteit van het programma afstemmen op de bestaande voorraad.

Gevolgen planvoornemen

De planontwikkeling is onderdeel van het netto toe te voegen aantal woningen in de gemeente Asten. Middels het planvoornemen wordt binnen bestaand stedelijk weefsel gebouwd. Tevens wordt gebouwd voor starters, een doelgroep met een grote vraag ten opzichte van een klein aanbod. De kwaliteit van het programma is hiermee afgestemd op de bestaande voorraad.

3.4 Gemeentelijk beleid

3.4.1 Toekomstagenda 2030

Als kompas voor de ontwikkeling van de gemeente heeft de gemeente Asten de Toekomstagenda 2030 opgesteld. Hierin staan de opgaven die de komende jaren centraal staan: de transformatie van het buitengebied, het vitaal houden van de kernen, de ontwikkeling van het centrum van Asten en het klimaatbestendig en energieneutraal worden in 2030.

Voor de voorgenomen ontwikkeling is de opgave 'het vitaal houden van de kernen' van belang. Daarover is het volgende opgenomen in de Toekomstagenda 2030.

"Anno 2017 behoren de inwoners van Asten tot de gelukkigste van de regio en het land. Hun geluksbeleving is vooral gebaseerd op gezondheid, deelname aan economisch en maatschappelijk verkeer, woonomgeving en omgevingskwaliteit. Behoud van deze vitaliteit is niet vanzelfsprekend. Het wegtrekken van jongeren, het kleiner worden van huishoudens, de vergrijzing en technologische ontwikkelingen vragen om een alerte reactie van gemeenschappen en gemeente. Passende en betaalbare woonvormen, adequate voorzieningen, saamhorigheid en een evenwichtige bevolkingssamenstelling zorgen voor vitaliteit."

Het resultaat is dat de kernen Asten, Heusden en Ommel vanuit de eigen identiteit en kracht koersen. Maatschappelijk initiatief is het vertrekpunt voor ontwikkeling van de kernen. Ruimte voor eigen initiatief betekent dat dorpen, gebieden en gemeenschappen zich ieder op een eigen wijze ontwikkelen. Dit kan tot gevolg hebben dat de ene kern meer voor elkaar krijgt dan de andere. De gemeente Asten zet in op behoud van voortgezet onderwijs in Asten. Dit is cruciaal in de ontwikkeling van jongeren en het vormen van netwerken, die wellicht stimuleren dat jongeren zich binden aan Asten of overwegen om er later terug te keren.

Gevolgen planvoornemen

Voor Ommel specifiek is het resultaat meer dan 1000 inwoners voor Ommel. Het is het Initiatief van inwoners om de leefbaarheid in Ommel structureel en voortvarend aan te pakken door middel van substantiële nieuwbouw en aantrekken van nieuwe inwoners. Het voorgenomen plan draagt bij aan dit initiatief. De toevoeging van een twee-onder-een-kapwoning voor starters in een bebouwingsconcentratie in het stedelijk gebied draagt bij aan de doorstroom in de kern, waar meerdere nieuwbouwprojecten voor meer specifieke doelgroepen worden gerealiseerd. Daarmee past de voorgenomen ontwikkeling binnen de doelstelling van de Toekomstagenda 2030 en levert deze een belangrijke bijdrage aan het op peil houden van de leefbaarheid in het dorp.

3.4.2 Omgevingsvisie Asten

In het kader van de komst van de nieuwe omgevingswet heeft de gemeente Asten een omgevingsvisie vastgesteld. In de omgevingsvisie zijn de ambities van de gemeente Asten voor de fysieke leefomgeving zoals neergelegd in de Toekomstagenda 2030 nader uitgewerkt. Het besluitgebied maakt onderdeel uit van de dynamische dorpen.

Dynamische dorpen

Asten, Heusden en Ommel zijn, mede dankzij het groen in en rond de kernen, fijne dorpen om in te wonen. Gelegen binnen de Metropoolregio Eindhoven hebben ze een dorpse sfeer in uitstraling en gevoel. De dorpen hebben elk een eigen identiteit met een levendig verenigingsleven. Asten, Heusden en Ommel ontwikkelen zich vanuit de eigen identiteit en kracht. Maatschappelijk initiatief is het vertrekpunt voor ontwikkeling van de dorpen, als gemeente worden de randvoorwaarden geborgd en initiatieven gefaciliteerd die bijdragen aan de gewenste ontwikkeling.

In het deelgebied Dynamische Dorpen wil de gemeente Asten concreet de volgende doelstellingen realiseren:

Vitale kernen

  • Het behouden en daar waar mogelijk versterken van het voorzieningenniveau en de leefbaarheid in de kernen.
  • Ontwikkelen van een gezonde en activerende leefomgeving, met veilige en aantrekkelijke plaatsen om te bewegen en elkaar te ontmoeten. We gaan uit van de situatie zoals vastgelegd in de Brabantse Omgevingsscan.
  • Realiseren van voldoende, betaalbare en passende woningen en woonomgevingen voor alle doelgroepen.
  • We zorgen voor adequate en kwalitatieve huisvestingsmogelijkheden voor onze bedrijven op bestaande en nieuwe bedrijventerreinen. Leidend daarbij zijn de principes het juiste bedrijf op de juiste plek, efficiënt en beter ruimtegebruik en een verantwoorde uitgifte van nieuwe bedrijventerreinen.
  • Onze bedrijventerreinen zijn van hoge kwaliteit en hebben een modern, dynamisch en duurzaam imago.
  • Behoud van de werkgelegenheid en versterken van toekomstbestendige sectoren die ondervertegenwoordigd zijn, zoals dienstverlening, onderzoek en advies. We gaan uit van de economische structuur, zoals vastgelegd door het CBS.
  • Behouden en beter zichtbaar maken van cultuurhistorisch waardevolle panden en structuren. We gaan uit van de situatie zoals vastgelegd in de cultuurhistorische waardenkaart. Hiermee versterken we onze identiteit en zorgen we ervoor dat onze kernen nog aantrekkelijker worden voor onze eigen inwoners én bezoekers.
  • Ontwikkelen van slimme mobiliteitsoplossingen – ook wel Smart Mobility genoemd - zoals elektrisch deelvervoer, ten behoeve van een betere ontsluiting van onze kernen en bereikbaarheid van voorzieningen in de regio. Verbreding van de A67 blijft belangrijk voor onze verbinding met de Metropoolregio Eindhoven.
  • Behouden en verbeteren van een groene leefomgeving waarin hittestress beperkt wordt, het water voldoende ruimte krijgt en de biodiversiteit hoog is. Natuurinclusief bouwen wordt de norm.

De ambities van deze omgevingsvisie bouwen voort op het gemeentelijk beleid van de afgelopen jaren. Ondernemers werken samen met inwoners, de gemeente en andere partijen aan de ontwikkeling van onze kernen Asten, Heusden en Ommel. Voorbeelden van initiatieven die bijdragen aan de gewenste ontwikkeling:

  • Gezonde leefomgeving: fietsstraten (voorrang voor fietsers), actieve wandelroutes, parkjes, natuurinclusief wonen ontmoetingsplaatsen. van grijs naar groen (minder verstening in tuinen), wadi’s .
  • Nieuwe woonvormen: gezamenlijk duurzaam wonen, zelfvoorzienende woningen en tiny houses.
  • Verduurzaming bedrijventerreinen: duurzame energieopwekking, vergroening, vergroten waterbergend vermogen.
  • Aansprekende evenementen: het organiseren van evenementen draagt bij aan het aantrekkelijk en druk bezocht houden van het centrum.
  • Coöperatieve vormen van samen-leven: zorg en welzijn, duurzaamheid, beheer openbare ruimte.

Gevolgen planvoornemen

De voorgenomen ontwikkeling draagt bij aan het realiseren van de doelstellingen zoals opgenomen in de Omgevingsvisie. Het planvoornemen voorziet in de netto toevoeging van één woning in bestaand stedelijk gebied van de kern Ommel. Met de planontwikkeling wordt met name voorzien in de behoefte aan grondgebonden woningen in een groene setting. De beperkte afstand tot de voorzieningen in de kern Ommel en de directe nabijheid van landelijk gebied spreekt de bewoners van de andere deelgebieden aan. De netto toevoeging van één woning voor starters in bestaand stedelijk gebied op de grens met het landelijk gebied voorziet daarmee in een aantoonbare vraag en draagt bij aan de doorstroom binnen de gemeente Asten, waar meerdere nieuwbouwprojecten voor meer specifieke doelgroepen worden gerealiseerd (Kluisstraat Ommel, Heusden Oost). Daarmee past de voorgenomen ontwikkeling binnen de doelstelling van de Omgevingsvisie en levert deze een belangrijke bijdrage aan het op peil houden van de leefbaarheid in het dorp.

3.4.3 Woonvisie gemeente Asten 2015-2024

Op 8 november 2016 heeft de gemeenteraad de Woonvisie gemeente Asten 2015-2024 vastgesteld. In de woonvisie zijn de uitgangspunten voor het volkshuisvestingsbeleid geformuleerd. Belangrijke uitgangspunten voor het volkshuisvestingsbeleid zijn:

Algemeen

  • Asten richt zich op het realiseren van een woningvoorraad die past bij de woonbehoeften van de Astense bevolking, zowel kwantitatief (voldoende woningen) als kwalitatief (juiste woningen). Dit uitgangspunt geldt niet alleen voor de gemeente Asten als geheel maar ook voor de drie afzonderlijke kernen.
  • Nieuwe toe te voegen woningen moeten aansluiten bij de geconstateerde en verwachte tekorten in de bestaande woningvoorraad.
  • 30% van de toegestane plancapaciteit wordt gereserveerd als flexibele ruimte.
  • Toevoeging van woningen vindt primair plaats binnen bestaand stedelijk gebied (wettelijke verplichting), met voorrang voor: locaties nabij voorzieningen, herstructureringslocaties, ook wordt eerst leegstaand of leegkomend vastgoed benut.

Kwantitatieve taakstelling

  • De kwantitatieve taakstelling voor de komende 10 jaren bedraagt 910 woningen (= toevoeging aan bestaande woningvoorraad). Dit aantal is ook vastgelegd in de regionale agenda wonen
  • Verdeling van deze taakstelling over de 3 kernen vindt plaats naar rato van de inwoneraantallen: Asten / Heusden / Ommel - 75% / 19% /6 %.
  • Toename van de woningvoorraad wordt gerealiseerd door nieuwbouw, kavelsplitsing en transformatie van de bestaande voorraad.
  • Transformatie binnen de bestaande voorraad is mogelijk door onder meer woningsplitsing, maar ook door het realiseren van woningen in gebouwen met een andere bestemming, zoals kantoor, winkel.

Kwalitatieve taakstelling

  • Voor het nieuwbouwprogramma gelden de volgende kaders naar doelgroep, prijs en type woning:
    • 1. aandeel starters / gezinnen / senioren - 20% / 30% / 50%.
    • 2. aandeel huur / koop = 40 % / 60%.
    • 3. aandeel sociaal / vrij = 45 % / 55%.
    • 4. aandeel gestapeld / niet gestapeld = 30% / 70%

Daarnaast is de doelstelling voldoende woningen te bouwen voor starters, gezinnen en senioren.

Gevolgen planvoornemen

Het planvoornemen voorziet in de netto toevoeging van één woning binnen bestaand stedelijk gebied in de kern Ommel. De nieuwbouw van een twee-onder-een-kapwoning voor starters binnen bestaand stedelijk gebied draagt bij aan het behalen van de kwantitatieve doelstellingen van de Woonvisie en de doorstroom in de kern Ommel (en andere kernen binnen de gemeente Asten). Hiermee wordt in de eerste plaats bijgedragen aan het tegengaan van de toenemende druk op de Astense woningmarkt en de daarmee gepaard gaande woningbouwopgave.

Het planvoornemen voorziet daarnaast in de aantoonbare behoefte aan grondgebonden woningen in een groene setting. De beperkte afstand tot de voorzieningen in de kern Ommel en de directe nabijheid van landelijk gebied spreekt de bewoners van de andere deelgebieden aan. De toevoeging van een twee-onder-een-kapwoning binnen bestaand stedelijk gebied voorziet daarmee in deze aantoonbare vraag en draagt bij aan de doorstroom binnen de gemeente Asten, waar meerdere nieuwbouwprojecten voor meer specifieke doelgroepen worden gerealiseerd (Kluisstraat Ommel, Heusden Oost). Daarmee past de voorgenomen ontwikkeling binnen de doelstelling van de Woonvisie en levert deze een belangrijke bijdrage aan het op peil houden van de leefbaarheid in het dorp.

3.4.4 Versnellingsagenda woningbouw Asten

Met de Versnellingsagenda woningbouw Asten beoogt de gemeente de toenemende druk op de woningmarkt tegen te gaan door het bouwtempo hoog te houden. De gemeente doet dit door nadrukkelijk de regie te pakken en versneld een tweetal woningbouwplannen in ontwikkeling te nemen. Binnen deze plannen zal extra aanbod gecreëerd worden voor de meest urgente doelgroepen, met een gezonde mix van huur en koop, in verschillende prijssegmenten en met aandacht voor betaalbaarheid en financierbaarheid.

Ook binnen de bestaande (potentiële) planvoorraad en bij nieuwe woningbouwplannen zal extra gestuurd worden op het bouwen van woningen voor de meest urgente doelgroepen. Daarnaast dient minimaal 25% van de nieuw te bouwen woningen te bestaan uit sociale huurwoningen. De uitgangspunten en acties uit de versnellingsagenda woningbouw zijn verwerkt in de woningbouwmonitor 2022-2031. De woningbouwmonitor wordt gebruikt om te sturen op het planaanbod, de te bouwen woning typologieën en de realisatie van nieuwe woningen.

Gevolgen planvoornemen

Net zoals in Asten is er ook in de kern Ommel vanaf 2022 weinig harde plancapaciteit beschikbaar. Ook voor Ommel is het dus wenselijk om op korte termijn nieuwe woningbouwplannen in ontwikkeling te nemen. Voorgenomen ontwikkeling sluit hierbij aan.

3.4.5 Woningbouwmonitor gemeente Asten 2022 t/m 2031

Het gemeentelijk woningbouwprogramma is vastgelegd in de 'Woningbouwmonitor gemeente Asten 2022 t/m 2031'. In de woningbouwmonitor is het totaal aantal te realiseren woningen in Ommel over de periode 2022 t/m 2031 vastgelegd.

afbeelding "i_NL.IMRO.0743.PB02023002-OW01_0022.png"

Kwantitatieve toets geplande woningbouw in de kernen van de gemeente Asten (harde plancapaciteit)

In de woningbouwmonitor heeft de gemeente Asten bewust beperkte ruimte beschikbaar gehouden voor de toevoeging van nieuwe plannen. De harde en potentiële plancapaciteit van de gemeente Asten als geheel zijn samen circa 500 woningen, terwijl er de komende 10 jaar 545 woningen gebouwd kunnen worden. Er is dus nog ruimte voor circa 45 woningen. Meer vrije ruimte is niet nodig, omdat de tijdshorizon elk jaar vooruit schuift en de gerealiseerde woningen van de harde plancapaciteit af gaan. Hierdoor is de verwachting dat er ook in de toekomst voldoende capaciteit over blijft om woningen te kunnen blijven bouwen.

Met de voorziene woningbouw wordt voorzien in de behoefte aan woningcategorieën binnen de kleine kern Ommel. Deze bestaat voor zowel de uitbreidingslocatie als de locaties binnen bebouwd gebied nagenoeg geheel uit grondgebonden koopwoningen.

Gevolgen planvoornemen

Met de voorziene bouw van een twee-onder-een-kapwoning voor starters binnen bestaand stedelijk gebied in de kern Ommel wordt voorzien in de kwantitatieve behoefte aan woningbouw in de kern Ommel. Het planvoornemen voorziet in de aantoonbare behoefte aan grondgebonden woningen in een groene setting. De beperkte afstand tot de voorzieningen in de kern Ommel en de directe nabijheid van landelijk gebied spreekt de bewoners van de andere deelgebieden aan. De nieuwbouw van een twee-onder-een-kapwoning aan de rand van stedelijk gebied voorziet daarmee in deze aantoonbare vraag en draagt bij aan de doorstroom binnen de gemeente Asten, waar meerdere nieuwbouwprojecten voor meer specifieke doelgroepen worden gerealiseerd (Kluisstraat Ommel, Heusden Oost). Daarmee past de voorgenomen ontwikkeling binnen de kwantitatieve woningbouwopgave van de gemeente Asten en draagt deze bij aan het bereiken van de kwalitatieve opgaven.

3.4.6 Handreiking omgevingsdialoog

De gemeente Asten vindt het wenselijk dat omwonenden en bedrijven in de nabijheid van een ruimtelijke ontwikkeling op een vroeg stadium bij de planvorming worden betrokken. Daarom heeft de gemeente een stappenplan ontwikkeld voor het organiseren en voeren van een omgevingsdialoog, die plaats dient te vinden voordat een aanvraag wordt ingediend. Daarin worden de volgende stappen uitgewerkt:

  • 1. Definieer de omgeving en belanghebbenden;
  • 2. Nodig de omgeving uit;
  • 3. Voer het omgevingsgesprek;
  • 4. Maak een verslag;
  • 5. Verstuur het verslag naar de omgeving;
  • 6. Voeg het verslag toe bij de stukken voor de indiening van de aanvraag.

In een tabel worden de instrumenten uitgewerkt voor omgevingsgesprekken ten behoeve van initiatieven met een geringe, middelgrote en grote (ruimtelijke) impact.

Het onderhavige initiatief betreft volgens de handreiking een initiatief met een middelgrote ruimtelijke impact. Voor dergelijke initiatieven wordt in de handreiking voorgeschreven dat omwonenden en omliggende bedrijven worden geïnformeerd door middel van een informatiebrief met enquete, een inloopbijeenkomst of presentatie. Bij het bepalen van de omgeving is er vrijheid in de afweging welke belanghebbenden, bedrijven of omwonenden worden uitgenodigd. Dit is afhankelijk van de ruimtelijke impact van de voorgenomen ontwikkeling.

Het omgevingsgesprek is conform de voorgeschreven werkwijze uit de handreiking gevoerd. De initiatiefnemer heeft met direct omwonenden aan de Kloosterstraat een omgevingsdialoog gevoerd over de voorgenomen ontwikkeling. Hierbij is uitleg gegeven over het initiatief. Van het omgevingsdialoog is een verslag gemaakt, welke is opgenomen in deze ruimtelijke onderbouwing als Bijlage 5. De gesproken bewoners zijn positief over het planvoornemen en willen op de hoogte gehouden worden. Er zijn geen bezwaren naar voren gekomen.

Hoofdstuk 4 Omgevingsaspecten

4.1 Inleiding

Milieuaspecten mogen niet in de weg staan aan de uitvoerbaarheid van een ontwikkeling. Het is van belang dat onderhavig planvoornemen, ondanks dat reeds sprake is van een woonfunctie, plaats vindt binnen een goed woon- en leefklimaat en dat de verandering niet leidt tot onevenredige (milieukundige) gevolgen voor bestaande waarden en functies. Dit hoofdstuk gaat hier nader op in.

4.2 Geluid

4.2.1 Algemeen

Ten aanzien van geluid zijn de regels uit de Wet geluidhinder (Wgh) van toepassing. De Wgh voorziet rond (gezoneerde) industrieterreinen, langs wegen en langs spoorwegen in zones en bevat tevens geluidsnormen en richtlijnen met betrekking tot de toelaatbare geluidsniveaus van de voorgenoemde geluidsbronnen. Indien een bestemmingsplan een geluidsgevoelig object mogelijk maakt binnen een geluidszone van een bestaande geluidsbron, of indien het plan een nieuwe geluidsbron mogelijk maakt, dient volgens de Wgh een akoestisch onderzoek plaats te vinden bij het voorbereiden van de vaststelling van het bestemmingsplan. Het akoestisch onderzoek moet uitwijzen of de wettelijke voorkeursgrenswaarde bij geluidgevoelige objecten wordt overschreden en zo ja, welke maatregelen nodig zijn om aan de voorkeursgrenswaarde te voldoen.

Akoestisch onderzoek

Met onderhavig planvoornemen wordt een nieuwe woonfunctie geprojecteerd binnen de wettelijke onderzoekszone (wegverkeerslawaai) van de 60 km/u zone van de Kloosterstraat de N279. Daarnaast is de Kloosterstraat als 30-km weg mede in ogenschouw genomen omdat de woningen dichter bij de weg worden gesitueerd en om aan te tonen dat sprake is van een goed woon- en leefklimaat. Er moet worden voldaan aan wettelijke grenswaarden en het woon- en leefklimaat van de nieuwe woonfunctie moet zijn gewaarborgd.

Om dit aan te tonen is ten behoeve van dit planvoornemen een akoestisch onderzoek wegverkeerslawaai uitgevoerd (Nipa, rapportnummer N222450 , d.d. 2 januari 2023). De rapportage is bijgevoegd als Bijlage 1. In het navolgende zijn beknopt de resultaten van het onderzoek weergegeven.

4.2.2 Beoordeling

Wegverkeerslawaai:

Er wordt voldaan aan de voorkeursgrenswaarde van 48 dB van wegverkeerslawaai. Een aanvraag een hogere waarde is niet aan de orde.

Woon- en leefklimaat:

Bij de berekende geluidbelasting is een geluidwering van maximaal (56-23=) 23 dB vereist voor de hoogst geluidbelaste voorgevel om het woon- en leefklimaat in de woning te waarborgen. Bij nieuwe woningen is het aannemelijk dat, vanwege de eisen voor energieprestatie, de geluidwering van gevels zonder verdere akoestische voorzieningen voldoet aan tenminste de vereiste 23 dB. Het woon- en leefklimaat is in de geluidgevoelige ruimten van de nieuwe woning daarom zonder nader onderzoek en maatregelen gewaarborgd.

Het besluitgebied is ten slotte niet gelegen binnen een zone voor industrielawaai en/of spoorweglawaai. Deze aspecten vormen derhalve geen belemmering voor het planvoornemen.

Conclusie

Samengevat blijkt uit bovengenoemd onderzoek dat de beoogde twee-onder-een-kapwoning geen beperkingen voor de geluidruimte oplevert voor de omgeving van het besluitgebied en dat het woon- en leefklimaat van de nieuwe woning is gewaarborgd. Er is sprake van een goede ruimtelijke ordening.

4.3 Bodem

4.3.1 Algemeen

Op basis van artikel 3.1.6 Besluit ruimtelijke ordening zijn gemeenten verplicht om bij een ruimtelijk plan een paragraaf over de bodemkwaliteit op te nemen. In deze paragraaf dient gemotiveerd te worden of de aanwezige bodemkwaliteit past bij het toekomstige gebruik van de bodem. Uitgangspunt van een goede ruimtelijke ordening is dat de bodemkwaliteit geschikt is voor de beoogde bestemming en de daarin toegestane gebruiksvormen. Zo mag een eventuele aanwezige bodemverontreiniging geen onaanvaardbaar risico opleveren voor de gebruikers van de bodem en mag de bodemkwaliteit niet verslechteren door grondverzet. Bij overige ruimtelijke besluiten is ook een inzicht in de bodemkwaliteit nodig op basis van artikel 3.2 Algemene wet bestuursrecht.

De onderhavige locatie is niet verdacht op bodemverontreiniging. Na de sloop van de bestaande bebouwing dient eerst een verkennend bodemonderzoek uitgevoerd te worden voor de woningbouw gestart kan worden. Dit bodemonderzoek hoeft niet opgenomen te worden in deze ruimtelijke onderbouwing. Dit onderzoek wordt in een later stadium gedaan voor de nieuwbouw. Het uitvoeren van een verkennend bodemonderzoek is een voorwaarde voor de vergunningverlening van de omgevingsvergunning voor de activiteit bouwen.

4.3.2 Beoordeling

Op dit moment vormt de bodemkwaliteit geen belemmering voor het planvoornemen, aangezien reeds sprake is van een woonbestemming en het besluitgebied aangemerkt kan worden als een onverdachte locatie. In een later stadium, in het kader van de aanvraag omgevingsvergunning voor bouwen, dient echter wel een bodemonderzoek uitgevoerd te worden.

Indien, bijvoorbeeld bij bouwactiviteiten, grond vrijkomt die op een andere locatie zal worden hergebruikt dan dient in ieder geval bepaald te worden wat de kwaliteit is in het kader van het besluit bodemkwaliteit.

4.4 Luchtkwaliteit

4.4.1 Algemeen

Op 15 november 2007 is de Wet luchtkwaliteit in werking getreden, waarmee de hoofdlijnen voor regelgeving rondom luchtkwaliteitseisen zijn beschreven in de Wet milieubeheer (Wm, hoofdstuk 5). Artikel 5.16 Wm (lid 1) geeft weer, onder welke voorwaarden bestuursorganen bepaalde bevoegdheden (uit lid 2) mogen uitoefenen. Als aan minimaal één van de volgende voorwaarden wordt voldaan, vormen luchtkwaliteitseisen in beginsel geen belemmering voor het uitoefenen van de bevoegdheid:

  • er is geen sprake van een feitelijke of dreigende overschrijding van een grenswaarde;
  • een project leidt – al dan niet per saldo – niet tot een verslechtering van de luchtkwaliteit;
  • een project draagt 'niet in betekenende mate' (NIBM) bij aan de luchtverontreiniging;
  • een project past binnen het NSL (Nationaal Samenwerkingsprogramma Luchtkwaliteit), of binnen een regionaal programma van maatregelen.

Hoofdstuk 5 van de Wet Milieubeheer maakt onderscheid tussen projecten die 'Niet in betekenende mate' (NIBM) en 'In betekenende mate' (IBM) bijdragen aan de uitstoot van luchtverontreinigende stoffen. In de regeling NIBM is een lijst met categorieën van gevallen opgenomen die NIBM zijn. Deze NIBM-projecten kunnen zonder toetsing aan de grenswaarden voor het aspect luchtkwaliteit uitgevoerd worden. Als een project ervoor zorgt dat de concentratie fijn stof of CO2 met meer dan 3% van de grenswaarde verhoogd, draagt het project in betekenende mate bij aan luchtvervuiling en dient er een luchtkwaliteitsonderzoek uitgevoerd te worden. Deze regel komt voort uit het NSL. Deze 3%-grens is voor een aantal categorieën projecten in een ministeriële regeling omgezet in getalsmatige grenzen, waaronder voor woningbouw: 1.500 woningen netto bij 1 ontsluitingsweg, 3.000 woningen bij 2 ontsluitingswegen.

4.4.2 Beoordeling

Het planvoornemen betreft het planologisch-juridisch mogelijk maken van een herstructurering c.q. ontwikkeling waarbij een vrijstaande woning wordt vervangen door een twee-onder-een-kapwoning. Het planvoornemen behoort vanwege de relatief beperkte omvang automatisch tot de categorie van gevallen die niet in betekenende mate bijdragen aan luchtverontreiniging. Een toets aan de 3%-grens (bijdrage aan de jaargemiddelde norm voor fijnstof en stikstofdioxide) kan derhalve achterwege blijven.

De realisatie van woningen wordt niet aangemerkt als een gevoelige bestemming in het kader van het Besluit gevoelige bestemmingen (luchtkwaliteiteisen). Hieronder vallen scholen, kinderdagverblijven, en verzorgings-, verpleeg- en bejaardentehuizen. Daarnaast is het plangebied op meer dan 300 meter van de rijksweg A67 en meer dan 50 meter van de N279 gelegen, waardoor dit besluit niet van toepassing is in het geval sprake zou zijn van een gevoelige bestemming.

Uit oogpunt van goede ruimtelijke ordening is eveneens gekeken naar de concentraties stikstofdioxide (NO2) en fijnstof (zowel PM10 als PM2.5) ter plaatse van de voorgenomen ontwikkeling. Om een goed beeld te krijgen van deze concentraties is gebruik gemaakt van de resultaten uit de NSL Monitoringstool (monitoringsronde 2020). Met deze Monitoringstool wordt de luchtkwaliteit jaarlijks in beeld gebracht langs de drukste wegen in Nederland, zowel voor het gepasseerde jaar als voor de toekomst. De Monitoringstool wordt jaarlijks geactualiseerd op basis van de generieke invoergegevens en verkeersgegevens van het Rijk, provincies en gemeenten. De (maximale) concentraties in de directe nabijheid van de voorgenomen ontwikkeling zijn in onderstaande tabel in beeld gebracht. Als uitgangspunt zijn de waarden van het dichtstbijzijnde meetpunt genomen (zie navolgende afbeelding).

afbeelding "i_NL.IMRO.0743.PB02023002-OW01_0023.png" Uitsnede kaart NSL Monitoringstool. Dichtstbijzijnde meetpunt rood omcirkeld

Uit de NSL- monitoringskaart blijkt dat de jaargemiddelde grenswaarden voor NO2, PM10 en PM2,5 ter plaatse van de rekenpunten niet overschreden worden. Het aspect luchtkwaliteit vormt daarmee geen belemmering voor onderhavig planvoornemen.

4.5 Bedrijven en milieuzonering

4.5.1 Algemeen

Zowel in het kader van een goede ruimtelijke ordening als vanuit milieuwet- en regelgeving wordt gestreefd naar het voorkomen van voorzienbare hinder en gevaar door milieubelastende activiteiten, met als doel het handhaven en waar mogelijk bevorderen van een goede kwaliteit van het leefmilieu. Dit gebeurt onder andere door het fysiek scheiden van milieubelastende activiteiten (zoals bedrijven) en milieugevoelige functies (zoals woningen) door het aanbrengen van een voldoende ruimtelijke scheiding daartussen. Deze ruimtelijke scheiding bestaat doorgaans uit het aanhouden van een bepaalde afstand, hetgeen ook wel wordt aangeduid als milieuzonering. Die onderlinge afstand moet groter zijn naarmate de milieubelastende functie het milieu sterker belast.

Milieuzonering heeft twee doelen:

  • 1. Het voorkomen of zoveel mogelijk beperken van hinder en gevaar bij woningen en andere gevoelige functies;
  • 2. het bieden van voldoende zekerheid aan bedrijven dat zij hun activiteiten duurzaam onder aanvaardbare voorwaarden kunnen uitoefenen.

Voor het bepalen van de aan te houden afstanden wordt in de praktijk gebruik gemaakt van VNG-uitgave "Bedrijven en milieuzonering, editie 2009" (verder: VNG-uitgave). De VNG-uitgave geeft op systematische wijze informatie over de ruimtelijk relevante milieuaspecten van een scala aan bedrijfsactiviteiten. Deze uitgave bevat een lijst waarin voor veelvoorkomende milieubelastende activiteiten indicatieve richtafstanden zijn gegeven ten opzichte van milieugevoelige functies, uitgaande van een gemiddeld modern bedrijf. De handreiking is oorspronkelijk bedoeld als hulpmiddel bij de ruimtelijke planvorming. Uit de rechtspraak van de Afdeling vloeit voort dat de handreiking als hulpmiddel is erkend. Afwijken van de richtafstanden is mogelijk, mits wordt onderbouwd dat sprake is van een goed woon- en leefklimaat.

De indicatieve richtafstanden uit de VNG-brochure gaan uit van de afstand die dient te worden gehouden van het gebiedstype 'rustige woonwijk'. Indien sprake is van een 'gemengd gebied' mogen de richtafstanden met één afstandsstap worden verkleind (uitzondering is de richtafstand voor gevaar). Een gemengd gebied is een gebied met matige tot sterke functiemenging. Direct naast woningen komen andere functies voor zoals winkels, horeca en kleine bedrijven. Gebieden die direct langs de hoofdinfrastructuur liggen, behoren eveneens tot het omgevingstype gemengd gebied. Hier kan de verhoogde milieubelasting voor geluid de toepassing van kleinere richtafstanden rechtvaardigen. Geluid is voor de te hanteren afstand van milieubelastende activiteiten veelal bepalend.

4.5.2 Beoordeling

Gemengd gebied

Onderhavig besluitgebied is gelegen langs de hoofdinfrastructuur van de kern Ommel en kent een mix van bestemmingen rondom het besluitgebied. Daarnaast is het besluitgebied direct ten zuiden van de N279 gelegen. Hierdoor kan het besluitgebied worden beschouwd als 'gemengd gebied', waardoor bij de beoordeling van het aspect bedrijven en milieuzonering de toepassing van kleinere richtafstanden is gerechtvaardigd.

B&B Ons Witte Kerkje

Direct ten zuiden grenzend aan het besluitgebied ligt de B&B Ons Witte Kerkje, dat gevestigd is aan de Kloosterstraat 30. Uit de VNG-publicatie bedrijven en milieuzonering blijkt dat de grootste richtafstand ten gevolge van Hotels en pensions met keuken 10 meter bedraagt tot een rustige woonwijk en een treden lager tot gemengd gebied. De richtafstand wordt bepaald vanuit de aspecten geur, geluid en gevaar. Het besluitgebied is conform de VNG-brochure gelegen in gebiedstype 'gemengd gebied' waardoor de richtafstand van 10 meter komt te vervallen. Aan de richtafstand wordt dus voldaan.

Kapper By Eveline

Ten zuiden van het besluitgebied is By Eveline (kapper) gelegen. Uit de VNG-publicatie bedrijven en milieuzonering blijkt dat de grootste richtafstand voor kappersbedrijven 10 m bedraagt tot een rustige woonwijk en 0 m tot gemengd gebied (vanwege geluid).

De kapper By Eveline is op grotere afstand dan 10 meter van het besluitgebied gelegen. Bovendien is het besluitgebied in gemengd gebied gelegen. Aan de richtafstand wordt dus voldaan.

KGS Kusters

Ten noorden van het besluitgebied is KGS Kusters (grond-, sloop-, en straatwerken) gelegen. Uit de VNG-publicatie bedrijven en milieuzonering blijkt dat de grootste richtafstand voor een bouwbedrijf algemeen: b.o. > 2.000 m2 100 m bedraagt tot een rustige woonwijk en 50 m tot gemengd gebied (vanwege geluid).

KGS Kusters is op meer dan 125 meter van het besluitgebied gelegen. Aan de richtafstand wordt dus voldaan.

Conclusie

Met betrekking tot het perceel aan de KLoosterstraat 32 wordt geconcludeerd dat voor de voorgenomen ontwikkeling sprake is van een goed woon- en leefklimaat.

Daarnaast kan geconcludeerd worden dat nabijgelegen B&B Ons Witte Kerkje, Kapper By Eveline en KGS Kusters geen belemmering vormen voor de voorgenomen herstructurering c.q. ontwikkeling van Kloosterstraat 32 door middel van de sloop van de bestaande bebouwing en de bouw van een twee-onder-een-kapwoning. Omgekeerd vormt de twee-onder-een-kapwoning geen belemmering voor deze bedrijven aangezien reeds bestaande woningen op kortere afstand gelegen zijn. Het aspect bedrijven en milieuzonering vormt derhalve geen belemmering voor dit planvoornemen.

4.6 Geur

4.6.1 Algemeen

Bij het verlenen van vergunningen voor veehouderijen en bij het opstellen van bestemmingsplannen of andere besluiten op het gebied van de ruimtelijke ordening moet rekening worden gehouden met de geurbelasting uit stallen van veehouderijen.

De op 1 januari 2007 in werking getreden Wet geurhinder en veehouderij (Wgv) vormt voor de vergunningverlening van veehouderijen het beoordelingskader. Deze wet geeft aan hoe bij een aanvraag voor een milieuvergunning de geuremissies uit stallen van veehouderijen en de geurbelasting op geurgevoelige objecten moet worden meegenomen.

De normen van de Wet geurhinder en veehouderij gelden in beginsel alleen voor de beoordeling van een aanvraag omgevingsvergunning, als een veehouderij zich wil vestigen of als een veehouderij wil uitbreiden. Het gaat dan dus over de relatie tussen een bestaand geurgevoelig object en een ontwikkeling van de veehouderij. Dit heet ook wel de 'directe werking' of 'directe norm'.

Toets geur uit stallen van veehouderij

Bij inwerkingtreding van de Wgv gold deze norm ook in de omgekeerde situatie: als in de omgeving van een bestaande veehouderij een nieuwe woonwijk of een nieuw bedrijventerrein wordt ontwikkeld. In het kader van deze 'omgekeerde werking' werden dan dezelfde afstandsnormen toegepast als in de directe werking. Met de inwerkingtreding van de Wgv trad een geheel nieuwe systematiek van normering in werking. In verband daarmee rees de vraag of de normen van de Wgv op dezelfde manier als bij de vroegere stankwetgeving zouden werken in de “omgekeerde werking”. Intussen zijn enkele uitspraken gedaan door de hoogste rechter (de Afdeling bestuursrechtspraak van de Raad van State), die hierin duidelijkheid scheppen. Onder meer uit de uitspraak in de zaak Laarbeek (Afdeling bestuursrechtspraak van 7 oktober 2009) blijkt dat de normen van de Wgv niet in de omgekeerde werking van toepassing zijn. De directe norm geldt wel in het kader van de verlening van een omgevingsvergunning aan een veehouderij maar niet bij de ontwikkeling van bijvoorbeeld een nieuwe woonwijk of bedrijventerrein. Ook uit andere uitspraken is intussen gebleken dat het mogelijk is om binnen de belemmerende contouren te bouwen, mits aan twee voorwaarden wordt voldaan:

  • De nieuwe ontwikkelingen mogen geen extra belemmeringen opleveren voor de ontwikkeling van veehouderijen in de omgeving. Hierna de toets op de omgekeerde werking genoemd
  • De gemeenteraad dient in haar ruimtelijke besluit voor de betrokken ontwikkeling een uitspraak te doen c.q. onderbouwing op te nemen over de geurbelasting: is er sprake van een aanvaardbaar woon- en leefklimaat gelet op de beoogde bestemmingswijziging? Dit is hierna de toets op het woon- en leefklimaat genoemd.

Voorgrondbelasting en achtergrondbelasting

De geurhinder wordt bepaald op basis van de achtergrondbelasting en de voorgrondbelasting. Met de voorgrondbelasting, ook wel individuele belasting genoemd, wordt de geurbelasting op een geurgevoelig object bedoeld van één veehouderij. De achtergrondbelasting, ook wel de cumulatieve belasting genoemd, wordt veroorzaakt door alle veehouderijen samen die rondom een geurgevoelig object zijn gelegen. De achtergrondbelasting wordt vooral in gebieden met veel veehouderijen vaak gebruikt als maat om de effecten van geurhinder uit stallen van veehouderijen op het woon- en leefmilieu te kunnen beoordelen.

Geurgevoelig object (Wet geurhinder en veehouderij)

Onder een 'geurgevoelig object' wordt onder de Wgv verstaan een gebouw, bestemd voor en volgens aard, indeling en inrichting geschikt om te worden gebruikt voor menselijk wonen of verblijf en die daarvoor permanent of regelmatig wordt gebruikt. Een gebouw dat in strijd met het bestemmingsplan als woning of verblijf wordt gebruikt, heeft geen wettelijke bescherming tegen geurhinder.

Geldende geurnormen en vaste afstanden voor een individuele veehouderij

De geurnomen in het kader van de Wgv en de eventuele gemeentelijke geurnormen richten zich op de maximale geurbelasting van een individuele veehouderij op een gevoelig object, zoals een nabij gelegen woning. Dit wordt ook wel de voorgrondbelasting genoemd.

In de Wet geurhinder en veehouderij is de systematiek vastgelegd hoe de geurhinder uit stallen van veehouderijen beoordeeld moet worden. Voor diercategorieën, waarvan de geuremissie per dier is vastgesteld (zoals voor varkens en pluimvee), wordt de toetsingswaarde uitgedrukt in een ten hoogste toegestane geurbelasting op een geurgevoelig object. De geurbelasting wordt uitgedrukt in aantallen Europese odeur units in een volume-eenheid lucht (ou/m³: odeur units per kubieke meter lucht). Eerst wordt de geuremissie berekend door het aantal dieren te vermenigvuldigen met de betreffende geuremissiefactor. Vervolgens wordt de geuremissie vanuit de gezamenlijke dierenverblijven - samen met andere variabelen zoals de afstand tot de dichtstbij gelegen geurgevoelig objecten - ingevoerd in een (wettelijk voorgeschreven) model waarmee de verspreiding van de geur in de omgeving wordt berekend. De uitkomst hiervan is de geurbelasting op basis van de vergunde dierplaatsen op voor geurhinder gevoelige objecten.

De Wet geurhinder en veehouderij (Wgv) biedt de mogelijkheid voor gemeenten om binnen een bepaalde bandbreedte eigen gemeentelijke geurnormen vast te stellen. Een gemeente kan deze eigen normen via een gemeentelijke geurverordening vastleggen. De relevante geurnorm (ook wel voorgrondnorm genoemd) in de geldende geurverordening van Asten (2020) voor het bestemmingsplan zijn:

  • De norm van 1 Ou voor de woonkern van Ommel
  • De norm van 10 Ou voor het buitengebied rondom de kern Ommel
4.6.2 Beoordeling

Voor het verlenen van een omgevingsvergunning (handelen in strijd met regels RO) is het van belang te onderbouwen dat er sprake is van een aanvaardbaar woon- en leefklimaat ter plaatste van de beoogde ontwikkeling (toets op een goede ruimtelijke ordening o.b.v. van de kans op hinder vanwege geur uit stallen van de omliggende veehouderijen) en dat de rechten van de omliggende veehouders voldoende gerespecteerd worden (de zogenaamde toets om de omgekeerde werking).

Toets woon- en leefklimaat (achtergrondbelasting)

Het is aan een gemeente om een afweging te maken over de geaccepteerde geurhinder. Bij de beoordeling van de vraag of er bij de realisatie van een nieuw voor geurhinder gevoelig object sprake is van een aanvaardbaar woon- en leefklimaat, is een afweging met betrekking tot de hoogte van de geurbelasting (en de daarmee samenhangende kans op hinder) in relatie tot de aard van het gebruik van belang. Ook de te verwachten ontwikkeling van de geurbelasting dient hierbij betrokken te worden. In het algemeen geldt dat een gemeente(raad) de nodige beleidsvrijheid heeft bij die afweging, mits die voldoende onderbouwd is.

Op basis van gegevens van een methodiek zoals die is opgenomen in de toelichting bij de Wgv, is in onderstaande tabel de achtergrondbelasting vertaald in een kans op geurhinder en is hieraan een waardering van het woon- en leefklimaat gekoppeld (goed, redelijk goed, matig, tamelijk slecht, slecht, zeer slecht en extreem slecht).

De gemeente Asten heeft geen beleidsregel vastgesteld waarin is ingegaan op de wijze waarop de achtergrondbelasting (dus de geurbelasting van meerdere veehouderijen samen) beoordeeld moet worden bij het nemen van ruimtelijke besluiten. De gemeenteraad kan de afweging maken in het kader van de bestemmingsplan procedure.

In een onderzoek dat is uitgevoerd ten behoeve van de besluitvorming over de gemeentelijke geurverordening van Asten in 2016 (gebiedsvisie t.b.v. de geurverordening, 5 juli 2016) zijn de volgende waarden opgenomen om de achtergrondbelasting (dus cumulatieve geurbelasting) te beoordelen, in het kader van de beoordeling van de milieukwaliteit voor woonkernen en het buitengebied.

afbeelding "i_NL.IMRO.0743.PB02023002-OW01_0024.png"

Overzicht met gehanteerde gebiedsindeling, streefwaarden met geurklassen en geurhinderniveaus met kwaliteit van het woon- en leefklimaat (Gebiedsvisie Verordening geurhinder en veehouderij, gemeente Asten, 5 juli 2016)

In de geurgebiedsvisie is een achtergrondbelasting tot en met 10 Ou als aanvaardbaar aangemerkt voor woonkernen. De gemeenteraad heeft deze toetswaarden niet in een beleidsregel bekrachtigd, maar deze is wel als leidraad voor de beoordeling van de achtergrondbelasting in dit onderzoek gehanteerd. Dit sluit aan bij de bepalingen die in de Interim Omgevingsverordening van de provincie Noord-Brabant zijn opgenomen op het toetsen van de cumulatieve geurhinder bij de uitbreiding van een (intensieve) veehouderij.

afbeelding "i_NL.IMRO.0743.PB02023002-OW01_0025.png" Kaart veehouderijen in omgeving van het besluitgebied

Ten behoeve van de beoordeling van de geursituatie ter plaatse van het besluitgebied is een geurberekening uitgevoerd. Hieruit blijkt, dat de achtergrondbelasting ter plaatse van het besluitgebied grotendeels wordt veroorzaakt door de varkenshouderij Jan van Havenstraat 21, die ten zuidoosten van het besluitgebied is gelegen.

afbeelding "i_NL.IMRO.0743.PB02023002-OW01_0026.png"

Kaart achtergrondbelasting (4,9 en 5,0 Ou ter plaatse van nieuwe woningen)

Hieruit blijkt dat de achtergrondbelasting ter plaatse van de voorgenomen ontwikkeling lager is dan 10 Ou. Uitgaande van de indeling zoals die is gehanteerd in de geurgebiedsvisie uit 2016 is de achtergrondbelasting ten aanzien van geurhinder van het besluitgebied aanvaardbaar (maximaal 5,0 Ou). De achtergrondbelasting vormt daarom geen belemmering voor de voorgenomen ruimtelijke ontwikkeling. Er is en blijft sprake van een aanvaardbaar c.q. goed woon- en leefklimaat.

Toets op de omgekeerde werking

Vaste jurisprudentie bij ruimtelijke besluiten is dat door de nieuwe bestemmingen er geen sprake mag zijn van een aantasting van de bestaande rechten van de omliggende veehouderijen. In beginsel dient bij het bepalen van de rechten het agrarische bouwblok als uitgangspunt voor het meten van de geurbelasting contouren te worden genomen. Dit omdat veehouderijen rechten hebben om hun emissiepunten te verschuiven binnen het vastgestelde bouwblok (de zogenaamde 'vergunde rechten').

Het kan echter ook zo zijn dat het bedrijf zijn bouwblok niet in zijn geheel kan benutten voor de vestiging of verplaatsing van emissiepunten, bijvoorbeeld door de aanwezigheid van al bestaande geurgevoelige objecten. Uit de jurisprudentie blijkt dat men dan mag uitgaan van de grens van de bebouwing, een te benutten deel van het bouwblok of een bestaand emissiepunt. Uitgaande van de vergunde rechten van een veehouderij, de geurnorm(en), het agrarisch bouwblok en de ligging van de stallen en al bestaande voor geurhinder gevoelige objecten, kan bepaald worden of de realisatie van een nieuw voor geurhinder gevoelig object leidt tot een aantasting van de rechten: ligt de nieuwe bestemming binnen de geurcontour en zijn er geen andere bestaande geurgevoelige objecten die op kortere afstand liggen?

Het planvoornemen ziet feitelijk toe op de toevoeging van een woning in de nabijheid (en geurcontour) van de bestaande veehouderij Jan van Havenstraat 21 en Ommelse Bos 2. De geurnormering in de geurverordening van de gemeente Asten is op dit moment leidend voor de omgekeerde werking. Omdat er op kortere afstand van de veehouderij aan Ommelse Bos 2 en Jan van Havenstraat 21 al bestaande geurgevoelige objecten (woningen) zijn gelegen (dus op kortere afstand dan de voorgenomen ontwikkeling), leidt de voorgenomen ontwikkeling niet tot een extra belemmering voor de veehouderij. Hierbij is met name de woning Ommelse Bos 1 voor Ommelse Bos 2 maatgevend en Jan van Havenstraat 15 voor Jan van Havenstraat 21 maatgevend. Tevens zal de varkenshouderij Ommelse Bos 2 op termijn verdwijnen. De rechten van die veehouderij worden met de voorgenomen ontwikkeling dus niet aangetast.

afbeelding "i_NL.IMRO.0743.PB02023002-OW01_0027.png"

Ligging veehouderij Ommelse Bos 2 (blauw omkaderd) ten opzichte van bestaande geurgevoelige objecten (woonbestemmingen) Ommelse Bos 1 en 6. besluitgebied indicatief weergegeven met rode marker

afbeelding "i_NL.IMRO.0743.PB02023002-OW01_0028.png"

Ligging veehouderij Jan van Havenstraat 21 (blauw omkaderd) ten opzichte van bestaande geurgevoelige objecten (woonbestemmingen) zoals Jan van Havenstraat 15. Besluitgebied indicatief weergegeven met rode marker

Conclusie

Het planvoornemen in de vorm van een extra woning leidt niet tot een aantasting van de rechten van veehouderijen in de omgeving. Het besluitgebied ligt weliswaar in de buurt van van de veehouderijen Ommelse Bos 2 en Jan van Havenstraat 21, maar op kortere afstand van deze veehouderij zijn al bestaande geurgevoelige objecten aanwezig, die bepalend zijn voor de ontwikkelingsmogelijkheden van deze veehouderijen.

Ruimtelijke ontwikkelingen binnen geurcontouren zijn mogelijk, mits sprake is van een aanvaardbaar woon- en leefklimaat. Een aanvaardbaar woon- en leefklimaat betekent niet dat ter plaatse van het besluitgebied nooit enige geur vanuit veehouderijen geroken zal worden. Als een bepaalde mate van geur aanvaardbaar wordt geacht, dan werkt deze afweging omgekeerd ook door in de toekomstige beoordeling van beide varkenshouderijen.

Uit de voor- en achtergrondbelasting van geur volgt dat uitgaande van de beoordeling voor woningbouw binnen het besluitgebied sprake is van een aanvaardbaar woon- en leefklimaat. Ook in de toekomst is een aanvaarbaar woon- en leefklimaat gegarandeerd, aangezien de mogelijkheden voor het uitbreiden van het bedrijf zijn beperkt door dichtbijgelegen geurgevoelige objecten. Tevens zal de geurbelasting ter plaatse van het besluitgebied in de toekomst verder afnemen, door het verdwijnen van de veehouderij Ommelse Bos 2.

De achtergrondbelasting ligt ter plaatse van het besluitgebied ruim onder de 10 Ou (5,0 Ou), waardoor voldaan wordt aan de provinciale geurnormering voor de bebouwde kom (IOV).

4.7 Natuur

4.7.1 Algemeen

De Wet natuurbescherming vormt in Nederland het wettelijke kader voor zowel de gebiedsbescherming als de soortenbescherming. Bij gebiedsbescherming gaat het om de bescherming van aangewezen natuurgebieden en bij soortenbescherming gaat het om de bescherming van vogels en andere diersoorten en planten.

De Wet natuurbescherming vormt in Nederland het wettelijke kader voor de bescherming van Natura2000-gebieden. De wet bepaalt dat projecten en andere handelingen die de kwaliteit van natuurlijke habitats en de habitats van soorten in een Natura2000-gebied kunnen verslechteren of die een significant verstorend effect kunnen hebben op soorten waarvoor het gebied is aangewezen, niet mogen plaatsvinden zonder vergunning.

Verder moet rekening worden gehouden met het beleid ten aanzien van het Natuurnetwerk Nederland (NNN). De regels met betrekking tot het NNN zijn opgenomen in de provinciale verordening. Ten aanzien van ontwikkelingen binnen het NNN geldt het 'nee, tenzij-principe'.

4.7.2 Soortenbescherming

De bescherming van plant- en diersoorten is geregeld in de Wet natuurbescherming (Wnb). Om kwetsbare soorten te beschermen bevat de Wnb enkele verbodsbepalingen, zoals het verbod op het doden of verontrusten van dieren, en het beschadigen van voorplantings- of rustplaatsen. Dit houdt concreet in, dat voor bepaalde ruimtelijke ontwikkelingen zoals het verwijderen van beplanting en het bouwen dient te worden vastgesteld of daarin, of in de directe nabijheid beschermde soorten aanwezig zijn.

De locatie is gelegen binnen de kern Ommel. Het besluitgebied bestaat uit bestaande bebouwing in de vorm van een vrijstaande woning en bijbehorende opstallen en is momenteel in gebruik als een woonperceel. De herstructurering c.q. ontwikkeling van het besluitgebied bestaat uit het vervangen van de bestaande vrijstaande woning door een twee-onder-een-kapwoning. Ter plaatse van de middels het planvoornemen geplande bebouwing is geen begroeiing (bomen of planten) aanwezig, waardoor op de locatie en in de directe omgeving geen natuurwaarden aanwezig zijn. Indien beplanting in de tuin aan de achterzijde eventueel wordt gerooid dan zal dit buiten het broedseizoen van vogels plaatsvinden zodat voldaan wordt aan de algemene zorgplicht. Echter, dit heeft geen betrekking op het planvoornemen zelf aangezien het bouwvlak en de woning worden voorzien op de gronden waar momenteel geen begroeiing aanwezig is. Van aantasting of verstoring van eventuele beschermende soorten is geen sprake.

4.7.3 Gebiedsbescherming

Beoordeling effecten Natura2000-gebieden, Natuur Netwerk Nederland en houtopstanden

Het besluitgebied is niet gelegen in een Natura 2000-gebied, zodat er uitsluitend sprake is van externe werking. Gezien de ligging van het besluitgebied, de kleinschalige aard van het planvoornemen en de grote afstand tot de dichtstbijzijnde Natura 2000-gebieden (Stabrechtse heide & Beuven, ca. 6,5 km / Deurnsche Peel en Mariapeel, ca. 7,0 km / Groote Peel, ca. 7,7 km), is geen sprake van verstoring door licht, trilling, optische verstoring of verstoring door mechanische effecten. Ook is de locatie niet gelegen in de directe nabijheid van het Natuur Netwerk Nederland.

afbeelding "i_NL.IMRO.0743.PB02023002-OW01_0029.png"

Ligging besluitgebied (rood contour) t.o.v. Natura2000-gebieden

afbeelding "i_NL.IMRO.0743.PB02023002-OW01_0030.png"

Ligging besluitgebied (rode contour) t.o.v. Natuur Netwerk Nederland

Stikstofdepositie

Bij de onderhavige ontwikkeling wordt een twee-onder-een-kapwoning gerealiseerd waardoor het aantal woningen met 1 toeneemt. Doordat de te realiseren woningen conform bouwregelgeving gasloos zullen worden uitgevoerd, zal de stikstofdepositie als gevolg van het energiegebruik ten behoeve van de gebruiksfase niet toenemen. Daarnaast zal de nieuwe situatie slechts leiden tot een zeer geringe toename van de verkeersgeneratie, die wordt opgenomen in het heersend verkeersbeeld op de Kloosterstraat (zie paragraaf 4.11). Het voorgaande leidt tot de conclusie dat kan worden uitgesloten dat sprake is van een significante toename van de stikstofemissie, en daarmee ook de stiktofdepositie op nabijgelegen Natura 2000-gebieden.

Op grond van de Wet Stikstofreductie en Natuurherstel, die op 1 juli 2021 in werking is getreden en de recente uitspraak van de Raad van State (d.d. 2 november 2022), waarin de partiële vrijstelling voor bouwactiviteiten is geschapt, moet voor alle plannen en projecten zowel de tijdelijke bouwfase als ook de permanente gebruiksfase beoordeeld worden.

In dat kader is bijgevoegde notitie beoordeling stikstof en de uitgevoerde aeriusberekeningen voor de realisatiefase en gebruiksfase (Bijlage 2) uitgevoerd. Hierin wordt aangetoond dat het planvoornemen in zowel de realisatiefase als de gebruiksfase niet leidt tot een toename van stikstofdepositie op Natura 2000-gebieden. Voor het plan is derhalve geen vergunning in het kader van de Wet natuurbescherming vereist. .

4.8 Externe veiligheid

4.8.1 Algemeen

In de landelijke regelgeving zijn kwaliteitseisen en normen op het gebied van externe veiligheid geformuleerd. Doel is om bepaalde risico's, waaraan burgers in hun leefomgeving worden blootgesteld, tot een aanvaardbaar minimum te beperken. Deze bedoelde risico's hangen vooral samen met:

  • activiteiten met gevaarlijke stoffen in inrichtingen;
  • transport van gevaarlijke stoffen door buisleidingen;
  • transport van gevaarlijke stoffen over de weg, spoor en water.

Het uitgangspunt van wet- en regelgeving en beleid ten aanzien van externe veiligheid is scheiding van kwetsbare functies en risicobronnen, waarmee men het volgende wil bereiken:

  • bescherming van personen die zich bevinden in de nabijheid van een risicobron tegen de kans op overlijden ten gevolge van een ongeval met gevaarlijke stoffen of ten gevolge van een ongeval met een vliegtuig op of nabij een luchthaven;
  • bescherming van de samenleving tegen het ontwrichtende effect van een dergelijk ongeval met een groot aantal slachtoffers.

Voor de eerste doelstelling is het begrip plaatsgebonden risico (PR) van belang. De norm voor het plaatsgebonden risico is 10-6, die als een contour om een risicovolle inrichting en aan weerszijden langs een transportroute of buisleiding ligt. Binnen die contour zijn ingevolge het Besluit externe veiligheid inrichtingen milieubeheer (BEVI) geen nieuwe kwetsbare objecten toegestaan. Voor beperkt kwetsbare objecten als bedoeld in het BEVI geldt die norm als richtwaarde. Een soortgelijke normstelling en systematiek geldt voor transport van gevaarlijke stoffen over wegen, spoorwegen en binnenwateren en via buisleidingen.

Bij de realisatie van de tweede doelstelling staat het begrip groepsrisico (GR) centraal. Het groepsrisico beschrijft de kans dat een groep van 10 of meer personen gelijktijdig komt te overlijden ten gevolge van een ongeval met gevaarlijke stoffen. Het groepsrisico geeft een indicatie van de maatschappelijke ontwrichting in geval van een ramp. Het groepsrisico wordt uitgedrukt in een grafiek, waarin de kans op overlijden van een bepaalde groep (bijvoorbeeld 10, 100 of 1000 personen) wordt afgezet tegen de kans daarop. Voor het groepsrisico geldt geen norm maar wel een oriënterende waarde, die als ijkpunt geldt bij het zoeken naar maatschappelijk aanvaardbare grenzen.

Op grond van artikel 13 BEVI dient het bevoegd gezag bij nieuwe ruimtelijke plannen die nieuwe (kwetsbare) objecten mogelijk maken een verantwoording van het groepsrisico uit te voeren. Een soortgelijke regeling geldt voor transport van gevaarlijke stoffen over wegen, spoorwegen en binnenwateren en via buisleidingen op basis van respectievelijk het Besluit externe veiligheid transportroutes (BEVT) en het Besluit externe veiligheid buisleidingen (BEVB).

4.8.2 Beoordeling

Om te kunnen beoordelen of het besluitgebied in de buurt is gelegen van risicovolle inrichtingen dan wel andere gevaarlijke activiteiten of transportroutes, is de risicokaart geraadpleegd.

afbeelding "i_NL.IMRO.0743.PB02023002-OW01_0031.png"

Risicokaart en ligging besluitgebied (blauw omcirkeld)

In de directe nabijheid zijn geen risicovolle inrichtingen gelegen. Een risicovolle inrichting ten noorden van het besluitgebied betreft Plukon, waar een ammniakkoelinstallatie aanwezig is. Het besluitgebied is buiten de risicocontour van deze installatie gelegen (als zwarte cirkel weergegeven op risicokaart). Deze installatie levert dientengevolge geen belemmeringen op ten aanzien van de planontwikkeling. Daarnaast bevindt zich ten westen van het besluitgebied het recreatiepark Prinsenmeer, waar een propaanreservoir aanwezig is. Voor het maatgevend scenario 'BLEVE bij verlading tankauto' is een risicocontour berekend. Het besluitgebied bevindt zich buiten deze risicocontour. Deze installatie levert dientengevolge geen belemmeringen op ten aanzien van de planontwikkeling. Ten zuidoosten van het besluitgebied is een risicovolle inrichting gelegen aan de Jan van Havenstraat 35. Dit betreft een montagebedrijf met een bovengrondse propaantank 4 m3. Hiervoor geldt een veiligheidsafstand van 10 meter. Gezien de afstand ten opzichte van het besluitgebied vormt deze risicovolle inrichting eveneens geen belemmering voor de uitvoerbaarheid van het planvoornemen.

Over de ten zuiden van het besluitgebied gelegen A67 is vervoer van gevaarlijke stoffen mogelijk. Het besluitgebied ligt echter op een afstand van meer dan 500 meter van het besluitgebied en ligt daarmee buiten de risicocontour van dergelijke transportroutes.

In de nabijheid van het besluitgebied zijn ten slotte geen buisleidingen gelegen.

Gesteld kan worden dat het aspect externe veiligheid geen belemmering vormt voor het planvoornemen.

4.9 Archeologie en cultuurhistorie

4.9.1 Algemeen

De Monumentenwet 1988 is per 1 juli 2016 vervallen. Een deel van de wet is op deze datum overgegaan naar de Erfgoedwet. De Erfgoedwet bundelt en wijzigt een aantal wetten op het terrein van cultureel erfgoed. De kern van deze wet is dat wanneer de bodem wordt verstoord, de archeologische resten intact moeten blijven. Wanneer dit niet mogelijk is, worden archeologische resten opgegraven en elders bewaard. Daarnaast dient ieder ruimtelijk plan op grond van het Besluit ruimtelijke ordening een analyse van de overige cultuurhistorische waarden van het besluitgebied te bevatten. Voor zover in een besluitgebied sprake is van erfgoed, dient op grond van het voorgaande dan ook aangegeven te worden op welke wijze met deze cultuurhistorische waarden en in de grond aanwezige of te verwachten archeologie rekening wordt gehouden.

4.9.2 Beoordeling

Archeologie

Op het besluitgebied is op grond van het geldend bestemmingsplan de dubbelbestemming 'Waarde Archeologie' met functieaanduiding spcifieke vorm van archeologie waarde - archeologische waarde categorie 3/4 van toepassing. Deze gronden zijn op basis van deze dubbelbestemming mede bestemd voor instandhouding en bescherming van de in de grond aanwezige of te verwachten archeologische waarden. Bij het realiseren van bouwwerken met een oppervlakte groter dan 250 m2 en waarvoor bodemverstorende werkzaamheden dieper dan 40 cm plaatsvinden, dient een archeologisch rapport overlegd te worden.

Het uitvoeren van archeologisch onderzoek heeft betrekking op de verstoringsoppervlakte van de grond. Het realiseren van een tweekapper betreft een relatief kleine, particuliere ingreep waar geen sprake is van grote verstoringen in de bodem. Middels het planvoornemen wordt het bouwvlak in de richting van de Kloosterstraat opgeschoven. Het bouwvlak voor de twee-onder-een-kapwoning bedraagt ((7,2 * 2,0 ) * 12,0) = ) 172,8 m2. De nieuwe te realiseren twee-onder-een-kapwoning komt voor een groot deel op exact dezelfde locatie als de oude woning die er nu nog staat. Een groot deel van de grond is dus al reeds verstoord, waardoor het nieuwe totale verstoringsoppervlak lager is dan 178 m2. Het reeds bestaande woonhuis (72 m2) en garage (24 m2) beslaat totaal 96 m2. De feitelijke omvang van de nieuwe verstoringen komt dus niet boven de 250 m2 uit. Tevens blijkt uit archeologisch onderzoek uit projecten in de buurt (zie nieuwe plan Kloosterstraat 8 met 22 woningen en Kluizendries) dat er geen archeologische waarden zijn ontdekt. De bodemverstoring van onderhavig planvoornemen gaat dus niet over de maatschappelijke en archeologisch verantwoorde ondergrens. Op basis van bovenstaande argumenten is er geen archeologisch rapport noodzakelijk en zijn er ook géén indicaties dat er archeologische waarden zijn te verwachten of kunnen worden geschaad. Concluderend zijn er géén aanleidingen voor aanvullend onderzoek of proefboringen.

Cultuurhistorie

Op grond van artikel 3.6.1, eerste lid, van het Besluit ruimtelijke ordening moet in de toelichting van een ruimtelijk plan een beschrijving worden opgenomen van de wijze waarop met de in het gebied aanwezige cultuurhistorische waarden en in de grond aanwezige of te verwachten monumenten rekening is gehouden. Gemeenten zullen een inventarisatie moeten (laten) maken van alle cultuurhistorische waarden in het besluitgebied, dus niet alleen van de archeologische waarden. Daarnaast moeten ze aangeven welke conclusies ze daaraan verbinden en op welke wijze ze deze waarden borgen in het kader van het planvoornemen.

Voor Noord-Brabant is een provinciale Cultuurhistorische Waardenkaart uit 2010 beschikbaar, die in 2016 is herzien. Van die kaart kan worden afgeleid dat er geen cultuurhistorische waarden binnen c.q. grenzend aan het besluitgebied aanwezig zijn.

afbeelding "i_NL.IMRO.0743.PB02023002-OW01_0032.png"

Uitsnede CHW, besluitgebied blauw omlijnd

Op grond van het geldend bestemmingsplan is ter plaatse van het besluitgebied geen gebiedsaanduiding omtrent enige cultuurhistorische waarde opgenomen. Ter plaatse van het besluitgebied is in de huidige situatie sprake van bestaande bebouwing in de vorm van een vrijstaande woning met opstallen met omliggend een tuin. De bebouwing is verouderd, is niet aangemerkt als een rijks- dan wel gemeentelijk monument en kent geen cultuurhistorische waarde voor de kern Ommel. Middels het planvoornemen wordt de rooilijn opgeschoven in de richting van de Kloosterstraat waarmee de toekomstige bebouwing beter aansluit op de overige bebouwing aan de Kloosterstraat.

Wel grenst het besluitgebied, aan de zuidzijde, aan de voormalige kerk van Ommel (Kloosterstraat 30). Deze voormalige kerk is aangewezen als gemeentelijk monument en als zodanig ook beschermd door middel vande dubbelbestemming 'Waarde - Cultuurhistorie'. Als gevolg van het planvoornemen wijzigt de situatie ter plaatse van het gemeentelijk monument niet. De woningen worden wel iets verder naar voren geplaatst dan de huidige woning waardoor het zicht op de zijgevel van het gemeentelijk monument komenden vanuit het noorden enigszins wordt beperkt. Echter de bebouwing blijft nog voldoende zichtbaar en er is geen sprake van afbreuk van de cultuurhistorische waarden.

afbeelding "i_NL.IMRO.0743.PB02023002-OW01_0033.png"

Zichtbaarheid (zijgevel) gemeentelijk monument

Verder zijn er geen gemeentelijke monumenten gelegen in de directe omgeving van het plangebied. Rijksmonumenten en andere gemeentelijke monumenten zijnde: ivoren reliëf en kruisbeeld met processiepark (Marialaan 16) en de pastorie Ommel (Marialaan 20) zijn op enige afstand (ongeveer 275 meter) gelegen.

De Kloosterweg zelf maakt onderdeel uit van het historische wegenpatroon. Echter met de realisatie van de woningen vindt er geen wijziging van dit historische wegenpatroon plaats. Het straatprofiel en de inrichting van de weg blijft ongewijzigd.

Conclusie

Op grond van het bovenstaande kan worden geconcludeerd dat de aspecten archeologie en cultuurhistorie geen belemmeringen vormen voor realisatie van het planvoornemen.

4.10 Waterhuishouding

4.10.1 Algemeen

Het Nationaal Water Programma 2022-2027 is vastgesteld op 18 maart 2022. In het Nationaal Water Programma (NWP) 2022-2027 beschrijft de Rijksoverheid de hoofdlijnen van het nationale waterbeleid en de uitvoering ervan in de rijkswateren en -vaarwegen.

Nederland heeft te maken met grote wateropgaven die bovendien in de toekomst steeds groter en complexer worden. Dit komt door een aantal samenhangende uitdagingen: klimaatverandering, bodemdaling, milieuverontreiniging en ruimtedruk. In de uitvoering ligt bovendien een grote opgave om verouderde infrastructuur zoals bruggen en sluizen in stand te houden en waar nodig te vervangen of te renoveren.

De wateropgaven waar Nederland op dit moment voor staat, de uitdagingen richting de toekomst en de noodzaak van een integrale aanpak vormen de basis voor 3 hoofdambities van dit NWP:

  • 1. Een veilige en klimaatbestendige delta.
  • 2. Een concurrerende, duurzame en circulaire delta.
  • 3. Een schone en gezonde delta met hoogwaardige natuur.

De 3 hoofdambities voor het waterbeleid worden in het NWP uitgewerkt voor verschillende thema’s – klimaatadaptatie, waterveiligheid, zoetwaterverdeling en droogte, waterkwaliteit, grondwater, scheepvaart – en voor de bijbehorende beheer- en uitvoeringstaken van Rijkswaterstaat. Ook de samenhang van het waterbeleid met andere onderwerpen komt aan bod: natuur, landbouw, bodem en ondergrond, landschap, verstedelijking, energietransitie en industrie. Hierna worden per hoofdambitie de belangrijkste beleidsdoelen en -keuzes en de beheer- en uitvoeringstaken van Rijkswaterstaat voor de planperiode van dit NWP samengevat.

Het Regionaal Water en Bodem Programma (RWP) 2022-2027 is de opvolger van het Provinciaal Milieu en Waterplan. Het is onderdeel van het planstelsel voor de wateropgaven in Nederland, samen met het Nationaal Water Programma en de waterbeheerprogramma’s van de waterschappen.

Doel van dit nieuwe RWP is: een klimaatadaptief Brabant met veilig, schoon en voldoende water en een vitale bodem. Deze opgaven zijn ook van belang voor vrijwel alle andere provinciale opgaven: wonen en werken, infrastructuur en mobiliteit, landbouw en voedsel, natuur en biodiversiteit, erfgoed, een concurrerende en duurzame economie, en de energietransitie.

Een belangrijke rode draad in het programma is het herstellen van de systeemwerking. Vele generaties lang had het waterbeleid als doel wateroverlast te voorkomen en water zo snel mogelijk af te voeren. Inmiddels weten we beter en is het duidelijk geworden dat het roer om moet: we moeten zuinig zijn op ons water en de bodem, en het wateren bodemsysteem moet toegerust zijn op natte én droge tijden.

In het waterbeheerplan 2022-2027 staan de doelen van het waterschap voor zes jaar en hoe zij die doelen willen bereiken. Ook wordt beschreven hoe ingespeeld wordt op veranderende omstandigheden zoals het klimaat. Zo weten inwoners van het werkgebied van het waterschap en de partners wat ze van het waterschap kunnen verwachten. En hoe waterschap Aa en Maas bijdraagt aan de veiligheid en gezondheid van deze en volgende generaties.

De doelen en maatregelen waar het waterschap voor staat en gaat, zijn onderverdeeld in drie programma’s:

Waterveiligheid: middels dit programma wil het waterschap Oost-Brabant beschermen tegen overstromingen. Zijvoorzien hierin door grote investeringen te doen om Oost-Brabant beter te beschermen tegen overstromingen vanuit de Maas. In de afgelopen jaren zijn (veiligheids)normen vastgesteld waaraan de Maasdijk voor 2050 moet voldoen.

Klimaatbestendig en gezond watersysteem: middels dit programma wil het waterschap goede waterkwaliteit en -kwantiteit voor mens en natuur waarborgen. Het is belangrijk dat ons watersysteem goed werkt in normale én in extreem droge en natte situaties. We willen dat ons watersysteem klimaatbestendig en stuurbaar is. Daarbij letten we op de hoeveelheid (goede waterpeilen, het vasthouden van water en het omgaan met wateroverlast en droogte) en op de kwaliteit van het water (chemisch en ecologisch). Hiernaast nemen we ook maatregelen gericht op een gezond en natuurlijk watersysteem. In de Europese Kaderrichtlijn Water (KRW) staan doelstellingen die we moeten halen voor het creëren van goede omstandigheden voor planten en dieren in en om het water.

Schoon Water: middels dit programma wil het waterschap goede zuiveringsresultaten voor gezond water in sloten en beken bewerkstelligen. De komende jaren zijn er grote uitgaven die erop zijn erop gericht om het rioolwater nog schoner te maken en om ervoor te zorgen dat het water in de sloten en beken nog gezonder wordt. Dit wil het waterschap doen door nutriënten (fosfor en stikstof) en medicijnresten beter te verwijderen en waardevolle stoffen uit het afvalwater te halen zoals cellulose en struviet. Ook wordt wordt energie teruggewonnen uit de zuiveringen. Naast extra zuiveren bij onze rioolwaterzuiveringen zet het waterschap zelf en samen met haar partners in op een aanpak bij de bron om ervoor te zorgen dat er minder vervuilende stoffen in het afvalwater komen.

De Keur Waterschap Aa en Maas 2015, in 2019 na aanpassing inwerking getreden, is een aanvulling op regels uit de Waterwet en is van toepassing op de rivieren, beken, sloten, grondwater en waterkeringen die in beheer zijn bij het waterschap, maar ook op alle sloten en watergangen die eigendom zijn van anderen (o.a. gemeenten, agrariërs en tuinders). De voorschriften in de Waterwet en de Keur geven aan wat wel en niet mag en welke plichten er zijn. Denk aan activiteiten zoals het lozen in oppervlaktewater, het onttrekken van grondwater, het dempen van een sloot of het plaatsen van een duiker of brug.

Net zoals het Rijk heeft ook het waterschap een legger vastgesteld. De legger geeft het waterschap én derden een overzicht van:

  • Alle aanwezige waterlopen (sloten) en waterkeringen (dijken) inclusief kunstwerken (bijv. stuwen, bruggen, etc.)
  • Wie verantwoordelijk is voor het beheer en onderhoud van sloten en kunstwerken. Dat betekent dat het gaat om de beheertaken en onderhoudsplichten van het waterschap en om de onderhoudsplichten van derden waarop het waterschap toezicht uitoefent
  • Waar de beschermingszone ligt, die noodzakelijk is voor het waterschap om haar beheerstaken te kunnen uitvoeren. Op deze beschermingszone zijn verbodsbepalingen, volgens de keur, van toepassing. Ook is de legger een naslagwerk ten aanzien van waterstaatswerken.

De legger wordt jaarlijks geüpdatet, omdat het watersysteem en de kunstwerken aan verandering onderhevig zijn. Bijvoorbeeld door het afgeven van vergunningen of veranderingen die voortkomen uit projecten.

De watertoets bij ruimtelijke ontwikkelingen, waaronder ver- en nieuwbouwplannen vallen, bewaakt de waterkwaliteit en waterkwantiteit. Het doel van een watertoets is de waterbelangen evenwichtig laten meewegen in het planvormingsproces.

Hierbij wordt een veilig, gezond en duurzaam watersysteem nagestreefd. Het waterschap hanteert een aantal uitgangspunten bij de watertoets. De desbetreffende uitgangspunten zijn hieronder weergegeven:

  • Voorkomen van vervuiling
  • Wateroverlastvrij bestemmen
  • Hydrologisch neutraal ontwikkelen (HNO)
  • Vuil water en hemelwater scheiden
  • Doorlopen van afwegingsstappen hergebruik > infiltratie > buffering > afvoer
  • Waterschapsbelangen
  • Meervoudig ruimtegebruik
  • Water als kans

Het beleid van de gemeente Asten sluit aan op het landelijke-, provinciale- en waterschapsbeleid en is weergegeven in het Gemeentelijk RioleringsPlan (GRP) 2021-2025. Vooruitkijken naar uitdagingen is essentieel in waterbeheer. Het GRP is een goed en (thans nog) wettelijk verplicht planinstrument om mee te kunnen bewegen met de trends en ontwikkelingen binnen dit vakgebied. Zo is er bijvoorbeeld sprake van meer extreme neerslag door klimaatverandering, een veranderende verhouding tussen overheid en inwoners en verandering in wetgeving. We gebruiken het GRP om nu en in de toekomst aan de gemeentelijke zorgplichten te kunnen voldoen en als toetsingskader voor nieuwe ontwikkelingen. Met de inwerkingtreding van de Omgevingswet komt de wettelijke verplichting van een GRP te vervallen.

De zorg voor riolering draagt bij aan een gezonde leefomgeving en is uitgewerkt in zorgplichten. Volgens deze zorgplichten draagt de gemeente, vanuit het oogpunt van volksgezondheid en veiligheid, zorg voor een doelmatige inzameling, berging, transport en/of lokale zuivering van afvalwater, hemelwater en grondwater. De kans op overlast dient hierbij te worden beperkt tot maatschappelijk aanvaardbare normen. Deze taakverantwoordelijkheid geldt alleen indien de burger niet zelf op eigen terrein het hemel- en grondwater doelmatig kan verwerken.

Bij de inzameling en het transport van het stedelijk afvalwater zorgen we ervoor dat ons systeem zo doelmatig mogelijk functioneert, dat we duurzame technieken inzetten en dat de volksgezondheid niet in het geding komt. Dat betekent dat we:

  • Tenminste het huidige serviceniveau behouden;
  • Het aanbod van afvalwater op de RWZI ten hoogste gelijk houden maar streven naar minder;
  • Gebruikt water hygiënisch verantwoord blijven verwerken;
  • Nieuwe foutaansluitingen voorkomen en bestaande
  • foutaansluitingen opheffen;
  • In beperkte mate rioolvreemd water accepteren;
  • Openstaan voor terugwinning/hergebruik van energie en
  • grondstoffen;
  • Open staan voor nieuwe sanitatie concepten.

We houden bij de (her)inrichting van de openbare ruimte rekening met de verwerking van extreme neerslaghoeveelheden. Hemelwater verwerken we zo lokaal mogelijk en benutten we voor het aantrekkelijk maken van de leefomgeving. In de Brabantse Peel is veel variatie in de grondwaterhuishouding. Asten heeft natte natuur in de Peel Venen maar ook droge plekken vanwege de ligging op de hoge zandgronden. Een gezonde grondwaterhuishouding is een gezamenlijke verantwoordelijkheid van zowel particulieren, gemeente, waterschap en provincie. Samen streven we naar het voorkomen van verdroging en grondwateroverlast en -onderlast. De invloed van menselijke ingrepen op het grondwaterregime onderzoeken we vooraf, waarbij we er naar streven om de natuurlijke situatie intact te laten.

4.10.2 Beoordeling

Huidige situatie waterhuishouding

Het besluitgebied is momenteel deels verhard ten behoeve van de aanwezige bestaande bebouwing in de vorm van een vrijstaande woning en opstallen.

Oppervlaktewater

Binnen het besluitgebied en in de directe omgeving daarvan zijn geen oppervlaktewateren aanwezig.

Natuurwaarden

Het besluitgebied is niet gelegen binnen de invloedsfeer van beschermde natuurgebieden (Natura 2000, NNN) of binnen hydrologische beschermingszones, zoals waterwin- of grondwaterbeschermingsgebied.

Toekomstige situatie waterhuishouding

Oppervlaktewater: Er wordt geen bebouwing opgericht binnen de beschermingszone van een (primaire) watergang en er is geen oppervlaktewater aanwezig binnen het besluitgebied.

Hemelwater: De voorgenomen ontwikkeling resulteert in een bebouwd oppervlak van ca. 105 m2 (woning met garage/bijgebouwen) en verharding van ca. 60 m2 resulterend in een totaal verhardingsoppervlak van ca. 165 m2 per woning. De afhandeling van het regenwater van de toekomstige bebouwing wordt op eigen terrein voorzien in hemelwaterberging, waarbij wordt voldaan aan ((165 * 2)m2 * 0,06 = ) 19,8 m3 hemelwateropvang. Het besluitgebied kent daarmee een maximale wateropgave van 19,8 m3. Binnen het besluitgebied is hiervoor voldoende ruimte en wordt voorzien in de noodzakelijke infiltratievoorziening met een capaciteit van 9,9 m3 per woning (realisatievolume boven GHG) met een overstort op het gemeentelijk riool voor eventuele extreme situaties.

Afvoer en vuilwater: De planlocatie is gelegen binnen bestaand stedelijk gebied. De gemeente streeft naar een goede waterkwaliteit, die voldoet aan de gestelde eisen. Van belang is dat zo min mogelijk vervuilende stoffen worden toegevoegd aan het grond- en oppervlaktewatersysteem. Alleen schoon hemelwater wordt afgevoerd naar de bodem en/of het oppervlaktewater. Het vuilwater wordt gescheiden afgevoerd.

De nieuwe woning wordt voorzien van een gescheiden rioolstelsel. Het hemelwater van de woningen en de nieuwe verhardingen wordt volledig afgekoppeld. Hiervoor worden de nodige maatregelen getroffen en noodzakelijke voorzieningen aangelegd met voldoende bergingscapaciteit onder de aan te leggen opritten van de woningen.

Het gescheiden rioolstelsel binnen het besluitgebied wordt aangesloten op het bestaande gemengde rioolstelsel zoals aanwezig ter plaatse van de bestaande infrastructuur ter hoogte van Kloosterstraat 32. Het vuilwater wordt via dit stelsel afgevoerd naar de dichtbijzijnde rioolwaterzuivering.

Uit bovenstaande kan geconcludeerd worden dat de waterhuishouding geen belemmering vormt voor het planvoornemen. Onderhavig plan wordt voorgelegd aan het waterschap ter beoordeling.

Watertoets

Om de effecten op het aspect water ten gevolge van het planvoornemen in kaart te brengen is tevens een digitale watertoets uitgevoerd. Deze is opgenomen in de Bijlage 3. Uit deze watertoets is gebleken dat bij de bouw dient te worden af te zien van uitlogende bouwmaterialen, zoals zink en koper. In haar reactie (zie Bijlage 6) geeft het waterschap aan dat het waterschap geen regels stelt aan het gebruik van uitlogend materiaal. Wel verzoekt/adviseert het waterschap om van het gebruik van uitlogende materialen af te zien om eventuele verontreiniging van het oppervlaktewater en grondwater te voorkomen.

Daarnaast dient 'hydrologisch neutraal ontwikkeld'(HNO) te worden. Dit houdt in dat er maatregelen genomen moeten worden om afstromend hemelwater te verwerken. Dit wordt gedaan door het hemelwater van de woning en verhardingen volledig af te koppelen en te voorzien in infiltratievoorziening met voldoende capaciteit zoals hiervoor beschreven onder hemelwater.

Tevens is voor de volledigheid een afzonderlijk waterparagraaf toegevoegd als Bijlage 4. Geconcludeerd kan worden dat het waterschapsbelang voldoende is geborgd. Realisatie van het planvoornemen leidt niet tot negatieve effecten op de aspecten met betrekking tot de waterhuishouding. Het aspect water vormt daarom geen belemmering voor het voorgenomen initiatief.

4.11 Verkeer en parkeren

4.11.1 Algemeen

Bij nieuwe ontwikkelingen dient rekening te worden gehouden met de verkeersgeneratie en parkeerbehoefte die als gevolg daarvan ontstaat. Hiertoe kunnen berekeningen worden uitgevoerd op basis van de kencijfers uit de publicatie 'Toekomstbestendig Parkeren', publicatie 381 (december 2018) van het CROW. Deze kencijfers zijn gebaseerd op literatuuronderzoek en praktijkervaringen van gemeenten en zijn landelijk (en juridisch) geaccepteerd en worden gezien als de meest betrouwbare gegevens met betrekking tot het bepalen van onder andere de verkeergeneratie.

Op basis van de parkeercijfers uit de CROW-publicatie heeft de gemeente Asten in de Nota Parkeernormen Asten op de gemeentelijke situatie toegespitste normen aangereikt voor parkeergelegenheden bij verschillende functies. De parkeernormen geven per type gebied aan hoeveel parkeerplaatsen gerealiseerd dienen te worden bij nieuwbouw of uitbreiding van bestaande bouw.

4.11.2 Beoordeling

Verkeersgeneratie

De locatie van het besluitgebied kan op grond van de Nota Parkeernormen 2016 worden aangemerkt als weinig stedelijk gebied.

Ten aanzien van weinig stedelijk gebied geldt voor een vrijstaande koopwoning in de rest bebouwde kom een verkeersgeneratie van minimaal 7,8 en maximaal 8,6 verkeersbewegingen per etmaal per woning. Dit geldt voor de huidige situatie ter plaatse van het besluitgebied.

Ten aanzien van weinig stedelijk gebied geldt voor twee-onder-een-kapwoningen in de rest bebouwde kom een verkeersgeneratie van minimaal 7,4 en maximaal 8,2 verkeersbewegingen per etmaal per woning. In de toekomstige situatie zal het aantal woningen ter plaatse van het besluitgebied met 1 woning toenemen, waardoor de totale verkeersgeneratie ter plaatse van het besluitgebied eveneens licht zal toenemen (7,8/8,6 versus 14,8/16,4 verkeersbewegingen) met 7,0/7,8 verkeersbewegingen.

Op basis van bovenstaande kan worden geconcludeerd dat de verkeersgeneratie van de locatie in zeer lichte mate toeneemt. Deze toename zal worden opgenomen in het heersend verkeersbeeld van de Kloosterstraat. De nieuwe woningen zullen ontsloten worden via de parallelweg van de Kloosterstraat. Gezien de kleinschaligheid van het planvoornemen komt de capaciteit van deze weg niet in het geding.

Parkeerbehoefte

Het besluitgebied is niet aangeduid als gebiedstype 'centrum' en ligt niet in het 'buitengebied' en kan dientengevolge worden aangeduid als 'rest bebouwde kom'. De parkeerbehoefte die gerealiseerd dient te worden voor de functie in dit gebied is afhankelijk van het type woning en de prijsklasse daarvan.

Dit planvoornemen maakt de herstructurering c.q. ontwikkeling van Kloosterstraat 32 mogelijk, waarbij de bestaande bebouwing vervangen wordt door een twee-onder-een-kapwoning. Voor dit woningtype geldt op grond van de Nota Parkeernormen Asten een parkeerbehoefte van 2,2 parkeerplaatsen per woning. Er dienen op grond daarvan minimaal ((2,2 * 2) = 4,4 = ) 5 parkeerplaatsen gerealiseerd te worden. De gemeente Asten streeft ernaar om de parkeervraag zoveel mogelijk op eigen terrein op te vangen. Er is op eigen terrein voldoende ruimte aanwezig om de parkeervraag op te vangen. Daarnaast geldt dat er langs de aan het besluitgebied gelegen doodlopende parallelweg eveneens een strook met parkeermogelijkheden gesitueerd is. Deze parkeermogelijkheden zijn ter hoogte van het besluitgebied toe te schrijven aan het planvoornemen.

Hoofdstuk 5 Uitvoerbaarheid

5.1 Economische uitvoerbaarheid

Bij de voorbereiding van een bestemmingsplan dient op grond van artikel 3.1.6 van het Besluit ruimtelijke ordening (Bro) in de plantoelichting minimaal inzicht te worden gegeven in de economische uitvoerbaarheid van het plan. Daarnaast is met de inwerkingtreding van de Wet ruimtelijke ordening voor de gemeente de verplichting ontstaan om, indien sprake is van ontwikkelingen waarvoor de gemeente redelijkerwijs kosten moet maken (bijvoorbeeld voor de aanleg van voorzieningen van openbaar nut en de plankosten) deze moeten worden verhaald op de initiatiefnemer. Een en ander dient te worden vastgelegd in privaatrechtelijke overeenkomst met iedere grondeigenaar. Als er met een grondeigenaar geen overeenkomst is gesloten en het kostenverhaal niet anderszins is verzekerd, dient een exploitatieplan te worden opgesteld welke tegelijkertijd met het bestemmingsplan moet worden vastgesteld.

Het betreft hier een private ontwikkeling waarbij het risico geheel gedragen wordt door de initiatiefnemer. Voor de gemeente Asten zelf zijn er geen kosten verbonden aan de verwezenlijking van het plan. Wel heeft de gemeente een anterieure overeenkomst met de initiatiefnemer gesloten. Hierin is ook het kostenverhaal bij eventuele planschade opgenomen worden, waarbij de kosten van eventuele planschade worden verhaald op de initiatiefnemer. Hiermee wordt gewaarborgd dat eventuele kosten niet voor rekening van de gemeente Asten komen, maar voor rekening van de initiatiefnemer.

Het opstellen van een exploitatieplan (op grond van artikel 6.12 eerste lid Wro) vaststellen is niet noodzakelijk aangezien de kosten anderszins zijn verzekerd doordat de gemeente Asten met de initiatiefnemer een anterieure overeenkomst afsluit.

5.2 Maatschappelijke uitvoerbaarheid

Het planvoornemen voorziet in de herstructurering c.q. ontwikkeling van Kloosterstraat 32 te Ommel waarbij de bestaande bebouwing in de vorm van een vrijstaande woning wordt verwijderd en vervangen door een twee-onder-een-kapwoning. Dit plan betreft de netto toevoeging van één woning aan het besluitgebied. Er vindt geen functieverandering plaats ter hoogte van het besluitgebied. Door middels het planvoornemen de rooilijn van de toekomstige twee-onder-een-kapwoning richting de Kloosterstraat te verplaatsen sluit de bebouwing beter aan bij de bebouwingscontouren van de directe ogmeving. Bij de ontwikkeling van het planvoornemen zijn belanghebbenden in een vroeg stadium betrokken middels een omgevingsdialoog, en bij het opstellen van dit plan is rekening gehouden met hun belangen. Het verslag van de omgevingsdialoog is als Bijlage 5 toegevoegd. Het planvoornemen zal daarom naar alle waarschijnlijkheid niet op zwaarwegende planologische bezwaren uit de omgeving stuiten.

Deze onderbouwing wordt conform de gebruikelijke procedure gedurende zes weken ter inzage gelegd. Gedurende deze termijn kan een ieder reageren op het planvoornemen en zijn of haar zienswijzen indienen.

Hoofdstuk 6 Procedure

6.1 De te volgen procedure

Deze ruimtelijke onderbouwing is opgesteld als onderdeel van de aanvraag omgevingsvergunning ten behoeve van het planvoornemen noodzakelijke omgevingsvergunning. De Wet algemene bepalingen omgevingsrecht (Wabo) bevat twee procedures voor het verkrijgen van een omgevingsvergunning, te weten de reguliere en de uitgebreide procedure. In het onderhavige geval, waarbij afgeweken wordt van het geldende bestemmingsplan, dient de uitgebreide procedure te worden gevolgd.

6.2 Terinzagelegging

De omgevingsvergunning wordt, inclusief deze ruimtelijke onderbouwing, conform de uitgebreide procedure, gedurende zes weken ter inzage gelegd. Gedurende deze termijn kan een ieder reageren op het ontwerpbesluit van de omgevingsvergunning en zijn of haar zienswijzen indienen.

6.3 Watertoets

De ontwikkeling heeft geen of nauwelijks invloed op de waterhuishouding. Sinds de wijziging van de keur 2015 in 2019 is middels de keur de ondergrens is los gelaten en komen alle ruimtelijke ontwikkelingen (niet zijnde functiewijzigingen) in aanmerking voor wateradvies. Dit is ook gebeurd en de reactie van het waterschap is in paragraaf 6.4 weergegeven.

6.4 Vooroverleg met diensten van Rijk en provincie

Gedurende de voorbereidende fase van deze procedure vindt zo nodig vooroverleg plaats met de diverse diensten van Rijk en provincie en met het Waterschap. Gezien de conclusies uit voorgaande hoofdstukken en realisatie binnen bestaand bebouwd gebied (passend in de ruimtelijke structuur), mag redelijkerwijs worden aangenomen dat met onderhavige ontwikkeling belangen van voornoemde vooroverlegpartners niet zullen worden geschaad.

In dat kader is door de initiatiefnemer reeds contact gezocht met het Waterschap AA & Maas. In haar reactie geeft het waterschap aan dat zij geen regels stelt aan het gebruik van uitlogend materiaal. Wel verzoekt/adviseert het waterschap om van het gebruik van uitlogende materialen af te zien om eventuele verontreiniging van het oppervlaktewater en grondwater te voorkomen. Deze reactie van het waterschap is als Bijlage 6 toegevoegd.

6.5 Verleende omgevingsvergunning

p.m.