direct naar inhoud van Toelichting
Plan: Asten Floraplein en Julianastraat 2023
Status: ontwerp
Plantype: bestemmingsplan
IMRO-idn: NL.IMRO.0743.BP02023003-OW01

Toelichting

Hoofdstuk 1 Inleiding

1.1 Aanleiding en doel

ALDI is al geruime tijd met de gemeente Asten in overleg om een toekomstbestendige locatie te vinden voor een nieuwe supermarkt. Het hedendaagse beleid van ALDI is erop gericht dat winkels moeten voldoen aan de eisen van de moderne consument: een toekomstgerichte winkel met een goed en groot winkeloppervlak voor een efficiënte winkel- en magazijnindeling, een goed georganiseerde logistiek, een centrale regionale ligging, een goede bereikbaarheid en een ruime parkeeroplossing met minder/geen overlast naar de omgeving. Daarbij wordt gestreefd wordt naar een winkelvloeroppervlak van 1.150 m².

In mei 2022 heeft ALDI een stedenbouwkundige en programmatische studie ingediend waarin plannen worden gepresenteerd met het oog op het verplaatsen van de huidige ALDI naar het Floraplein (huidige locatie Berkvens Wooncentrum) en het herontwikkelen van de huidige ALDI-locatie aan de Julianastraat naar woningbouw met de toevoeging van maximaal 42 appartementen. De gemeente heeft hier, onder bepaalde voorwaarden, principemedewerking aan gegeven. Het geheel geeft een impuls aan het Floraplein en creëert aantrekkelijke woningbouw op de achterblijvende locatie aan de Julianastraat.

Ter plaatse van de locatie Floraplein gelden de bestemmingsplannen 'Asten Centrumgebied' en (voor een zeer beperkt gedeelte) 'Woongebieden Asten'. Ter plaatse van de locatie Julianastraat gelden de bestemmingsplannen 'Asten, Julianastraat, Emmastraat 11' en 'Asten Centrumgebied'. Om de voorgenomen ontwikkeling mogelijk te maken is voorliggend bestemmingsplan opgesteld en zal een planologische procedure doorlopen moeten worden. Binnen dit bestemmingsplan maken beide locaties deel uit van het zogenoemde plangebied.

1.2 Ligging plangebied

1.2.1 Algemeen

Beide locaties die onderdeel uitmaken van het plangebied bevinden zich in het centrum van de kern Asten. De ligging van beide locaties is weergegeven in figuur 1.1.

afbeelding "i_NL.IMRO.0743.BP02023003-OW01_0001.png"

Figuur 1.1 Ligging beide locaties van het plangebied (Bron: Google Maps)

1.2.2 Locatie Floraplein

Voor de locatie Floraplein zit er een verschil in omvang in het (bestemmings)plangebied en het exploitatiegebied. Het plangebied vormt het gebied waar voorliggend bestemmingsplan voor is opgesteld, waarmee onderliggende bestemming(en) kunnen worden gewijzigd. Het exploitatiegebied is voortgekomen uit het exploitatieplan met het oog op (anterieure) afspraken tussen gemeente en initiatiefnemer/eigenaar. Het exploitatiegebied kent in dit geval een groter oppervlak dan het plangebied.

Plangebied

Deze locatie is bekend als Floraplein 2 in Asten. De kadastrale percelen die onderdeel uitmaken van het plangebied, zijn weergegeven in tabel 1.1. De ligging en begrenzing van de gronden binnen het plangebied is weergegeven in figuur 1.2.

Tabel 1.1 Specificatie locatie Floraplein - plangebied

Gemeente   Sectie   Nummer     Oppervlakte  
Asten   G   4936   gedeeltelijk   379 m2  
Asten   C   5072   geheel   1.868 m2  
Asten   C   5073   gedeeltelijk   105 m2  
Asten   C   5074   gedeeltelijk   267 m2  
         
Totaal plangebied         2.619 m2  

afbeelding "i_NL.IMRO.0743.BP02023003-OW01_0002.png"

Figuur 1.2 Locatie Floraplein - plangebied (Bron: Google Maps)

Exploitatiegebied

Het exploitatiegebied (figuur 1.3) bestaat uit het plangebied met het daar aan grenzend openbaar toegankelijk parkeerterrein van circa 1.400 m2 met een beperkt aantal aanwezige groen- en nutsvoorzieningen. De openbare ruimte (met parkeerplaatsen) is (en blijft) in bezit blijft van de gemeente Asten. De beoogde ontwikkeling heeft daarom een beperkt plangebied, maar een wat omvangrijker exploitatiegebied. De oppervlakte van het exploitatiegebied is circa (2.619 + 1.400) 4.019 m2.

afbeelding "i_NL.IMRO.0743.BP02023003-OW01_0003.png"

Figuur 1.3 Locatie Floraplein - exploitatiegebied (Bron: Google Maps)

1.2.3 Locatie Julianastraat

Voor de locatie Julianastraat staat het plangebied gelijk aan het exploitatiegebied. Deze locatie is bekend als Julianastraat met nummers 42, 44, 46, 48, 50, 52, 54, 56, 60 en 62 en Emmastraat met nummers 36, 38, 40, 42, 44 en 48 in Asten. De kadastrale percelen die tezamen deze locatie vormen, zijn weergegeven in tabel 1.4. De ligging en begrenzing van de locatie is weergegeven in figuur 1.4.

Tabel 1.3 Specificatie locatie Julianastraat

Gemeente   Sectie   Nummer     Oppervlakte  
Asten   G   4979   gedeeltelijk   590 m2  
Asten   G   4161   geheel   10 m2  
Asten   G   4160   geheel   745 m2  
Asten   G   4692   geheel   181 m2  
Asten   G   4981   geheel   111 m2  
Asten   G   4980   geheel   60 m2  
Asten   G   4982   geheel   659 m2  
Asten   G   4983   geheel   635 m2  
Asten   G   4520   geheel   217 m2  
Asten   G   4341   geheel   74 m2  
Asten   G   3122   geheel   550 m2  
Asten   G   3123   geheel   401 m2  
Asten   G   4123   geheel   211 m2  
Asten   G   4122   geheel   174 m2  
Asten   G   3787   geheel   865 m2  
         
Totaal plangebied         5.483 m2  

afbeelding "i_NL.IMRO.0743.BP02023003-OW01_0004.png"

Figuur 1.4 Locatie Julianastraat (Bron: Google Maps)

1.3 Geldende bestemmingsplannen

1.3.1 Overkoepelende bestemmingsplannen
1.3.1.1 Asten - Parapluplan Wonen 2019

Binnen het plangebied is het bestemmingsplan ‘Asten Parapluplan Wonen 2019’ geldend. Het doel van dit bestemmingsplan is de begrippen ‘wonen/woondoeleinden’, ‘woning/wooneenheid’ en ‘huishouden’ duidelijk te omschrijven en aan elkaar te koppelen. Hiermee zijn de begripsbepalingen voor het gehele gemeentelijk grondgebied op elkaar afgestemd. Inhoudelijk heeft dit bestemmingsplan geen wijzigingen tot gevolg gehad voor de (on)mogelijkheden binnen het plangebied. Dit bestemmingsplan wordt verderop in deze toelichting dan ook niet nader toegelicht. Wel zijn de genoemde begrippen in dit bestemmingsplan overgenomen.

1.3.1.2 Asten Archeologie 2012

Binnen het plangebied is tevens het bestemmingsplan ‘Asten Archeologie 20212’ vigerend.

De reden voor het in procedure brengen van dit facetplan is dat een aantal van de vigerende bestemmingsplannen geen of een onvoldoende adequaat beschermingsregime bieden voor de archeologische waarden in gebieden met zeer hoge, hoge en/of middelhoge archeologische (verwachtings)waarde. Elk vigerend plan partieel herzien leidt tot onaanvaardbaar hoge kosten. Het facetplan archeologie vult alle geldende bestemmingsplannen van de gemeente Asten aan, die niet of onvoldoende op het nieuwe archeologiebeleid van Asten zijn toegespitst. Met behulp van dit facetplan worden de regelingen die betrekking hebben op archeologie, maar die in de loop der jaren verschillend zijn geregeld, vervangen door één nieuwe en uniforme regeling voor meerdere bestemmingsplannen op het gemeentelijk grondgebied. Het bestemmingsplan Asten Archeologie 2012 vormt de juridische vertaling van het door de gemeenteraad vastgestelde archeologiebeleid.

Het plangebied is in dit bestemmingsplan bestemd met de dubbelbestemmingen ‘Waarde – Archeologie 2’ (locatie Julianastraat gedeeltelijk) en 'Waarde – Archeologie 3’ (locatie Floraplein in z'n geheel, locatie Julianastraat gedeeltelijk).

Voor de dubbelbestemming 'Waarde - Archeologie 2' geldt in de basis dat archeologisch onderzoek noodzakelijk is bij bodemingrepen groter dan 250 m2 en dieper dan 40 centimeter beneden maaiveld. Voor de dubbelbestemming 'Waarde – Archeologie 3’ geldt een onderzoeksverplichting bij bodemingrepen over een oppervlakte van meer dan 2.500 m² en dieper dan 0,4 meter beneden maaiveld.

Er wordt voor de beoogde herbestemming een archeologisch (vervolg)onderzoek uitgevoerd. Indien daaruit kan worden geconcludeerd dat met de beoogde herontwikkeling geen archeologische resten verloren gaan, kan de dubbelbestemming binnen het plangebied komen te vervallen. Op dit aspect wordt nader in gegaan in paragraaf 4.5 van voorliggend bestemmingsplan.

1.3.1.3 Overig

Naast bovengenoemde bestemmingsplannen gelden ter plaatse van het plangebied ook nog de volgende bestemmingsplannen:

  • 'Asten veegplan 2016-1';
  • 'Asten verzamelplan 2018-2' (vastgesteld 11-12-2018);
  • 'Asten Verzamelplan 2019-1' (vastgesteld 26-06-2019);
  • 'Asten Verzamelplan 2019-2' (vastgesteld 13-02-2020);
  • 'Asten Verzamelplan 2019-1' (herstelbesluit) (vastgesteld 06-07-2021).
1.3.2 Locatiespecifieke bestemmingsplannen
1.3.2.1 Locatie Floraplein

Ter plaatse van de locatie Floraplein gelden een tweetal bestemmingsplannen:

  • 'Asten Centrumgebied' (onherroepelijk en vastgesteld op 2 juli 2014);
  • 'Woongebieden Asten' (onherroepelijk en vastgesteld op 15 december 2009).

Een uitsnede van de planverbeelding is weergegeven in figuur 1.5. Van toepassing op het plangebied zijn de enkelbestemmingen 'Centrum - 2' en 'Verkeer' op basis van het bestemmingsplan 'Asten Centrumgebied' en 'Verkeer' op basis van het bestemmingsplan 'Woongebieden Asten'. Het gedeelte dat binnen het bestemmingsplan 'Woongebieden Asten' ligt is slechts zeer beperkt in omvang. Ook binnen het exploitatiegebied zijn deze bovengenoemde bestemmingen van toepassing. Het openbaar toegankelijk parkeerterrein met groen- en nutsvoorzieningen voor het wooncentrum kent enkel de bestemming 'Verkeer' op basis van het bestemmingsplan 'Asten Centrumgebied'.

afbeelding "i_NL.IMRO.0743.BP02023003-OW01_0005.png"

Figuur 1.5 Uitsnede geldende bestemmingsplannen met aanduiding locatie Floraplein (Bron: Ruimtelijkeplannen)

Ter plaatse van de enkelbestemming 'Centrum - 2' zijn op de verbeelding aanvullend een bouwvlak, de functieaanduiding 'detailhandel volumineus', de maatvoeringsaanduiding 'maximum bebouwingspercentage terrein: 100 %' van toepassing. Tevens gelden gedeeltelijk (figuur 1.6) de volgende maatvoeringsaanduidingen:

  • maximum bouwhoogte: 10 m
  • maximum goothoogte: 10 m
  • maximum aantal bouwlagen: 3

afbeelding "i_NL.IMRO.0743.BP02023003-OW01_0006.png"

Figuur 1.6 Specifiek geldende maatvoeringsaanduidingen (Bron: Ruimtelijkeplannen)

Voor het overige gebied binnen de bestemming 'Centrum - 2' (het gedeelte buiten de in bovenstaande figuur aangeduide gebied) geldt conform de bouwregels in artikel 5.2.2 onder g en i dat het aantal bouwlagen van hoofdgebouwen hier niet meer mag bedragen dan twee en dat de bouwhoogte van hoofdgebouwen niet meer mag bedragen dan 12 meter.

De realisatie van een nieuwe supermarkt strookt niet met de bestemmingsomschrijvingen en is daarmee strijdig met het geldend bestemmingsplan. Ingrepen in de openbare ruimte (buiten de grenzen van het plangebied maar binnen het exploitatiegebied) behoren ook tot de integrale ontwikkeling, maar aangezien deze beoogde ingrepen passen binnen de bestaande verkeersbestemming maken deze gronden geen deel uit van voorliggend bestemmingsplan waarin de bestaande bestemmingen uit 'Asten Centrumgebied' en 'Woongebieden Asten' worden herzien. In de (anterieure) overeenkomst worden daarentegen zowel afspraken vastgelegd over het plan- als het exploitatiegebied.

1.3.2.2 Locatie Julianastraat

Voor de locatie Julianastraat zijn een tweetal bestemmingsplannen van toepassing:

  • 'Asten Julianastraat, Emmastraat 11', onherroepelijk en vastgesteld op 25 juni 2012;
  • 'Asten Centrumgebied', onherroepelijk en vastgesteld op 2 juli 2014.

Een uitsnede van de planverbeelding is weergegeven in figuur 1.7. Van toepassing op het plangebied zijn de enkelbestemmingen 'Gemengd', 'Verkeer' en 'Wonen'.

afbeelding "i_NL.IMRO.0743.BP02023003-OW01_0007.png"

Figuur 1.7 Uitsnede geldende bestemmingsplannen 'Asten Julianastraat, Emmastraat 11' en 'Asten Centrumgebied' met aanduiding locatie Julianastraat (Bron: Ruimtelijkeplannen)

Ten aanzien van de bestemmingen 'Gemengd' en 'Wonen' is gedeeltelijk een bouwvlak van toepassing. Deze bouwvlakken zijn weergegeven in de figuren 1.8 en 1.9. Binnen de bestemming 'Gemengd' binnen het bestemmingsplan 'Asten Julianastraat, Emmastraat 11' gelden tevens gedeeltelijk diverse functieaanduidingen, maatvoeringsaanduidingen ten aanzien van maximale bouw- en goothoogtes en maatvoeringsaanduidingen ten aanzien van het maximaal aantal wooneenheden. De maatvoeringen ten aanzien van de maximale bouw- en goothoogtes en het maximaal aantal wooneenheden zijn via aantallen in cirkels (bouw- en goothoogtes) en vierkantjes (aantal wooneenheden) weergegeven in figuur 1.10.

De functieaanduidingen die (al dan niet overlappend) van toepassing zijn, zijn hierna opgesomd:

  • detailhandel;
  • specifieke vorm van gemengd - zorgplaatsen;
  • horeca.

In de regels van het bestemmingsplan zijn onder 3.1 deze functies nader geduid. Ten aanzien van detailhandel geldt dat dit uitsluitend op de begane grond ter plaatse van de aanduiding op de verbeelding toegestaan is. Het maximaal bedrijfsvloeroppervlak is vastgelegd op 1.452 m2. Bijzondere woonvormen voor mensen afhankelijk van zorg zijn uitsluitend op de verdieping ter plaatse van de aanduiding 'specifieke vorm van gemengd - zorgplaatsen' toegestaan. Voor horeca geldt de specificatie dat dit in de vorm van een café uitsluitend op de begane grond ter plaatse van de aanduiding op de verbeelding toegestaan is. Het maximaal vloeroppervlak is vastgelegd op 440 m2.

Aanvullend wordt in de bestemmingsomschrijving (artikel 3.1) algemeen gesteld dat de aangewezen gronden binnen de bestemming bestemd zijn voor:

  • wonen, uitsluitend op de verdieping;
  • kantoor zonder baliefunctie, zowel op de begane grond als de verdiepingen;
  • maatschappelijk (het uitoefenen van activiteiten gericht op de sociale, maatschappelijke, educatieve, medische en openbare dienstverlening), zowel op de begane grond als op de verdiepingen;

met de daarbij behorende:

  • wegen en paden;
  • groenvoorzieningen;
  • parkeervoorzieningen;
  • voorzieningen van algemeen nut;
  • waterhuishoudkundige voorzieningen, waterlopen en waterpartijen, alsmede (ondergrondse) waterberging- en infiltratievoorzieningen.

afbeelding "i_NL.IMRO.0743.BP02023003-OW01_0008.png"

Figuur 1.8 Bouwvlak binnen de bestemming 'Gemengd' binnen het bestemmingsplan 'Asten Julianastraat, Emmastraat 11' (Bron: Ruimtelijkeplannen)

afbeelding "i_NL.IMRO.0743.BP02023003-OW01_0009.png"

Figuur 1.9 Bouwvlak binnen de bestemming 'Wonen' binnen het bestemmingsplan 'Asten Centrumgebied' (Bron: Ruimtelijkeplannen)

afbeelding "i_NL.IMRO.0743.BP02023003-OW01_0010.png"

Figuur 1.10 Maatvoeringsaanduidingen ten aanzien van maximale bouw- en goothoogtes en aantal wooneenheden binnen het bestemmingsplan 'Asten Julianastraat, Emmastraat 11' (Bron: Ruimtelijkeplannen)

Het beoogde woningbouwinitiatief aan de Julianastraat is in strijd met de geldende gebruiks- en bouwregels.

1.4 Planproces

Voorliggend bestemmingsplan doorloopt de procedure zoals bedoeld in de Wet ruimtelijke ordening (Wro). Het concept-ontwerpbestemmingsplan is ex art. 3.1.1 Besluit ruimtelijke ordening (Bro) voor advies voorgelegd aan vooroverlegpartners. Binnengekomen reacties uit het wettelijk vooroverleg zijn verwerkt in het ontwerpbestemmingsplan.

De Raad van de gemeente Asten heeft op 26 september 2023 besloten om de gemeentelijke coördinatieregeling als bedoeld in paragraaf 3.6.1 van de Wet ruimtelijke ordening van toepassing te verklaren op de voorbereiding en bekendmaking van de voor de realisatie van een nieuwe vestiging van een Aldi supermarkt (met ondersteunende voorzieningen) op de locatie Floraplein 2 benodigde besluiten. Ook besloot de Raad om de coördinatie toe te passen op de vaststelling van het bestemmingsplan dat (onder meer) betrekking heeft op de locatie Floraplein 2, de aanvraag omgevingsvergunning als bedoeld in de Wet algemene bepalingen omgevingsrecht voor de locatie Floraplein 2 en eventueel overige voor het project benodigde besluiten en vergunningen die betrekking hebben op de locatie Floraplein 2. Het ontwerpbestemmingsplan zal conform dit besluit ter inzage worden gelegd gelijktijdig met de aanvraag omgevingsvergunning voor het bouwen voor de locatie Floraplein 2.

Tijdens de tervisielegging van het ontwerpbestemmingsplan kan eenieder schriftelijk of mondeling een zienswijze kenbaar maken. De ingediende zienswijzen worden afgewogen in het vast te stellen bestemmingsplan.

Het vastgestelde bestemmingsplan wordt ter inzage gelegd. Gedurende deze terinzagelegging kan beroep worden ingesteld bij de Afdeling bestuursrechtspraak van de Raad van State.

1.5 Leeswijzer

Hoofdstuk 2 geeft een beschrijving van de huidige situatie in en rond het plangebied en geeft beschrijft de beoogde ontwikkeling. In hoofdstuk 3 wordt de beoogde ontwikkeling getoetst aan de beleidskaders van het Rijk, de provincie Noord-Brabant en de gemeente Asten. Hoofdstuk 4 omvat de toets aan de sectorale milieu- en omgevingsaspecten. In hoofdstuk 5 komt de juridische planbeschrijving aan de orde. In hoofdstuk 6 wordt nader ingegaan op de uitvoerbaarheid van het bestemmingsplan en de procedure.

Hoofdstuk 2 Planvoornemen

2.1 Huidige situatie

Het plangebied bevat de locaties Floraplein en Julianastraat, welke beide zijn gelegen in het centrum van de bebouwde kom van Asten. Hierna wordt per locatie ingegaan op de belangrijkste ruimtelijke en functionele structuur.

2.1.1 Locatie Floraplein
2.1.1.1 Stedenbouwkundige structuur

De locatie Floraplein is gelegen ten oosten van het Burgemeester Ploegmakerspark, tussen het Floraplein, Klaproosstraat, de rotonde Floraplein en de Floralaan. De locatie bevindt zich op circa 300 meter van de kruising Emmastraat - Burgemeester Frenckenstraat - Tuinstraat, waar het concentratie winkelgebied (het centrum) begint. Binnen de grenzen van het plangebied zoals beschreven in paragraaf 1.2.2 is momenteel Berkvens Wooncentrum gevestigd. Het wooncentrum is een totaalaanbieder op het gebied van meubels, slapen en woningstoffering. Naast winkelverkoop kent het wooncentrum ook een eigen bezorg-, service- en montagedienst. Het pand kent een speelse en wisselende hoogteopbouw met platdakafwerking. De maximale bouwhoogte is circa 11,5 meter.

2.1.1.2 Functionele structuur

Ter plaatse is dus detailhandel aanwezig in de vorm van een wooncentrum. Het wooncentrum heeft een wvo van in totaal 2.950 m² (1.350 m² wvo op de begane grond en 1.600 m² op de eerste verdieping).

Aan de voorzijde van dit wooncentrum bevindt zich het bijbehorend parkeerterrein (68 parkeerplaatsen en een fietsenstalling ten behoeve van de aanwezige bushalte) en omliggende nuts- en groenvoorzieningen, welke (gedeeltelijk) onderdeel uitmaken van het exploitatiegebied. Een afbeelding en overzichtstekening van de bestaande situatie zijn weergegeven in figuren 2.1 en 2.2.

afbeelding "i_NL.IMRO.0743.BP02023003-OW01_0011.png"

Figuur 2.1 Locatie Floraplein

afbeelding "i_NL.IMRO.0743.BP02023003-OW01_0012.png"

Figuur 2.2 Overzichtstekening bestaande situatie voorzijde wooncentrum (Bron: Movares)

Aan het Floraplein en de Logtenstraat bevinden zich diverse horecafuncties, een buurtsupermarkt, een kledingzaak en een kantoorfunctie, weergegeven in figuur 2.3. Deze functies bevinden zich voornamelijk in de plint van drielaagse bebouwing met platdakafwerking. De eerste en de tweede verdieping van deze bebouwing kennen veelal een woonfunctie.

Aan de Tuinstraat, ten zuidwesten van de locatie bevindt zich een tankstation. Ten (noord)oosten van de locatie is een brandweerkazerne gesitueerd. Aan de Floralaan en de Lienderweg bevinden zich enkele medische functies en zijn zowel binnen- als buitensportvoorzieningen aanwezig.

afbeelding "i_NL.IMRO.0743.BP02023003-OW01_0013.png"

Figuur 2.3 Diverse functies aan het Floraplein en de Logtenstraat, direct naast het plangebied

2.1.2 Locatie Julianastraat
2.1.2.1 Stedenbouwkundige structuur

De locatie Julianastraat is gelegen ten zuidoosten van het concentratie winkelgebied. De bestaande bebouwing aan de Julianastraat is veelal opgetrokken uit bakstenen panden met veelal twee of drie bouwlagen en een kap. Afwisselend komt ook lagere bebouwing voor. Aan de Emmastraat worden de bestaande woningen veelal gekenmerkt door eenlaagse bebouwing en een kap. Direct ten westen van het plangebied, aan 1e Sint Jozefstraat, bevindt zich appartementencomplex 'De Coster'. Dit appartementencomplex is opgebouwd uit drie bouwlagen met platdakafwerking. De woningen aan het Zagershof, ten zuiden van het plangebied, kennen een meer moderne samenhangende typologie. De maximale bouwhoogte van deze woningen ligt op circa 11,5 meter.

2.1.2.2 Functionele structuur

Binnen de locatie bevinden zich diverse functies, weergegeven in tabel 2.1. De situatietekening is weergegeven in figuur 2.4. In figuur 2.5 zijn de oppervlaktes van de feitelijk aanwezige detailhandels- en dienstverlenende zaken in beeld gebracht.

Tabel 2.1 Functies binnen plangebied locatie Julianastraat

Wonen - sociale huur   9 woningen  
Wonen - zorg   10 kamers  
Wonen - goedkoop   12 woningen  
Wonen - vrijstaand   1 woning  
Café   440 m2  
Detailhandel   1.452 m2  
Dienstverlening   210 m2  
Verkeer en parkeren (buitenruimte)   circa 2.570 m2  

afbeelding "i_NL.IMRO.0743.BP02023003-OW01_0014.png"

Figuur 2.4 Situatietekening bestaande situatie (Bron: Satijnplus Architecten)

afbeelding "i_NL.IMRO.0743.BP02023003-OW01_0015.png"

Figuur 2.5 Oppervlaktes van de feitelijk aanwezige detailhandels- en dienstverlenende zaken (Bron: KAW)

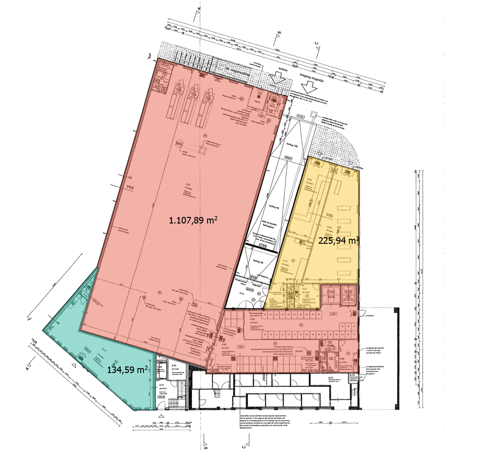
De huidige ALDI kent een oppervlak van afgerond 1.108 m2 bvo van de totaal 1.452 m2 die volgens het geldend bestemmingsplan aan detailhandelsoppervlak is toegestaan. De overige detailhandelsmeters worden momenteel bezet door andere detailhandelszaken (Yaman Supermarkt, Letters&Zo en Faro viszaak). Het parkeerterrein op de locatie voorziet in 64 parkeerplaatsen.

Een aantal afbeeldingen van de huidige situatie zijn weergegeven in de figuren 2.6 t/m 2.10.

afbeelding "i_NL.IMRO.0743.BP02023003-OW01_0016.png"

Figuur 2.6 Zicht op plangebied vanaf Julianastraat

afbeelding "i_NL.IMRO.0743.BP02023003-OW01_0017.png"

Figuur 2.7 Zicht op plangebied vanaf kruising Emmastraat - Julianastraat

afbeelding "i_NL.IMRO.0743.BP02023003-OW01_0018.png"

Figuur 2.8 Bestaande onderdoorgang richting zuidelijk parkeerterrein

afbeelding "i_NL.IMRO.0743.BP02023003-OW01_0019.png"

Figuur 2.9 Parkeerterrein aan de achterzijde van de Julianastraat en Emmastraat, zicht op het noorden

afbeelding "i_NL.IMRO.0743.BP02023003-OW01_0020.png"

Figuur 2.10 Parkeerterrein aan de achterzijde van de Julianastraat en Emmastraat, zicht op het zuidoosten

Ook de omgeving kent nadrukkelijk een gemengd karakter. De omgeving van het plangebied ziet er als volgt uit:

  • Ten westen: woningen, verzorgingstehuis en een dienstpraktijk (Julianastraat, 1e Sint Jozefstraat en Deken Meijerstraat);
  • Ten noorden: woningen, detailhandel, horeca en bedrijf (Emmastraat);
  • Ten oosten: woningen, detailhandel en dienstverlening (Emmastraat);
  • Ten zuiden: woningen (Zagershof).

2.2 Toekomstige situatie

2.2.1 Algemeen
2.2.1.1 Principemedewerking

In mei 2022 heeft ALDI een stedenbouwkundige en programmatische studie ingediend waarin plannen worden gepresenteerd met het oog op het verplaatsen van de huidige ALDI naar het Floraplein (huidige locatie Berkvens Wooncentrum) en het herontwikkelen van de huidige ALDI-locatie aan de Julianastraat naar woningbouw. Het geheel geeft een impuls aan het Floraplein en creëert aantrekkelijke woningbouw op de achterblijvende locatie aan de Julianastraat. De gemeente heeft hier, onder bepaalde voorwaarden, principemedewerking aan gegeven.

2.2.1.2 Versterking voorzieningenniveau

Consumenten uit de gehele gemeente Asten hebben momenteel de beschikking over een

harddiscount-supermarkt aan de Julianastraat. De naar binnen gekeerde winkellocatie is niet toekomstbestendig voor ALDI door de beperkte omvang, capaciteit, bereikbaarheid en situering van het vastgoed. Dit gaat ten koste van het imago en de exploitatie van de supermarkt op die locatie. Met de voorgenomen nieuwe vestiging van een eigentijdse, groene en goed bereikbare ALDI supermarkt aan het Floraplein in Asten, krijgen consumenten in hun directe woonomgeving een toekomstbestendige harddiscounter. Wat resulteert in een breder aanbod van dagelijkse voorzieningen alsmede een grotere toekomstbestendigheid van het voorzieningenniveau in Asten en daarmee het gebied, hetgeen onderbouwd is in de ruimtelijk-functionele quickscan zoals opgenomen als bijlage 1. Gecombineerd met de relocatie van ALDI wordt op de huidige locatie woningbouw voorzien voor een doelgroep die in de gemeente Asten een grote woningbehoefte kent. Hiermee wordt op twee locaties een impuls gegeven aan het voorzieningenniveau ten aanzien van woningen en het aanbod van dagelijkse voorzieningen.

2.2.1.3 Over ALDI

ALDI heeft 20.000 consumenten in het verzorgingsgebied nodig om een rendabele winkel te exploiteren. Daarom dient de locatie goed bereikbaar en ontsloten te zijn.

ALDI behoort met haar assortiment van ‘slechts’ 1.200 consumentenproducten en laag prijsniveau tot de enige harddiscount-supermarktketen in Nederland. Gezien haar aantrekkingskracht voor een brede doelgroep uit een breed marktgebied, het alternatieve assortiment en het lage prijsniveau, ervaren winkeliers ALDI als welkome aanvulling ter versterking van het bestaande winkelaanbod. Veelal bezoeken consumenten eens per week of per twee weken een ALDI-filiaal (veelal ‘bulk’-aankopen), dit in tegenstelling tot een fullservice-supermarkt waaraan een consument vaak meerdere keren per week een bezoek brengt. Voldoende en comfortabele parkeerplaatsen zijn daarmee een belangrijke voorwaarde voor ALDI om te komen tot een succesvolle winkelexploitatie. Nieuwe of te herontwikkelen vestigingspunten hebben een moderne architectuur met ruime aandacht voor duurzaamheid. Met betrekking tot werkgelegenheid levert een nieuw vestigingspunt enkele tientallen nieuwe arbeidsplaatsen op. Tevens zijn nieuwe vestigingen voorzien van de nieuwste formule ANIKo 2.0 waarin het versassortiment centraal staat.

2.2.1.4 Vloeroppervlaktes detailhandel

Het planvoornemen voorziet in het verplaatsen van een bestaande supermarkt naar een locatie waar momenteel al detailhandel plaatsvindt. Per saldo voorziet dit bestemmingsplan in een afname van het aantal vierkante meters detailhandel. Hierna wordt dat nader toegelicht.

Op de locatie aan de Julianastraat is in de bestaande planologische situatie detailhandel met een bvo van 1.452 m² toegestaan. Met voorliggend bestemmingsplan zal het planologisch toegestane aantal vierkante meters detailhandel op deze locatie afnemen tot 315 m² bvo, zie ook artikel 4.1 onder d. van de regels.

Op de locatie aan het Floraplein is momenteel een wooncentrum aanwezig bestaande uit 2.950 m² wvo detailhandel, verspreid over 2 verdiepingen (zie ook paragraaf 2.1.1.2). Dit wooncentrum zal komen te vervallen en hiervoor in de plaats komt de nieuwe supermarkt met een wvo van 1.150 m².

2.2.2 Locatie Floraplein
2.2.2.1 Stedenbouwkundige structuur

Bij de ontwikkeling op locatie Floraplein staan groen, duurzaamheid, veiligheid en een integrale ontwikkeling van het plein centraal. In het geheel wordt een verbinding gelegd met de huidige functies aan het Floraplein en er wordt een verbinding gelegd naar het Burgemeester Ploegmakerspark en daarmee naar het centrum. Het nieuwe Floraplein wordt daarmee een verlenging van het park en een schakel tussen park en woonbuurt. Een nadere ontwerptoelichting is opgenomen als bijlage 2.

Het gebouwconcept bestaat uit gestapelde ronde plantenbakken met diverse soorten beplanting als struiken, grassoorten, bloemen en kleine bomen. Daar waar er ruimte onder en tussen de plantenbakken zit zijn openingen voor de entree, ramen voor licht en zicht, de toerit voor parkeren en de inrit voor het laad- en losdock. De verschillende plantenbakken bepalen ook de wisselende gebouwhoogte en diepte. Hierdoor ontstaat er een levendig en plastisch gevelbeeld. Bij de hoofdentree is de bak het hoogst opgetild, om zo de hoofdentree te markeren. De contouren van de bebouwing volgen grotendeels de contouren van de bestaande te slopen bebouwing. Ter plaatste van de aansluitende bebouwing ligt het gebouw nagenoeg in dezelfde bebouwingslijn. De plantenbakken worden bekleed met een gesloten houten gevelbekleding, uitgevoerd in latten wat een extra dieptewerking geeft en de rondingen van de bakken extra accentueert. De kleurstelling van de naturel houten gevel is warm grijsbruin.

De logistiek van het gebouw is mede vanuit veiligheid en het voorkomen van geluidsoverlast opgezet. In de huidige situatie gebeurt het laden en lossen in de woonbuurt aan de Klaproosstraat. In de nieuwe situatie vindt dit plaats in een gesloten laad- en losdock aan de Floralaan. Om deze te bereiken hoeft de vrachtwagen het parkeerterrein niet op, maar vindt ontsluiting plaats aan de Floralaan. Om dit mogelijk te maken komt de bestaande bushalte op deze locatie te vervallen.

Het parkeerterrein voor de ALDI heeft een duidelijke in- en uitrit, op een positie waar deze nu ook ligt. De toerit tot het parkeerdek ligt op een veilige en overzichtelijke positie. Het Floraplein moet worden ingericht als plein, waarbij er een minimaal verschil is tussen rijbaan, parkeervak en stoepen. Hierdoor werkt het plein meer als een visuele eenheid, wat de verkeersveiligheid ten goede komt. Ook is rekening gehouden met het mogelijk maken van fietsnietjes ten behoeve van fietsparkeren. De situatietekening ten aanzien van de stedenbouwkundige inpassing is weergegeven in figuur 2.9. Figuur 2.10 toont een drietal dwarsdoorsnedes, welke tevens zijn opgenomen als bijlage 3.

Bijbehorende planregels zijn opgenomen in artikel 3 van dit bestemmingsplan. Wat betreft de bouwregels is geregeld dat in de toekomstige situatie de maximale bouwhoogte aan de achterzijde (noordoostzijde) 2 meter lager is dan nu planologisch het geval is.

afbeelding "i_NL.IMRO.0743.BP02023003-OW01_0021.png"

Figuur 2.9 Situatietekening stedenbouwkundige inpassing (Bron: KAW)

afbeelding "i_NL.IMRO.0743.BP02023003-OW01_0022.png"

Figuur 2.10 Dwarsdoorsnedes beoogde ontwikkeling (Bron: KAW)

Het uitgangspunt is dat bestaande bomen zoveel als mogelijk worden behouden. In de plantenbakken komen diverse struiken, kleine bomen en grassoorten welke een positieve bijdrage leveren aan de biodiversiteit en klimaatadaptatie.

2.2.2.2 Functionele structuur

De planopzet, gelegen aan de entree van Asten gaat uit van een nieuwe supermarkt op de huidige locatie van Berkvens Wooncentrum, van maximaal 1.150 m² winkelvloeroppervlakte met 62 parkeervakken op maaiveld en 42 parkeervakken op een parkeerdek. Het bruto vloeroppervlak van de nieuwe winkel bedraagt (exclusief inpandige hellingbaan en laad- en loszone) 1.583 m². Figuur 2.11 geeft de situatietekening van de beoogde functionele situatie.

afbeelding "i_NL.IMRO.0743.BP02023003-OW01_0023.png"

Figuur 2.11 Situatietekening beoogde functionele situatie Floraplein (Bron: KAW)

2.2.3 Locatie Julianastraat
2.2.3.1 Algemeen

De herontwikkeling van de ALDI locatie aan de Julianastraat biedt de kans om zowel programmatisch als ruimtelijk een kwalitatieve impuls aan het terrein te geven. Binnen de gemeente Asten is een grote vraag naar betaalbaar en gelijkvloers wonen. Op dit moment is het aanbod zeer beperkt.

2.2.3.2 Stedenbouwkundige structuur

Voor deze locatie wordt de mogelijkheid gezien om woningen voor kleine huishoudens en woningen die geschikt zijn voor meerdere generaties toe te voegen. De beoogde 42 appartementen zijn ingepast in verschillende varianten met een differentiatie in bouwhoogte, waarbij rekening is gehouden met de stedenbouwkundige inpasbaarheid in de omgeving. De maximale bouwhoogtes zijn opgenomen en juridisch verankerd op de planverbeelding en in de regels van dit bestemmingsplan. Daarbij dient opgemerkt te worden dat voor de bestaande en de te handhaven bebouwing aan de Julianastraat en Emmastraat zoveel als mogelijk wordt aangesloten bij de bestaande gebruiks- en bouwregels uit het geldend bestemmingsplan. Dit maakt dat hier de geldende maximale toegestane goot- en bouwhoogtes zoals weergegeven en beschreven in paragraaf 1.3.2.2 in de toekomstige situatie nog steeds van toepassing zijn.

In totaal kunnen er voldoende parkeervakken binnen het plangebied worden gerealiseerd. De appartementen en patiowoningen, gelegen aan een pocketpark, liggen aan een beschut woonhof met een goede bereikbaarheid.

De ontwikkeling bestaat uit de invulling van drie bouwblokken, weergegeven in de figuren 2.12 t/m 2.14. Door het invoegen van een haakvormige bebouwing aan het binnenterrein wordt een besloten hofje gecreëerd. Dit hofje heeft een andere belevingswereld als de buitenrand van de bebouwing, het lint. Het besloten hofje kan worden bereikt via de bestaande onderdoorgang aan de Julianastraat en de nieuw te realiseren onderdoorgang aan de Emmastraat.

afbeelding "i_NL.IMRO.0743.BP02023003-OW01_0024.png"

Figuur 2.12 Situatietekening beoogde situatie Floraplein (Bron: KAW)

afbeelding "i_NL.IMRO.0743.BP02023003-OW01_0025.png"

Figuur 2.13 3D-impressie gezien vanaf zuidoosten (Bron: KAW)

afbeelding "i_NL.IMRO.0743.BP02023003-OW01_0026.png"

Figuur 2.14 3D-impressie gezien vanaf westzijde (Bron: KAW)

De bebouwing is als volgt opgezet:

  • Gebouw 1: lintbebouwing aan de Emmastraat;
  • Gebouw 2: hofbebouwing aan het binnenhof;
  • Gebouw 3: hofbebouwing tegen het bestaande pand aan de Julianastraat.

Hierna wordt per gebouw ingegaan op de belangrijkste kenmerken. Tevens is voor deze locatie een beeldkwaliteitsplan opgesteld, opgenomen als bijlage 1 bij de regels van voorliggend bestemmingsplan. In het beeldkwaliteitsplan wordt per gebouw omschreven welke uitgangspunten en eisen er zijn in relatie tot onder andere bouwmassa, materiaalgebruik, etc. Ook wordt ingegaan op de wijze hoe groen op verschillende plekken wordt geïntegreerd en zijn referentiebeelden toegevoegd.

Gebouw 1

Gebouwmassa

De bebouwing aan het lint sluit qua massa aan bij het naastgelegen appartementengebouw (Emmastraat 36-38) en bestaat uit 4 woonlagen waarvan de bovenste 2 onder een kap zijn gelegen met dakkapellen. In de knik van de straat is het gebouw 3 lagen hoog waarbij de bovenste laag onder een kap is gelegen met dakkapellen aan de straatkant. Bij beide bouwdelen is de goot gelegen op de maximale hoogte van de 2e bouwlaag. De onderdoorgang moet qua maat en schaal bij de bebouwing passen.

De bebouwing aan de Emmastraat is vormgegeven met een mansarde kap of een zadeldak, parallel aan de straat. Het is wenselijk de woning op de hoek ter plaatse van de onderdoorgang met een gedraaide kap vorm te geven om een goede overgang te krijgen tussen de bestaande woningen en de nieuwbouw. Bij het toepassen van een mansarde is de maximale hellingshoek van het onderste deel circa 75 graden. In de kap zijn dakkapellen en dakramen toegestaan, mits deze duidelijk in het dakvlak zijn gelegen en ondergeschikt zijn aan de totale kap. De dakkapellen aan de Emmastraat zijn allemaal gelegen op de 3e woonlaag. Aan de zijde van het binnenhof zijn dakkapellen op de 4e bouwlaag toegestaan. Op de begane grond is het mogelijk en wenselijk om woningen te ontsluiten aan de zijde van de Emmastraat.

Uitstraling

De uitstraling van deze bebouwing moet aansluiten op de aanwezige beeldkenmerken en korrelgrootte aan het lint. Voor de lange bebouwing aan de Emmastraat betekent dat de gevel altijd is opgedeeld in minimaal 2 delen die duidelijk verschillend zijn vormgegeven door onder andere afwijkende materialisering, detaillering, kleurstelling, kaprichting of geveldiepte. De gevels zijn verticaal geleed. De galerijzijde van het complex heeft een besloten karakter door doorlopende kolommen, maar biedt wel de mogelijkheid om de buitenruimtes te situeren door de galerij plaatselijk te verbreden.

Groen

Voor de bebouwing is ruimte voor een groene invulling. Aan de achterkant is er ruimte voor een invulling met diverse beplantingen als lage struiken, kleine bomen en diverse grassoorten.

Gebouw 2

Gebouwmassa

De bebouwing past qua maat en schaal binnen het bestaande bouwblok en is in 2 en 3 lagen in de lengte getrapt vormgegeven. De woningen worden voorzien van een duidelijke kap (mansarde of schilddak). Door het toepassen van deze dakvormen in combinatie met een lage gootlijn wordt het gevelbeeld visueel gedrukt. De gootlijn is gelegen op de maximale hoogte van respectievelijk de 1e of de 2e bouwlaag. Bij het toepassen van een mansardekap hoeft geen sprake te zijn van een dakhelling voor het dakdeel in de 2e dan wel de 3e bouwlaag (dakhelling gelijk met de gevel).

Uitstraling

Het gebouw heeft een dorpse uitstraling met een beeld passend bij hofwoningen. De uitstraling van de bebouwing is fris. Dit wordt bereikt door een licht kleurpallet van de gevels. Deze worden gemaakt in metselwerk in een lichte tint (bijvoorbeeld lichte steen of kijmen) met dakpannen in een donkere bruingrijze kleur. De galerijgevel is gelegen aan de noordzijde van het gebouw. De galerijgevel wordt uitgevoerd als een zichtgevel, dat wil zeggen een metselwerk gevel met openingen daarin. De openingen zijn verdiepingshoog met een hekwerk en tellen een ritme van raamkozijnen voor. De tuingevel is gelegen aan de westzijde van het gebouw.

Groen

Aan de kant van het parkeerterrein is ter plaatse van de gebouwgevel ruimte voor 2 bomen. Ter plaatse van het tussenpad bij de bergingen zullen bij de erfafscheiding groenblijvende lijbomen geplaatst worden. Er moet een instandhoudingsplicht worden afgesloten voor deze 2 bomen en rij lijbomen voor minimaal 10 jaar. Aan de voorkant van het gebouw is ruimte voor divers groen in de vorm van bomen, struiken en diverse gras- en plantsoorten. De buitenruimte van de begane grond woningen wordt afgeschermd door een lage haag. De erfafscheiding naar het bestaande parkeerterrein dient ook blijvend vergroend uitgevoerd te worden met lage, middelhoge en hoge begroeiing.

Gebouw 3

Gebouwmassa

De bebouwing is uitgevoerd met een platdak– eventueel afgedekt met een groendak.

Uitstraling

Het gebouw sluit qua karakter (kleur en materiaalgebruik) aan bij tuingevel van gebouw 2.

Groen

Aan de voorkant van het gebouw is ruimte voor divers groen in de vorm van bomen, struiken en diverse gras- en plantsoorten. Bij de bestaande bebouwing aan de Julianastraat wordt op diverse plekken gevelgroen aangebracht.

2.2.3.3 Functionele structuur

Binnen de locatie bevinden zich in de nieuwe situatie de volgende functies:

  • detailhandel die door middel van de functieaanduiding 'detailhandel', een maximum bvo van 315 m² heeft en alleen op de begane grond is toegestaan;
  • bestaand wonen op de verdiepingen;
  • bestaande zorgplaatsen op de verdiepingen;
  • 42 nieuwe woningen;
  • voldoende parkeerplaatsen (zie ook paragraaf 4.3);
  • 2 ontsluitingsmogelijkheden via 1 onderdoorgang aan de Julianastraat en 1 onderdoorgang aan de Emmastraat;
  • groen- en waterhuishoudkundige voorzieningen.

Hoofdstuk 3 Beleidskader

3.1 Inleiding

Door de verschillende overheden is beleid geformuleerd ten aanzien van ruimtelijke ontwikkelingen. Paragraaf 3.2 behandelt het rijksbeleid. Het provinciaal beleid is opgenomen in paragraaf 3.3. Tot slot wordt in paragraaf 3.4 de beoogde ontwikkeling getoetst aan het gemeentelijk beleid.

3.2 Rijksbeleid

3.2.1 Nationale Omgevingsvisie (2020)
3.2.1.1 Normstelling en beleid

De Nationale Omgevingsvisie, kortweg NOVI, loopt vooruit op de inwerkingtreding van de Omgevingswet en vervangt op rijksniveau de Structuurvisie Infrastructuur en Ruimte. Uitgangspunt in de nieuwe aanpak is dat ingrepen in de leefomgeving niet los van elkaar plaatsvinden, maar in samenhang. Zo kunnen in gebieden betere, meer geïntegreerde keuzes worden gemaakt. Aan de hand van een toekomstperspectief op 2050 brengt de NOVI de langetermijnvisie van het Rijk in beeld.

In wat voor Nederland willen we graag leven in 2050?

Als we alle wensen naast elkaar leggen, ontstaat het volgende beeld. We willen een land:

  • dat gezond en klimaatbestendig is, met schone lucht, schoon water en een schone bodem en veel ruimte voor groen en water;
  • met een uitstekend functionerende economie, die duurzaam en circulair is. Nauw verbonden met onze buurlanden en de rest van de wereld, als onderdeel van de internationale gemeenschap;
  • waar het goed wonen en werken is. Met aangename en vitale steden en dorpen, en een productief en aantrekkelijk platteland;
  • met uitstekende bereikbaarheid, waar iedereen snel en gemakkelijk van A naar B komt, met zo min mogelijk schadelijke uitstoot en overlast;
  • waar we voldoende ruimte hebben om te kunnen bewegen, ontspannen en tot onszelf te komen; zowel in de stad als daarbuiten.
  • dat veilig is en ons beschermt tegen overstromingen en andere gevaren;
  • waar een goede balans is tussen gebouwde omgeving en open landschap, tussen natuur en cultuur, tussen land en water;
  • dat openstaat voor verandering, en waar de kracht van zijn traditie, cultuur en identiteit wordt weerspiegeld in de inrichting van de leefomgeving.

Nationale belangen

Gemeenten, waterschappen, provincies en het Rijk zijn samen verantwoordelijk voor de fysieke leefomgeving. Sommige belangen en opgaven overstijgen het lokale, regionale en provinciale niveau en vragen om nationale aandacht. Dit noemen we 'nationale belangen'. Het Rijk heeft voor alle nationale belangen een zogenaamde systeem-verantwoordelijkheid. Voor een aantal belangen is het Rijk zelf eindverantwoordelijk. Maar voor een groot aantal nationale belangen zijn dat de medeoverheden. De NOVI richt zich op die ontwikkelingen waarin meerdere nationale belangen bij elkaar komen, en keuzes in samenhang moeten worden gemaakt tussen die nationale belangen.

Voor dit project relevante nationale belangen zijn:

  • Bevorderen van een duurzame ontwikkeling van Nederland als geheel en van alle onderdelen van de fysieke leefomgeving.
  • Waarborgen en bevorderen van een gezonde en veilige fysieke leefomgeving.
  • Zorgdragen voor een woningvoorraad die aansluit op de woonbehoefte.

Keuzes

De belangrijkste keuzes zijn:

  • Duurzame energie inpassen met oog voor omgevingskwaliteit;
  • Ruimte voor overgang naar een circulaire economie;
  • Woningbouw in een stedelijk netwerk van gezonde en groene steden;
  • Landgebruik meer in balans met natuurlijke systemen.

Wonen is voor dit project het meest relevant. Tot 2030 moeten er ongeveer 1 miljoen woningen gebouwd worden. Dit zal grote impact hebben op de ruimtelijke ordening. Er wordt zoveel mogelijk gebouwd binnen bestaand stedelijk gebied, zodat open ruimtes en groen tussen steden behouden blijft. De nieuwe woningen moeten betaalbaar en goed bereikbaar zijn. Bewoners moeten tevens een prettige, gezonde en veilige leefomgeving ervaren. Dat vergt grote investeringen in openbaar vervoer, veilige fiets- en wandelpaden, meer groen, ontmoetingsruimte en wateropvang in de stad, en goede verbindingen met recreatiegebieden in de nabijheid van de stad. Met deze aanpak van verstedelijking wordt niet alleen het woningaanbod, maar ook de leefomgevingskwaliteit in de stad verbeterd.

3.2.1.2 Toetsing

Net zoals in grote delen van Nederland is er op dit moment in de regio en in de gemeente Asten sprake van een schaarste aan geschikte woningen, met als gevolg een overspannen woningmarkt. Er is behoefte aan nieuwe woningbouwlocaties, te beginnen in het bestaand bebouwd gebied. Het plangebied biedt hiervoor nadrukkelijk kansen.

3.2.2 Besluit algemene regels ruimtelijke ordening
3.2.2.1 Normstelling en beleid

Het Barro is de juridische vertaling van het beleid dat geschetst is in de NOVI. Dit beleidsdocument bevat regels die doorwerken naar lagere overheden. Dit betekent dat de regels uit het Barro ook geïmplementeerd moeten worden in provinciale en gemeentelijke ruimtelijke plannen. Evenals de NOVI wordt het Barro gekenmerkt door een hoog abstractie- en schaalniveau. Het Barro bevat regels voor bijvoorbeeld de mainportontwikkeling van Rotterdam, het kustfundament en defensie.

3.2.2.2 Toetsing

Op het plangebied zijn geen voorwaarden van toepassing op basis van het Barro.

3.2.3 Besluit ruimtelijke ordening en de ladder voor duurzame verstedelijking
3.2.3.1 Normstelling en beleid

Zorgvuldig ruimtegebruik is het uitgangspunt van de (rijks)overheid. Om dit principe beter te borgen is in 2012 de ladder voor duurzame verstedelijking opgenomen in het Besluit ruimtelijke ordening (artikel 3.1.6). Hieruit volgt dat alle ruimtelijke besluiten die een nieuwe stedelijke ontwikkeling mogelijk maken, aandacht moeten besteden aan de ladder voor duurzame verstedelijking. De grens van een stedelijke ontwikkeling ligt bij woningen op basis van jurisprudentie op circa 11-14 woningen.

De ladder voor duurzame verstedelijking bestaat uit twee stappen: de eerste stap bestaat uit het aantonen van de behoefte voor de beoogde ontwikkeling. Voor de tweede stap wordt er in beginsel vanuit gegaan dat een nieuwe stedelijke ontwikkeling in bestaand stedelijk gebied wordt gerealiseerd. Indien de nieuwe stedelijke ontwikkeling voorzien wordt buiten het bestaand stedelijk gebied, dient dit nadrukkelijk gemotiveerd te worden in de ruimtelijke onderbouwing.

3.2.3.2 Toetsing
3.2.3.2.1 Algemeen

Op de locatie aan de Julianastraat is in de bestaande situatie detailhandel aanwezig met bvo van 1.452 m². Met dit bestemmingsplan zal het aantal vierkante meters detailhandel op deze locatie afnemen tot 315 m² bvo.

Op de locatie aan het Floraplein is momenteel een wooncentrum aanwezig bestaande uit 2.950 m² wvo detailhandel, verspreid over 2 verdiepingen (zie ook paragraaf 2.1.1.2). Dit wooncentrum zal komen te vervallen en hiervoor in de plaats komt de nieuwe supermarkt met een wvo van 1.150 m².

Hoewel de te verplaatsen supermarkt op de locatie Floraplein toeneemt in winkelvloeroppervlakte ten opzichte van de bestaande situatie op de locatie Julianastraat (+ 315 m2), is er per saldo sprake van een afname in het aantal vierkante meters aan (planologisch) toegestane detailhandel.

3.2.3.2.2 Locatie Floraplein

Algemeen

De ALDI in Asten is gesitueerd ten zuiden van het centrum. De entree en de parkeerplaatsen bevinden zich aan de achterzijde van het pand, waardoor de ruimtelijk-functionele relatie met de rest van het centrum beperkt is. Te meer aangezien het centrum compacter wordt, onder andere door transformatie van winkelruimte naar wonen. De echte winkelconcentratie bevindt zich op ruim 150 meter afstand.

Bereikbaarheid en zichtbaarheid zijn op de huidige locatie matig en dit geldt ook voor de ontwikkelmogelijkheden. ALDI heeft daarom de wens te verplaatsen naar het Floraplein en beperkt uit te breiden tot een moderne maatvoering van circa 1.150 m2 wvo (+316 m2 wvo). De nieuwe locatie ligt, zoals beschreven in paragraaf 1.2.2, circa 300 meter ten oosten van het centrum. Hier is reeds detailhandel gevestigd. De huidige locatie wordt getransformeerd tot woningbouwlocatie, met betaalbare woningen voor voornamelijk starters en senioren. Ook de Emmastraat, gelegen tussen de Julianastraat en de Tuinstraat, wordt getransformeerd naar wonen.

Ten behoeve van deze ontwikkeling is een ruimtelijk-functionele quickscan opgesteld welke inzicht geeft in de aanwezige marktruimte en effecten van de beoogde ontwikkeling voor de consumentenverzorging, de bestaande detailhandelsstructuur en leegstand. Tevens biedt de quickscan inzicht in de kansrijkheid van het initiatief, maar ook in risico's en knelpunten. Daarbij is specifiek gekeken naar de impact van de verplaatsing voor het centrum van Asten. De quickscan is opgenomen als bijlage 1 van voorliggend bestemmingsplan.

Beleidskader

De verplaatsing en uitbreiding van ALDI draagt nadrukkelijk bij aan de instandhouding van het huidige voorzieningenniveau, de consumentenverzorging en in het verlengde daarvan de leefbaarheid in Asten. In de gemeentelijke beleidsstukken (onder andere in de Omgevingsvisie Asten, Toekomstagenda Asten 2030 en de Centrumvisie Asten) wordt nadrukkelijk de wens uitgesproken voor het behoud van voorzieningen. Verplaatsing en uitbreiding draagt bij aan duurzaam behoud van ALDI. Bovendien krijgt ALDI een moderne en toekomstbestendige supermarkt die aansluit bij de hedendaagse consumentenbehoefte. Door de verplaatsing van Aldi is het mogelijk om de huidige locatie te transformeren. In de centrumvisie gesproken over het toevoegen van appartementen. In de centrumvisie wordt bovendien de beoogde locatie aan het floraplein als geschikt bevonden voor het vestigen van een supermarkt.

De focus binnen het beleid ligt op versterking van de bestaande structuur. Nieuwe ontwikkelingen dienen zo veel mogelijk plaats te vinden in of aan de randen van bestaande winkelgebieden. In de huidige situatie is de verbinding met het centrum van Asten niet optimaal en in de de afgelopen jaren zelfs verslechterd oor de transformatie van winkelpanden naar wonen aan de Emmastraat (als verbindingsweg met het centrum). Met de toekomstige ontwikkelingen, zoals de transformatie van het Burgemeester Ploegmakerspark en de transformatie van het Floraplein krijgt het gebied een stevige impuls en ontstaat tevens een goede verbinding met het centrum.

Kwantitatieve behoefte

Het beoogde initiatief geeft deels invulling aan een kwantitatieve behoefte. Het dagelijks aanbod in de gemeente Asten functioneert momenteel op een vloerproductiviteit van circa € 6.850 per m² wvo. Dit is circa 15% beneden het landelijke vijf-jaarsgemiddelde. Dit verschil is aanvaardbaar. Daarbij wordt benadrukt dat dagelijkse winkels in de periferie van het land en kleinere kernen doorgaans stabiel en gezond beneden het landelijk gemiddelde kunnen functioneren, onder meer als gevolg van lagere exploitatielasten. Tegelijkertijd is er geen direct aanleiding om het winkelaanbod in kwantitatieve zin uit te breiden.

Richting 2033 neemt het inwonertal in de gemeente toe en daarmee ook het bestedingspotentieel. De gemiddelde vloerproductiviteit neemt toe tot circa € 7.075 à 7.225 per m2 wvo. Dit is nog altijd iets beneden het landelijk gemiddelde. Daarmee is er in kwantitatieve zin nog altijd geen directe aanleiding voor uitbreiding van het dagelijks aanbod.

Kwalitatieve behoefte

De beoogde verplaatsing en uitbreiding geeft invulling aan een kwalitatieve behoefte. Twee van de vier reguliere supermarkten in Asten hebben geen moderne omvang. Dit zijn beide discounters. Een nieuwe moderne discountsupermarkt is daarom een goede ontwikkeling voor de consumentenverzorging. Te meer aangezien het de enige Aldi betreft, zowel in Asten als in de omliggende gemeenten. Als enige hard discounter heeft Aldi doorgaans een sterke aantrekkingskracht op de prijsbewuste consument.

In het kader van een compacter centrum schuift het centrum langzaam op richting het noorden. Het deel van de Emmastraat ten noorden van de huidige locatie wordt getransformeerd naar wonen. De huidige Aldi komt hierdoor steeds verder van het centrum te liggen. In de huidige situatie zijn de ingang en het parkeerterrein bovendien aan de achterzijde van het pand gelegen waardoor de ruimtelijk-functionele relatie met het centrum matig is.

De toekomstige locatie aan het Floraplein heeft reeds een detailhandelsfunctie. De ruimtelijk-functionele relatie met het centrum is een stuk beter dan op de huidige locatie. De verbinding krijgt bovendien een stevige impuls door de opwaardering van het Burgemeester Ploegmakerspark. Daarbij wordt namelijk nadrukkelijk een loper gecreëerd vanaf het Floraplein richting het centrum.

Op de achterblijvende locatie worden betaalbare woningen gerealiseerd voor starters en senioren. Deze invulling draagt bij aan een specifieke lokale behoefte. In de gemeente Asten is er grote behoefte aan extra woningen, met name voor woningen voor starters en senioren. De kwantitatieve taakstelling tussen 2015 tot en met 2024 bedraagt 635 woningen. (zie Fair share woningbouwopgve Zuidoost-Brabant 2022 t/m 2030 zoals opgenomen in tabel 3.1). Het inwonertal neemt de komende jaren bovendien verder toe. Daarmee ook de behoefte aan woningen.

Omzeteffecten beperkt en aanvaardbaar

Het (omzet)effect als gevolg van verplaatsing en uitbreiding van Aldi is beperkt en daarmee aanvaardbaar:

  • Bij een uitbreiding van Aldi tot 1.150 m² wvo bedraagt de vloerproductiviteit in de dagelijkse sector circa € 6.750 à 6.900 per m2 wvo. Dit is circa 14 à 16% beneden het landelijke vijfjaarsgemiddelde. Daarbij wordt nogmaals benadrukt dat dagelijkse winkels in de periferie van het land in staat zijn om stabiel beperkt beneden het landelijk gemiddelde kunnen functioneren.
  • Ten opzichte van de huidige situatie blijft de vloerproductiviteit bovendien nagenoeg gelijk (-1 à +1%). Een afname met 1% is zeer beperkt en wordt beschouwd als een ondernemersrisico. Kortom, het omzeteffect zeer beperkt en aanvaardbaar.
  • Supermarkten concurreren hoofdzakelijk met andere supermarken, waardoor het omzeteffect van een nieuwe supermarkt in beginsel het grootst zal zijn voor de andere nabijgelegen supermarkten. Supermarkten PLUS en Albert Heijn hebben beiden een stevige moderne maatvoering en daarmee veel eigen trekkracht. Lidl is in de huidige vorm eveneens aan de kleine kant, maar profiteert wel van de ligging nabij PLUS. Daarbij geldt bovendien dat Aldi als enige hard discounter nadrukkelijk een eigen segment bediend.
  • Op basis van bovenstaande analyse volgt dat de bestaande supermarkten naar verwachting prima kunnen functioneren naast een nieuwe moderne Aldi. De bestaande structuur komt nauwelijks onder druk te staan en leegstand als gevolg van verplaatsing en beperkte uitbreiding van Aldi wordt dan ook niet verwacht.
  • Het centrum behoudt bovendien meer dan voldoende eigen trekkracht door de aanwezigheid van PLUS, Albert Heijn én Lidl.
  • De ruimtelijk-functionele relatie tussen ALDI en het centrum wordt met de herontwikkeling bovendien sterker aangezien:
    • 1. De huidige ALDI-locatie is langzaam afgesneden van het centrum;
    • 2. De nieuwe locatie, gelegen aan de centrumring, is veel zichtbaarder. Via het Burgemeester Ploegmakerspark (die ook een kwaliteits- en functie-impuls krijgt) wordt de nieuwe locatie meer aan het centrum gekoppeld.

Regionale afstemming

Regionale detailhandelsvisie Metropoolregio

In de regionale detailhandelsvisie van de Metropoolregio Eindhoven, waar de gemeente Asten deel van uitmaakt, schets de regio haar ambities ten aanzien van detailhandel.

  • Het is van belang om de regionale en bovenregionale aantrekkingskracht van de regio te versterken en te zorgen voor een excellent basisvoorzieningenniveau.
  • Uitgangspunt voor het versterken van de detailhandels-structuur is het clusteren of concentreren van detailhandel. Nieuwe detailhandelsontwikkelingen vinden in principe plaats in concentratiegebieden.
  • Een gevarieerd aanbod aan supermarkten is van groot belang voor de levensvatbaarheid van het centrum. Om deze reden is het van belang de fysieke relatie tussen supermarkten en overige winkels te stimuleren en te behouden. Supermarkten moeten zo veel mogelijk in centra worden gevestigd, maar daarbij is het ook van belang om ze zo veel mogelijk te faciliteren, onder meer op het gebied van bereikbaarheid en parkeren.

Afsprakenkader Detailhandel in de Peel (2015)

Het Afsprakenkader Detailhandel in de Peel beschrijft de uitgangspunten waaraan detailhandel in de Peel gemeenten moeten voldoen. In het afsprakenkader staat onder andere het volgende beschreven:

  • De clustering van detailhandel in winkelgebieden en het afbouwen van verspreide bewinkeling staat in de subregionale detailhandelsvisie centraal. Om dit te realiseren wordt het vervangen, saneren en functiewijziging van winkelvastgoed op plekken waar structurele leegstand optreedt gefaciliteerd.
  • Bij nieuwe planologische ontwikkelingen moet sprake zijn van een regionale behoefte en mogen geen blijvende negatieve effecten optreden op de bestaande detailhandelsstructuur. Door middel van onderzoek, motivering en afweging moet dit worden aangetoond. Een dergelijke ontwikkeling zal worden afgestemd op subregionaal niveau.
  • Om verdere groei van de leegstand niet te stimuleren, mogen er per saldo geen extra winkelmeters (met uitzondering van de thans bestaande harde plannen) aan het winkelaanbod in de Peel toegevoegd worden. Gemeenten spannen zich in om te komen tot afname van het aantal winkelmeters.

Lokaal beleid

Centrumvisie (2007)

Om in de toekomst te komen tot een betere ruimtelijke afstemming heeft de gemeente Asten een visie op het centrum opgesteld. Uitgangspunt is een krachtig centrum waarin de identiteit van Asten opnieuw leesbaar en op een aantrekkelijke wijze leefbaar is. In relatie tot dit initiatief wordt in de centrumvisie het volgende benoemd:

  • Omdat de locaties Floraplein en Julianastraat op relatief grote afstand van het gedefinieerde kernwinkelgebied zijn gesitueerd, zijn hier geen winkelconcentraties meer gewenst. Een grootschalige winkel, zoals de bestaande meubelzaak of een supermarkt is mede door de goede parkeermogelijkheden wel mogelijk.
  • Gezien de hoge leegstand en matige uitstraling is herstructurering van de locatie Julianastraat als gebied gewenst. Toevoegen van wonen wordt specifiek genoemd.

In paragraaf 3.4.3 wordt nader in gegaan op de Centrumvisie in relatie tot de beoogde ontwikkeling.

Toekomstagenda Asten 2030 (2017)

Verschillende trends en ontwikkelingen zorgen er voor dat de wereld van morgen er heel anders uit zal zien. In de Toekomstagenda Asten 2030 wordt een beeld geschetst hoe een toekomstbestendige economie in de gemeente Asten vitaal en aantrekkelijk blijft. Daarin wordt onder andere het volgende benoemd:

  • Het centrum van Asten is uitnodigend voor inwoners en bezoekers. Leegstand wordt aangepakt gezien dit een slechte invloed heeft op de uitstraling en aantrekkelijkheid van het centrum.

In paragraaf 3.4.2 wordt nader in gegaan op de Toekomstagenda in relatie tot de beoogde ontwikkeling.

Omgevingsvisie Asten (2021)

In oktober 2021 is de omgevingsvisie Asten vastgesteld. Voor het centrum van Asten en de detailhandel wordt het volgende genoemd:

  • Het centrum van Asten is goed toeven voor zowel inwo-ners als bezoekers, het centrum leeft en heeft een aantrekkelijk aanbod van winkels en horeca.
  • Behoud van het voorzieningenniveau in het centrum van Asten met een samenhangend aanbod van winkelvoorzieningen, horeca, welzijn en cultuur.

In paragraaf 3.4.1 wordt nader in gegaan op de Omgevingsvisie Asten in relatie tot de beoogde ontwikkeling.

Conclusie

De verplaatsing en uitbreiding van Aldi draagt nadrukkelijk bij aan de instandhouding van het huidige voorzieningenniveau, de consumentenverzorging en in het verlengde daarvan de leefbaarheid in Asten. In de gemeentelijke beleidsstukken wordt nadrukkelijk de wens uitgesproken voor het behoud van voorzieningen. Verplaatsing en uitbreiding draagt bij aan duurzaam behoud van Aldi. Bovendien krijgt Aldi een moderne en toekomstbestendige supermarkt die aansluit bij de hedendaagse consumentenbehoefte. Daarnaast is het initiatief regionaal afgestemd en is geen sprake van onaanvaardbare effecten op de detailhandelstructuur, de consumentenverzorging en de leegstand.

Door de verplaatsing van Aldi is het mogelijk om de huidige locatie te transformeren. In de centrumvisie wordt gesproken over het toevoegen van appartementen. In de centrumvisie wordt bovendien de beoogde locatie aan het floraplein als geschikt bevonden voor het vestigen van een supermarkt. De focus binnen het beleid ligt op versterking van de bestaande structuur. Nieuwe ontwikkelingen dienen zo veel mogelijk plaats te vinden in of aan de randen van bestaande winkelgebieden. In de huidige situatie is de verbinding met het centrum van Asten niet optimaal en is deze in de afgelopen jaren juist verslechterd door de transformatie van winkelpanden naar wonen aan de Emmastraat (als verbindingsweg met het centrum). Met de toekomstige ontwikkelingen, zoals de transformatie van het Burgemeester Ploegmakerspark en de transformatie van het Floraplein krijgt het gebied een stevige impuls en ontstaat tevens een goede verbinding met het centrum.

3.2.3.2.3 Locatie Julianastraat

Algemeen

Uitgangspunt voor de planologische herontwikkeling van de Julianastraat is het toevoegen van 42 woningen. Er is een gedifferentieerde bouw beoogd en deze woningbouw is opgenomen in het woningbouwprogramma dat vanuit de provinciale prognose naar boven is bijgesteld. Het beoogde woningbouwprogramma zoals beschreven in paragraaf 2.2.3 is voor tweederde deel betaalbaar, waarvan 30% sociale huur.

Bestaand stedelijk gebied

In artikel 1.1.1 onder h van het Bro is een nadere omschrijving van het begrip bestaand stedelijk gebied vastgelegd. Als bestaand stedelijk gebied wordt aangemerkt: bestaand stedenbouwkundig samenstel van bebouwing ten behoeve van wonen, dienstverlening, bedrijvigheid, detailhandel of horeca, alsmede de daarbij behorende openbare of sociaal culturele voorzieningen, stedelijk groen en infrastructuur. Het plangebied aan Julianastraat ligt volledig binnen bestaand stedelijk gebied.

Stedelijke ontwikkeling

Het geldende bestemmingsplan is vertrekpunt bij de beoordeling of sprake is van een stedelijke ontwikkeling. Het geldende bestemmingsplan maakt 42 extra woningen mogelijk. Het toevoegen van meer dan 11 woningen wordt gezien als stedelijke ontwikkeling.

Relevante woonregio

Het ruimtelijk verzorgingsgebied van de stedelijke ontwikkeling bepaalt tot welk gebied de beschrijving van de behoefte zich moet uitstrekken. De begrenzing van de regio is dus afhankelijk van wat als stedelijke ontwikkeling wordt gezien. Voor wonen is dat de gemeente Someren, binnen de regio Zuidoost-Brabant. De regio Zuidoost-Brabant is verder onderverdeeld in een drietal subregio's. De gemeente Asten valt onder de subregio De Peel.

De kwantitatieve en kwalitatieve behoefte aan de beoogde ontwikkeling blijkt uit diverse bronnen die hierna worden behandeld.

Kwantitatieve behoefte

Regionale woondeal Zuidoost-Brabant

Er is sprake van een groot woningtekort. De regio zet zich, in samenwerking met corporaties en marktpartijen, in voor de realisatie van minimaal 45.135 woningen in de periode 2022 tot en met 2030. Elke gemeente neemt een fair share van de regionale opgave. Ze maken daarom afspraken over de minimale opgave per gemeente. Meer realiseren mag, dan wordt het woningtekort sneller ingelopen.

De regionale woondeal is raadpleegbaar via deze link:

https://noordbrabant.bestuurlijkeinformatie.nl/Document/View/dd515c11-420d-4b1a-9b8 e-7a9db1c0bf71.

Tabel 3.1 Fair share woningbouwopgve Zuidoost-Brabant 2022 t/m 2030 (Bron: Provincie Noord-Brabant)

afbeelding "i_NL.IMRO.0743.BP02023003-OW01_0027.png"

Tabel 3.2 Woningbouwopgave per gemeente per jaar 2022 t/m 2030 (Bron: Provincie Noord-Brabant)

afbeelding "i_NL.IMRO.0743.BP02023003-OW01_0028.png"

In de regionale woondeal Zuidoost-Brabant staat voor gemeente Asten het te bouwen aantal van netto 640 woningen tot en met 2030. Van het woningbouwprogramma moet tweederde deel betaalbaar zijn, waarvan 30% sociale huur. Ook is aangegeven dat er slechts harde plancapaciteit is voor 170 woningen. De opgave ligt 30% hoger dan wat in de Woonvisie, welke ook in deze paragraaf aan bod komt, van de gemeente Asten staat. In de Omgevingsvisie Asten is in gegaan waar en wanneer er extra huizen worden gebouwd.

Kwalitatieve behoefte

Woonvisie gemeente Asten 2015 t/m 2024

In 2016 is de Woonvisie gemeente Asten 2015 t/m 2024 vastgesteld. Hierin zijn de uitgangspunten van het volkshuisvestingsbeleid voor de komende 10 jaren geformuleerd. Het betreft een gedeeltelijke actualisatie van de woonvisie 2010 t/m 2019. Eind 2023 wordt de nieuwe woonvisie vastgesteld.

De belangrijkste aspecten voor het woonbeleid luiden als volgt:

  • Regiogemeenten werken samen op het terrein van volkshuisvesting. Samenwerking betreft bijv. uitvoeren kwalitatief woningmarktonderzoek, kennisdeling. Asten richt zich op het realiseren van een woningvoorraad die past bij de woonbehoeften van de Astense bevolking, zowel kwantitatief (voldoende woningen) als kwalitatief (juiste woningen). Dit uitgangspunt geldt niet alleen voor de gemeente Asten als geheel maar ook voor de drie afzonderlijke kernen.
  • De kwantitatieve taakstelling voor de gemeente bedraagt 650 woningen tot en met 2029 (= toevoeging aan bestaande woningvoorraad).
  • Voor het nieuwbouwprogramma gelden de volgende kaders naar doelgroep, prijs en type woning: aandeel starters / gezinnen / senioren = 20% / 30% / 50%.

De woonvisie is nader uitgewerkt in het woningbouwprogramma.

Conclusie

De beoogde woningontwikkeling is aan te merken als een 'nieuwe stedelijke ontwikkeling'. De woningbouwplannen zijn kwantitatief afgestemd op de provinciale en regionale behoeften. Vanuit kwalitatief oogpunt blijft vraag- en behoeftegericht bouwen het basisprincipe. Hierbij dienen ontwikkelingsgerichte bestemmingsplannen een ruime mate van flexibiliteit te kennen om relatief snel in te kunnen springen op behoefteveranderingen. Gestuurd wordt op een goede verhouding tussen sociale huur en koop in verschillende klassen. De prioriteit hierbij ligt op een kwalitatieve aanvulling van het woonaanbod en daarmee op de doelgroepen die momenteel onvoldoende mogelijkheden hebben op de huidige woningmarkt, voornamelijk starters en senioren. Het initiatief aan Julianastraat speelt nadrukkelijk in op deze ambities en het past hiermee binnen de kaders van de ladder voor duurzame verstedelijking.

3.2.4 Conclusie

De beoogde ontwikkeling past binnen de kaders en randvoorwaarden van het rijksbeleid.

3.3 Provinciaal beleid

3.3.1 Omgevingsvisie Noord-Brabant
3.3.1.1 Normstelling en beleid

In de Omgevingsvisie Noord-Brabant is het provinciaal beleid ten aanzien van de ruimtelijke ontwikkelingen in de provincie Noord-Brabant op hoofdlijnen uiteengezet voor de periode tot 2050. Naast een beeld van het Noord-Brabant van nu is een beeld geschetst van het welvarend, verbonden, klimaatproof en vernieuwend Noord-Brabant van 2050. Hieruit zin vier hoofdopgaven onderscheiden die nauw met elkaar samenhangen:

  • Werken aan de Brabantse energietransitie
  • Werken aan een klimaatproof Brabant
  • Werken aan de slimme netwerkstad
  • Werken aan een concurrerende, duurzame economie

Samen met andere partijen zoals gemeenten en bedrijven wil de provincie uitvoering geven aan projecten die passen binnen deze opgaven. Van belang is dat het in de toekomst ook goed wonen, werken en verblijven blijft. Werken aan een goede omgevingskwaliteit zowel in de bebouwde als in de onbebouwde omgeving is het uitgangspunt.

3.3.1.2 Toetsing

Stedelijke ontwikkelingen dienen in principe plaats te vinden binnen 'bestaand stedelijk gebied'. Herbestemmen wordt gezien als het nieuwe bouwen: als gevolg van economische, technologische en maatschappelijke ontwikkelingen staan de steden en dorpen van Brabant steeds vaker voor (omvangrijke) herbestemmings- en transformatieopgaven in hun bebouwde gebied. Hier liggen namelijk de kansen om de forse woningbouwopgave van circa 120.000 woningen in de komende tien jaar te realiseren. De beoogde ontwikkeling draagt hieraan bij.

3.3.2 Interim omgevingsverordening Noord-Brabant
3.3.2.1 Normstelling en beleid

Op 1 januari 2024 treedt de Omgevingswet in werking. Vanwege de Omgevingswet moet de provincie haar regelsysteem aanpassen. Straks heeft de provincie nog maar één verordening waarin alle regels zijn opgenomen over de fysieke leefomgeving. De Interim omgevingsverordening Noord-Brabant is een eerste stap op weg naar de definitieve omgevingsverordening. De Interim omgevingsverordening Noord-Brabant is beleidsneutraal van karakter. Dat betekent dat er geen nieuwe beleidswijzigingen zijn doorgevoerd, behalve als deze voortvloeien uit vastgesteld beleid, zoals de Omgevingsvisie Nood-Brabant. In beginsel zijn de huidige regels met het huidige beschermingsniveau gehandhaafd.


In hoofdstuk 3 van de omgevingsverordening zijn zogenaamde instructieregels opgenomen die gemeenten moeten toepassen in hun bestemmingsplannen. Vooruitlopend op de Omgevingswet richten de instructieregels zich op een evenwichtige toedeling van functies (in plaats van het bestemmen van ontwikkelingen). Dit betekent dat de regels ook vanuit functies (van gebieden) zijn opgebouwd. Daarnaast richten de regels zich op een goede omgevingskwaliteit, inclusief een veilige en gezonde leefomgeving (in plaats van een goede ruimtelijke kwaliteit). Tevens zijn een aantal algemene basisprincipes opgenomen.


Het volgende artikel is relevant voor de beoogde ontwikkeling.

Artikel 3.42 duurzame stedelijke ontwikkeling

Lid 1

Een bestemmingsplan dat voorziet in de ontwikkeling van een locatie voor wonen, werken of voorzieningen ligt binnen 'stedelijk gebied' en bevat een onderbouwing dat:

  • a. de ontwikkeling past binnen de regionale afspraken, bedoeld in afdeling 5.4 Regionaal samenwerken;
  • b. het een duurzame stedelijke ontwikkeling is.

Lid 2

Een duurzame stedelijke ontwikkeling voor wonen, werken of voorzieningen:

  • a. bevordert een goede omgevingskwaliteit met een veilige en gezonde leefomgeving;
  • b. bevordert zorgvuldig ruimtegebruik, waaronder de transformatie van verouderde stedelijke gebieden;
  • c. geeft optimaal invulling aan de mogelijkheden voor productie en gebruik van duurzame energie;
  • d. houdt rekening met klimaatverandering, waaronder het tegengaan van hittestress en voldoende ruimte voor de opvang van water;
  • e. geeft optimaal invulling aan de mogelijkheden voor duurzame mobiliteit;
  • f. draagt bij aan een duurzame, concurrerende economie.

3.3.2.2 Toetsing

Het 'stedelijk gebied' zoals gehanteerd door de provincie bestaat uit het 'stedelijk concentratiegebied' en de 'landelijke kern'. Het plangebied ligt binnen een 'landelijke kern' zoals gehanteerd binnen de Interim omgevingsverordening Noord-Brabant (figuur 3.1). Binnen deze gebieden kan worden voorzien in de ruimte voor wonen, werken en andere voorzieningen om zo de verstedelijking zo veel mogelijk te bundelen en beleefbaar te houden. Binnen het stedelijk gebied liggen verschillende mogelijkheden voor inbreiding, herstructurering en intensief, meervoudig ruimtegebruik. Voorliggend plan speelt in op deze mogelijkheden en speelt in op de beleidsambities ten aanzien van duurzame stedelijke ontwikkeling. Daarnaast is het plan regionaal afgestemd zoals nader beschreven in paragraaf 3.2.3 en bijbehorende bijlage 1 en speelt het plan, zoals onder andere beschreven in hoofdstuk 4 van voorliggend bestemmingsplan, in op de ambities uit lid 2 a t/m f.

afbeelding "i_NL.IMRO.0743.BP02023003-OW01_0029.png"

Figuur 3.1 Uitsnede Interim omgevingsverordening Noord-Brabant 

(Bron: Provincie Noord-Brabant)

3.3.3 Omgevingsverordening Noord-Brabant
3.3.3.1 Normstelling en beleid

De provincie heeft als eerste stap een Interim omgevingsverordening vastgesteld waarin de bestaande regels zijn samengevoegd. Provinciale Staten hebben vervolgens op 11 maart 2022 de nieuwe Omgevingsverordening Noord-Brabant vastgesteld. De verordening treedt gelijktijdig met de Omgevingswet in werking. In de definitieve verordening zijn, in tegenstelling tot de interim verordening, ook beleidswijzigingen verwerkt. De huidige regels in de Interim omgevingsverordening zijn gehanteerd als uitgangspunt.


De belangrijkste wijzigingen zijn:

  • Er is aansluiting gezocht bij de opbouw van de rijksregels. Diverse nadere regelingen zijn in de Omgevingsverordening verwerkt.
  • Vanwege het vervallen van de Wet bodembescherming zijn nieuwe regels opgenomen om verontreiniging van het grondwater te voorkomen. Het voorstel is om daarvoor ook voorbeschermingsregels vast te stellen.
  • De aanwijzing van voor verzuring gevoelige kwetsbare gebieden (Wav-kaarten) is vervallen.
  • De rechtstreeks werkende regels voor de ontwikkeling van veehouderij en mestbewerking vervallen. Het voorstel is om die te vervangen door voorbeschermingsregels.
  • Er is een attentiezone geluid opgenomen langs provinciale wegen waarbinnen aandacht wordt gevraagd voor het oprichten van geluidgevoelige bebouwing.

3.3.3.2 Toetsing

In de omgevingsverordenig Noord-Brabant zijn geen wijzigingen doorgevoerd ten opzichte van de interim omgevingsverordening die relevant zijn voor onderhavig plangebied.

3.3.4 Conclusie

De beoogde ontwikkeling past binnen de kaders en randvoorwaarden van het provinciaal beleid.

3.4 Gemeentelijk beleid

3.4.1 Omgevingsvisie Asten
3.4.1.1 Normstelling en beleid

Recent heeft de gemeente Asten Omgevingsvisie Asten vastgesteld. In deze omgevingsvisie worden de ambities voor de fysieke leefomgeving vastgelegd, waarbij nadrukkelijk de verbinding wordt gelegd met het sociaal domein en het gemeentelijk gezondheidsbeleid. Daarbij wordt onder meer voortgebouwd op bestaand beleid dat door de gemeenteraad van Asten is vastgesteld.

De omgevingsvisie onderscheidt binnen de gemeente Asten verschillende deelgebieden. Het plangebied maakt onderdeel uit van het deelgebied 'Dynamische Dorpen', dat bestaat uit de dorpen Asten, Heusden en Ommel. Mede dankzij het groen in en rond de kernen zijn dit fijne dorpen om in te wonen. Gelegen binnen de Metropoolregio Eindhoven hebben ze een dorpse sfeer in uitstraling en gevoel.

In het deelgebied Asten, Heusden en Ommel staan de komende jaren een aantal opgaven centraal: de transformatie van het buitengebied met aandacht voor verbetering van de luchtkwaliteit, het vitaal houden van de kernen, de ontwikkeling van het centrum van Asten en het klimaatbestendig en energieneutraal worden in 2030. Daarnaast wordt er gewerkt aan de 'vitale democratie'. Dat is de manier waarop de samenleving en overheid samenwerken. De omgevingsvisie zal na inwerkingtreding van de Omgevingswet uiteindelijk als basis dienen voor het opstellen van een omgevingsplan.

In de omgevingsvisie wordt het belang van vitale kernen binnen de gemeente onderschreven. In de kernen is het prettig en groen wonen. Onderdeel van de hierboven beschreven opgaven is het realiseren van voldoende, betaalbare en passende woningen en woonomgevingen voor alle doelgroepen. Bij uitbreiding van de dorpen voor wonen of bedrijvigheid wordt rekening gehouden met de aanwezige landschappelijke, ecologische en cultuurhistorische kwaliteiten en sluiten we zoveel mogelijk aan op bestaande structuren.

3.4.1.2 Toetsing

De voorgenomen ontwikkeling draagt bij aan het realiseren van de doelstellingen zoals opgenomen in de Omgevingsvisie. Het planvoornemen voorziet in de toevoeging van woningen en de verplaatsing van een supermarkt in bestaand stedelijk gebied van de kern Asten. Met de planontwikkeling wordt met name voorzien in de behoefte aan appartementen in een groene setting én het kwalitatief op peil houden van het voorzieningenniveau. De beperkte afstand tot de voorzieningen in de kern Asten en de directe nabijheid van landelijk gebied spreekt de bewoners van de andere deelgebieden aan. Daarmee past de voorgenomen ontwikkeling binnen de doelstelling van de Omgevingsvisie en levert deze een belangrijke bijdrage aan het op peil houden van de leefbaarheid in het dorp.

3.4.2 Toekomstagenda Asten 2030
3.4.2.1 Normstelling en beleid

In de Toekomstagenda 2030 stelt de gemeente te streven naar levendige dorpscentra met ruimte voor ontmoeting in een gemoedelijke sfeer. Dit is belangrijk voor de vitaliteit en aantrekkelijkheid van de kernen. Het centrum is de plek voor ontmoeten, eten en drinken en ook werken. Het behoud van deze vitaliteit is niet vanzelfsprekend. Het wegtrekken van jongeren, het kleiner worden van huishoudens, de vergrijzing en technologische ontwikkelingen vragen om een alerte reactie van gemeenschappen en gemeente. Passende en betaalbare woonvormen, adequate voorzieningen, saamhorigheid en een evenwichtige bevolkingssamenstelling zorgen voor vitaliteit.

Om een aantrekkelijke woongemeente te zijn, voert de gemeente een actief woonbeleid. Het beleid is flexibel en gericht op de lokale woonbehoeften. De gemeente richt zich daarbij ook op het versterken van de aantrekkingskracht voor mensen die graag rustig landelijk willen wonen, dichtbij stedelijke voorzieningen en werk.

3.4.2.2 Toetsing

Voor de kern Asten geldt specifiek het resultaat dat een nieuwe supermarkt en woningbouw gerealiseerd wordt. Het is een totaalinitiatief om de leefbaarheid in Asten structureel en voortvarend aan te pakken door middel van substantiële nieuwbouw en aantrekken van nieuwe inwoners. Het voorgenomen plan draagt bij aan dit initiatief. De toevoeging van diverse appartementswoningen in een bebouwingsconcentratie in het stedelijk gebied draagt bij aan de doorstroom in de kern, waar meerdere nieuwbouwprojecten voor meer specifieke doelgroepen worden gerealiseerd. Daarnaast wordt met de realisatie met een nieuwe supermarkt het voorzieningenniveau op peil gehouden. Daarmee past de voorgenomen ontwikkeling binnen de doelstelling van de Toekomstagenda 2030 en levert deze een belangrijke bijdrage aan het op peil houden van de leefbaarheid in het dorp.

3.4.3 Centrumvisie Asten
3.4.3.1 Normstelling en beleid

De Centrumvisie Asten uit 2007 geeft het frame waarbinnen toekomstige ontwikkelingen beoordeeld en uitgevoerd kunnen worden, zodat het gebied kan uitgroeien tot een aantrekkelijk en hoogwaardig centrum.

In de visie wordt de historische ontwikkeling, bebouwingsstructuur, groenstructuur, functionele structuur en de verkeers- en parkeerstructuur beschreven. Aan de hand hiervan is het beleid geformuleerd voor de verkeerskundige, functionele en ruimtelijke deelaspecten. Aan de hand van deze deelaspecten zijn de verschillende (her)ontwikkelingen beschreven. Één van de beschreven deelgebieden betreft de locatie Julianastraat en omgeving.

3.4.3.2 Toetsing

Omdat de locaties Floraplein en Julianastraat op relatief grote afstand van het gedefinieerde kernwinkelgebied zijn gesitueerd, zijn hier geen winkelconcentraties meer gewenst. Een grootschalige winkel, zoals de bestaande meubelzaak of een supermarkt is mede door de goede parkeermogelijkheden wel mogelijk. De ruimtelijk-functionele relatie tussen ALDI en het centrum wordt met de herontwikkeling bovendien sterker aangezien de huidige ALDI-locatie langzaam is afgesneden van het centrum. De nieuwe locatie, gelegen aan de centrumring, is veel zichtbaarder. Via het Burgemeester Ploegmakerspark wordt de nieuwe locatie meer aan het centrum gekoppeld.

Gezien de hoge leegstand en matige uitstraling is herstructurering van de locatie Julianastraat als gebied gewenst. Toevoegen van wonen wordt specifiek benoemd. Hier speelt het initiatief op zowel kwantitatieve als kwalitatieve wijze op in, zoals ook onderbouwd in paragraaf 3.2.3.

3.4.4 Woonvisie gemeente Asten 2015 t/m 2024
3.4.4.1 Normstelling en beleid

In 2016 is de Woonvisie gemeente Asten 2015 t/m 2024 vastgesteld. Hierin zijn de uitgangspunten van het volkshuisvestingsbeleid voor de komende 10 jaren geformuleerd. Het betreft een gedeeltelijke actualisatie van de woonvisie 2010 t/m 2019.

De belangrijkste aspecten voor het woonbeleid luiden als volgt:

  • 1. Regiogemeenten werken samen op het terrein van volkshuisvesting. Samenwerking betreft bijv. uitvoeren kwalitatief woningmarktonderzoek, kennisdeling. Asten richt zich op het realiseren van een woningvoorraad die past bij de woonbehoeften van de Astense bevolking, zowel kwantitatief (voldoende woningen) als kwalitatief (juiste woningen). Dit uitgangspunt geldt niet alleen voor de gemeente Asten als geheel maar ook voor de drie afzonderlijke kernen.
  • 2. De kwantitatieve taakstelling voor de gemeente bedraagt 650 woningen tot en met 2029 (= toevoeging aan bestaande woningvoorraad).
  • 3. Voor het nieuwbouwprogramma gelden de volgende kaders naar doelgroep, prijs en type woning: aandeel starters / gezinnen / senioren = 20% / 30% / 50%.

3.4.4.2 Toetsing

De nieuwbouw van appartementen binnen bestaand stedelijk gebied draagt, zoals beschreven in paragraaf 3.2.3 bij aan het behalen van de kwantitatieve doelstellingen van de Woonvisie en de doorstroom in de kern Asten. Hiermee wordt in de eerste plaats bijgedragen aan het tegengaan van de toenemende druk op de Astense woningmarkt en de daarmee gepaard gaande woningbouwopgave.

3.4.5 Versnellingsagenda woningbouw Asten
3.4.5.1 Normstelling en beleid

Met de Versnellingsagenda woningbouw Asten beoogt de gemeente de toenemende druk op de woningmarkt tegen te gaan door het bouwtempo hoog te houden. De gemeente doet dit door nadrukkelijk de regie te pakken en versneld een tweetal woningbouwplannen in ontwikkeling te nemen. Binnen deze plannen zal extra aanbod gecreëerd worden voor de meest urgente doelgroepen, met een gezonde mix van huur en koop, in verschillende prijssegmenten en met aandacht voor betaalbaarheid en financierbaarheid.

Ook binnen de bestaande (potentiële) planvoorraad en bij nieuwe woningbouwplannen zal extra gestuurd worden op het bouwen van woningen voor de meest urgente doelgroepen. Daarnaast dient minimaal tweederde van de nieuw te bouwen woningen te bestaan uit betaalbare woningen, waarvan 30% sociale huurwoningen. De uitgangspunten en acties uit de versnellingsagenda woningbouw zijn verwerkt in de woningbouwmonitor 2022-2031. De woningbouwmonitor wordt gebruikt om te sturen op het planaanbod, de te bouwen woning typologieën en de realisatie van nieuwe woningen.

3.4.5.2 Toetsing

In Asten is vanaf 2022 weinig harde plancapaciteit beschikbaar. Het is dus wenselijk om op korte termijn nieuwe woningbouwplannen in ontwikkeling te nemen. Voorgenomen ontwikkeling sluit hierbij aan.

3.4.6 Woningbouwmonitor gemeente Asten 2022 t/m 2031
3.4.6.1 Normstelling en beleid

Het gemeentelijk woningbouwprogramma is vastgelegd in de 'Woningbouwmonitor gemeente Asten 2022 t/m 2031'. In de woningbouwmonitor is het totaal aantal te realiseren woningen in Asten over de periode 2022 t/m 2031 vastgelegd.

Tabel 3.3 Harde plancapaciteit geplande woningbouw in de kernen van de gemeente Asten

afbeelding "i_NL.IMRO.0743.BP02023003-OW01_0030.png"

In de woningbouwmonitor heeft de gemeente Asten bewust beperkte ruimte beschikbaar gehouden voor de toevoeging van nieuwe plannen. De harde en potentiële plancapaciteit van de gemeente Asten als geheel zijn samen circa 500 woningen, terwijl er de komende 10 jaar 545 woningen gebouwd kunnen worden. Er is dus nog ruimte voor circa 45 woningen. Meer vrije ruimte is niet nodig, omdat de tijdshorizon elk jaar vooruit schuift en de gerealiseerde woningen van de harde plancapaciteit af gaan. Hierdoor is de verwachting dat er ook in de toekomst voldoende capaciteit over blijft om woningen te kunnen blijven bouwen.

3.4.6.2 Toetsing

Met de voorziene bouw van diverse appartementen binnen bestaand stedelijk gebied wordt voorzien in de kwantitatieve behoefte aan woningbouw in de kern Asten. Het planvoornemen voorziet in de aantoonbare behoefte aan appartementen voor starters en senioren in een groene setting. De beperkte afstand tot de voorzieningen in de kern Asten en de directe nabijheid van landelijk gebied maakt het voor veel mensen erg aantrekkelijk om te wonen. De nieuwbouw voorziet daarmee in deze aantoonbare vraag en draagt bij aan de doorstroom binnen de gemeente Asten, waar ook meerdere nieuwbouwprojecten voor meer specifieke doelgroepen worden gerealiseerd. Daarmee past de voorgenomen ontwikkeling binnen de kwantitatieve woningbouwopgave van de gemeente Asten en draagt deze bij aan het bereiken van de kwalitatieve opgaven.

3.4.7 Conclusie

Het planvoornemen waarbij enerzijds een nieuwe supermarkt en anderzijds 42 extra woningen mogelijk worden gemaakt past binnen het beleid van de gemeente Asten.

Hoofdstuk 4 Milieu- en omgevingsaspecten

4.1 Inleiding

Op grond van de Wet ruimtelijke ordening en op basis van jurisprudentie dient de uitvoerbaarheid van een ruimtelijk plan te worden aangetoond en dient in het plan te worden onderbouwd dat er sprake is van een goede ruimtelijke ordening. In dit hoofdstuk zijn de sectorale aspecten beschreven die voor dit plan relevant zijn. De resultaten en conclusies van eventuele onderzoeken zijn per aspect opgenomen in de betreffende paragraaf.

4.2 Vormvrije m.e.r.-beoordeling

4.2.1 Normstelling en beleid

In onderdeel C en D van de bijlage bij het Besluit m.e.r. is aangegeven welke activiteiten in het kader van de omgevingsvergunning planmer-plichtig, projectmer-plichtig of mer-beoordelingsplichtig zijn. Voor deze activiteiten zijn in het Besluit m.e.r. drempelwaarden opgenomen. Daarnaast dient het bevoegd gezag bij de betreffende activiteiten die niet aan de bijbehorende drempelwaarden voldoen, na te gaan of sprake kan zijn van belangrijke nadelige gevolgen voor het milieu, gelet op de omstandigheden als bedoeld in bijlage III van de EEG-richtlijn milieueffectbeoordeling. Deze omstandigheden betreffen:

  • de kenmerken van de projecten;
  • de plaats van de projecten;
  • de kenmerken van de potentiële effecten.

Sinds 7 juli 2017 is een aanpassing van het Besluit m.e.r. in werking getreden met daarin een nieuwe procedure voor de vormvrije m.e.r.-beoordeling. Zo moet voor de ontwerpbestemmingsplanfase een m.e.r-beoordelingsbeslissing worden genomen, waarin wordt aangegeven of wel of geen milieueffectrapportage nodig is, gelet op de kenmerken van het project, de plaats van het project en de kenmerken van de potentiële (milieu)effecten en mogelijke mitigerende maatregelen.

4.2.2 Toetsing en conclusie

In het Besluit milieueffectrapportage is opgenomen dat de aanleg, wijziging of uitbreiding van een stedelijk ontwikkelingsproject mer-beoordelingsplichtig is in gevallen waarin de activiteit betrekking heeft op een plangebied met een oppervlakte van 100 hectare, een bedrijfsvloeroppervlakte van 200.000 m2 of de realisatie van 2000 of meer woningen in een aaneengesloten gebied (Besluit milieueffectrapportage, Bijlage onderdeel D11.2). De beoogde ontwikkeling op de twee locaties blijft ruimschoots onder de drempelwaarden wat betreft oppervlakte plangebied (< 100 hectare), oppervlakte BVO (< 200.000 m2) en aantal woningen (< 2000 woningen).

Opgemerkt dient te worden dat voor activiteiten die niet aan de bijbehorende drempelwaarden voldoen, toch dient te worden nagegaan of er sprake kan zijn van belangrijke gevolgen voor het milieu. Gelet op de kenmerken van het plan zoals het kleinschalige karakter in vergelijking met de drempelwaarden uit het Besluit m.e.r., de plaats van het plan en de kenmerken van de potentiële effecten zullen geen belangrijke negatieve milieugevolgen optreden. Dit blijkt ook uit de onderzoeken van de verschillende milieuaspecten zoals deze in de volgende paragrafen zijn opgenomen. Voor dit bestemmingsplan is dan ook geen mer-procedure of mer-beoordelingsprocedure noodzakelijk conform het Besluit m.e.r. Dit betekent dat kan worden volstaan met een zogenoemde 'aanmeldnotitie vormvrije m.e.r.-beoordeling', welke is opgenomen als bijlage 4 bij voorliggend bestemmingsplan. Het bevoegd gezag neemt op basis hiervan een m.e.r.-beoordelingsbeslissing.

4.3 Verkeer en parkeren

4.3.1 Normstelling en beleid

Bij nieuwe ontwikkelingen dient rekening te worden gehouden met de verkeersgeneratie en parkeerbehoefte die als gevolg daarvan ontstaat. Hiertoe kunnen berekeningen worden uitgevoerd op basis van de kencijfers uit de Nota Parkeernormen Asten 2016 en de publicatie 'Toekomstbestendig Parkeren', publicatie 381 (december 2018) van het CROW. De kencijfers van het CROW zijn gebaseerd op literatuuronderzoek en praktijkervaringen van gemeenten en zijn landelijk (en juridisch) geaccepteerd en worden gezien als de meest betrouwbare gegevens met betrekking tot het bepalen van onder andere de verkeergeneratie.

Op basis van de parkeercijfers uit een voorgaande CROW-publicatie (317) heeft de gemeente Asten in de Nota Parkeernormen Asten 2016 op de gemeentelijke situatie toegespitste normen aangereikt voor parkeergelegenheden bij verschillende functies. De parkeernormen geven per type gebied aan hoeveel parkeerplaatsen gerealiseerd dienen te worden bij nieuwbouw of uitbreiding van bestaande bouw.

4.3.2 Toetsing

In het kader van de beoogde ontwikkelingen is een onderzoek verkeer en parkeren uitgevoerd, opgenomen als bijlage 5. Hierna worden de resultaten van dat onderzoek samengevat. Om de conclusies in het juiste verband te kunnen lezen, wordt geadviseerd om de rapportage te raadplegen.

Voor beide deelplangebieden is het nodig om het huidig ruimtelijk programma te salderen. Dit betekent dat de parkeerbehoefte van te vervallen functies in mindering gebracht worden op de parkeerbehoefte. De parkeerbehoefte van de functies die behouden blijven worden meegenomen in de parkeerbehoefte van het plan.

4.3.2.1 Parkeren
4.3.2.1.1 Resultaten onderzoek Floraplein

De ontwikkeling van het Floraplein voorziet in de realisatie van de nieuwe ALDI (1.579,4 m2 BVO). De huidige woonwinkel (3.661 m2 BVO) komt te vervallen. Op basis van de Nota Parkeernormen 2016 is er in beginsel een tekort van 23 parkeerplaatsen. De Nota Parkeernormen 2016 schrijft voor dat nieuwe ruimtelijke ontwikkelingen volledig moeten voorzien in de parkeerbehoefte op eigen terrein. Ook het aantal openbare parkeerplaatsen moet gehandhaafd blijven. De toekomstige parkeerbehoefte betreft 127 parkeerplaatsen (59 parkeerplaatsen voor de ALDI en 68 parkeerplaatsen als huidige parkeercapaciteit van het Floraplein). Het plan voor het Floraplein voorziet in 104 parkeerplaatsen (42 parkeerplaatsen binnen het plangebied op het dek van ALDI, 62 parkeerplaatsen op het Floraplein wat onderdeel uitmaakt van het exploitatiegebied). Een tekort van 23 parkeerplaatsen. Bij het salderen van de huidige ruimtelijke functies is er een overschot van 5 parkeerplaatsen. Hiermee voldoet het voorgenomen deelplangebied aan de gestelde eisen vanuit de Nota Parkeernormen 2016.

Door het huidig ruimtelijk programma (de woonwinkel) te salderen in de toekomstige parkeerbalans is er een overschot van 5 parkeerplaatsen binnen dit deelplangebied. Met de sloop van de woonwinkel komt ook de parkeerbehoefte (48 parkeerplaatsen) te vervallen. Dit betekent tevens dat er 20 parkeerplaatsen meegenomen moeten worden t.b.v. de saldering voor het opvangen van de parkeerbehoefte van de overige huidige functies (woningen / detailhandel). De saldering van de huidige functies resulteert in een overcapaciteit van 5 parkeerplaatsen binnen het deelplangebied. Gezien het karakter van het Floraplein is er geen dubbelgebruik aanwezig. De parkeerbehoefte wordt niet aangepast op basis van aanwezigheidspercentages.

4.3.2.1.2 Resultaten onderzoek Julianastraat

In beginsel wordt niet voldaan aan de Nota Parkeernormen 2016. Binnen het plangebied is er een tekort van 28 parkeerplaatsen. De Nota Parkeernormen 2016 schrijft voor dat nieuwe ruimtelijke ontwikkelingen volledig moeten voorzien in de parkeerbehoefte op eigen terrein. Ook het aantal openbare parkeerplaatsen moet gehandhaafd blijven. De herontwikkeling aan de Julianastraat/Emmastraat (42 woningen) heeft een theoretische parkeerbehoefte van 87 parkeerplaatsen.

Door het huidig ruimtelijk programma te salderen in de toekomstige parkeerbalans is er een sluitende parkeerbalans. De parkeerbehoefte betreft 62 parkeerplaatsen en er wordt voorzien in minimaal 62 parkeerplaatsen binnen het plangebied van de Emmastraat/Julianastraat. Met de toekomstige ontwikkeling van 42 woningen vervallen de functies (a) 1.108 m2 BVO aan detailhandel (supermarkt), (b) 440 m2 horeca (café) en (c) 1 vrijstaande woning. Door de toekomstige functies (42 nieuwe appartementen, 9 bestaande sociale huur woningen, 10 bestaande zorgwoningen, 315 m2 BVO bestaande detailhandel, 210 m2 BVO bestaande dienstverlening) binnen het plangebied is dubbelgebruik aanwezig (door het openbare karakter van de parkeerplaatsen). Hiermee is het resultaat van de parkeerbalans – op basis van de aanwezigheidspercentages – een parkeerbehoefte van 62 parkeerplaatsen. De koopavond is maatgevend.

4.3.2.1.3 Advies voor toepassing afwijkingsbepaling ten behoeve van salderen

De resultaten van de parkeeronderzoeken gaan uit van het salderen van het bestaande (huidige) programma. Dit is mogelijk binnen de Nota Parkeernormen 2016. Door gebruik te maken van de afwijkingsbepaling in de Nota Parkeernormen 2016 kan het college van Asten besluiten om saldering van het huidig programma toe te staan voor de ALDI aan het Floraplein en de herontwikkeling van de Julianastraat/Emmastraat. Geadviseerd wordt om gebruik te maken van de afwijkingsbevoegdheid uit de Nota Parkeernormen 2016.

Met het salderen van het bestaand programma voldoen de planuitwerkingen aan de parkeerbehoefte. Julianastraat/Emmastraat voorziet in minimaal 62 parkeerplaatsen op een parkeerbehoefte van 62 parkeerplaatsen. Uit de parkeerdrukmeting van oktober 2023 is er een maximale parkeerdruk van ca. 46% op het parkeerterrein.

De ontwikkeling aan het Floraplein voorziet in 104 parkeerplaatsen (openbaar + eigen terrein) op een parkeerbehoefte van 99 parkeerplaatsen. Daarnaast blijkt dat de maximale parkeerdruk in oktober 2023 circa 41% is.

4.3.2.1.4 Afwijkingsbevoegdheid Nota Parkeernormen 2016

Uit het verkeer- en parkeeronderzoek dat is uitgevoerd blijkt dat de plannen in beginsel niet kunnen voldoen aan de bepalingen zoals opgenomen in de vigerende Nota Parkeernormen 2016 gemeente Asten. De Nota schrijft voor dat salderen niet is toegestaan bij nieuwbouw. Nieuwe ruimtelijke ontwikkelingen moeten volledig voorzien in de parkeerbehoefte op eigen terrein. Ook schrijft de Nota voor dat het huidige aantal openbare parkeerplaatsen gehandhaafd moet blijven dan wel gecompenseerd mits een verlies aan openbare parkeerplaatsen als gevolg van de ontwikkeling aan de orde is. Voor de volledige berekening van de parkeeropgave voor zowel het Floraplein als de Julianastraat wordt volledigheidshalve verwezen naar het verkeer- en parkeeronderzoek (bijlage 5).

 

Zoals aangegeven is salderen bij nieuwbouw in beginsel niet toegestaan. Om de ontwikkelingen op de locaties Floraplein en Julianastraat op het onderdeel parkeren mogelijk te maken dient uw college hiervoor een apart besluit te nemen op grond van de afwijkingsbevoegdheid, zoals opgenomen in paragraaf 3.4 van de Nota Parkeernormen 2016. Volgens deze bepaling kan uw college voor ontwikkelingen die bijzonder waardevol zijn voor Asten en die niet passen binnen de parkeernormen en/of het maatwerk, besluiten gebruik te maken van de afwijkingsbevoegdheid als bedoeld in artikel 4:84 Algemene wet bestuursrecht (Awb).

Geadviseerd wordt om voor de locaties Floraplein en Julianastraat gebruik te maken van deze afwijkingsmogelijkheid. Daarbij is het navolgende overwogen:

  • Er is sprake van een belangrijke ontwikkeling voor Asten. Het verplaatsen van de Aldi supermarkt vanuit het centrum naar de rand van het centrumgebied biedt voor zowel de locatie Floraplein als de locatie Julianastraat veel ruimtelijke en verkeerskundige voordelen (o.a. verhoogde ruimtelijke kwaliteit, lagere verkeersdruk in het centrum, minder zwaar vrachtverkeer in het centrum, verbetering verkeersveiligheid, verbeterde verbinding tussen het Floraplein en het centrum). Daarnaast draagt het plan bij aan het realiseren van de woningbouwambities.
  • Doordat in het geval van nieuwbouw geen gebruik kan worden gemaakt van salderen, wordt de initiatiefnemer “geconfronteerd” met een onevenredig hoge parkeereis. De initiatiefnemer dient parkeerplaatsen te realiseren die in de huidige situatie feitelijk ook niet aanwezig zijn.
  • Gemeente Asten heeft te maken met veranderde omstandigheden sinds de vaststelling van de Nota Parkeernormen 2016. De gemeente ziet grote opgaves op hen afkomen, zoals klimaatverandering, hittestress, de opgaves en wensen voor behoud van groen, de opgaves op het gebied van hydrologisch neutraal ontwikkelen en de toename van leegstand binnen centrumgebieden, etc. Naast deze grote opgaven verwacht de gemeente de komende jaren enkele grote (her)ontwikkelingen in het centrum. Het is goed denkbaar dat de gemeente daarbij tegen dezelfde problematiek aanloopt. Willen de gemeente grootschalige opgaves en ontwikkelingen in ons centrum mogelijk blijven maken, dan kan de gemeente niet anders dan flexibeler omgaan met het beleid ten aanzien van salderen. 
  • In het centrum wordt de ruimte voor het realiseren van (nieuwe) parkeerplaatsen steeds schaarser. Dit heeft te maken met het toepassen van nieuwe beleidsregels en de (hoge) ambities uit de Toekomstagenda Asten 2030 en het coalitieakkoord. Dit vraagt om maatwerk. 
  • Er is in Nederland een trendbreuk een trendbreuk gaande ten aanzien van parkeren waarbij de auto steeds minder ruimte krijgt. De verwachting is dat de gemeente deze trendbreuk/ontwikkeling meeneemt bij het opstellen van de nieuwe parkeernota in 2024 (parkeernota wordt onderdeel van het nieuwe Gemeentelijk Verkeer en Vervoersplan).

4.3.2.1.5 Conclusie en uitwerking parkeren

Op basis van de Nota Parkeernormen 2016 voldoen de parkeerbalansen van beide ontwikkelingen in beginsel niet. Voor beide ontwikkelingen is het nodig – en realistisch – om de te saneren huidige functies (die onderdeel zijn van het bestemmingsplan) te salderen. De Nota Parkeernormen 2016 geeft hier de ruimte voor middels de afwijkingsbepaling.

Door de huidige functies te salderen voor de herontwikkeling Julianastraat, is er een sluitende parkeerbalans. De herontwikkeling heeft een parkeerbehoefte van 62 parkeerplaatsen en het plan voorziet in minimaal 62 openbare parkeerplaatsen.

Voor het Floraplein is het nodig om de huidige woonwinkel (48 parkeerplaatsen) te salderen evenals de aanwezige detailhandel en woningen (20 parkeerplaatsen). Hiermee ontstaat een overschot van 5 parkeerplaatsen op het Floraplein (104 – 127 + 48 – 20 = 5 parkeerplaatsen). De 42 parkeerplaatsen op het parkeerdek komen in eigendom en beheer van ALDI. Momenteel wordt onderzocht of het wenselijk is om deze parkeerplaatsen na sluitingstijd af te sluiten. De 62 parkeerplaatsen op maaiveld voor de supermarkt blijven in eigendom en beheer van de gemeente Asten.

4.3.2.2 Verkeer

De voorgenomen ruimtelijke ontwikkelingen aan het Floraplein en de Julianastraat/Emmastraat hebben een neutraal op de verkeerssituatie in Asten. Per saldo is er een lichte toename van verkeer (circa 210 mvt/werkdag). Op wegvakniveau zijn er in de autonome situatie en plansituatie geen doorstromingsproblemen. Ten aanzien van kruispunten is er één knelpunt: rotonde Floralaan – Lienderweg. Dit knelpunt voltrekt zich al in de autonome situatie (dus zonder ontwikkelingen aan het Floraplein en Julianastraat/Emmastraat). De voorgenomen ruimtelijke ontwikkelingen zorgen voor een verwaarloosbare toename van de omvang van het knelpunt op deze rotonde. In absolute zin, overschrijdt de wachtrij(lengte) de gestelde drempelwaarde op deze rotonde in de autonome situatie.

4.3.3 Conclusie

Op basis van voorgaande conclusies worden de volgende aanbevelingen gedaan:

  • Om beide ontwikkelingen mogelijk te maken is het noodzakelijk dat het college van B&W afwijkt van de Nota Parkeernormen 2016 door gebruik te maken van de afwijkingsbevoegdheid als bedoeld in artikel 4:84 Algemene wet bestuursrecht.
  • Geadviseerd wordt om bij het actualiseren van het Gemeentelijk Verkeer en Vervoersplan gemeente Asten te onderzoeken welke maatregelen mogelijk zijn ter verbetering van de doorstroming op en nabij de rotonde Floralaan - Lienderweg.

Met inachtneming van bovenstaande aanbevelingen vormt het aspect verkeer en parkeren geen belemmering voor de ruimtelijke procedure.

4.4 Bedrijven en milieuzonering

4.4.1 Normstelling en beleid

In het kader van een goede ruimtelijke ordening is het van belang dat bij de aanwezigheid van bedrijven in de omgeving van milieugevoelige functies zoals woningen:

  • ter plaatse van de woningen een goed woon- en leefmilieu kan worden gegarandeerd;
  • rekening wordt gehouden met de bedrijfsvoering en milieuruimte van de betreffende bedrijven.

Om de belangenafweging tussen bedrijvigheid en nieuwe woningen in voldoende mate mee te nemen, wordt in dit plan gebruikgemaakt van de VNG-publicatie Bedrijven en milieuzonering (editie 2009). In deze publicatie is een lijst opgenomen waarin de meest voorkomende bedrijven en bedrijfsactiviteiten zijn gerangschikt naar mate van milieubelasting. Voor elke bedrijfsactiviteit is de maximale richtafstand ten opzichte van milieugevoelige functies aangegeven op grond waarvan de categorie-indeling heeft plaatsgevonden. De richtafstanden gelden ten opzichte van het omgevingstype 'rustige woonwijk'. Milieuzonering beperkt zich tot de milieuaspecten met een ruimtelijke dimensie: geluid, geur, gevaar en stof.

Voor het omgevingstype 'gemengd gebied' gelden kleinere afstanden. De richtafstanden gelden voor de aangegeven bedrijfsactiviteiten in het algemeen. Op basis van onderzoek naar de specifieke milieusituatie van een bedrijf kunnen kleinere aan te houden afstanden gerechtvaardigd zijn. Hiermee kan dan onderbouwd worden afgeweken van de richtafstanden indien de specifieke bedrijfsvoering van het betreffende bedrijf daar aanleiding toe geeft.

4.4.2 Toetsing
4.4.2.1 Locatie Floraplein

In de beoogde situatie wordt een nieuwe supermarkt gerealiseerd. In (de directe omgeving van) de locatie Floraplein zijn verschillende bedrijfsfuncties, horeca, detailhandel, maatschappelijke en overige centrumfuncties gevestigd. Hierdoor kan het gebied getypeerd worden als 'gemengd gebied'. In de bestaande planologische situatie is reeds sprake van de bestemming 'Centrum -2', waarbinnen door middel van de aanduiding 'detailhandel volumineus' reeds (volumineuze) detailhandel toegestaan is. Bovendien geldt conform de VNG-publicatie voor supermarkten in een gemengd gebied een aan te houden richtafstand van 0 meter tot gevoelige bestemmingen zoals woningen. Daarmee wordt dus voldaan aan deze richtlijn. In het kader van het maatgevend aspect geluid is in paragraaf 4.7 een nadere onderbouwing toegevoegd.

Omgekeerd beredeneerd valt een supermarkt onder milieucategorie 1 en wordt deze niet getypeerd als eenmilieugevoelige functie. Een dergelijke functie wordt daarom niet belemmerd door bestaande milieubelastende activiteiten.

4.4.2.2 Locatie Julianastraat

Conform beschreven in paragraaf 1.3.2.2 zijn in het geldend bestemmingsplan diverse gemengde functies toegestaan; horeca (tot een vloeroppervlak van max 440 m2), wonen, zorgwonen, kantoor zonder baliefunctie, maatschappelijk en detailhandel (tot een BVO van maximaal 1.452 m2. Ook zijn in de directe omgeving van het plangebied, conform de geldende bestemmingsplannen en conform de feitelijke situatie, verschillende centrumfuncties gecombineerd met een bestaande woonfunctie, planologisch toegestaan en aanwezig. Hierdoor kan het plangebied en de directe omgeving getypeerd worden als 'gemengd gebied'.

In de beoogde situatie worden nieuwe woningen gerealiseerd in het gebied waar momenteel het parkeerterrein en de ALDI-supermarkt zijn gesitueerd. Voor de nieuwbouw wordt de bestemming 'Wonen' aan het gebied toegekend. Voor de bestaande en de te handhaven bebouwing aan de Julianastraat en Emmastraat wordt zoveel als mogelijk aangesloten bij de bestaande gebruiks- en bouwregels uit het geldend bestemmingsplan, waarbij de bestemming 'Gemengd' wordt toegekend.

Voor deze functies geldt een richtafstand van 0 meter in gemengd gebied waar vanzelfsprekend aan wordt voldaan. Ten aanzien van de functie horeca is bepaald dat deze via dit bestemmingsplan komt te vervallen. Toetsing in het kader van milieuzonering voor die functie is daarom niet noodzakelijk. Daarnaast wordt ten aanzien van de functie detailhandel het maximale oppervlak verkleind. Voor deze functies geldt een richtafstand van 0 meter in gemengd gebied waar in alle gevallen (vanzelfsprekend) aan wordt voldaan.

Ook de omliggende centrumfuncties buiten het plangebied kennen een aan te houden afstand van 0 meter in gemengd gebied. Daarmee wordt dus voldaan aan de richtafstanden en is nader onderzoek niet nodig.

Hiermee kan gesteld worden dat er geen bedrijven in de omgeving aanwezig en/of planologisch toegestaan zijn die van invloed zijn op het woon- en leefklimaat van de te handhaven en de nieuwe woningen binnen het plangebied. Omgekeerd geldt tevens dat de functies die in dit bestemmingsplan mogelijk worden gemaakt geen belemmeringen opleveren voor bedrijfsfuncties in de omgeving van het plangebied.

4.4.3 Conclusie

Het aspect bedrijven en milieuzonering vormt geen belemmering voor de beoogde ontwikkeling.

4.5 Archeologie

4.5.1 Normstelling en beleid

Erfgoedwet

In Europees verband is het zogenaamde ‘Verdrag van Malta’ tot stand gekomen. De uitgangspunten van dit verdrag dienen te worden vertaald in nationale wetgeving. In Nederland heeft deze vertaling plaatsgevonden in de Erfgoedwet, welke in werking is getreden op 1 juli 2016. Ten aanzien van het aspect ‘archeologie’ is in art. 9.1, lid 1 van de Erfgoedwet, welk artikel een deel van het overgangsrecht regelt, bepaalt dat tot het tijdstip waarop de Omgevingswet in werking treedt onder meer Hoofdstuk V, paragraaf 1 van de inmiddels vervallen Monumentenwet 1988 van toepassing blijft. In Hoofdstuk V, paragraaf 1 is vastgelegd dat een gemeente in de ruimtelijke besluitvorming (w.o. bestemmingsplannen en omgevingsvergunningen voor planologisch afwijken) rekening dient te houden met de in de grond aanwezige dan wel te verwachten monumenten (artt. 38a t/m 41 Monw 1988). Daartoe kan de gemeente in dat besluit regels stellen, bijvoorbeeld tot het doen van archeologisch onderzoek. Het al dan niet stellen van regels ten aanzien van archeologie dient te rusten op voldoende informatie over de archeologische situatie (ECLI:NL:RVS:2011:BU7102, r.o. 2.9.7). Deze informatie kan worden verkregen door gebiedsdekkende kaarten waarop archeologische verwachtingswaarden zichtbaar zijn. Op basis hiervan kan archeologisch beleid worden ontwikkeld.

Archeologiebeleid gemeente Asten

Vanuit de Erfgoedwet heeft de gemeente Asten ervoor gekozen tevens een eigen archeologisch beleid te formuleren. Ter onderbouwing is onderzoek gedaan naar de archeologische waarden binnen de gemeente. Dit heeft geresulteerd in het rapport ‘Gemeentelijke archeologiekaart van Asten 2010’ (Vestigia-rapport V692) en de ‘Nota Archeologiebeleid gemeente Asten’ (ArchAeO rapport-1005). De Nota en de beleidskaart van Asten (vastgesteld door de raad op 6 juni 2011) vormen tezamen de basis van het archeologiebeleid en fungeren als onderlegger en/of beleidsmatige onderbouwing van het bestemmingsplan 'Asten Archeologie 2012'.

4.5.2 Toetsing
4.5.2.1 Locatie Floraplein

Toets archeologiebeleid

Locatie Floraplein ligt conform de archeologische beleidskaart (figuur 4.1) in categorie 5. Dit zijn gebieden met een middelhoge verwachtingswaarde (WR-Amh), waarbij een onderzoeksplicht geldt bij een bodemverstoring van meer dan 40 centimeter en/of een verstoringsoppervlak van meer dan 2.500 m2.

afbeelding "i_NL.IMRO.0743.BP02023003-OW01_0031.png"

Figuur 4.1 Archeologische beleidskaart met aanduiding plangebied locatie Floraplein (Bron: ArchAeO)

Archeologisch bureauonderzoek

In het kader van de ontwikkelingen op de locatie Floraplein is een archeologisch bureauonderzoek uitgevoerd, opgenomen als bijlage 6.

Op basis van de landschappelijke, archeologische en historische gegevens geldt er een middelhoge tot lage verwachting voor het Laat-Paleolithicum en Mesolithicum en een hoge verwachting voor het Neolithicum tot en met de Late-Middeleeuwen. Voor de Nieuwe tijd geldt op basis van de historische kaarten een lage verwachting. Gezien de in dit onderzoek opgestelde archeologische verwachting is binnen het plangebied vervolgonderzoek noodzakelijk om deze te toetsen.

Het zuiden van het plangebied is momenteel in gebruik als parkeerplaats. Op basis van de AHN lijkt dit deel van het plangebied te zijn geëgaliseerd. Het zuidelijke deel van het Floraplein, het parkeerterrein, maakt vooralsnog geen onderdeel uit van het plangebied van dit bestemmingsplan en zal ook in de toekomst als parkeerplaats in gebruik blijven.

Het is echter mogelijk (grote kans) dat hier waterhuishoudkundige maatregelen getroffen moeten worden, waarvoor alsnog bodemingrepen zullen plaatsvinden. Hierbij wordt geadviseerd om ter plaatse van de parkeerplaats een verkennend booronderzoek uit te voeren. Verspreid in het plangebied dienen boringen te worden gezet met een om inzicht te krijgen in de toestand van het bodemprofiel, en om na te gaan of het terrein daadwerkelijk is geëgaliseerd. Ook dient gekeken te worden naar de aanwezigheid van mogelijke vegetatieen/of cultuurlagen, die zichtbaar zijn als bodemverkleuringen. Door middel van het verkennend booronderzoek dient te worden vastgesteld of er binnen het plangebied archeologische resten in situ te verwachten zijn.

In het noorden van het plangebied bevindt zich het huidige winkelpand. De funderingen en poeren van dit pand zijn aangelegd tot 80 centimeter onder het maaiveld, maar er zijn geen grote en diepgaande kelders onder de bebouwing aanwezig. Tussen de funderingen en poeren kunnen mogelijk nog archeologische waarden in situ aanwezig zijn. De geplande nieuwbouw zal grotendeels worden aangelegd op de huidige funderingen. Er zullen volgens de huidige plannen geen nieuwe funderingen worden aangelegd. Er zullen aan de zijkanten echter nog aanvullende stroken worden bebouwd. De oppervlakte van deze stroken bedraagt in totaal circa 175 m2.

In het noorden van het plangebied, onder de bebouwing, wordt geadviseerd gebruik te maken van een dubbelbestemming archeologie waarbij de mogelijke archeologische waarden in situ worden bewaard. Hiertoe dienen beschermende regels in het bestemmingsplan te worden opgenomen. Indien de plannen zullen worden aangepast, en er voor de nieuwbouw toch bodemroerende graafwerkzaamheden (dieper dan 40 centimeter) zullen plaatsvinden, is vervolgonderzoek noodzakelijk. Het vervolgonderzoek kan het beste worden uitgevoerd in de vorm van een verkennend booronderzoek, om een inzicht te krijgen in mogelijke verstoringen van het bodemprofiel (veroorzaakt door de bebouwing en/of egalisatie) en om vast te stellen op welke diepte eventueel aanwezige archeologische resten te verwachten zijn.

In de regels van dit bestemmingsplan is voor deze gronden de dubbelbestemming 'Waarde - Archeologie 3' opgenomen om de eventueel aanwezige archeologische waarden te beschermen.

4.5.2.2 Locatie Julianastraat

Toets archeologiebeleid

Locatie Julianastraat kent twee categorieën conform de archeologische beleidskaart (figuur 4.2), namelijk categorie 3 (noordelijk gedeelte) en categorie 5 (zuidelijk gedeelte).

Voor gebieden in categorie 3, welke ook voor een groot gedeelte voor het centrum van toepassing is, geldt een onderzoeksplicht bij bodemingrepen van meer dan 40 centimeter en/of een verstoringsoppervlak van meer dan 250 m2. Voor gebieden in categorie 5 geldt, welke ook van toepassing is bij locatie Floraplein, een onderzoeksplicht bij een bodemverstoring van meer dan 40 centimeter en/of een verstoringsoppervlak van meer dan 2.500 m2.

afbeelding "i_NL.IMRO.0743.BP02023003-OW01_0032.png"

Figuur 4.2: Archeologische beleidskaart met aanduiding plangebied locatie Julianastraat (Bron: ArchAeO)

Archeologisch bureauonderzoek

In het kader van de ontwikkelingen op de locatie Julianastraat is een archeologisch bureauonderzoek uitgevoerd, opgenomen als bijlage 7.

Op basis van de landschappelijke, archeologische en historische gegevens geldt er een lage verwachting voor het Laat-Paleolithicum en Mesolithicum en een hoge verwachting voor het Neolithicum tot en met de Nieuwe tijd. Vanwege de ligging in de historische kern met bebouwing geldt met name een hoge verwachting voor de Late-Middeleeuwen en Nieuwe tijd.

Gezien de in dit onderzoek opgestelde archeologische verwachting is binnen het plangebied vervolgonderzoek noodzakelijk om deze te toetsen. Het vervolgonderzoek kan het beste worden uitgevoerd in de vorm van een karterend en waarderend proefsleuvenonderzoek na de bovengrondse sloop van de huidige bebouwing. Omdat archeologische resten voornamelijk in de vorm van grondsporen worden verwacht, is in dit stadium een karterend en waarderend proefsleuvenonderzoek de meest geschikte onderzoeksmethode. Booronderzoeken zijn in historische kernen minder geschikt gezien de grote kans op het voorkomen van puinlagen die aan historische bebouwing toegeschreven kunnen worden. Bij een proefsleuvenonderzoek dienen verspreid over het plangebied sleuven gegraven te worden met als doel om eventuele archeologische waarden te karteren en waarderen. Voor dit onderzoek dient een door de bevoegde overheid goedgekeurd Programma van Eisen te zijn opgesteld waarin is vastgelegd waaraan het onderzoek moet voldoen.

Over de aan- of afwezigheid van archeologische sporen of resten in het plangebied kan nooit volledig uitsluitsel worden gegeven. Aan dit advies kunnen geen rechten worden ontleend. De resultaten van dit onderzoek zullen eerst moeten worden beoordeeld door de bevoegde overheid (gemeente Asten), die vervolgens het advies over neemt of niet.

Als het plangebied nu of in de toekomst door de gemeente Asten wordt vrijgegeven voor bodemroerende werkzaamheden, dan blijft er, volgens artikel 5.10 van de Erfgoedwet uit juli 2016, een meldingsplicht bestaan. Even-tuele archeologische resten die bij werkzaamheden worden aangetroffen moeten worden gemeld bij het Ministerie van Onderwijs, Cultuur en Wetenschap, c.q. de Rijksdienst voor het Cultureel Erfgoed. Het is verder raadzaam om ook de gemeente Asten op de hoogte te stellen.

In dit bestemmingsplan is voor deze gronden de dubbelbestemming 'Waarde - Archeologie 2' opgenomen om de eventueel aanwezige archeologische waarden te beschermen.

4.5.3 Conclusie

Het aspect archeologie vormt geen belemmering voor vaststelling van voorliggend bestemmingsplan. Voor beide locaties is in het kader van de omgevingsvergunning voor bouwen vervolgonderzoek noodzakelijk. Om de eventueel aanwezige archeologische waarden te beschermen zijn in dit bestemmingsplan de dubbelbestemmingen 'Waarde - Archeologie 2' (locatie Julianastraat) en 'Waarde - Archeologie 3' (locatie Floraplein) opgenomen.

4.6 Cultuurhistorie

4.6.1 Normstelling en beleid

Besluit ruimtelijke ordening

Op grond van artikel 3.1.6, vijfde lid, onderdeel a van het Besluit ruimtelijke ordening (Bro) moeten naast de in de grond aanwezige of te verwachten monumenten ook cultuurhistorische waarden worden meegewogen bij het vaststellen van bestemmingsplannen.

Cultuurhistorische waardenkaart (CHW)

De 'Cultuurhistorische waardenkaart' (vastgesteld 26 september 2006) van de provincie Noord-Brabant vormt het kader voor het inhoudelijke cultuurhistorische beleid met behulp waarvan dat beleid getoetst en ontwikkeld kan worden. Deze kaart is een doorvertaling van de Interim omgevingsverordening (zie paragraaf 3.3.2). Op de cultuurhistorische waardenkaart zijn meerdere aanduidingen opgenomen (historische bouwkunst, historische stedenbouw, historische geografie (lijnen en vlakken), historische groenstructuren, historische zichtrelaties, archeologische monumenten en indicatieve archeologische waarden).

4.6.2 Toetsing

Cultuurhistorische Waardenkaart

Conform de Cultuurhistorische Waardenkaart van de provincie Noord Brabant (figuur 4.3) bevat de locatie Julianastraat de aanduiding 'archeologische monumenten', welke voor het gehele centrumgebied van Asten van toepassing is. Het thema archeologie is verankerd in het archeologisch beleid van de gemeente Asten. Dit thema komt verder aan bod in paragraaf 4.5 van voorliggend bestemmingsplan.

afbeelding "i_NL.IMRO.0743.BP02023003-OW01_0033.png"

Figuur 4.3 Cultuurhistorisch Waardenkaart met aanduiding plangebied (Bron: Provincie Noord-Brabant)

De straten Margrietstraat / Logtenstraat (nabij locatie Floraplein) en de Julianastraat / Emmastraat (nabij locatie Julianastraat) kennen conform de waardenkaart een redelijk hoge waarde wat betreft het thema historische geografie. Het gaat om oude lintstructuur die nog aanwezig en bepalend is voor de structuur van het dorp.

Bij het ontwerp en de realisatie van de nieuwe ontwikkeling zullen historische (lijn)elementen behouden blijven en (zichtlijnen naar) de omliggende bebouwing niet worden aangetast. Beide bouwplannen zijn opgezet vanuit de reeds bestaande rooilijnen en bebouwingscontouren en met respect voor de cultuurhistorische structuur.

Gemeentelijke monumenten

In de directe omgeving van de Julianastraat zijn een aantal panden aangeduid als gemeentelijk monument. Het gaat om de locaties Emmastraat 35, 37/39 en Hemel 2. Zoals beschreven in paragraaf 2.2.3 en het als bijlage 1 bij de regels opgenomen beeldkwaliteitsplan wordt de beoogde ontwikkeling vanuit eenzelfde sfeer (aard/omvang, bouwhoogte, afstand en behoud van zichtlijnen) als de bebouwing in de directe omgeving opgezet. Bestaande historische elementen zullen hiermee niet worden aangetast, hetgeen ook nader beschreven is in bijlage 1 van de regels van dit bestemmingsplan. Er zal daarmee op een acceptabele manier rekening gehouden worden met omliggende cultuurhistorische waarden.

4.6.3 Conclusie

Het aspect cultuurhistorie vormt geen belemmering voor de beoogde ontwikkeling.

4.7 Geluid

4.7.1 Normstelling en beleid (algemeen)

De Wet geluidhinder en het Activiteitenbesluit vormen het wettelijk kader voor de beoordeling van geluid voor wegen, windturbines en bedrijven. In de Wet geluidhinder zijn normen voor wegverkeerslawaai, railverkeerslawaai en industrielawaai (industrieterreinen) opgenomen. In het Activiteitenbesluit zijn normen voor individuele inrichtingen en windturbines opgenomen. Daarnaast heeft de gemeente nog beleid ten aanzien van evenementen.

4.7.2 Wegverkeerslawaai
4.7.2.1 Locatie Floraplein

De ontwikkeling maakt geen nieuwe geluidgevoelige functies mogelijk. Akoestisch onderzoek naar wegverkeerslawaai kan daardoor achterwege worden gelaten.

In het kader van een goede ruimtelijke ordening is wel het uitstralingseffect van de verkeerstoename beoordeeld. Op basis van de berekende verkeerstoename als gevolg van de ontwikkeling en de verdeling daarvan over het wegennet en gegevens uit het verkeersmodel (gegevens 2030) is bepaald dat voor de relevante wegen geen sprake zal zijn van een verkeertoename van meer dan 25% ten opzichte van de autonome situatie. Bij een toename van >25% is er namelijk pas een significant effect op de geluidsbelasting. Zodoende zal als gevolg van de ontwikkeling ook geen sprake zijn van een significante geluidtoename langs deze wegen. Het aspect wegverkeerslawaai staat de ontwikkeling niet in de weg.

4.7.2.2 Locatie Julianastraat

Ten aanzien van de woningbouwontwikkeling aan de Julianastraat is een akoestisch onderzoek wegverkeerslawaai uitgevoerd. De bijbehorende rapportage is opgenomen als bijlage 8 van voorliggend bestemmingsplan. Hierna wordt volstaan met een beknopte samenvatting.

Wet geluidhinder

Uit het onderzoek blijkt dat als gevolg van het wegverkeer vanwege de Emmastraat ten hoogste 60 dB wordt berekend ter plaatse van woonblok B. De voorkeursgrenswaarde van 48 dB wordt hiermee ruimschoots overschreden. Het aanvragen van hogere grenswaarden is derhalve noodzakelijk.

Het treffen van geluidreducerende maatregelen is vanuit financieel-, stedenbouwkundig- en verkeerskundig oogpunt niet als reële maatregel te stellen. De gemeente Asten dient hiervoor hogere grenswaarden aan te vragen voor woonblok B. De hoogste waarde betreft 60 dB. In artikel 6.5.2 van de regels van voorliggend bestemmingsplan is hiervoor een voorwaardelijke verplichting opgenomen.

Bouwbesluit 2012

Voor de geveldelen van woonblok B waar sprake is van een geluidbelasting van > 53 dB (excl. aftrek art. 110g Wgh) als gevolg van de Emmastraat dient een aanvullend onderzoek naar de geluidwering van de gevels uitgevoerd te worden. Middels dit onderzoek dient per gevel bepaald te worden of mogelijk aanvullende isolerende maatregelen toegepast dienen te worden om aan het Bouwbesluit 2012 te kunnen voldoen.

Ruimtelijke ordening

Woonblok A

Als gevolg van alle omliggende wegen bedraagt de cumulatieve geluidbelasting ter plaatse van woonblok A tussen de 33 - 39 dB (excl. aftrek). Op grond van tabel 3.1 is dit te kwalificeren als een zeer goed woon- en leefklimaat. Hiermee is een acceptabel woon- en leefklimaat gewaarborgd.

Woonblok B

Als gevolg van alle omliggende wegen bedraagt de cumulatieve geluidbelasting ter plaatse van woonblok B tussen de 60 - 65 dB (excl. aftrek) ter plaatse van de aan de Emmastraat gelegen gevel. Op grond van tabel 3.1 is dit te kwalificeren als een slecht woon- en leefklimaat. Ter plaatse van de achtergevel bedraagt de cumulatieve geluidbelasting 36 – 41 dB (excl. aftrek). Op grond van tabel 3.1 is dit te kwalificeren als een zeer goed woon- en leefklimaat. Middels het aanvullende akoestisch onderzoek voor de geluidwering van de uitwendige scheidingsconstructies dient te worden aangetoond dat een acceptabel binnenniveau gewaarborgd kan worden. Daarnaast wordt opgemerkt dat aan de zuid(west)gevel een geluidluwe gevel aanwezig is.

Woonblok C

Als gevolg van alle omliggende wegen bedraagt de cumulatieve geluidbelasting ter plaatse van woonblok C tussen de 36 - 44 dB (excl. aftrek). Op grond van tabel 3.1 uit het onderzoeksrapport is dit te kwalificeren als een zeer goed woon- en leefklimaat. Hiermee is een acceptabel woon- en leefklimaat gewaarborgd.

4.7.3 Industrielawaai
4.7.3.1 Locatie Floraplein

In het kader van de ontwikkeling op de locatie Floraplein is een akoestisch onderzoek verricht om de geluidbelasting te bepalen die optreedt op de omgeving ten gevolge van de bedrijfsvoering. De bijbehorende rapportage is opgenomen als bijlage 9.

Uit de rekenresultaten blijkt dat het berekende langtijdgemiddeld beoordelingsniveau en de maximale geluidniveaus op enkele woningen/ appartementen niet voldoen aan de voorschriften uit het Activiteitenbesluit milieubeheer. De overschrijding wordt veroorzaakt door het pakken/wegzetten van metalen winkelwagens.

Langtijdgemiddeld beoordelingsniveau/ maximale geluidniveaus

Uit de rekenresultaten blijkt dat ter hoogte van de woningen/appartementen van derden ten hoogste 51 dB(A) voor het LAr,LT in de dagperiode en 69 dB(A) voor de LAmax wordt berekend gedurende de avondperiode. Hiermee wordt gedurende de dagperiode niet voldaan aan de grenswaarde van 50 dB(A) voor het LAr,LT en de 65 dB(A) voor de LAmax gedurende de avondperiode uit het Activiteitenbesluit.

Geluidreducerende maatregelen zijn derhalve noodzakelijk om de overschrijdingen te niet te doen. In onderhavige situatie is het plaatsen van een afschermende voorziening met een hoogte van 2 meter en een lengte van circa 10 meter noodzakelijk om de overschrijdingen te niet te doen. Na het doorvoeren van voornoemde maatregel worden navolgende langtijdgemiddelde beoordelingsniveaus en maximale geluidniveaus berekend ter plaatse van de geluidgevoelige objecten (tabel 4.1).

Tabel 4.1 Berekend LAr, LT en LAmax ter plaatse van gevoelige objecten

afbeelding "i_NL.IMRO.0743.BP02023003-OW01_0034.png"

Uit de rekenresultaten blijkt dat ter hoogte van de woningen/appartementen van derden ten hoogste 50 dB(A) voor het LAr,LT in de dagperiode wordt berekend en 65 dB(A) voor de LAmax wordt berekend gedurende de avondperiode.

Hiermee wordt gedurende de dagperiode voldaan aan de grenswaarde van 50 dB(A) voor het LAr,LT en 65 dB(A) voor de LAmax in de avondperiode uit het Activiteitenbesluit. In figuur 4.4 is een 3D weergave bijgevoegd van de inrichting met daarop (geaccentueerd met gele kleur) de te treffen maatregelen. De te treffen maatregelen zijn geïntegreerd in de bouwkundige tekeningen zoals zijn opgenomen bij de omgevingsvergunningsaanvraag. In artikel 3.4.2 van de regels van voorliggend bestemmingsplan is een voorwaardelijke verplichting is opgenomen voor realisatie en instandhouding van de geluidsmaatregel.

Het gaat hierbij om de realisatie van een geluidsscherm aan de noordoostgevel op het parkeerdek met een hoogte van 2,5 meter. Dit scherm zorgt ervoor dat ter plaatse van de woningen ten noordoosten van de nieuwe winkel aan de geluidsnormen wordt voldaan. Naast het afschermen van geluid zorgt dit scherm er ook voor dat inkijk in de naastgelegen tuinen niet mogelijk is. Dat laatste is gegarandeerd door de hoogte van 2,5 meter boven het niveau van het parkeerdek. De noord-oostgevel (aan de zijde van de tuinen van de woningen aan de Klaproosstraat en Floralaan) wordt aan de buitenzijde afgewerkt met een aluminium profielplaat en aan de binnenzijde (parkeerdek) met houten delen in een dicht systeem. Eventueel kan aan deze gevel isolatiemateriaal ten behoeve van geluidsobsorptie toegevoegd worden. Daarnaast dient op de begane grond, ter hoogte van de winkelwagenstalling, ook een geluidscherm te worden gerealiseerd. Dit scherm krijgt een minimale hoogte van 2 meter en wordt uitgevoerd als transparant scherm met houten delen ervoor.

afbeelding "i_NL.IMRO.0743.BP02023003-OW01_0035.png"

Figuur 4.4 3D-weergave te treffen geluidmaatregelen in de vorm van afschermende voorzieningen, geaccentueerd met gele kleur (Bron: Wematech)

Het aspect industrielawaai vormt daardoor geen belemmering voor de beoogde ontwikkeling.

4.7.3.2 Locatie Julianastraat

De locatie Julianastraat ligt buiten de richtafstanden van bedrijven in de omgeving en er ligt geen gezoneerd industrieterrein of windturbine in de buurt. De geluidsnormen uit het Activiteitenbesluit zullen niet worden overschreden. Industrielawaai vormt geen belemmering voor het plan.

4.7.4 Railverkeerslawaai

Beide locaties binnen het plangebied liggen niet binnen de geluidzone van een spoorweg. Railverkeerslawaai vormt geen belemmering voor de plannen.

4.7.5 Conclusie

Het aspect geluid vormt, met in acht name van de in dit bestemmingsplan opgenomen regels, geen belemmering voor de beoogde ontwikkeling.

4.8 Externe veiligheid

4.8.1 Normstelling en beleid

In de huidige wetgeving zijn de begrippen risicobron, (beperkt) kwetsbaar object, plaatsgebonden risico (PR)  en groepsrisico van belang. Het plaatsgebonden risico (PR) is een maat voor de kans per jaar dat één persoon die zich onafgebroken en onbeschermd op die plaats bevindt, overlijdt als rechtstreeks gevolg van een calamiteit met een gevaarlijke stof. Het groepsrisico GR is de kans per jaar dat een groep personen van een bepaalde grootte tegelijk slachtoffer wordt van een ongeval met gevaarlijke stoffen.

Risicovolle inrichtingen

Het Besluit externe veiligheid inrichtingen (hierna: Bevi) is van toepassing op het externe veiligheidsbeleid rondom risicovolle inrichtingen. Op basis van het Bevi geldt voor het PR rondom een risicovolle inrichting een grenswaarde voor kwetsbare objecten en een richtwaarde voor beperkt kwetsbare objecten. Beide liggen op een niveau van 10-6 per jaar, bij een ruimtelijke ontwikkeling moet aan deze normen worden voldaan. Het Bevi bevat geen grenswaarde voor het groepsrisico, maar wel geldt hiervoor een verantwoordingsplicht in het invloedsgebied rondom de inrichting. De in het externe veiligheidsbeleid gehanteerde norm voor het GR geldt daarbij als oriëntatiewaarde.

Vervoer van gevaarlijke stoffen

Op het vervoer van gevaarlijke stoffen zijn het Besluit externe veiligheid transportroutes (Bevt) en het Basisnet van toepassing; het Bevt vormt de wet- en regelgeving, en de concrete uitwerking volgt in het Basisnet. Het Basisnet is onderverdeeld in drie onderdelen: Basisnet Spoor, Basisnet Weg en Basisnet Water. Het Bevt en het bijbehorende Basisnet maakt bij het PR geen onderscheid in bestaande en nieuwe situaties. Voor beide situaties geldt een grenswaarde voor het PR van 10-6 per jaar ter plaatse van kwetsbare en beperkt kwetsbare objecten en een streefwaarde van 10-6 per jaar. Tevens worden in het Basisnet de plasbrandaandachtsgebieden benoemd voor transportroutes. Hiermee wordt geanticipeerd op de beperkingen voor ruimtelijke ontwikkelingen die samenhangen met deze plasbrandaandachtsgebieden.

Besluit externe veiligheid buisleidingen

In het Besluit externe veiligheid buisleidingen wordt aangesloten bij de risicobenadering uit het Besluit externe veiligheid inrichtingen (Bevi), zodat ook voor buisleidingen normen voor het PR en het GR gelden.

4.8.2 Toetsing

Algemeen

Conform de risicokaart (figuur 4.5) liggen beide locaties niet binnen een plaatsgebonden risico contour (10-6) van een inrichting, (spoor)weg of buisleiding. Daarmee kan gesteld worden dat in de directe omgeving van het plangebied geen vervoer van gevaarlijke stoffen over het water, de weg of door buisleidingen met een externe werking plaatsvindt.

Beide locaties zijn wel gelegen binnen het 4 kilometer brede invloedsgebied van de snelweg A67. Omdat beide locaties verder dan 200 meter verwijderd liggen van de snelweg is rekenkundig onderzoek van het groepsrisico niet noodzakelijk.

afbeelding "i_NL.IMRO.0743.BP02023003-OW01_0036.png"

Figuur 4.5 Uitsnede risicokaart met aanduiding plangebied (Bron: Atlas Leefomgeving)

Bestrijdbaarheid en bereikbaarheid

Voor zowel de bereikbaarheid en bestrijdbaarheid van 'dagelijkse incidenten', zoals brand of wateroverlast, als voor calamiteiten op het gebied van externe veiligheid, is het van belang dat de bereikbaarheid voor de hulpdiensten en bluswatervoorzieningen voldoende geborgd zijn. De bestrijdbaarheid is afhankelijk van de inzetbaarheid van hulpverleningsdiensten. De brandweer moet in staat zijn om hun taken goed uit te kunnen voeren om daarmee verdere escalatie van een incident te voorkomen. Hierbij kan gedacht worden aan het voldoende/adequaat aanwezig zijn van aanvalswegen en bluswatervoorzieningen.

Locatie Floraplein

Deze locatie wordt ontsloten via het Floraplein / Floralaan. Het wegnetwerk biedt vluchtmogelijkheden in verschillende richtingen, waardoor altijd van de bron af kan worden gevlucht. Het gedegen netwerk komt de bestrijdbaarheid ten goede.

Locatie Julianastraat

Deze locatie wordt ontsloten via Julianastraat / Emmastraat. Ook dit gedege wegnetwerk biedt vluchtmogelijkheden in verschillende richtingen, waardoor altijd van de bron af kan worden gevlucht.

Zelfredzaamheid

In de toekomstige situatie zullen woningen gerealiseerd worden. De mogelijk aanwezige kinderen en ouderen worden gezien als verminderd zelfredzame personen. De mogelijkheden voor zelfredzaamheid bestaan globaal uit schuilen en ontvluchten. Als gevolg van een incident met toxische stoffen over het spoor en bij risicovolle inrichtingen geldt dat een toxische wolk zich snel kan ontwikkelen en verplaatsen. Dit effect is vaak niet zichtbaar. Zelfredzaamheid in deze scenario's is alleen mogelijk als er tijdig alarmering plaatsvindt en gebouwen geschikt zijn om enkele uren te schuilen. Denk hierbij aan het sluiten van ramen en deuren en met name het uitschakelen van (mechanische) ventilatiesystemen. Hiermee worden de aanwezigen beschermd tegen de blootstelling aan toxische gassen. Daarnaast dienen, in het kader van effectieve zelfredzaamheid, de gebruikers van de objecten door risicocommunicatie te worden geïnstrueerd over de risico's en de mogelijke maatregelen die zij kunnen nemen. De alarmering van de aanwezigen wordt momenteel nog gerealiseerd middels het waarschuwings- en alarmeringssysteem (WAS). Dit systeem wordt de komende jaren uitgefaseerd. Het waarschuwingssysteem wordt vervangen door een totaal pakket aan alarmeringsmiddelen, waaronder de calamiteitenzenders, de sirenes, crisis.nl, NL-Alert en het gebruik van sociale media.

Besluit externe veiligheid

Conform artikel 7 van het Besluit externe veiligheid transportroutes dient er advies te worden gevraagd bij de Veiligheidsregio over de bereikbaarheid en bestrijdbaarheid en zelfredzaamheid. De Veiligheidsregio Brabant Zuidoost (VRBZO) heeft voor ontwikkelingen op grote afstand van risicobronnen en kleine ontwikkelingen een standaardadvies opgesteld.

VRBZO is in de gelegenheid gebracht voor vooroverleg. De reactie is beschreven in paragraaf 6.2.2, waarin aangegeven is dat verwezen kan worden naar het standaardadvies versie 2.0 d.d. 1-1-2019. Dit advies is bijgevoegd als bijlage 10 en wordt gedurende de planvorming en uitvoering in acht genomen.

4.8.3 Conclusie

Het aspect externe veiligheid vormt geen belemmering voor de beoogde ontwikkeling.

4.9 Luchtkwaliteit

4.9.1 Normstelling en beleid

In het kader van een goede ruimtelijke ordening wordt bij een ruimtelijke ontwikkeling uit het oogpunt van de bescherming van de gezondheid van de mens rekening gehouden met de luchtkwaliteit. Het toetsingskader voor luchtkwaliteit wordt gevormd door hoofdstuk 5, titel 5.2 van de Wet milieubeheer. Dit onderdeel van de Wet milieubeheer (Wm) bevat grenswaarden voor zwaveldioxide, stikstofdioxide en stikstofoxiden, fijn stof, lood, koolmonoxide en benzeen. Hierbij zijn in de ruimtelijke ordeningspraktijk langs wegen vooral de grenswaarden voor stikstofdioxide (jaargemiddelde) en fijn stof (jaar- en daggemiddelde) van belang. De grenswaarden van de laatstgenoemde stoffen zijn in tabel 4.2 weergegeven.

Tabel 4.2 Grenswaarden maatgevende stoffen Wm

Stof   Toetsing van   Grenswaarde  
stikstofdioxide (NO2)   jaargemiddelde concentratie   40 µg/m³  
fijn stof (PM10)   jaargemiddelde concentratie   40 µg/m³  
  24-uurgemiddelde concentratie   max. 35 keer p.j. meer dan 50 µg / m³  
fijn stof (PM2,5)   jaargemiddelde concentratie   25 µg /m³  

Op grond van artikel 5.16 van de Wm kunnen bestuursorganen bevoegdheden die gevolgen kunnen hebben voor de luchtkwaliteit onder andere uitoefenen indien de bevoegdheden/ontwikkelingen niet leiden tot een overschrijding van de grenswaarden of de bevoegdheden/ontwikkelingen niet in betekenende mate bijdragen aan de concentratie in de buitenlucht.

Besluit niet in betekenende mate

In dit Besluit niet in betekenende mate is bepaald in welke gevallen een project vanwege de gevolgen voor de luchtkwaliteit niet aan de grenswaarden hoeft te worden getoetst. Hierbij worden 2 situaties onderscheiden:

  • een project heeft een effect van minder dan 3% van de jaargemiddelde grenswaarde NO2 en PM10 (= 1,2 µg/m³);
  • een project valt in een categorie die is vrijgesteld aan toetsing aan de grenswaarden; deze categorieën betreffen onder andere woningbouw met niet meer dan 1.500 woningen bij één ontsluitingsweg en 3.000 woningen bij twee ontsluitingswegen, kantoorlocaties met een bruto vloeroppervlak van niet meer dan 100.000 m2 bij één ontsluitingsweg en 200.000 m2 bij twee ontsluitingswegen.

In het kader van een goede ruimtelijke ordening wordt bij het opstellen van een ruimtelijk plan uit het oogpunt van de bescherming van de gezondheid van de mens rekening gehouden met de luchtkwaliteit.

4.9.2 Toetsing
4.9.2.1 Locatie Floraplein
4.9.2.1.1 NIBM

Zoals beschreven in paragraaf 4.3 en in het onderzoek verkeer en parkeren zoals bijgevoegd als bijlage 5 neemt met de voorgenomen herontwikkeling van de functies aan het Floraplein de verkeersgeneratie toe van circa 316 motorvoertuigen in de huidige situatie naar circa 1.200 motorvoertuigen per werkdag in de toekomstige situatie. Hierbij is dus sprake van een toename van 881 motorvoertuigen. Per weekdag is sprake van een toename van 663 motorvoertuigen.

Om aan te kunnen tonen dat het planvoornemen Niet In Betekenende Mate bijdraagt aan de verslechting van de luchtkwaliteit, is de NIBM-tool (versie 23-04-2022) ingevuld. De resultaten daarvan zijn opgenomen in figuur 4.6.

afbeelding "i_NL.IMRO.0743.BP02023003-OW01_0037.png"

Figuur 4.6 Resultaten NIBM-tool (Bron: Rijksoverheid, versie 23-04-2022)

Uit de NIBM-tool blijkt dat deze verkeerstoename zorgt voor een toename van het gehalte stikstof in de lucht van 1,04 µg/m³ en van fijn stof van 0,14 µg/m³. De fijnstoftoename blijft onder de 1,2 µg/m³, de grens van 1,2 voor N02 wordt ook niet overschreden. Op basis van de NIBM-tool is daarmee nader onderbouwd dat het valt onder de regeling 'Niet In Betekenende Mate'. Nader onderzoek is daarom niet noodzakelijk.

4.9.2.1.2 Goede ruimtelijke ordening

In het kader van een goede ruimtelijke ordening is een indicatie van de luchtkwaliteit ter plaatse van de locatie Floraplein gegeven. Dit is gedaan aan de hand van het Centraal Instrument Monitoring Luchtkwaliteit. De Floralaan is de maatgevende weg. Uit de tool (figuur 4.7) blijkt dat in 2021 de jaargemiddelde concentraties stikstofdioxide (NO2) en fijn stof (PM10 en PM2,5) langs deze weg ruimschoots onder de grenswaarden lagen. Hierdoor is ter plaatse van de locatie als gevolg van de ontwikkeling (met bijbehorende toename van het benoemde gehalte stikstof en fijnstof in de lucht) sprake van een aanvaardbaar woon- en leefklimaat.

afbeelding "i_NL.IMRO.0743.BP02023003-OW01_0038.png"

Figuur 4.7 Toetspunt en concentraties NO2, PM10 en PM2,5 Floraplein (Bron: Centraal Instrument Monitoring Luchtkwaliteit)

4.9.2.2 Locatie Julianastraat
4.9.2.2.1 NIBM

Zoals beschreven in paragraaf 4.3 en in het onderzoek verkeer en parkeren zoals bijgevoegd als bijlage 5 neemt de verkeersgeneratie af van circa 1.200 motorvoertuigen in de huidige situatie naar circa 240 motorvoertuigen per werkdag in de toekomstige situatie. Hierbij is dus sprake van een afname van 934 motorvoertuigen. Per weekdag is sprake van een afname van 674 motorvoertuigen. Deze afname heeft een positief effect op luchtkwaliteit, waardoor nader onderzoek naar dit aspect niet noodzakelijk is.

4.9.2.2.2 Goede ruimtelijke ordening

In het kader van een goede ruimtelijke ordening is een indicatie van de luchtkwaliteit ter plaatse van de locatie Julianastraat gegeven. Dit is gedaan aan de hand van het Centraal Instrument Monitoring Luchtkwaliteit. De Emmastraat is de maatgevende weg. Uit de tool (figuur 4.8) blijkt dat in 2021 de jaargemiddelde concentraties stikstofdioxide (NO2) en fijn stof (PM10 en PM2,5) langs deze weg ruimschoots onder de grenswaarden lagen. Hierdoor is ter plaatse van het projectgebied als gevolg van de ontwikkeling (met bijbehorende toename van het benoemde gehalte stikstof en fijnstof in de lucht) sprake van een aanvaardbaar woon- en leefklimaat.

afbeelding "i_NL.IMRO.0743.BP02023003-OW01_0039.png"

Figuur 4.8 Toetspunt en concentraties NO2, PM10 en PM2,5 Julianastraat (Bron: Centraal Instrument Monitoring Luchtkwaliteit)

4.9.3 Conclusie

Het aspect luchtkwaliteit vormt geen belemmering voor de beoogde ontwikkeling in het plangebied. Ter plaatse van het plangebied is er sprake van een aanvaardbaar woon- en leefklimaat.

4.10 Kabels en leidingen

4.10.1 Normstelling en beleid

Planologisch relevante leidingen en hoogspanningsverbindingen dienen te worden gewaarborgd. Tevens dient rond dergelijke leidingen rekening te worden gehouden met zones waarbinnen mogelijke beperkingen gelden.

4.10.2 Toetsing en conclusie

Binnen het plangebied en in de directe omgeving zijn geen planologisch relevante buisleidingen, hoogspanningsverbindingen of straalpaden aanwezig. Het aspect kabels en leidingen staat de beoogde ontwikkeling niet in de weg.

4.11 Bodem

4.11.1 Normstelling en beleid

Op grond van het Besluit ruimtelijke ordening dient in verband met de uitvoerbaarheid van een plan rekening gehouden te worden met de bodemgesteldheid in het plangebied. Bij functiewijziging dient te worden bekeken of de bodemkwaliteit voldoende is voor de beoogde functie en moet worden vastgesteld of sprake is van een saneringsnoodzaak. In de Wet bodembescherming is bepaald dat indien de desbetreffende bodemkwaliteit niet voldoet aan de norm voor de beoogde functie, de grond zodanig dient te worden gesaneerd dat zij kan worden gebruikt door de desbetreffende functie (functiegericht saneren). Nieuwe bestemmingen dienen bij voorkeur op schone grond te worden gerealiseerd.

Ten behoeve van ruimtelijke plannen dient ten minste het eerste deel van het verkennend bodemonderzoek, het historisch onderzoek, te worden verricht. Indien uit het historisch onderzoek wordt geconcludeerd dat op de betreffende locatie sprake is geweest van activiteiten met een verhoogd risico op verontreiniging dient een volledig verkennend bodemonderzoek te worden uitgevoerd.

4.11.2 Toetsing
4.11.2.1 Algemeen

In het kader van de beoogde ontwikkelingen zijn voor beide locaties bodemonderzoeken uitgevoerd. Hierna wordt per locatie ingegaan op de belangrijkste resultaten en wordt een doorkijk ten aanzien van de planvorming gegeven.

4.11.2.2 Locatie Floraplein
4.11.2.2.1 Algemeen

Voor deze locatie is een verkennend bodemonderzoek uitgevoerd, opgenomen als bijlge 11. Het doel van het onderzoek was het vaststellen of op de locatie bodemverontreiniging aanwezig is. Het terrein is deels bebouwd. Het onbebouwde terrein is verhard met klinkers.

Aan de hand van de beschikbare historische gegevens is het onderzoek uitgevoerd op basis van de Nederlandse Norm, NEN 5740/A1, met als uitgangspunt een verdachte locatie. De locatie is verdacht vanwege de aanwezigheid van een parkeerplaats.

4.11.2.2.2 Werkzaamheden

Aan de hand van de beschikbare historische gegevens is het onderzoek uitgevoerd conform de onderzoeksstrategie: VED-HE (verdachte (deel)locatie met bekende plaats van diffuse, heterogene bodembelasting).

Het onderzochte terrein heeft een oppervlakte van circa 3.750 m2. Verdeeld over het terrein zijn 15 boringen verricht, te weten:

  • 10 boringen tot 0,5 m-mv;
  • 1 boring tot 0,6 m-mv;
  • 1 boring tot 0,9 m-mv;
  • 2 boringen tot 2,0 m-mv;
  • 1 boring met peilbuis tot 5,0 m-mv.

Er zijn 2 grondmengmonsters van de bovengrond en 1 grondmengmonster van de ondergrond onderzocht op het NEN-grondpakket. Het grondwater is geanalyseerd op het NEN-grondwaterpakket. Aanvullend op bovengenoemde analyses is 1 grondmengmonster van de bovengrond geanalyseerd op PFAS componenten, excl. GenX.

4.11.2.2.3 Resultaten en conclusie

Door middel van het uitgevoerde onderzoek is inzicht verkregen in de milieuhygiënische kwaliteit van de bodem ter plaatse van de onderzoekslocatie.

De grond en het grondwater zijn niet verontreinigd met de geanalyseerde parameters. Uit de resultaten blijjkt dat de onderzochte grond, bij toetsing aan het Handelingskader PFAS (versie 13 december 2021, bij toepassing boven grondwaterniveau), gekwalificeerd kan worden als klasse 'Wonen / Industrie'.

Op basis van de resultaten van het onderzoek wordt geconcludeerd dat de opgestelde hypothese "verdachte locatie" strikt genomen niet juist is gezien er geen verhoogde concentraties (boven de achtergrondwaarde/streefwaarde) van de onderzochte parameters uit het standaard grond en grondwaterpakket zijn aangetroffen.

Op basis van de uitkomsten van het onderzoek hoeven er vanuit milieuhygiënisch oogpunt gezien geen beperkingen te worden gesteld aan de voorgenomen nieuwbouw op locatie. Indien grond afgevoerd dient te worden dient rekening gehouden te worden gehouden met de kwaliteitsklasse voor PFAS in de grond (klasse 'Wonen / Industrie'). Hiermee vormt de milieuhygiënische bodemkwaliteit geen belemmering voor het voorgenomen gebruik en de bestemmingsplanwijziging.

4.11.2.3 Locatie Julianastraat

Met het oog op de beoogde woningbouwontwikkeling aan de Julianastraat is een verkennend en aanvullend bodemonderzoek uitgevoerd. De bijbehorende rapportage is opgenomen als bijlage 12. Hierna wordt ingegaan op de belangrijkste resultaten.

4.11.2.3.1 Verkennend bodemonderzoek

Algemeen beeld onderzoekslocatie

Uit de resultaten van het verkennend onderzoek blijkt dat ter plaatse van een drietal boringen, 101 (traject 0,10-0,50 m-mv), 108 (traject 0,45-0,95 m-mv) en boring 110 (traject: 0,65-1,00 m-mv) sterke verontreinigen met enkele zware metalen zijn aangetroffen. Verder worden op de locatie hooguit nog lichte verontreinigingen met zware metalen, PCB, minerale olie en PAK gemeten. Het grondwater bevat geen van de onderzochte parameters in een gehalte boven de streefwaarde.

OBAS

Op basis van de analyseresultaten van onderhavig verkennend bodemonderzoek kan geconcludeerd worden dat de olieafscheider niet heeft gezorgd voor een verontreiniging van de grond en het grondwater.

Asbest

Tijdens de veldwerkzaamheden is in de bodem een bijmenging met puin waargenomen. Er zijn derhalve twee indicatieve grondmengmonsters samengesteld en geanalyseerd op asbest. Uit de resultaten van de analyse blijkt dat er indicatief geen asbest is aangetoond boven de detectiegrens.

Asfalt

Uit de resultaten van het asfaltonderzoek blijkt dat het gehalte aan PAK in de geanalyseerde mengmonsters lager ligt dan 50 mg/kg d.s. Het asfalt kan derhalve op basis van de gehalten aan PAK worden gekwalificeerd als niet-teerhoudend.

PFAS

Uit de resultaten blijkt dat de onderzochte grond, bij toetsing aan het Handelingskader PFAS (versie 13 december 2021, bij toepassing boven grondwaterniveau), gekwalificeerd kan worden als klasse ‘Landbouw / Natuur’. Op basis van de resultaten van het onderzoek wordt geconcludeerd dat er sprake is van een sterke bodemverontreiniging ter plaatse van boring 101, 108 en 110. Deze boringen bevinden zich ter plaatse van het parkeerterrein aan de achterzijde van de Aldi welke naar alle waarschijnlijkheid voor 1987 is ontwikkeld. Derhalve kunnen de aangetroffen verontreinigingen als historisch beschouwd worden.

4.11.2.3.2 Nader bodemonderzoek (1e en 2e fase)

Boring 101

Op basis van de resultaten van het onderzoek is de sterke verontreiniging met zware metalen (koper, lood en zink) zowel horizontaal als verticaal in kaart gebracht. Hierbij wordt wel opgemerkt dat in de horizontaal afperkende boringen plaatselijk nog matig verhoogde concentraties aan zink zijn aangetroffen.

In het grondwater ter plaatse van peilbuis 101PB zijn geen verontreinigingen aangetroffen.

De sterke verontreiniging is aangetroffen tot een diepte van maximaal 0,6 m-mv. De oppervlakte van de verontreinigingscontour boven de interventiewaarde wordt geraamd op circa 5 m2. De sterke verontreiniging bevindt zich tot een diepte van 0,50 m-mv. Op basis van de analyseresultaten wordt de omvang van de sterke verontreiniging met koper, lood en zink in de grond ingeschat op circa 3 m3.

Boring 108

Op basis van bovenstaande gegevens wordt geconcludeerd dat de verontreiniging met zink verticaal is afgeperkt tot een diepte van maximaal 1,1 m-mv. Horizontaal is de verontreiniging in zuidelijke, zuidwestelijke (boring 108.3, 108.7 en 108.8) en oostelijke (boring 108.6 en 108.7) richting nog niet afgeperkt. Derhalve zijn 9 aanvullende boringen geplaatst (boring 108.9 t/m 108.18). Op basis van de onderzoeksresultaten is de sterke verontreiniging met zink in zuidelijke, zuidwestelijke en zuidoostelijke richting horizontaal afgeperkt. Hierbij dient wel opgemerkt te worden dat in boring 108.18 (zuidwestelijk) nog een matige verontreiniging met zink aanwezig is. Echter, blijkt dat ter plaatse van de horizontaal afperkende boringen 108.9, 108.10 en 108.11 (oostelijk) de verontreiniging met zink nog niet volledig nog niet volledig in kaart is gebracht. In oostelijke richting wordt de verontreiniging begrensd door de perceelgrens. Noordelijk van boring 108.9 en 108.10 is de verontreinigingscontour nog niet vastgesteld. In het grondwater ter plaatse van peilbuis 108PB zijn lichte verontreinigingen met koper en molybdeen aangetroffen.

Om de verdere omvang te bepalen, is een nader onderzoek 3e fase nodig, bestaande uit aanvullendeboringen en analyses. Op basis van de huidige analyseresultaten kan wel gesproken worden van een geval van ernstige bodemverontreiniging. Waarbij de minimale oppervlakte van de verontreinigingscontour geraamd wordt op 154 m2. De sterke verontreiniging bevindt zich in traject van 0,45 tot 0,95 m-mv. Op basis van de analyseresultaten wordt de (minimale) omvang van de sterke verontreiniging met zink in de grond ingeschat op 77 m3. Echter, dient de daadwerkelijke omvang van de verontreiniging nog volledig in kaart gebracht te worden.

Boring 110

Op basis van de analyseresultaten blijkt dat de verontreiniging verticaal is afgeperkt, de sterke verontreiniging bevindt op een diepte van 0,50 tot 1,00 m-mv. Horizontaal is de verontreiniging nog niet volledig afgeperkt. Echter, kan wel gesproken worden over een perceel gebonden afperking, waarbij de verontreinigingscontour zich in alle waarschijnlijk uitbreidt buiten de onderzoekslocatie.

In het grondwater ter plaatse van peilbuis 110PB is een matige verontreiniging met zink en lichte verontreinigingen met barium en koper aangetroffen. Na herbemonstering van peilbuis 110PB blijkt dat de matige verontreiniging met zink, hoogstens licht verontreinigd is aangetoond. Derhalve kan de matige verontreiniging beschouwd worden als een uitbijter. In dit geval wordt verwacht dat er sprake is van een (perceelsgrens overschrijdend) geval van ernstige bodemverontreiniging. De totale omvang (hoeveelheid sterk verontreinigde grond) is echter niet vastgesteld gezien het een perceelsgrensoverschrijdende verontreiniging betreft. De oppervlakte van de verontreiniging (binnen de onderzoekslocatie) boven de interventiewaarde wordt geraamd op circa 38 m2. De sterke verontreiniging bevindt zich in traject van 0,50 tot 1,0 m-mv.

Op basis van de analyseresultaten wordt de omvang van de sterke verontreiniging met zink in de grond ingeschat op 19 m3.

4.11.2.3.3 Conclusie en aanbevelingen

Uit de onderzoeksresultaten blijkt dat er op de locatie sprake is van een (historisch) geval van ernstige bodemverontreiniging met zink, waarbij sprake is van 3 afzonderlijke kernen. Uit de risicobepaling middels sanscrit is geconcludeerd dat er geen sprake is van een spoedeisende saneringsnoodzaak. De grootste verontreinigingskern, rondom boring 108, is nog niet volledig afgeperkt. Nader onderzoek (3e fase) dient te worden uitgevoerd om deze verder (horizontaal) af te perken. Buiten de genoemde verontreinigingskernen is de grond op de locatie niet tot maximaal matig verontreinigd met diverse parameters. Het grondwater is eveneens niet relevant verontreinigd (maximaal licht verontreinigd). Hier zijn geen specifieke maatregelen noodzakelijk in het kader van de voorgenomen graafwerkzaamheden.

Op basis van de bovenstaande conclusies zijn de volgende aanbevelingen gedaan in het kader van de voorgenomen herontwikkeling:

  • Ten behoeve van de ontwikkelingen op de onderzoekslocatie gelden er belemmeringen als gevolg van de aanwezigheid van de sterke verontreinigingen met zink. Ten behoeve van (graaf)werkzaamheden in / met de sterk verontreinigde grond dient vooraf een BUS melding te worden ingediend bij het bevoegd gezag. Hierin dient de omgang met de sterk verontreinigde grond te worden vastgelegd.
  • De (graaf)werkzaamheden binnen de verontreinigingscontouren dienen te worden uitgevoerd door een BRL7000, protocol 7001, gecertificeerde aannemer. De werkzaamheden dienen, afhankelijk van de aard van de werkzaamheden, begeleid te worden conform BRL6000, protocol 6001.
  • Aanbevolen wordt om, voorafgaand aan het opstellen van de BUS melding en het uitvoeren van de (graaf)werkzaamheden, de contour van de verontreinigingskern bij boring 108 nader vast te stellen middels een nader bodemonderzoek (3e fase). In het kader hiervan is in artikel 6.5.4 van de regels van dit bestemmingsplan een voorwaardelijke verplichting opgenomen.
4.11.3 Conclusie

Met in acht name van bovenstaande maatregelen vormt het aspect bodem geen belemmering voor de beoogde ontwikkelingen op de locaties Floraplein en Julianastraat. De uitvoerbaarheid is in voldoende mate aangetoond.

4.12 Geurhinder

4.12.1 Normstelling en beleid

De Wet geurhinder en veehouderij (Wgv) en/of het Activiteitenbesluit vormt het toetsingskader voor de geurhinder vanuit de omliggende veehouderijen. Dat kader stelt normen aan de geurbelasting van veehouderijen op geurgevoelige objecten (alleen intensieve veehouderijen) en stelt minimale afstanden vast van veehouderijen tot geurgevoelige objecten (alle veehouderijen). Daarnaast moet worden beoordeeld of ter plaatse van het nieuwe geurgevoelig object sprake is van een goed woon- en verblijfsklimaat en mag het nieuw geurgevoelig object geen (aanvullende) beperking worden voor de omliggende veehouderijen. De geurbelasting is afkomstig van dieren, waarvoor in de Regeling geurhinder en veehouderij (Rgv) een emissiefactor is vastgesteld (bijvoorbeeld varkens, vleesvee, pluimvee, schapen en geiten). De geurbelasting wordt uitgedrukt in odour units per kubieke meter lucht (OUE/m3). De maximaal toegestane geurbelasting van veehouderijen op geurgevoelige objecten is afhankelijk van de ligging (concentratiegebied of niet-concentratiegebieden en binnen of buiten de bebouwde kom).

Naast geurnormen wordt in de Wgv ook rekening gehouden met (vaste) afstanden van veehouderijen tot geurgevoelige objecten. Bij deze afstanden gaat het om dieren waarvoor in de Rgv geen omrekeningsfactoren zijn vastgesteld (bijvoorbeeld melkrundvee en paarden). De minimaal aan te houden afstand bedraagt 50 meter tot een geurgevoelig object buiten de bebouwde kom en 100 meter tot een geurgevoelig object binnen de bebouwde kom. Deze afstanden gelden ongeacht het aantal dieren dat gehouden wordt. De te toetsen afstand wordt gemeten tussen de buitenzijde van een geurgevoelig object en het dichtstbijzijnde emissiepunt.

4.12.2 Toetsing
4.12.2.1 Locatie Floraplein

De beoogde ontwikkeling aan het Floraplein maakt geen geurgevoelig object mogelijk. De Wet geurhinder en veehouderij (Wgv) is hierop niet van toepassing en wordt derhalve voor deze ontwikkeling buiten beschouwinig gelaten.

4.12.2.2 Locatie Julianastraat

In de beoogde situatie aan de Julianastraat is sprake van een nieuwe woningbouwontwikkeling. Er is hierbij geen sprake van bouwkavels die onderdeel hebben uitgemaakt van het bouwvlak van een veehouderij. Een toetsing aan vaste afstanden van veehouderijen tot geurgevoelige objecten is in dit geval niet aan de orde. De dichtstbijzijnde veehouderij ligt op een afstand van circa 1,5 kilometer. In het kader van een goede ruimtelijke ordening dient te worden ingegaan op de aanvaardbaarheid van het heersende geurniveau ter plaatse.

Figuur 4.8 toont een uitsnede van de achtergrondbelasting geurkaart van de Omgevingsdienst Zuidoost-Brabant. De leefkwaliteit in het gebied is berekend op basis van een concentratiegebied. Het plangebied is echter gelegen in een niet-concentratiegebied. Gezien het geringe aantal veehouderijen en de afstand van het plangebied tot deze veehouderijen, mag worden aangenomen dat ter plaatse van het plangebied een goede kwaliteit van de leefomgeving verwacht.

afbeelding "i_NL.IMRO.0743.BP02023003-OW01_0040.png"

Figuur 4.8 Uitsnede kaart achtergrondbelasting geur (Bron: ODZOB)

4.12.3 Conclusie

Het aspect geur vormt geen belemmering voor de beoogde ontwikkeling.

4.13 Water

4.13.1 Normstelling en beleid
4.13.1.1 Algemeen

Het doel van de watertoets is te waarborgen dat waterhuishoudkundige doelstellingen expliciet en op evenwichtige wijze in beschouwing worden genomen bij alle waterhuishoudkundig relevante plannen en besluiten. Een watertoets maakt de mogelijke negatieve invloeden van het initiatief inzichtelijk. Tevens geeft de watertoets oplossingsrichtingen aan waarmee mogelijk optredende negatieve invloeden beperkt of ongedaan gemaakt kunnen worden. Het plangebied valt onder het beheer van Waterschap Aa en Maas.

De gemeente is verantwoordelijk voor de inzameling en het transport van afvalwater dat afkomstig is van huizen en bedrijven. Huiseigenaren zijn zelf verantwoordelijk voor de aansluiting op het riool. Vanaf dit aansluitpunt neemt de gemeente de verantwoordelijkheid over. De gemeente is ook verantwoordelijk voor de zorg voor het overtollige regenwater en grondwater.

4.13.1.2 Europees en rijksbeleid

Op Europeees Niveau is de Kaderrichtlijn Water van kracht. De Kaderrichtlijn Water (KRW) heeft als doel om de kwaliteit van de Europese wateren te verbeteren ("goede toestand") en die kwaliteit goed te houden.

Het Nationaal Water Programma 2022-2027 is de opvolger van het Nationaal Waterplan 2016-2021. In Nederland liggen grote opgaven voor het waterdomein: Nederland moet zich aanpassen aan de gevolgen van klimaatverandering, we moeten blijven werken aan een goede bescherming tegen overstromingen en aan een klimaatrobuuste zoetwatervoorziening tegen toenemende droogte. Ook de zorg voor goede waterkwaliteit en duurzame drinkwatervoorziening verdient aandacht. Om aan te geven hoe we omgaan met de uitdagingen van ons water, ontwikkelt de Rijksoverheid het Nationaal Water Programma (NWP) 2022-2027. Het programma geeft een overzicht van de ontwikkelingen binnen het waterdomein en legt nieuw ontwikkeld beleid vast. De Rijksoverheid werkt aan schoon, veilig en voldoende water dat klimaatadaptief en toekomstbestendig is. Ook is er aandacht voor de raakvlakken van water met andere sectoren. Het NWP beschrijft de nationale beleids- en beheerdoelen op het gebied van klimaatadaptatie, waterveiligheid, zoetwater & waterverdeling, waterkwaliteit & natuur, scheepvaart en de functies van de rijkswateren.

De Waterwet regelt de leggerplicht voor alle waterstaatswerken. Om goed te functioneren moeten waterstaatswerken voldoen aan de norm uit de legger. De eerste Legger rijkswaterstaatswerken is vastgesteld in 2012. In oktober 2014 is de Legger geactualiseerd. De Legger bestaat uit een formeel besluit en digitale geografische datasystemen. Beheerders, vergunningverleners en toezichthouders zijn de vaste gebruikers van deze Legger, maar de Legger is voor iedereen toegankelijk. In Asten geldt de legger voor de Zuid-Willemsvaart.

4.13.1.3 Regionaal beleid

Op regionaal niveau is de provincie verantwoordelijk voor het beleidsveld water. Vigerend is het Regionaal Water en Bodem Programma 2022-2027. Het PMWP is een kaderstellende nota die op hoofdlijnen weergeeft wat de beleidsdoelen en voorgestelde aanpak zijn. De doelen van het PMWP zijn:

  • Voldoende water voor mens, plant en dier
  • Schone en gezonde leefomgeving (bodem, water en lucht)
  • Bescherming van Brabant tegen overstromingen en externe risico's
  • Verduurzaming van onze grondstoffen-, energie- en voedselvoorziening.

In het Waterbeheerplan 2022-2027 staan de doelen van waterschap Aa en Maas beschreven en hoe zij die doelstellingen gaan halen. De doelen en maatregelen waar het waterschap voor staat en gaat, zijn onderverdeeld in vier programma's:

  • Veilig en bewoonbaar beheergebied: bij dit programma gaat het er om het beheergebied zo goed mogelijk te beschermen tegen overstromingen van de Maas en het regionale watersysteem. Goede dijken om overstromingen vanuit de Maas te voorkomen. Voldoende ruimte voor water om overlast uit het regionale systeem te beperken en een goede calamiteitenorganisatie om als er toch problemen dreigen te ontstaan, zo adequaat mogelijk te kunnen handelen;
  • Voldoende water en robuust watersysteem: dit programma gaat over het zorgen voor een adequate en duurzame watervoorziening in het beheergebied van het waterschap voor de diverse gebruiksfuncties in hun onderlinge samenhang. Dit doet het waterschap door het optimale peil en debiet na te streven in beken, kanalen, sloten én in de ondergrond (voorraadbeheer). Droogteperioden hebben daardoor nu en in de toekomst een zo kort en klein mogelijke impact;
  • Gezond en natuurlijk water: dit programma gaat in op alle activiteiten van het waterschap die bijdragen aan het bereiken van de doelstellingen op het gebied van gezond en natuurlijk water. Ingegaan wordt op hoe toegewerkt wordt naar een watersysteem met een goede waterkwaliteit, dat ecologisch goed functioneert en waar de inwoners en bezoekers van het beheergebied van kunnen genieten;
  • Schoon water: dit programma gaat over de doelen en activiteiten met betrekking tot de afvalwaterketen met daarbinnen een centrale plek voor het zuiveren van afvalwater. Het programma vertoont een grote samenhang met het programma gezond en natuurlijk water. Immers, transporteren en zuiveren van afvalwater is een belangrijke activiteit om tot een gezond en natuurlijk watersysteem te komen.

De Keur Waterschap Aa en Maas 2015 is een aanvulling op regels uit de Waterwet en is van toepassing op de rivieren, beken, sloten, grondwater en waterkeringen die in beheer zijn bij het waterschap, maar ook op alle sloten en watergangen die eigendom zijn van anderen (o.a. gemeenten, agrariërs en tuinders). De voorschriften in de Waterwet en de Keur geven aan wat wel en niet mag en welke plichten er zijn. Denk aan activiteiten zoals het lozen in oppervlaktewater, het onttrekken van grondwater, het dempen van een sloot of het plaatsen van een duiker of brug. Net zoals het Rijk heeft ook het waterschap een legger vastgesteld. De legger geeft het waterschap én derden een overzicht van:

  • Alle aanwezige waterlopen (sloten) en waterkeringen (dijken) inclusief kunstwerken (bijv. stuwen, bruggen, etc.)
  • Wie verantwoordelijk is voor het beheer en onderhoud van sloten en kunstwerken. Dat betekent dat het gaat om de beheertaken en onderhoudsplichten van het waterschap en om de onderhoudsplichten van derden waarop het waterschap toezicht uitoefent
  • Waar de beschermingszone ligt, die noodzakelijk is voor het waterschap om haar beheerstaken te kunnen uitvoeren. Op deze beschermingszone zijn verbodsbepalingen, volgens de keur, van toepassing. Ook is de legger een naslagwerk ten aanzien van waterstaatswerken.

De legger wordt jaarlijks geüpdatet, omdat het watersysteem en de kunstwerken aan verandering onderhevig zijn. Bijvoorbeeld door het afgeven van vergunningen of veranderingen die voortkomen uit projecten. De watertoets bij ruimtelijke ontwikkelingen, waaronder ver- en nieuwbouwplannen vallen, bewaakt de waterkwaliteit en waterkwantiteit. Het doel van een watertoets is de waterbelangen evenwichtig laten meewegen in het planvormingsproces. Hierbij wordt een veilig, gezond en duurzaam watersysteem nagestreefd. Het waterschap hanteert een aantal uitgangspunten bij de watertoets. De desbetreffende uitgangspunten zijn hieronder weergegeven:

  • Voorkomen van vervuiling;
  • Wateroverlastvrij bestemmen;
  • Hydrologisch neutraal ontwikkelen (HNO);
  • Vuil water en hemelwater scheiden;
  • Doorlopen van afwegingsstappen hergebruik > infiltratie > buffering > afvoer;
  • Waterschapsbelangen;
  • Meervoudig ruimtegebruik;
  • Water als kans.

4.13.1.4 Gemeentelijk beleid

De gemeenteraad van de gemeente Asten heeft op 8 december 2020 het ‘Gemeentelijk Rioleringsplan gemeente Asten 2021-2025’ (GRP) vastgesteld. Dit plan bevat zowel het riolerings- als het waterbeleid omdat dit niet los van elkaar kan worden gezien. De gemeente geeft in dit plan aandacht aan de volgende negen speerpunten:

  • 1. Duurzame waterketen;
  • 2. Klimaatbestendige waterketen;
  • 3. Grondwaterhuishouding in balans;
  • 4. Een klimaatbestendig watersysteem;
  • 5. Schoon en gezond water;
  • 6. Water als ordenend principe;
  • 7. Beleefbaar water;
  • 8. Verder professionaliseren waterketen;
  • 9. Samen werken aan water.

Om de strategie bij speerpunt 2 te concretiseren is een handreiking hemelwaterbeleid opgesteld. De handreiking geeft duidelijkheid over te hanteren normen ten aanzien van waterberging. In de handreiking zijn vijf categorieën opgenomen:

  • 1. Bestaand (ongewijzigd): geen extra waterberging wordt vereist.
  • 2. Drukriool buitengebied: hier geldt een algeheel verbod om hemelwater af te voeren op de drukriolering.
  • 3. Nieuwbouw (uitbreiding, inbreiding en bijgebouwen >40 m², herbouw, aanbouw van 90 m² of meer): er dient te worden voorzien in een gescheiden afvoer/verwerking van schoon hemelwater en afvalwater. Voor nieuwbouw vereist de gemeente een waterbergingsvoorziening van 60 mm/m² verhard oppervlak. Ook bij herbouw dient eveneens een waterbergingsvoorziening van 60 mm/m² verhard oppervlak te worden aangebracht op eigen terrein met een minimum van 0,5 m³.
  • 4. Verbouw, aanbouw (tot 90 m²), vrijstaande bijgebouwen (tot 40 m²) bij bestaande gebouwen en woonunits op bouwlocaties: flexibiliteit geven om ruimte voor wateropvang te creëren. De gemeente stimuleert initiatieven van particulieren, bedrijven en instellingen voor duurzame omgang met water.
  • 5. Aanleg van bescheiden riolering: bij rioolverzwaring of rioolvervanging legt de gemeente een separaat hemelwaterriool aan of wordt het hemelwater ter plaatse geborgen en geïnfiltreerd of geloosd op oppervlaktewater.
4.13.2 Toetsing
4.13.2.1 Locatie Floraplein
4.13.2.1.1 Keur Waterschap Aa en Maas 2015

De locatie is niet gelegen in een keurbeschermingsgebied of attentiegebied.

4.13.2.1.2 Beleidsregel Hydrologische uitgangspunten bij de Keurregels voor afvoeren van hemelwater, Brabantse waterschappen

Met deze herontwikkeling vindt geen toename van verhard oppervlak plaats met een omvang van meer dan 500 m². De beleidsregel vanuit de Brabantse waterschappen is dus niet van toepassing op de beoogde ontwikkeling op deze locatie.

4.13.2.1.3 Watertoets

Er is gebruik gemaakt van de watertoets (versie 2022) via dewatertoets.nl. De resultaten daarvan zijn opgenomen als bijlage 13. Uit de digitale watertoets blijkt dat met voorgenomen ontwikkeling geen belangen van het Waterschap worden geschaad.

Verzocht wordt om bij de bouw af te zien van het gebruik van uitlogende bouwmaterialen. Hiermee worden bijvoorbeeld zink en koper in daken, gevels, goten en leidingen bedoeld. Eventueel benodigde vergunningen worden niet met de digitale watertoets geregeld. Voor de verwerking van afvalwater is de gemeente het bevoegd gezag. Voor oppervlaktewaterlozing is vaak een watervergunning nodig.

4.13.2.1.4 GRP gemeente Asten 2021-2025

Deze herontwikkeling ziet toe op de herbouw van een bestaand pand ten behoeve van de realisatie van een nieuwe ALDI-supermarkt. Voorzien dient dan ook te worden in een waterbergingsvoorziening van 60 mm/m² verhard oppervlak op eigen terrein met een minimum van 0,5 m³. De volgende formule is op basis van het GRP van toepassing:

Benodigde compensatie (in m3) = Aan te leggen verhard oppervlak (in m2) * 0,06 (in m).

In de bestaande situatie kan worden uitgegaan van de oppervlaktes zoals weergegeven in figuur 4.9. De bebouwing bedraagt 1.832 m2 en het overig verhard oppervlak bedraagt 2.077 m2.

afbeelding "i_NL.IMRO.0743.BP02023003-OW01_0041.png"

Figuur 4.9 Verhard oppervlak bestaande situatie (Bron: KAW)

In de toekomstige situatie heeft de bebouwing een oppervlak van 2.108 m2, waarvan 324 m2 wordt uitgevoerd met een groen sedum dak. De overige verharding in de toekomstige situatie komt uit op 1.873 m2, waarvan 232 m2 wordt uitgevoerd middels halfverharding. Het verhard oppervlak van de toekomstige situatie is weergegeven in figuur 4.10.

afbeelding "i_NL.IMRO.0743.BP02023003-OW01_0042.png"

Figuur 4.10 Verhard oppervlak toekomstige situatie (Bron: KAW)

De gemiddelde hoogste grondwaterstand (GHG) ligt bij deze locatie op 24,0 m+NAP.

Het dakoppervlak komt in de toekomstige situatie uit op 2.108m2 – 324m2 (sedum dak) = 1.784 m2. De overige verharding binnen deze planlocatie komt uit op 1.873 m2 - 232 m2 * 42% (bv. NCB-klinker op funderingssubstraat) = 1.776 m2. Op basis hiervan komt de benodigde waterberging uit op (1.784 m2 + 1.776m2) * 0,06 = 213,6 m3 waterberging. In paragraaf 4.13.2.1.5 wordt hier nader op in gegaan.

4.13.2.1.5 Hemelwaterafvoer na herontwikkeling

Opgave en eisen

Er dient met dit plan voor deze locatie aan het Floraplein rekening te worden gehouden met een bergingscapaciteit van circa 213,6 m3. Niet kan worden voorzien in berging binnen de grenzen van het plangebied, maar echter wel ter plaatse van het parkeerterrein aan de voorzijde van de toekomstige supermarkt (exploitatiegebied zoals beschreven in paragraaf 1.2.2). In het kader hiervan is in artikel 10.4 de algemene bouwregel opgenomen dat bij nieuw-, her- of verbouw of wijziging van gebruik (zoals in onderhavige situatie het geval is) voldaan moet worden aan de eien uit het geldende Gemeentelijk Rioleringsplan (GRP).

Eisen aan een waterbergingsvoorziening zijn:

  • Controleerbaar op werking (dus zichtbaar of toegankelijk).
  • Mogelijkheid tot reinigen, inspectie en onderhoud.
  • De afvoer uit een voorziening naar oppervlaktewater of riolering mag maximaal 2 liter per seconde per hectare zijn (conform beleid van het waterschap).
  • De voorziening moet binnen 5 dagen leeggelopen zijn (bij maximaal 2 mm neerslag per etmaal) door afvoer en/of infiltratie in de bodem.
  • De bodem van de voorziening ligt boven de gemiddelde hoogste grondwaterstand (GHG).
  • De verwerking van het hemelwater moet altijd zodanig ontworpen worden dat het bijdraagt aan het verminderen van piekafvoeren en niet leidt tot wateroverlast.
  • De waterbergingsvoorziening moet 60 mm per m2 verhard oppervlak (verharding en dak) kunnen bergen, oftewel 60 liter per m2 verhard oppervlak. Hierbij worden groene daken niet gezien als verhard oppervlak en half verharding wordt wel gezien als verhard oppervlak, tenzij aangetoond wordt (incl. aanleg- en onderhoudsvereisten) dat de half verharding ook op de lange termijn gedeeltelijk als onverhard functioneert.
  • Het aan te leggen systeem dient te worden getoetst op geen water op straat bij bui08 (Stichting RIONED) in bestaande situaties; en 20cm waking bij bui09 en geen waterschade bij de standaard neerslaggebeurtenissen voor de stresstest (T=100, 70mm in 1 uur, T=250, 90mm in 1 uur en T=1000, 160mm in 2 uur) in nieuwe situaties.
  • De aanwezigheid van een overloopvoorziening (indien mogelijk bovengronds) voor de afvoer van water bij hevige buien als de voorziening vol is, is zo ontworpen dat deze wateroverlast voorkomt.
  • Bij grootschalige ontwikkelingen dient een collectieve voorziening in de openbare ruimte gerealiseerd te worden.

Uitwerking

Ter plaatse van het (binnen de geldende bestemming) her in te richten parkeerterrein zal een ondergrondse infiltratievoorziening worden gerealiseerd. Deze voorziening zal bestaan uit een betonnen infiltratieriool in combinatie met een pakket van lava. Het technische uitwerkingsprincipe is opgenomen in de memo waterberging zoals is opgenomen als bijlage 14 bij voorliggend bestemmingsplan. De infiltratievoorziening heeft een minimale capaciteit van 216 m³. Daarmee wordt dus voldaan aan de waterbergingsopgave en is aangetoond dat de algemene bouwregel uit artikel 10.4 uitvoerbaar is. Bij de omgevingsvergunning voor het bouwen zal hier aan worden getoetst.

4.13.2.1.6 Kwaliteit van te lozen en infiltreren hemelwater

Slechts schoon regenwater mag worden geïnfiltreerd. Om de kwaliteit van het hemelwater te garanderen, dienen onderdelen welke met regenwater in aanraking kunnen komen, te worden vervaardigd of te bestaan uit niet-uitloogbare bouwmaterialen zoals kunststoffen of gecoat staal of aluminium (in plaats van zink, lood of asfalt etcetera). Door het gebruik van niet-uitlogende materialen komen geen verhoogde concentraties verontreinigende stoffen (DuBo-maatregelen) voor in het te infiltreren water. Infiltratie van afgekoppelde verhardingen zoals opritten, parkeerplaatsen en terrassen mag niet verontreinigd zijn met chemische bestrijdingsmiddelen, olie, agressieve reinigingsmiddelen of andere verontreinigende stoffen.

4.13.2.1.7 Afvalwater

De toekomstige supermarkt met een herbruikbare bestaande aansluiting gekoppeld aan de bestaande infrastructuur in de omgeving. Afspraken over de riolering worden vastgelegd in de anterieure overeenkomst tussen initiatiefnemer en de gemeente Asten.

4.13.2.2 Locatie Julianastraat
4.13.2.2.1 Keur Waterschap Aa en Maas 2015

De locatie is niet gelegen in een keurbeschermingsgebied of attentiegebied.

4.13.2.2.2 Beleidsregel Hydrologische uitgangspunten bij de Keurregels voor afvoeren van hemelwater, Brabantse waterschappen

Met deze herontwikkeling vindt geen toename van verhard oppervlak plaats met een omvang van meer dan 500 m². De beleidsregel vanuit de Brabantse waterschappen is dus niet van toepassing op de beoogde ontwikkeling op deze locatie.

4.13.2.2.3 Watertoets

Er is gebruik gemaakt van de watertoets (versie 2022) via dewatertoets.nl. De resultaten daarvan zijn opgenomen als bijlage 15. Uit de digitale watertoets blijkt dat met voorgenomen ontwikkeling geen belangen van het Waterschap worden geschaad.

Verzocht wordt om bij de bouw af te zien van het gebruik van uitlogende bouwmaterialen. Hiermee worden bijvoorbeeld zink en koper in daken, gevels, goten en leidingen bedoeld. Eventueel benodigde vergunningen worden niet met de digitale watertoets geregeld. Voor de verwerking van afvalwater is de gemeente het bevoegd gezag. Voor oppervlaktewaterlozing is vaak een watervergunning nodig.

4.13.2.2.4 GRP gemeente Asten 2021-2025

Deze herontwikkeling ziet toe op de her- en nieuwbouw van woningen in het bestaand stedelijk gebied van Asten. Voorzien dient dan ook te worden in een waterbergingsvoorziening van 60 mm/m² verhard oppervlak op eigen terrein met een minimum van 0,5 m³. De volgende formule is op basis van het GRP van toepassing:

Benodigde compensatie (in m3) = Toename verhard oppervlak (in m2) * 0,06 (in m).

Het nieuw gebouwd en herbouwd oppervlak conform het bouwvlak op de de verbeelding van dit bestemmingsplan komt in de toekomstige situatie uit op circa 2.095 m2. Daarnaast wordt de terreinverharding ingeschat op circa 750 m2. De benodigde watercompensatie komt daarmee uit op ( 2.095 + 750 * 0,06) 170,7 m3.

4.13.2.2.5 Hemelwaterafvoer na herontwikkeling

Er dient met dit plan voor deze locatie aan de Julianastraat rekening te worden gehouden met een bergingsopgave van circa 170,7 m³. Bij de bouwaanvraag wordt nader ingegaan op de exacte oppervlakte nieuwe verharding en daarmee de benodigde waterbergingsvoorziening. Binnen het plangebied aan de Julianastraat zijn voldoende mogelijkheden om een waterbergingsvoorziening met een (minimale) capaciteit van 171 m³ te realiseren.

De maaiveldhoogte op deze locatie bedraagt conform het uitgevoerde bodemonderzoek (bijlage 12) 25,5 m+NAP. De gemiddelde hoogste grondwaterstand (GHG) ter plaatse is voldoende diep (24,0 m+NAP). Zowel bovengrondse als ondergrondse voorzieningen, of een combinatie daarvan, zijn hierbij voorstelbaar. In het kader hiervan is in artikel 10.4 de algemene bouwregel opgenomen dat bij nieuw-, her- of verbouw of wijziging van gebruik (zoals in onderhavige situatie het geval is) voldaan moet worden aan de eisen uit het geldende Gemeentelijk Rioleringsplan (GRP). Daarmee is aangetoond dat dit bestemmingsplan uitvoerbaar is.

4.13.2.2.6 Kwaliteit van te lozen en infiltreren hemelwater

Slechts schoon regenwater mag worden geïnfiltreerd. Om de kwaliteit van het hemelwater te garanderen, dienen onderdelen welke met regenwater in aanraking kunnen komen, te worden vervaardigd of te bestaan uit niet-uitloogbare bouwmaterialen zoals kunststoffen of gecoat staal of aluminium (in plaats van zink, lood of asfalt etcetera). Door het gebruik van niet-uitlogende materialen komen geen verhoogde concentraties verontreinigende stoffen (DuBo-maatregelen) voor in het te infiltreren water. Infiltratie van afgekoppelde verhardingen zoals opritten, parkeerplaatsen en terrassen mag niet verontreinigd zijn met chemische bestrijdingsmiddelen, olie, agressieve reinigingsmiddelen of andere verontreinigende stoffen.

4.13.2.2.7 Afvalwater

De toekomstige woningen met een herbruikbare bestaande aansluiting worden gekoppeld aan de bestaande infrastructuur in de omgeving. Afspraken over de riolering worden vastgelegd in de anterieure overeenkomst tussen initiatiefnemer en de gemeente Asten.

4.13.3 Conclusie

Gelet op het voorgaande vormt het aspect water geen belemmering voor dit planvoornemen. Ten aanzien van de waterhuishouding zijn algemene bouwregels opgenomen op basis waarvan ten alle tijden moet worden voldaan aan de het Gemeentelijke Rioleringsplan (GRP), zie ook artikel 10.4.

4.14 Ecologie

4.14.1 Normstelling en beleid

Bij de voorbereiding van een ruimtelijk plan dient onderzocht te worden of de Wet natuurbescherming (hierna: Wnb) en het beleid van de provincie ten aanzien van de bescherming van dier- en plantensoorten en de bescherming van het Natuurnetwerk Nederland de uitvoering van het plan niet in de weg staan. In elk geval moet aannemelijk zijn dat vergunning of ontheffing van de van de bij of krachtens deze wet geldende verbodsbepalingen kan worden verkregen voor de activiteiten die met dit bestemmingsplan mogelijk worden gemaakt. Dit is anders indien uit de Wnb voortvloeit dat een passende beoordeling moet worden gemaakt. Deze dient te zijn verricht ten tijde van vaststelling van het bestemmingsplan.


Met de Wnb zijn alle bepalingen met betrekking tot de bescherming van natuurgebieden en dier- en plantensoorten samengebracht in één wet. De Wnb implementeert diverse Europeesrechtelijke regelgeving, zoals de Vogelrichtlijn en de Habitatrichtlijn in de Nederlandse wetgeving.


Gebiedsbescherming

De Wnb kent diverse soorten natuurgebieden, te weten:

  • Natura-2000 gebieden;
  • Bijzondere nationale natuurgebieden;
  • Natuurnetwerk Nederland (NNN).


Natura-2000 gebieden

Natura 2000 is de verzamelnaam voor het ecologisch netwerk van Europese natuurgebieden. De bescherming van Natura 2000-gebieden is geregeld in de Wet Natuurbescherming (Wnb), die de implementatie vormt van de Europese Vogelrichtlijn en Habitatrichtlijn. In deze Natura 2000-gebieden wordt een groot aantal dieren, planten en hun natuurlijke leefomgeving beschermd zodat de biodiversiteit (soortenrijkdom) behouden wordt voor de toekomst. Voor elk Natura 2000-gebied zijn instandhoudingsdoelstellingen geformuleerd voor alle beschermde soorten en habitats die daar aanwezig zijn. Als menselijke ontwikkelingen zoals de aanleg van een nieuwe woonwijk (mogelijk) leiden tot aantasting van natuurwaarden binnen een Natura 2000-gebied, moet bij Gedeputeerde Staten van de provincie een ontheffing worden aangevraagd.

Een bestemmingsplan dat afzonderlijk of in combinatie met andere plannen of projecten significante gevolgen kan hebben voor een Natura 2000-gebied, kan uitsluitend vastgesteld worden indien uit een passende beoordeling de zekerheid is verkregen dat het plan, onderscheidenlijk het project de natuurlijke kenmerken van het gebied niet zal aantasten. Indien deze zekerheid niet is verkregen, kan het plan worden vastgesteld, indien wordt voldaan aan de volgende drie voorwaarden:

  • alternatieve oplossingen zijn niet voor handen;
  • het plan is nodig om dwingende redenen van groot openbaar belang, met inbegrip van redenen van sociale of economische aard, en
  • de nodige compenserende maatregelen worden getroffen om te waarborgen dat de algehele samenhang van het Natura 2000-netwerk bewaard blijft.


De bescherming van deze gebieden heeft externe werking, zodat ook ingrepen die buiten deze gebieden plaatsvinden verstoring kunnen veroorzaken en moeten worden getoetst op het effect van de ingreep op soorten en habitats.


Bijzondere nationale natuurgebieden

Buitenom de gebieden die deel uitmaken van het Europese netwerk van natuurgebieden Natura 2000, kunnen ook gebieden als Bijzonder nationaal natuurgebied aangewezen worden wanneer het gebied is opgenomen op een lijst als bedoeld in artikel 4, eerste lid, van de Habitatrichtlijn of het gebied onderwerp is van een procedure als bedoeld in artikel 5 van de Habitatrichtlijn. De beschermende werking die geldt voor gebieden die behoren tot Natura 2000, geldt in dat geval ook voor het bijzondere nationaal natuurgebied.

Natuurnetwerk Nederland (NNN) / Natuurnetwerk Brabant (NNB)

Gebieden die deel uitmaken van het Natuurnetwerk Nederland (NNN) worden aangewezen in de provinciale verordening. De provincie Noord Brabant hanteert daarvoor het begrip Natuurnetwerk Brabant (NNB). Voor dit soort gebieden geldt het 'nee, tenzij' principe, wat inhoudt dat binnen deze gebieden in beginsel geen nieuwe ruimtelijke ontwikkelingen mogen plaatsvinden.

Bomenbeleidsplan

In 1996 is door de gemeente Asten een lijst met markante bomen opgesteld, vastgelegd in de notitie “Beeldbepalende en monumentale bomen” met als doel het voortbestaan van deze bomen juridisch en planologisch veilig te stellen. De lijst bevat zowel bomen in gemeentelijk als particulier eigendom. Op deze lijst staan ook bomen die op de nationale monumentenlijst zijn opgenomen door de Bomenstichting. Deze nota “Beeldbepalende en Monumentale Bomen” is door de gemeenteraad op 24 september 1996 vastgesteld.

De afgelopen jaren is aandacht besteed aan de bescherming van de bomen. Tot op heden is de bescherming juridisch geregeld via de kapverordening en wordt verwezen naar de lijst in artikel 4.5.2 van de APV. De beeldbepalende bomen zijn echter niet planologisch beschermd. Tevens blijken de gehanteerde criteria niet duidelijk en makkelijk hanteerbaar waardoor bepaalde bomen niet op de lijst zijn opgenomen, terwijl deze bomen wel noemenswaardig zijn. Het huidige beleid wordt geactualiseerd met als doel:

  • beschermwaardige bomen in gemeentelijk eigendom planologisch te beschermen;
  • duidelijke criteria waarin onderscheid wordt gemaakt tussen de verschillende categorieën beeldbepalende bomen.

 

Op basis van de nieuwe duidelijke criteria worden binnen de gemeente Asten de volgende categorieën bomen onderscheiden:

  • Monumentale boom: voldoet aan alle basiscriteria en aan specifiek criterium II met betrekking tot monumentale waarden in het bijzonder;
  • Waardevolle boom: voldoet aan alle basiscriteria en aan een van de specifieke criteria waarbij de boom van grote ruimtelijke betekenis is, of hoge ecologische waarden vertegenwoordigt of dendrologisch gezien interessant is;
  • Toekomstboom: de boom heeft qua standplaats en soort de potenties om tenminste uit te groeien tot een waardevolle boom, voldoet aan basiscriterium, één van de specifieke criteria en behoort tot de duurzame boomsoorten.

Bovengenoemde bomen zijn op kaart aangegeven en verwerkt in de lijst beschermwaardige bomen inclusief foto en een kaart van de standplaats. De beschermwaardige bomen worden op de volgende 3 manieren beschermd,

namelijk:

  • Feitelijke bescherming: bijzondere status;
  • Juridische bescherming: opname in het bestemmingsplan (indien het een gemeenteboom betreft) en de APV;
  • Fysieke bescherming: voorschriften voor bescherming tegen fysieke beschadiging.


Soortenbescherming

In de Wnb wordt een onderscheid gemaakt tussen:

  • soorten die worden beschermd in de Vogelrichtlijn;
  • soorten die worden beschermd in de Habitatrichtlijn; en
  • de bescherming van overige soorten.


De Wnb bevat onder andere verbodsbepalingen ten aanzien van het opzettelijk vernielen of beschadigen van nesten, eieren en rustplaatsen van vogels als bedoeld in artikel 1 van de Vogelrichtlijn. Gedeputeerde Staten (hierna: GS) kunnen hiervan ontheffing verlenen en bij verordening kunnen Provinciale Staten (hierna: PS) vrijstelling verlenen van dit verbod. De voorwaarden waaraan voldaan moet worden om ontheffing of vrijstelling te kunnen verlenen zijn opgenomen in de Wnb en vloeien direct voort uit de Vogelrichtlijn. Verder is het verboden in het wild levende dieren van soorten, genoemd in bijlage IV, onderdeel a, bij de Habitatrichtlijn, bijlage II bij het Verdrag van Bern of bijlage I bij het Verdrag van Bonn, in hun natuurlijk verspreidingsgebied opzettelijk te doden of te vangen of te verstoren. GS kunnen hiervan ontheffing verlenen en bij verordening kunnen PS vrijstelling verlenen van dit verbod. De gronden voor verlening van ontheffing of vrijstelling zijn opgenomen in de Wnb en vloeien direct voort uit de Habitatrichtlijn.


Ten slotte is een verbodsbepaling opgenomen voor overige soorten. Deze soorten zijn opgenomen in de bijlage onder de onderdelen A en B bij de Wnb. De provincie kan ontheffing verlenen van deze verboden. Verder kan bij provinciale verordening vrijstelling worden verleend van de verboden. De noodzaak tot ontheffing of vrijstelling kan hierbij ook verband houden met handelingen in het kader van de ruimtelijke inrichting of ontwikkeling van gebieden.


Uitwerking Verordening uitvoering Wet natuurbescherming Noord-Brabant

In de provincie Noord-Brabant wordt vrijstelling verleend voor het weiden van vee, voor het op of in de bodem brengen van meststoffen en voor agrarische beregening uit grondwater. In het kader van de ruimtelijke inrichting of ontwikkeling van gebieden, daaronder begrepen het daarop volgende gebruik van het ingerichte of ontwikkelde gebied, bestendig beheer of onderhoud in de landbouw of bosbouw, bestendig beheer of onderhoud aan vaarwegen, watergangen, waterkeringen, waterstaatswerken, oevers, vliegvelden, wegen, spoorwegen of bermen, of natuurbeheer, of bestendig beheer of onderhoud van de landschappelijke kwaliteiten van een bepaald gebied worden vrijstellingen verleend ten aanzien van de soorten genoemd in bijlage 3 bij deze verordening. Het betreft aardmuis, bastaardkikker, bosmuis, bruine kikker, dwergmuis, dwergspitsmuis, egel, gewone bosspitsmuis, gewone pad, haas, huisspitsmuis, kleine watersalamander, konijn, meerkikker, ondergrondse woelmuis, ree, rosse woelmuis, tweekleurige bosspitsmuis, veldmuis, vos, wild zwijn en woelrat.

4.14.2 Toetsing
4.14.2.1 Gebiedsbescherming
4.14.2.1.1 Natura 2000

De afstand van beide locaties tot aan het dichtstbijzijnde Natura-2000 gebied bedraagt circa 5,6 kilometer. Dit betreft het Natura-2000 gebied Groote Peel. Overige Natura-2000 gebieden in de omgeving van het plangebied zijn weergegeven op de kaart in figuur 4.11. Voor beide ontwikkelingen is aan de hand van het programma AERIUS-calculator een stikstofonderzoek uitgevoerd, opgenomen als bijlage 16 (locatie Floraplein) en 17 (locatie Julianastraat).

afbeelding "i_NL.IMRO.0743.BP02023003-OW01_0043.png"

Figuur 4.11 Ligging plangebied ten opzichte van Natura-2000 gebieden in de omgeving (Bron: AERIUS)

Uit de onderzoeken blijkt dat er in de aanleg- en de gebruiksfases geen stikstofdepositie plaatsvindt groter dan 0,00 mol/ha per jaar op een Natura 2000-gebied. Bovenstaande toont aan dat er geen nadelige invloed zal plaatsvinden op de beschermde flora en fauna en dat voldaan wordt aan de Wet natuurbescherming en dat de natuur en zijn habitat niet wordt geschaad.

4.14.2.1.2 Natuurnetwerk Nederland

Het plangebied maakt geen deel uit van het Nationaal Natuurnetwerk. Het dichtstbijzijnde onderdeel van Natuurnetwerk Nederland bevindt zich op circa 950 meter ten zuidoosten van het plangebied.

4.14.2.1.3 Houtopstanden

Locatie Floraplein

Ten aanzien van de ontwikkelingen op locatie Floraplein is een Boom Effect Analyse (hierna: BEA) opgesteld, opgenomen als bijlage 18. De BEA dient inzicht te geven in de vraag of de betreffende bomen binnen het project in de huidige verschijningsvorm en op de huidige standplaats duurzaam kunnen worden behouden en welke projectaanpassingen, gerichte (beschermings-)maatregelen en randvoorwaarden hiervoor noodzakelijk zijn.

Uit de BEA blijkt dat enkele bomen niet duurzaam te behouden zijn en dienen te wijken voor de nieuwe inrichting. Deze bomen hebben conditionele en structurele problemen waardoor kap en herplant op een andere locatie een duurzame oplossing is. De projectinvloedenkaart voor deze locatie is weergegeven in figuur 4.12.

afbeelding "i_NL.IMRO.0743.BP02023003-OW01_0044.png"

Figuur 4.12 Projectinvloedenkaart bomen (Bron: Boomadvies Nederland)

De vertaling van de BEA naar het inrichtingsplan is beschreven in de ontwerptoelichting zoals opgenomen als bijlage 2. Er wordt uitgegaan van diverse maatregelen ten aanzien van een duurzame oplossingsrichting. Ook tijdens de bouw zullen maatregelen getroffen worden.

Locatie Julianastraat

Er zijn op de locatie Julianastraat geen bomen aanwezig. Hierdoor is geen beschermingsregime aan de orde en biedt dit aspect geen belemmering voor het initiatief.

4.14.2.2 Soortenbescherming

In het kader van de beoogde ontwikkelingen zijn voor beide locaties onderzoeken naar soortenbescherming uitgevoerd. Hierna wordt per locatie ingegaan op de belangrijkste resultaten en wordt een doorkijk ten aanzien van de planvorming gegeven.

4.14.2.2.1 Locatie Floraplein

Quickscan

In het kader van de ontwikkeling van de locatie Floraplein is een quickscan soortenbescherming uitgevoerd, opgenomen als bijlage 19. De belangrijkste resultaten uit deze quickscan zijn hierna beschreven.

Mogelijk vliegen en foerageren er vleermuizen. Gedurende en na realisatie van de plannen kunnen deze soorten er blijven vliegen en foerageren. Het voorkomen van en negatieve effecten op verblijfplaatsen van vleermuizen en broedvogels (al dan niet met vaste rust- en verblijfplaatsen) wordt uitgesloten. Het voorkomen van beschermde planten, overige ontheffingsplichtige zoogdieren, reptielen, beschermde vissen en beschermde ongewervelden wordt tevens uitgesloten. Op grond van bovenstaande analyse worden negatieve effecten op beschermde planten- en diersoorten uitgesloten; de omvorming van Floraplein 2 te Asten tot supermarkt is niet in strijd met het gestelde binnen de Wet natuurbescherming.

De zorgplicht blijft onverkort van kracht. Voor- en gedurende de uitvoering dient hier rekening mee gehouden te worden. Deze zorgplicht houdt in dat iedereen voldoende zorg in acht moet nemen voor alle in het wild levende dieren, inclusief hun leefomgeving en voor alle planten en hun groeiplaats. Dit artikel is derhalve ook gericht op het voorkomen van doden en verwonden van algemene soorten. Het eventueel kappen van bomen en verwijderen van groen dient buiten het broedseizoen plaats te vinden.

4.14.2.2.2 Locatie Julianastraat

Quickscan

Ook in het kader van de ontwikkeling op de locatie Julianastraat is een quickscan soortenbescherming uitgevoerd, opgenomen als bijlage 20. De belangrijkste resultaten uit deze quickscan zijn hierna beschreven.

In verband met de mogelijke aanwezigheid van algemene broedvogels in en direct rond het plangebied is het noodzakelijk om de werkzaamheden te starten buiten het broedseizoen of op een manier te werken dat de vogels niet tot broeden komen (vogelverschrikkers gebruiken, sloop buiten broedseizoen). Op deze manier kan worden voorkomen dat verbodsbepalingen van de Wet natuurbescherming worden overtreden. Mogelijk vliegen en foerageren er vleermuizen. Gedurende en na realisatie van de plannen kunnen deze soorten er blijven vliegen en foerageren. Het voorkomen van en negatieve effecten op verblijfplaatsen van vleermuizen en broedvogels (al dan niet met vaste rust- en verblijfplaatsen) wordt uitgesloten in de winkels met bitumen. Het voorkomen van beschermde planten, overige ontheffingsplichtige zoogdieren, reptielen, beschermde vissen en beschermde ongewervelden wordt tevens uitgesloten.

Verder is er een kans op het voorkomen van vleermuizen (verblijfplaatsen, vliegroutes) en vogels met vaste rust- en verblijfplaatsen (huismus, gierzwaluwen) in de woningen met dakpannen aan de Emmastraat (figuur 4.13). Effecten op vleermuizen en vogels met vaste rust- en verblijfplaatsen kunnen dan ook niet worden uitgesloten. Op grond hiervan wordt geadviseerd om een gerichte veldinventarisatie uit te voeren naar het voorkomen van verblijfplaatsen van vleermuizen en vogels met vaste rust- en verblijfplaatsen in deze woningen. Pas na afronding van deze aanvullende inventarisatie kan worden bepaald of verbodsbepalingen van de Wet natuurbescherming worden overtreden en of ontheffing van de Wet natuurbescherming is vereist.

afbeelding "i_NL.IMRO.0743.BP02023003-OW01_0045.png"

Figuur 4.13: Het nader te onderzoeken gebied (geel) op het voorkomen van vleermuizen en vogels met vaste rust- en verblijfplaatsen (huismus en gierzwaluw) (Bron: Adviesbureau Mertens)

Aanvullend onderzoek

Op grond van de resultaten uit de quickscan is tevens een aanvullend onderzoek naar vleermuizen en vogels met vaste rust- en verblijfplaatsen uitgevoerd, opgenomen als bijlage 21.

Uit de resultaten van het onderzoek komt naar voren dat in en direct rond het gebied gewone dwergvleermuizen vliegen en foerageren. Gedurende en na realisatie van de plannen kunnen deze soorten er blijven vliegen en foerageren. Vaste rust- en verblijfplaatsen van vleermuizen zijn niet aangetroffen in en direct rond het plangebied. Huismus, gierzwaluwen of overige vogels met vaste rust- en verblijfplaatsen / vermeldenswaardige vogels komen niet voor.

Op grond van bovenstaande analyse worden effecten op beschermde planten- en diersoorten uitgesloten; de plannen aan de Julianastraat 50 te Asten zijn niet in strijd met het gestelde binnen de Wet natuurbescherming.

De zorgplicht blijft onverkort van kracht. Deze zorgplicht houdt in dat iedereen voldoende zorg in acht moet nemen voor alle in het wild levende dieren, inclusief hun leefomgeving en voor alle planten en hun groeiplaats. Dit artikel is derhalve ook gericht op het voorkomen van doden en verwonden van algemene soorten. Voor- en gedurende de uitvoering dient hiermee rekening gehouden te worden.

4.14.3 Conclusie

Het aspect ecologie vormt geen belemmering voor de beoogde ontwikkeling.

4.15 Duurzaamheid

4.15.1 Normstelling en beleid

Duurzaamheid gaat over de balans tussen mens, milieu en financiën en kan op verschillende niveaus worden bezien. Op het niveau van gebiedsontwikkeling gaat het naast technische maatregelen bij gebouwen om het functioneren van het gehele gebied. De kracht zit in het zoeken naar goede combinaties voor een specifieke locatie waardoor een prettige leefomgeving kan worden ontwikkeld. Bepaalde randvoorwaarden en/of de ruimtelijke omgeving van een plan kunnen kansen voor duurzaamheid opleveren.

Duurzaam bouwen gaat dus verder dan alleen energie. Het gaat ook over duurzaam materiaalgebruik, comfort, binnenmilieu, bouwen voor de toekomst en slim bouwen. Duurzaam bouwen wordt vaak afgekort als 'dubo' en beoogt naast vermindering van de uitstoot van CO2 ook zaken als:

  • bij te dragen aan het welzijn van gebruikers (kwaliteitsbevordering);
  • uitputting van grondstoffen te verminderen;
  • vervuiling van bodem, water en lucht tegen te gaan.

Energieneutraal (BENG)

Vanaf 1 januari 2020 moeten alle nieuwe gebouwen in Nederland bijna energieneutrale gebouwen (BENG) zijn. Dit vloeit voort uit het Energieakkoord voor duurzame groei en uit de Europese richtlijn EPBD. De vastgestelde niveaus voor woningen gelden als volgt:

  • Een maximaal energiebehoefte van 25 kWh/m2/jr gebruiksoppervlak;
  • Een maximaal primair fossiel energiegebruik, eveneens in 25 kWh/m2/jr gebruiksoppervlak;
  • Een minimaal aandeel hernieuwbare energie van 50%.
  • Het voorgaande houdt concreet een EPC tussen 0 en 0,2 in.

Aardgasvrij (Wet VET)

In de Wet voortgang energietransitie (VET) is bepaald dat per 1 juli 2018 nieuw te bouwen bouwwerken niet meer aangesloten worden op het gasnet. In uitzonderlijke gevallen kan de gemeente, bij zwaarwegende redenen van algemeen belang, een ontheffing verlenen. De omgevingsvergunning voor nieuwe bouwwerken wordt afgekeurd als in de bouwaanvraag geen rekening is gehouden met aardgasvrij bouwen.

Milieuprestatie Gebouwen (MPG)

Voor nieuwbouwwoningen en nieuwe kantoorgebouwen die groter zijn dan 100 m² is bij elke aanvraag voor een omgevingsvergunning een Milieuprestatie Gebouwen (MPG) verplicht. De MPG geeft aan wat de milieubelasting is van de materialen die in een gebouw worden toegepast. Per 1 januari 2018 geldt voor de MPG een maximum schaduwprijs van 1,00 euro per m² BVO per jaar. Voor een MPG berekening kan het instrument GPR Gebouw gebruikt worden. GPR Gebouw is opgebouwd uit vijf verschillende thema’s: energie, milieu, gezondheid, gebruikskwaliteit en toekomstwaarde. Scores variëren van 0 t/m 10. Het is gebruikelijk om uit te gaan van een gemiddelde GPR Gebouw score van 8. GPR Gebouw is een bruikbaar instrument om tot een duurzaam ontwerp te komen voor onder andere woningbouw.

4.15.2 Toetsing en conclusie

Ten aanzien van duurzaamheid worden voor de beoogde ontwikkelingen de volgende maatregelen beoogd:

  • Aansluiten bij EPC ontwerpuitgangspunten vanuit het gemeentelijk beleid (en de strengere BENG normen);
  • Mogelijke aanleg van zonnepanelen;
  • Compensatie waterbergingsopgave op eigen terrein;
  • Geen aansluiting op gasnet;
  • Toepassing van luchtwarmtepompen;
  • Extra isolatie ten behoeve van de benodigde geluidwering van 26 dB om aan het vereiste binnenniveau van het Bouwbesluit te kunnen voldoen. Een standaard gevel heeft een geluidwering van 20 dB.

Met de voorgaande maatregelen wordt invulling gegeven aan de geldende eisen ten aanzien van de EPC, de Wet VET en GPR Gebouw.

Hoofdstuk 5 Juridische planbeschrijving

5.1 Algemeen

In het voorgaande hoofdstuk zijn de uitgangspunten van dit bestemmingsplan geformuleerd. In dit hoofdstuk zijn de bestemmingen en de bijbehorende regels beschreven.

Het bestemmingsplan voldoet aan alle vereisten die zijn opgenomen in de Wet ruimtelijke ordening (Wro) en het Besluit ruimtelijke ordening (Bro). Inherent hieraan is de toepassing van de Standaard Vergelijkbare Bestemmingsplannen 2012 (SVBP). De SVBP maakt het mogelijk om bestemmingsplannen te maken die op vergelijkbare wijze zijn opgebouwd en op dezelfde manier worden verbeeld. de SVBP is toegespitst op de regels die voorschrijven hoe bestemmingsplannen volgens de Wro en het Bro gemaakt moeten worden. De SVBP geeft bindende standaarden voor de opbouw en de verbeelding van het bestemmingsplan, zowel digitaal als analoog. De regels van dit bestemmingsplan zijn opgesteld volgens deze standaarden, met inachtneming van de aanpassingen die voortvloeien uit de Wet algemene bepalingen omgevingsrecht (Wabo).

Het bestemmingsplan regelt de gebruiks- en bebouwingsbepalingen van de gronden in het plangebied. De juridische regeling is vervat in een verbeelding en bijbehorende regels. Op de verbeelding zijn de verschillende bestemmingen vastgelegd, in de regels (per bestemming) de bouw- en gebruiksmogelijkheden.

Het Bro bepaalt dat een bestemmingsplan vergezeld gaat van een toelichting. Deze toelichting heeft echter geen juridische status, maar is wel belangrijks als het gaat om de onderbouwing van hetgeen in het bestemmingsplan is geregeld.

5.2 Opbouw van de regels

De indeling in hoofdstukken waarin de regels zijn opgenomen, kent de volgende vaste volgorde.

  • In Hoofdstuk 1 Inleidende regels worden in de regels gehanteerde begrippen, voor zover nodig, gedefinieerd en wordt de wijze van meten bepaald.
  • In Hoofdstuk 2 Bestemmingsregels worden in alfabetische volgorde van de naam van de bestemmingen de regels gegeven waarmee die bestemmingen zoals die op de verbeelding voorkomen, nader worden omschreven.
  • Hoofdstuk 3 Algemene regels bevat een aantal regels (voorheen bepalingen genoemd) die voor alle bestemmingen gelden, zoals een anti-dubbeltelbepaling of de bepaling welke wettelijke regeling van toepassing).
  • Hoofdstuk 4 Overgangs- en slotregels ten slotte geven overgangsrecht voor bestaand gebruik en bestaande bebouwing en de titel van het plan.
5.2.1 Inleidende regels

Artikel 1 Begrippen

In dit artikel zijn bepalingen (begrippen) opgenomen welke in het algemeen spraakgebruik onvoldoende vastliggen en waarbij verschillen in interpretatie bij toepassing van de planregels mogelijk zijn.

Artikel 2 Wijze van meten

Hierin wordt aangegeven op welke manier hoogte, lengte, breedte, inhoud en oppervlakte van bouwwerken/percelen gemeten moeten worden.

5.2.2 Bestemmingsregels

De regels van een bestemming worden als volgt opgebouwd en benoemd (niet altijd overal van toepassing):

  • Bestemmingsomschrijving
  • Bouwregels
  • Nadere eisen
  • Afwijken van de bouwregels
  • Specifieke gebruiksregels
  • Afwijken van de gebruiksregels
  • Omgevingsvergunning

Artikel 3 Detailhandel

Ter plaatse van de beoogde nieuwe Aldi supermarkt is de bestemming 'Detailhandel' opgenomen. Deze bestemming sluit aan op de centrumbestemming maar is specifiek bedoeld voor deze ontwikkeling. De aanduiding 'supermarkt' is hier opgenomen om aan te duiden dat hier uitsluitend een supermarkt is toegestaan en geen andere detailhandelsvestigingen.

Op de verbeelding is een bouwvlak opgenomen waarbinnen nieuwe bebouwing mag worden opgericht. Daarbij geldt een maximale goot- en bouwhoogte van 10 meter. Binnen het bouwvlak is zowel de winkel zelf (met een maximum wvo van 1.150 m²) als het inpandige laad- en losperron opgenomen.

Artikel 4 Gemengd

De gronden bestemd als ‘Gemengd’ zijn bestemd voor detailhandel, kantoor (zonder baliefunctie), maatschappelijk, wonen, aan-huis-verbonden beroepen, parkeerdoeleinden, tuinen, erven en verhardingen en water en waterhuishoudkundige voorzieningen. Conform het geldende bestemmingsplan is tot slot de aanduiding 'specifieke vorm van gemengd - zorgplaatsen' opgenomen om de bestaande bijzondere woonvormen voor mensen afhankelijk van zorg, op de verdieping tot te staan.

De hoofdgebouwen mogen uitsluitend binnen het op de verbeelding aangegeven bouwvlak worden gebouwd. Het aantal wooneenheden mag niet meer bedragen dan ter plaatse van de aanduiding ‘maximum aantal wooneenheden’ is aangegeven. Aan- en uitbouwen, bijgebouwen en bouwwerken, geen gebouwen zijnde, mogen enkel binnen het bouwvlak worden gebouwd. In de regels zijn er verschillende voorwaarden opgenomen omtrent bouwen van aan- en uitbouwen, bijgebouwen en bouwwerken, geen gebouwen zijnde.

De oppervlakte detailhandel neemt in dit bestemmingsplan af ten opzichte van de huidige situatie (1.466 m²). De bestemmingen maatschappelijk en kantoren (zonder baliefunctie) gelden reeds in het vigerende bestemmingsplan en worden hier opnieuw opgenomen.

Artikel 5 Verkeer

De toegangsweg, parkeerplaatsen, groen en voorzieningen ten behoeve van het openbaar nut zijn bestemd tot 'Verkeer'. De inrichting is niet gedetailleerd vastgelegd. Hiermee is ondergeschikte herinrichting van de openbare ruimte mogelijk zonder dat, onnodig, gedetailleerde bepalingen van het bestemmingsplan dergelijke ontwikkelingen in de weg staan.

Artikel 6 Wonen

Ter plaatse van de nieuwe woningen aan de Emmastraat/Julianastraat en het binnenterrein is de bestemming 'Wonen' opgenomen. Het maximum aantal wooneenheden is op de verbeelding vastgelegd en hoofdgebouwen zijn uitsluitend binnen het bouwvlak toegestaan. Bijgebouwen zijn ook buiten het bouwvlak toegestaan. De toegestane maximale goot- en bouwhoogten binnen de bestemming 'Wonen' zijn divers en zijn op de verbeelding vastgelegd.

Artikel 7 Waarde - Archeologie 2

In verband met de uitkomsten van het archeologisch onderzoek (zie paragraaf 4.5.2) en de bescherming van eventueel (nog) aanwezige archeologische waarden is de dubbelbestemming 'Waarde - Archeologie -2' opgenomen. Ter plaatse van die dubbelbestemming geldt een onderzoeksplicht voor werkzaamheden waarbij gronden met een oppervlakte groter dan 250 m² en dieper dan 40 centimeter worden afgegraven.

Artikel 8 Waarde - Archeologie 3

In verband met de uitkomsten van het archeologisch onderzoek (zie paragraaf 4.5.2) en de bescherming van eventueel (nog) aanwezige archeologische waarden is de dubbelbestemming 'Waarde - Archeologie -2' opgenomen. Ter plaatse van die dubbelbestemming geldt een onderzoeksplicht voor werkzaamheden waarbij gronden met een oppervlakte groter dan 2.500 m² en dieper dan 40 centimeter worden afgegraven.

5.2.3 Algemene regels

Deze algemene regels bestaan uit een aantal algemene, niet aan specifieke bestemmingen gekoppelde, regels.

Artikel 9 Anti-dubbeltelregel

Een antidubbeltelbepaling wordt opgenomen om te voorkomen dat, wanneer volgens een bestemmingsplan bepaalde bouwwerken niet meer dan een bepaald deel van een bouwperceel mogen beslaan, het opengebleven terrein niet nog eens meetelt bij het toestaan van een ander gebouw of bouwwerk, waaraan een soortgelijke eis wordt gesteld.

De formulering van de antidubbeltelbepaling wordt bindend voorgeschreven in het Besluit ruimtelijke ordening (artikel 3.2.4 Bro).

Artikel 10 Algemene bouwregels

In de algemene bouwregels is opgenomen dat bouwgrenzen, niet zijnde bestemmingsgrenzen, mogen worden overschreden ten behoeve van ondergeschikte bouwdelen. Het gaat hierbij om bijvoorbeeld stoepen, balkons, entreeportalen, veranda's en afdaken.

Artikel 11 Algemene gebruiksregels

In dit artikel wordt genoemd welk gebruik van de gronden in ieder geval valt onder strijdig gebruik. Het gaat hierbij om onder andere het gebruik van de gronden ten behoeve van stort- of opslagplaats van goederen en aan het gebruik onttrokken machines of het gebruik ten behoeve van seksinrichtingen.

Artikel 12 Algemene afwijkingsregels

In dit artikel is een aantal algemene afwijkingsmogelijkheden opgenomen. Deze afwijkingen betreffen onder meer het overschrijden van de maximaal toegestane maten en afmetingen.

Artikel 13 Algemene wijzigingsregels

In dit artikel is een aantal algemene wijzigingsbevoegdheden opgenomen. Deze afwijkingen betreffen onder meer het overschrijden van de maximaal toegestane maten en afmetingen.

Artikel 14 Overige regels

In dit artikel zijn de overige regels opgenomen. Het gaat hierbij om regels voor parkeergelegenheid en de werkingwettelijke regelingen.

5.2.4 Overgangs- en slotregels

Artikel 15 Overgangsrecht

In dit artikel wordt omschreven hoe wordt omgegaan met het bestaand gebruik en met de bestaande bebouwing ten tijde van de inwerkingtreding van het bestemmingsplan.

Artikel 16 Slotregel

In dit artikel wordt de naam van de regels vastgesteld.

Hoofdstuk 6 Uitvoerbaarheid

6.1 Economische uitvoerbaarheid

Naast de planologische haalbaarheid van de ontwikkeling zoals getoetst in voorgaande paragrafen, moet ook de financiële uitvoerbaarheid van de ontwikkeling aangetoond worden. In de Wet ruimtelijke ordening is de grondexploitatiewet opgenomen. Hierin is geregeld dat gemeenten de mogelijkheid krijgen om kosten van de planontwikkeling te verhalen op grondeigenaren. Het kostenverhaal dient verplicht door de gemeente opgesteld te worden. De gemeente legt dit kostenverhaal vast in een exploitatieplan. Van een exploitatieplan kan worden afgeweken door in het kostenverhaal anderszins te voorzien (overeenkomst met alle grondeigenaren in het plangebied of volledig grondeigendom). In een bestemmingsplan is sprake van kostenverhaal (6.2.3 tot en met 6.2.5 Bro) als een bouwplan (6.2.1 Bro) wordt mogelijk gemaakt.

De gemeente is van mening dat er geen belemmeringen zijn aangaande de financiële uitvoerbaarheid. Deze ontwikkeling wordt geheel bekostigd door de initiatiefnemer. De door de initiatiefnemer aan de gemeente overlegde gegevens tonen afdoende aan dat deze de benodigde investeringen financieel kan dragen. Een exploitatieplan is niet noodzakelijk aangezien met een anterieure overeenkomst tussen initiatiefnemer en gemeente in het kostenverhaal is voorzien.

6.2 Maatschappelijke uitvoerbaarheid

Op grond van artikel 3.1.6 Bro dient inzicht te worden gegeven in de maatschappelijke uitvoerbaarheid van het bestemmingsplan. Het gaat daarbij zowel om de wijze waarop burgers en maatschappelijke organisaties bij de planvoorbereiding zijn betrokken alsook om de resultaten van het overleg ex artikel 3.1.1 Bro.

6.2.1 Participatietraject

De gemeente Asten vindt het wenselijk dat omwonenden en bedrijven in de nabijheid van een ruimtelijke ontwikkeling op een vroeg stadium bij de planvorming worden betrokken . Daarom heeft de gemeente een stappenplan (Overleg met uw omgeving - Gemeente Asten) ontwikkeld voor het organiseren en voeren van een omgevingsdialoog, die plaats dient te vinden voordat een aanvraag wordt ingediend. Daarin worden de volgende stappen uitgewerkt:

  • 1. Definieer de omgeving en belanghebbenden;
  • 2. Nodig de omgeving uit;
  • 3. Voer het omgevingsgesprek;
  • 4. Maak een verslag;
  • 5. Verstuur het verslag naar de omgeving;
  • 6. Voeg het verslag toe bij de stukken voor de indiening van de aanvraag.

In het kader van de beoogde plannen is aan de hand van richtlijnen van en in samenwerking met de gemeente Asten een omgevingsdialoogtraject opgestart en heeft in gemeenschapshuis 't Kwartier (Kerkstraat 10 te Asten) op woensdag 12 juli van 15:00 tot circa 19:30 uur een eerste inloop-informatiebijeenkomst plaatsgevonden. Tijdens deze informatiebijeenkomst werden aanwezigen geïnformeerd over de beoogde ontwikkelingen en werden zij uitgenodigd om met betrokken partijen in gesprek te gaan.

Van de informatiebijeenkomst en het dialoogtraject daarna is een verslag opgesteld. Dit verslag is opgenomen als bijlage 22. Hierin wordt per locatie ingegaan op de belangrijkste ontwikkelpunten, relevante bevindingen, eventuele wijzigingen en besproken verbeterpunten. Ten slotte wordt een doorkijk gegeven richting het vervolgtraject.

6.2.2 Vooroverleg ex artikel 3.1.1 Bro

In het kader van het vooroverleg als bedoeld in artikel 3.1.1. van het Besluit ruimtelijke ordening (Bro) is het concept-ontwerp van het bestemmingsplan toegezonden aan de overleginstanties Veiligheidsregio Brabant Zuidoost, Provincie Noord-Brabant en het Waterschap Aa en Maas. De reacties worden hieronder samengevat en van beantwoording voorzien.

Veiligheidsregio Brabant Zuidoost

Veiligheidsregio Brabant Zuidoost geeft aan dat de ontwikkeling voldoet aan zo goed als alle de beleidsregels ten aanzien van bereikbaarheid en bestrijdbaarheid. Echter, de reeds bestaande onderdoorgang gezien vanuit de Julianastraat is nu door de hoogtebeperking die er hangt niet toegankelijk voor de tankautospuit van de Veiligheidsregio. In de beleidsregels wordt de minimale doorgangshoogte aangehouden van 4,2 meter. Het voertuig is 3,6 meter hoog. Als de hoogtebeperking (van 3 meter) weggehaald zou worden, en de daadwerkelijke doorgangshoogte is 4 meter dan kan deze route ook als volwaardige aanrijdroute worden gezien en dan voldoet de voorgenomen ontwikkeling aan het gestelde beleid. Ten tijde van de aanvraag omgevingsvergunning voor het bouwen wordt dit nader onderzocht en met de Veiligheidsregio afgestemd. Voor voorliggend bestemmingsplan is dit niet relevant.

 

Ook geeft de Veiligheidsregio aan dat de bluswatervoorziening voldoet aan het beleid. Er liggen voldoende brandkranen binnen 200 meter van de planlocaties.

De Veiligheidsregio Brabant Zuidoost (VRBZO) heeft voor ontwikkelingen op grote afstand van risicobronnen en kleine ontwikkelingen een standaardadvies versie 2.0 d.d. 1-1-2019 opgesteld. Dit advies is bijgevoegd als bijlage 10 en wordt gedurende de planvorming en uitvoering in acht genomen.

Provincie Noord-Brabant

Provincie Noord-Brabant geeft aan geen opmerkingen te hebben op het bestemmingsplan.

Waterschap Aa en Maas

Het Waterschap geeft in reactie aan dat de beoogde ontwikkelingen niet leiden tot een toename van het verhard oppervlak en er geen waterbelangen worden geraakt. Er zijn op basis van het geldend beleid van het Waterschap geen opmerkingen op het plan.

Wel worden op basis van het gemeentelijk beleid en de juridische vertaling nog enkele vragen gesteld in relatie tot hemelwaterberging en wateroverlast. Op basis hiervan en in afstemming met de gemeente Asten is het bestemmingsplan aangescherpt.

6.2.3 Ontwerp

Met de terinzagelegging van het ontwerpbestemmingsplan (voor de duur van zes weken) wordt de formele vaststellingsprocedure gestart. Gedurende deze periode kan iedereen op het ontwerp bestemmingsplan een schriftelijke of mondelinge zienswijze indienen. De zienswijzen worden samengevat en voorzien van beantwoording. Deze zienswijzen zullen worden beoordeeld op het feit of, en zo ja, in hoeverre het ontwerp aanpassing behoeft. Vervolgens zal het college van B&W de gemeenteraad voorstellen het bestemmingsplan al dan niet gewijzigd vast te stellen.

6.2.4 Vaststelling

Na vaststelling door de gemeenteraad wordt het bestemmingsplan voor de tweede maal zes weken ter visie gelegd. Gedurende deze periode kunnen belanghebbenden tegen het vaststellingsbesluit beroep instellen bij de Afdeling Bestuursrechtspraak van de Raad van State. Indien geen beroep wordt ingesteld, is het plan na deze beroepstermijn onherroepelijk en treedt het plan in werking.